查看完整案例

收藏

下载
多乌什汽车技术中心坐落于TEM高速公路由盖布泽通往伊斯坦布尔方向的Sekerpinar出口处。这个自发形成的区域带有明显的城市发展的烙印。我们提供了一个非常简单且直接的结构体涵盖了多乌什集团的信息技术部门和数据中心。建筑共有三层,为钢筋混凝土结构,外立面采用玻璃幕墙。干净、清透的外立面与周边嘈杂的建筑风格形成鲜明对比。项目意在成为DOGUS汽车投资的标杆项目,外立面的模块单元通过反射以及玻璃上的凸透花纹反映着整栋建筑的外部形态,尤其是当你从室外向室内看时,不同的视觉角度可以呈现出不同的立面效果。
The site of Dogus Technology Centre is on the brink ofIstanbul neighboring next to the Istanbul-Ankara highway. The area is valuable especially for big warehouses and manufacturing plants with the ease of access and relatively cheap land prices. Within the last decade the sites in this area started to be allocated not only for blue-collar but also for the white-collar employees of the companies. Dogus Technology Centre is an example to such buildings where it is placed next to the Dogus Automotive’s customs site. The 15.000sqm building designed for the computer and electronic engineers who develop software for the group companies. The three-floor reinforced concrete structure is kept as a simple rectangular prism and covered with transparent glass in contrast to existing surrounding blocks with blank masses. While the uninterrupted visual connection towards the wide horizon allows users with a consistent modulation, the façade itself becomes a colorful and dynamic screen of contemplation from outside. Social spaces are scattered within this compact building to trigger and propagate the interaction between users allowing a more pleasant working environment in a context of warehouses.
▼建筑外观,exterior view
▼干净、清透的外立面,a clear and light facade
室外空间主要由简单的开放式露台和花园构成,并通过透明的立面将室内和室外空间联系起来。玻璃立面、倒影池和天空这三个平面共同强调了建筑的空间体验。中庭在深入建筑的过程中营造出震慑人心的效果。人们可以通过悬浮的楼梯进入上方楼层,这里同样也是公共空间的一部分。中庭顶部悬挂着一盏别致的灯具,其造型参考了DOGUS公司logo的不规则形状,使来访者可在中庭内外感受到不同的灯光效果。
▼立面近景,a close view
The outdoor was conceived as simple open terraces and as a garden having a continuous relationship between interiors and exteriors through the transparent facades. The user is actually welcomed by three planes: The main glazed façade, the reflection pond and the sky. The atrium creates a surprise for users on the path towards inside the building. As part of a common gathering space, people are invited to the upper levels through the suspended staircase. The special pendant lighting feature within the atrium is designed as an anamorphous formation inspired by the logo of client, Dogus Teknoloji. Thus, it creates various combinations of light compositions according the position of the viewer within and outside the atrium.
▼大厅,lobby
▼通高的中庭空间,a full-height atrium
▼灯具造型参考了DOGUS公司logo的不规则形状,the special pendant lighting feature within the atrium is designed as an anamorphous formation inspired by the logo of client, Dogus Teknoloji
开放的办公区域和会议区域被分布到三个楼层。公共空间包括一层的咖啡厅、三层带有室内外双露台的开放式自助餐厅以及一间小型的体育中心;位于地下层的数据中心和储物空间使建筑的整体组织得到了完善。地下空间分为两个区域,包括与上部楼层相连接的区域以及用于停放车辆的交通区域,其中与交通区域相连的部分只能从地下楼层进入。
The project is composed of open office areas and meeting spaces distributed to three levels. Social areas such as a café located on ground level and a open buffet restaurant on the third level both with indoor and outdoor terraces as well as a small sport center, data center and storage spaces located underground complete the overall spatial organization of the project. The building’s underground spaces are divided into two specific areas: areas connected to upper parts of the building and the customs area of automobile storage. The part adjacent to the customs zone is only accessible from this area.
▼接待台,reception desk
▼办公空间入口,office entrance
▼从中庭望向办公空间,working spaces seen from the atrium
▼办公空间,working area
▼走廊休息区,seating area
▼楼梯间,stair well
▼灯光效果,lighting effect
通过使用均匀而透明的玻璃立面,建筑与场地中的其他建筑形成了鲜明的对比。建筑的空间秩序和照明/采光策略为员工提供了优越的协作式办公环境,其空间质量远高于本国IT行业的平均水平。新建筑的落成在提升公司形象的同时,也对其他部门的员工形成了积极的影响。
▼外立面夜景,exterior night view
The building has a significant contrast of working atmosphere compared to other departments of the mother company within the same site by use of well-proportioned transparent façade. Sequence of spaces and daylight/artificial lighting strategy from inside out, day to night, allow the IT employees to work and collaborate within a higher quality environment comparing to most of the other IT offices in the country. The presence of this new building created also a great impact on the other employees of the company as it added value to the company’s visionary image.
▼夜间鸟瞰,aerial view
▼场地平面图,site plan
▼首层平面图,ground floor plan
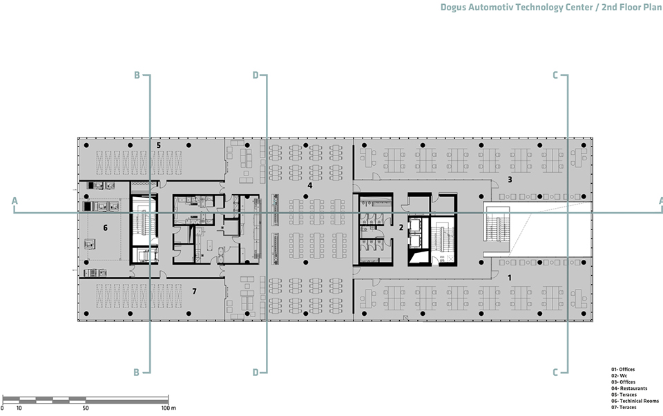
▼二层平面图,first floor plan
▼三层平面图,second floor plan
▼地下一层平面图,1st basement floor plan
▼地下二层平面图,2nd basement floor plan
▼剖面图,sections
Dogus Technology Center / ERA Architects
Architects:ERA Architects
Location:Istanbul, Turkey
Principle Design:Ali Hiziroglu, Cigdem Duman
Design Team:Murat Bozdogan, Gulizar Kemer, Deniz Akkoca, Melis Uysal, Hande Sayi
Area:15000.0 m2
Project Year:2014
Photographs:Cemal Emden
Manufacturers:Koleksiyon, Vitra
客服
消息
收藏
下载
最近













































