查看完整案例

收藏

下载
该项目为一间退休公寓,在未来的时光里,它将作为逃离喧闹都市的庇护之所。住宅设计理念基于传统的墨西哥式住宅,将庭院作为住宅的中央空间。庭院充分履行其作为门厅和室内循环中心的作用,而且他功能性空间则围绕该庭院展开。
The project is an interpretation of a retirement home within the city, which works as a shelter from the everyday routine. The concept is based on traditional Mexican homes where a central patio fulfills the function of an interior garden, a foyer, and circulatory nucleus around which the program is developed and lived.
▼住宅入口,entrance
▼前院,front yard
▼细部,detail
住宅平面以矩形形态规划,将视觉和平面轴线置于中庭,并使得私密空间与社交空间隔开,建立了室内外环境之间的交流与对视。住宅的空间布局着重强调了视觉效果和充斥着暖色调的不同高度的天花板。此项目意在为居住宅营造多种感官体验的居住空间,并满足居住生活的各种需求。
Schematically, the floor plan is organized in a square with a visual and central axis consolidated through the patio, which in turns communicates and separates private areas from social areas, allowing a seamless interaction between the interior and the exterior. The spatial layout emphasizes the role of visual fames and different ceiling heights filled with warm colors; the goal was to achieve diverse sensations according to the specific requirements and activities developed in each space.
▼以庭院为中心的住宅规划,the patio locates at the centre of the house
该项目在三层高的建筑中展开,意在打造一家五口的舒适居住空间。地下室空间设有设备间,存储空间和车库。地面层设有入口,厨房,工作室,家庭空间和集起居室,餐厅和露台为一体的公共休息空间。该公共休息空间以金属隔墙分割,并与中央庭院相连。开放性的设计将住宅轴线由室内直接通向室外,将人的视线引向远处的山谷景色。其他休闲空间坐落于住宅上层。
The design develops in three levels to fulfill the needs of a family of 5 members. The basement contains the service areas, storage and garage. Ground floor is composed by the studio, kitchen, family room, living-dining-terrace, and the entry, defined by a metallic lattice wall, and connected to the central patio and characterized by the visual axis that pulls the eye towards privileged views upon the valley behind the house. A complementary resting area is situated in the upper level.
▼庭院与起居室开放相连,the living space opens to the garden
▼开放的客厅,餐厅和露台空间,the open layout of the living-dinging-terrace space
▼其他私密空间围绕中庭而设,the other private spaces are organized around the patio
▼厨房,kitchen
▼上层楼梯间,the upper staircase
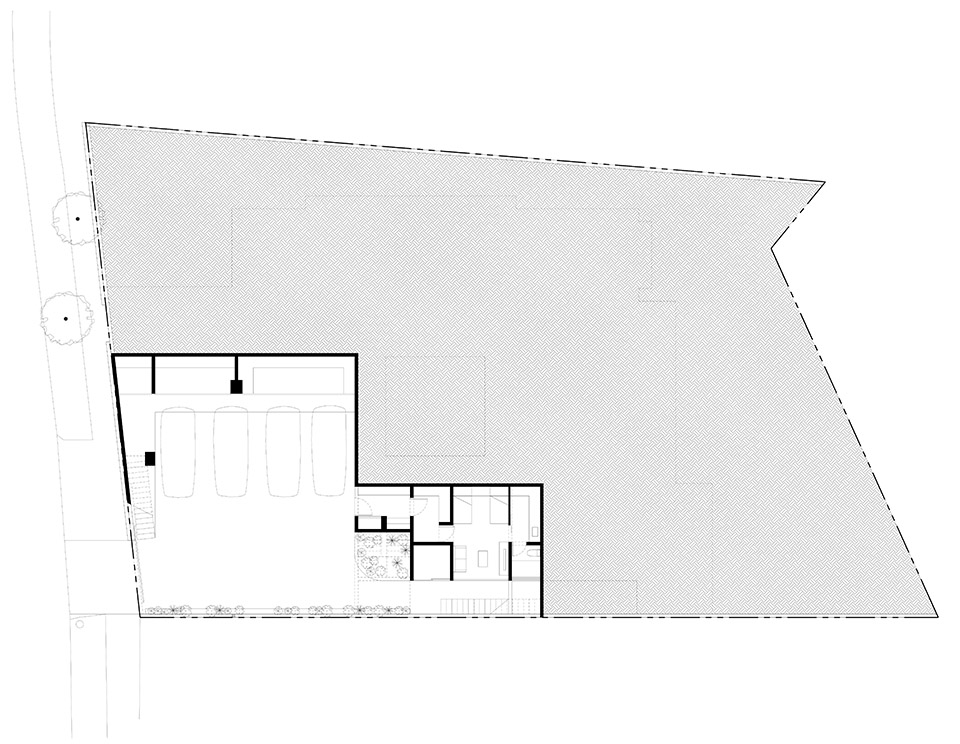
▼一层平面,the ground floor
▼二层平面,the first floor
▼地下室,the underground floor
▼剖面图,section
Brands / Products
Mention at least 5 companies and/or details of the utilized products.
(i.e. Hunter Douglas/Metalcon Structure 0,85 mm thick).
1. Ducasse / Window tracks for 10 stackable sheets.
2. Ventor / Light fixtures
3. Euro Vent / Windows S-70 6mm clear glass.
4. Villeroy & Boch / Bathroom fixtures. SeriesTwist and Loft
5. Hansgrohe / Bathroom accessories. Series Flowstar S, Metris E, Logis.
客服
消息
收藏
下载
最近




























