查看完整案例

收藏

下载
Torre是Prada基金会最后完成的部分,包含一系列不同的展览空间。
Torre is the final section of a collection of different exhibition conditions that together define Fondazione Prada.
▼建筑外观,exterior view photo by Jacopo Milanesi © OMA
photo by Jacopo Milanesi © OMA
大楼矩形的平面被构建在基金会西北角的楔形场地,使得矩形和楔形的空间相互交错,悬挑在米兰的城市空间之上。
Its rectangular plan is constructed on a wedge-shaped site, on the North-West corner of the Fondazione; the tower consists of alternating blocks of wedge-shaped-plans and rectangular floors that are cantilevered over Milan’s public space.
▼矩形和楔形的空间相互交错,悬挑在米兰的城市空间之上,alternating blocks of wedge-shaped-plans and rectangular floors are cantilevered over Milan’s public spacew photo by Jacopo Milanesi © OMA
photo by Jacopo Milanesi © OMA
▼西立面图,west facade © Bas Princen
▼每个楼层都要略高于其下方的楼层,each next floor is taller than the previous one © Bas Princen
建筑后方的对角线型结构从Deposito的硕大体量中伸出,仿佛要将大楼向后拉回。为了拓展基金会园区的空间类型,设计中采用了一系列系统性的变化:每个楼层都要略高于其下方的楼层,矩形的平面和楔形的空间交替分布,房间时而朝向北面的全景城市视野,时而则朝向东面和西面的更窄一些的视野。这些变化使一个简单的体量呈现出显著的差异性,空间与特定的活动和艺术作品也因此产生了丰富而多变的互动。
At the rear, a diagonal structure emerging from the vastness of the Deposito pulls the tower back. To extend the typologies offered by the Fondazione, a series of systematic variations is applied: each next floor is taller than the previous one, rectangular plans alternate with wedge shapes, the orientation of the rooms alternates between panoramic city views to the North, or narrower views in opposite directions, East and West. Together these variations produce a radical diversity within a simple volume – so that the interaction between the spaces and specific events or works of art offer an endless variety of conditions…
▼临街立面,street view © Bas Princen
▼建筑后方的对角线型结构从Deposito的硕大体量中伸出,仿佛要将大楼向后拉回,at the rear, a diagonal structure emerging from the vastness of the Deposito pulls the tower back photo by Jacopo Milanesi © OMA
photo by Jacopo Milanesi © OMA
▼电梯井置于建筑外部,elevator shaft on exterior © Bas Princen
photo by Jacopo Milanesi © OMA
大楼的底部还包含一个次级入口,可直接通往餐厅和屋顶平台、Deposito的实验表演空间,以及基金会的其他区域。
At the base of the tower, a second entrance offers direct access to the tower, its restaurant and roof terrace, the experimental performance space of the Deposito, and to the other parts of the Fondazione.
▼远景,distant view photo by Jacopo Milanesi © OMA
楼梯作为将所有不规则性统一起来的结构,其复杂性已然超越了实际的功能性,成为了承担着重要功能的建筑元素。
The staircase is the one element unifying all irregularities – its complexity lifts it beyond the typical pragmatic element, the staircase has become a highly charged architectural element.
▼主楼梯,main staircase © Bas Princen
▼夜景,night view photo by Jacopo Milanesi © OMA
photo by Jacopo Milanesi © OMA
© Bas Princen
© Bas Princen
▼0层平面图,plan level 0 © OMA
▼1层平面图,plan level 1 © OMA
▼2层平面图,plan level 2 © OMA
▼3层平面图,plan level 3 © OMA
▼4层平面图,plan level 4 © OMA
▼5层平面图,plan level 5 © OMA
▼6层平面图,plan level 6 © OMA
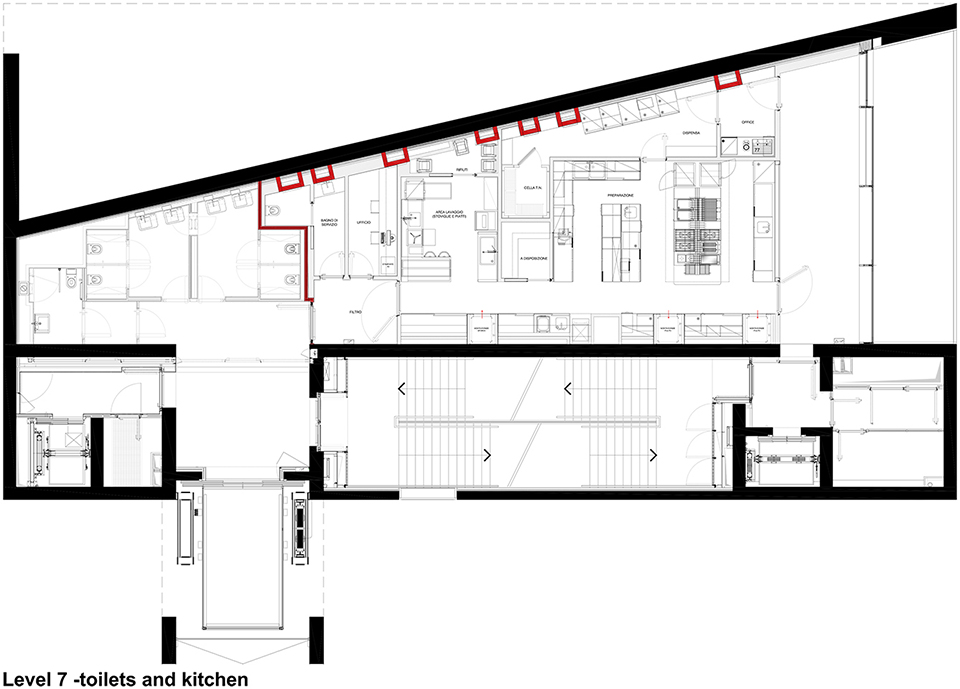
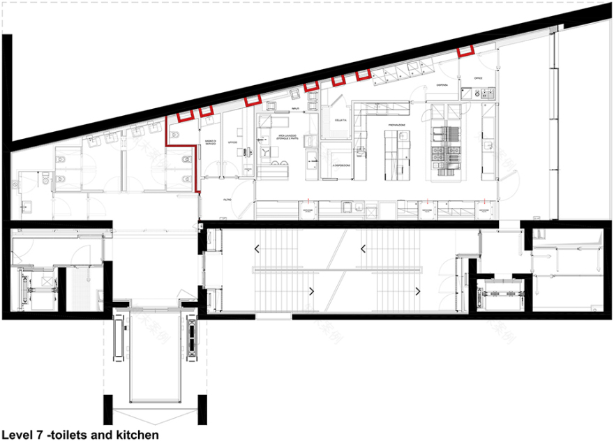
▼7层平面图,plan level 7 © OMA
▼8层平面图,plan level 8 © OMA
▼9层平面图,plan level 9 © OMA
▼屋顶平面图,plan level 10 © OMA
▼东立面图,east elevation © OMA
▼西立面图,west elevation © OMA
▼北立面图,north elevation © OMA
▼南立面图,south elevation © OMA
▼剖面图,section © OMA
Statement by 雷姆·库哈斯
Rem Koolhaas
Torre – Fondazione Prada
Status: Completed
Client: Fondazione Prada
Location: Milan, Italy
Site: Former distillery at Largo Isarco No.2, Milan, an industrial complex dating from 1910, comprising seven existing structures, including warehouses, laboratories, and brewing silos surrounding a large courtyard
Program: Total public area: 12,300 m2; total private area: 6,600 m2; total built area: 18,900 m2
OMA TEAM
Partner in Charge: Rem Koolhaas, Chris van Duijn
Project leader: Federico Pompignoli
Schematic Design: Alexander Reichert, Sam Aitkenhead, Doug Allard, Andrea Bertassi, Aleksandr Bierig, Eva Dietrich, Paul-Emmanuel Lambert, Jonah Gamblin, Joshua Beck, Takuya Hosokai, Stephen Hodgson, Jan Kroman, Jedidiah Lau, Francesco Marullo, Vincent McIlduff, Alexander Menke, Aoibheann Ni Mhearain, Sophie van Noten, Jan Pawlik, Rocio Paz Chavez, Christopher Parlato, Ippolito Pestellini Laparelli, Dirk Peters, Andrea Sollazzo, Michaela Tonus, Jussi Vuori, Luca Vigliero, Mei-Lun Xue
Design Development: Anna Dzierzon, Jonah Gamblin, Ross Harrison, Hans Hammink, Matthew Jull, Taiga Koponen, Vincent Konate, Andres Mendoza, Susanan Mondejar, Vincent McIlduff, Federico Pompignoli, Sasha Smolin, Michaela Tonus
Construction documentation: Katarina Barunica, Marco Cimenti, Cecilia Del Pozo Rios, Anita Ernodi, Felix Fassbinder, Peter Feldmann, Siliang Fu, Romina Grillo, Jonah Gamblin, Clive Hennessey, Taiga Koponen, Roy Lin, Debora Mateo, Vincent Mc Ilduff, Andres Mendoza, Federico Pompignoli, Arminas Sadzevicius, Magdalena Stanescu, Lingxiao Zhang
Construction Administration: Mariacristina Agnello, Katarina Barunica, Emilio Boiardi, Matteo Budel, Marco Cimenti, Chris van Duijn, Anita Ernődi, Felix Fassbinder, Peter Feldmann, Siliang Fu, Jonah Gamblin, Andrea Giovenzana, Romina Grillo, Clive Hennessey, Marianna Katenko,Taiga Koponen, Nicolas Lee, Roy Lin, Débora Mateo, Vincent McIlduff, Andres Mendoza, Enzo Nercolini, Pawel Panfiluk, Caterina Pedò, Marton Pinter, Cecilia del Pozo, Victor Pricop, Arminas Sadzevicius, Magdalena Stanescu, Davide Troiani, Michele Zambetti, Lingxiao Zhang
COLLABORATORS
Local Architects: Atelier Verticale
Structural Engineer: Favero&Milan
MEP Engineer: Favero & Milan, Prisma Engineering
Fire Engineer: GAE Engineering
客服
消息
收藏
下载
最近

















































