查看完整案例

收藏

下载
在斯德哥尔摩中心的Lokstallet街区的一栋无名建筑通过改造变成了一栋现代办公大楼——阿特拉斯花园。建筑所在地有一个与邻近铁路相邻的历史悠久的车棚。
The renovation of the Lokstallet block in central Stockholm transformed an anonymous building into a modern office building – Atlas Garden. The land on which the building stands conceals an historic locomotive shed built in conjunction with the adjacent railway.
▼项目位于铁轨旁,the building locates on a site next to the railway
建筑的沿街玻璃立面上印着与铁路有关的诗歌的图案。想要解读它们,人们必须站在大楼附近。朝向铁路的立面安装了额外的保温材料,并覆盖有锌板。屋顶上覆盖着绿色植物。俯瞰时这栋建筑与附近的公园仿佛融为一体。
The building’s street-facing glass façade is imprinted with a pattern of words selected from poems associated with the railway – which can only be deciphered if you stand near the building. The railway-facing façade has extra insulation and is covered with zinc shingles. The roof is covered with green plants and, when viewed from above, the building blends in with the adjacent park.
▼项目外部一览,overview of the exterior
▼立面玻璃上印着与铁路有关的诗歌文字组成的图案,the building’s street-facing glass façade is imprinted with a pattern of words selected from poems associated with the railway
▼临街入口之一,entrance on the street side
▼消防通道入口,entrance to the fire escape staircase
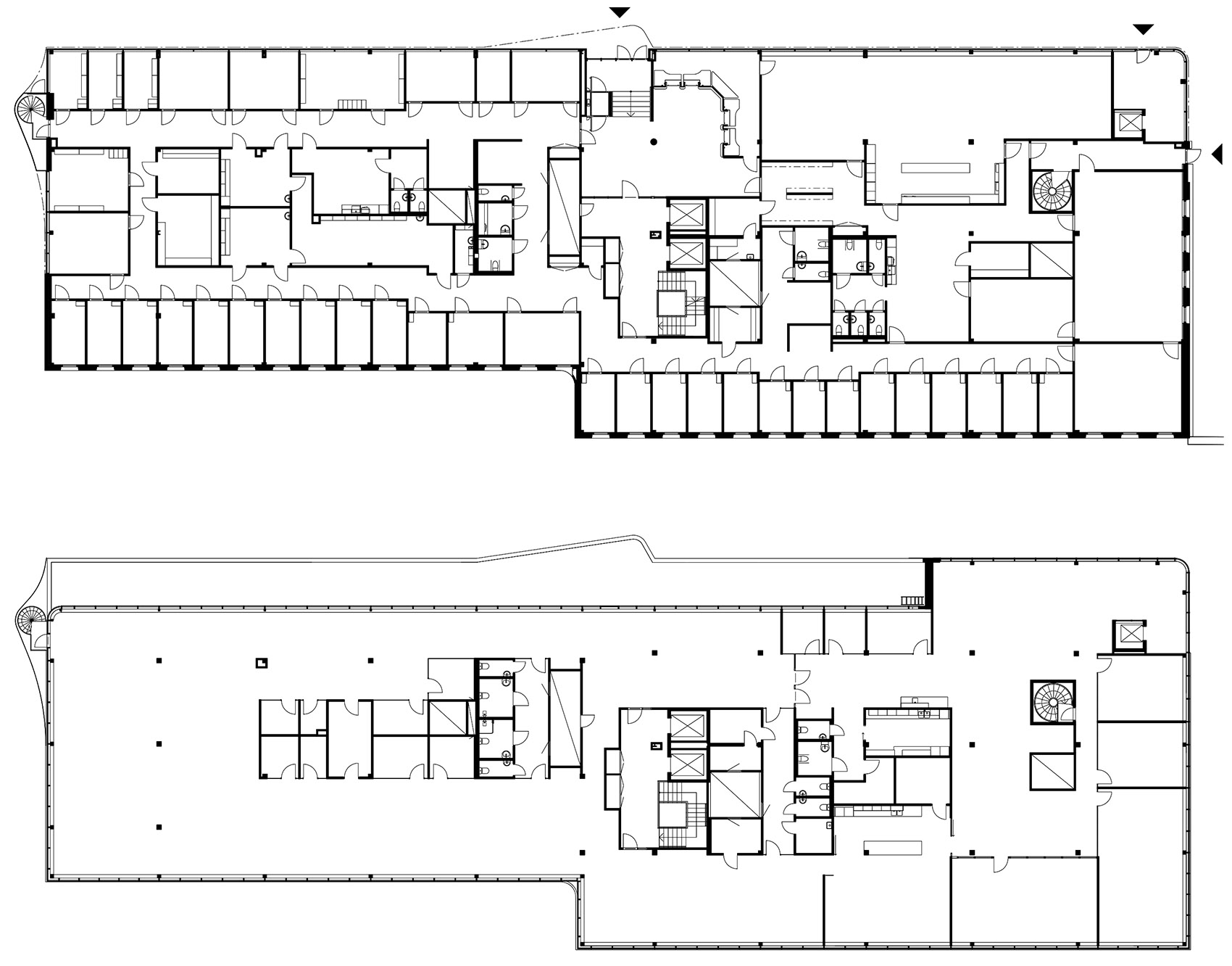
设计者希望创造一个现代化的办公大楼,与铁路沿线的高层建筑相适应。该建筑通过翻修为租户提供了极为灵活的平面布局。办公层可分为四个单元出租,包括相应的防火门、用水功能区域和入口。租户可以选择三种布局方式:多个私人办公室,完全开放式的布局,或者两者相结合。其中一个租户选择了几个私人办公室,一个会议室和一个大的员工餐厅的组合方式。另一个租户选择了开放式的布局,外加一个会议室和一个单间。大楼经过改造和扩建成为了一个灵活的现代化办公场所。利用新技术为租赁用办公室空间提供了多种变化的可能性。
The goal was to create a modern office building that would fit in with the row of high-profile buildings located along the railway. The building has been renovated to offer extremely flexible floorplans for tenants. Office floors can be divided into four leasable units with regard to fire doors, wet group placement and entrances. Tenants can choose to have multiple private offices, an open floorplan or a combination of the two. One Atlas Garden tenant chose to have several private offices along with a conference room and a large staff lunchroom. Another tenant has an open floorplan along with a conference room and quiet rooms. The property was transformed by the renovation and expansion into a flexible, modern office building, with new technological solutions that provide many possible variations for leased office spaces.
▼办公区域入口,entrance to the offices
▼办公区域外的接待处,reception area outside the office area
▼会议室,the conference room
▼ 办公区域配备的单间,individual working spaces
大楼内部的色彩设计简单而有力。设计师仔细选择了颜色的亮度和对比度,为视力受损或是方向感不好的人们提供室内的导航。深灰色的门从白色墙壁上凸显出来,等待室的地板和墙壁的颜色。楼梯间内的楼层号码用较大的字体绘制,而且每一层都对应着一个独有的颜色。
Inside, the building’s color scheme is simple but powerful. The brightness contrast of the colors used was carefully selected to facilitate navigation throughout the building for people with impaired vision or an otherwise impaired sense of direction. The dark grey doors stand out distinctly from the white walls. Waiting rooms have unique floor and wall colors. Large numbers are painted in the stairwells to indicate floor number, and each floor has its own color palette.
▼楼梯间的楼层号码使用了超大的字号,large numbers are painted in the stairwells to indicate floor number
▼每层用不同的颜色为使用者导航,every floor uses a different color to help navigate the users
▼项目夜景,the project at night
▼场地与城市关系,relationship between the site and the city
▼场地平面,the site plan
▼三层与六层平面,floor plan for level 3 and 6
▼场地剖面,the site section
客服
消息
收藏
下载
最近




























