查看完整案例

收藏

下载
诺特丹大学的新学生中心巧妙地将校园生活与城市联系在一起,同时保留了建筑的历史肌理。
The new Student Hub at Notre Dame cleverly engages its students with the city whilst maintaining the heritage fabric of the building.
▼空间概览,overview
▼交通空间,circulation
相比于原本封闭且壮观的大厅,新的学生中心强调了对“随时随地学习”的需求的满足,能够与活动空间和俱乐部空间协同使用,从而加强了全盘化的大学教学方式。
Rather than the enclosed, voluminous hall that had previously served the students this space addresses the need to provide student spaces for study “anywhere, anytime”, that sit alongside flexible event and club spaces, reinforcing the University’s holistic approach to student centred learning.
▼城市街道般的空间,city street-like spaces
▼设计保留了建筑的历史肌理,the design maintains the heritage fabric of the building
▼一系列有趣的空间介入创造出能够适应多种用途的功能区域,a series of playful insertions create zones that can be adapted for a variety of uses
▼“随时随地学习”,study “anywhere, anytime”
项目通过一系列有趣的空间介入讲述了建筑的历史故事,创造出能够适应多种用途的功能区域。
This project tells the story of the building’s history through a series of playful insertions into the space, creating zones that can be adapted for a variety of uses.
▼自习空间,study space
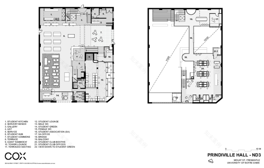
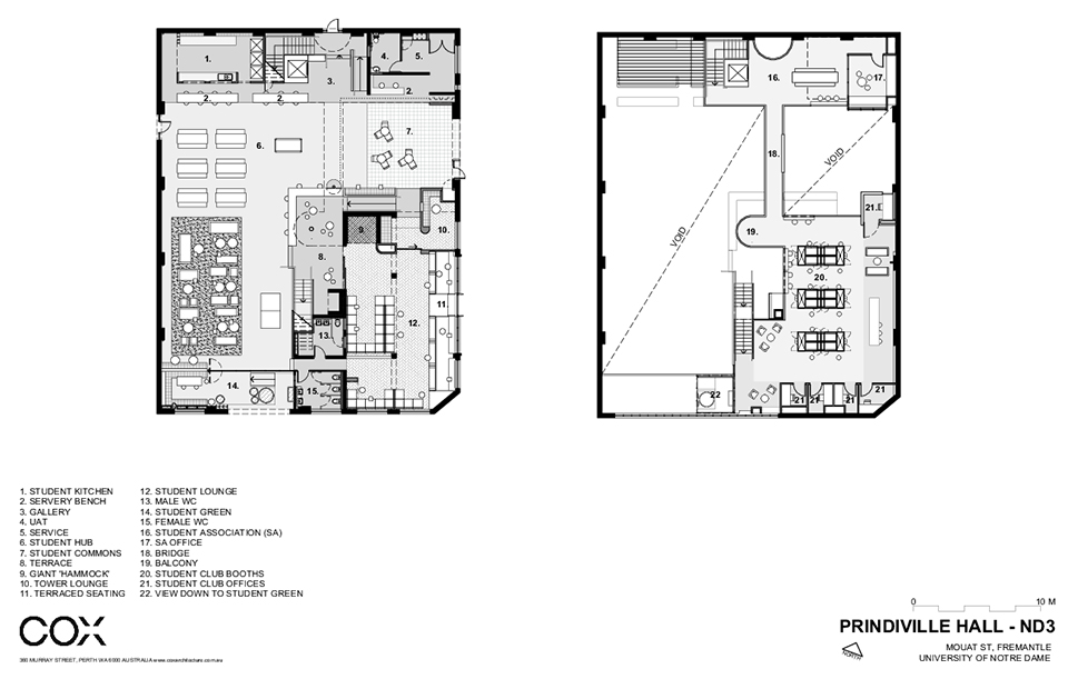
▼平面图,floor plans
Project size
915 m2
Completion date
2017
客服
消息
收藏
下载
最近




















