查看完整案例

收藏

下载
住宅设计的初衷是将与后花园相连的建筑背侧打通,用7.4米长的滑窗建立室内外的视觉联系。支撑墙体的移除拉近了居住者与户外环境的联系。
The first step for this detached house from the late 1940s was to open the rear facade onto the garden with a 24-foot (7.4 m) sliding bay window. By taking away the intermediary support element, this intervention removes the barriers to the outdoor terrace.
▼建立空间与室外花园的联系,view connection from living space to the garden
厨房与餐厅相互连通,并享受面朝花园的美丽视野。金属框架雨棚为该空间过滤了光和热。
A metal trellis awning framing the wide opening filters heat from the sun into the kitchen and dining room, which are brought together in one space and open onto the garden.
▼开阔的厨房与餐厅规划,the open plan of kitchen and dinging space
▼餐厅,dining space
▼素雅色调,the simple tone
住宅的改造将封闭的空间打破,增加了各空间的物理与视觉联系。一扇可灵活滑动的穿孔板,将客厅与双层私人空间分割开来,保证了必要的空间私隐性。通过空间的合理规划和新区域的围合,住宅平面利用趋向于合理化。悬浮在空间中2.8X5米的墙壁是住宅中的设计亮点。绿意盎然的点缀让上层空间变得更加怡人。
The transformation of this house opens it up, revitalizes the relationship between the spaces and creates a visual link between each one. A perforated mobile steel wall modulates the level of privacy between the living room and the two-storey-tall family room. By playing with the existing floors and creating new spaces, the concept transforms the perception of the dimensions of the house. A 2.8 m by 5 m living wall suspended above the family room is the key feature of the indoor environment. Upstairs, this green presence can be enjoyed from the open-plan office.
▼滑动穿孔板为空间提供必要的私隐性,a perforated mobile steel wall modulates the level of privacy between the living room and the two-storey-tall family room
▼客厅,living room
▼天窗采光,the skylight
▼洗手间,bathroom
住宅装饰的每一处皆展示了所有者对细节的极致追求。
Every element of this project underlying the owners’ passion for detail.
▼细节雕刻,details
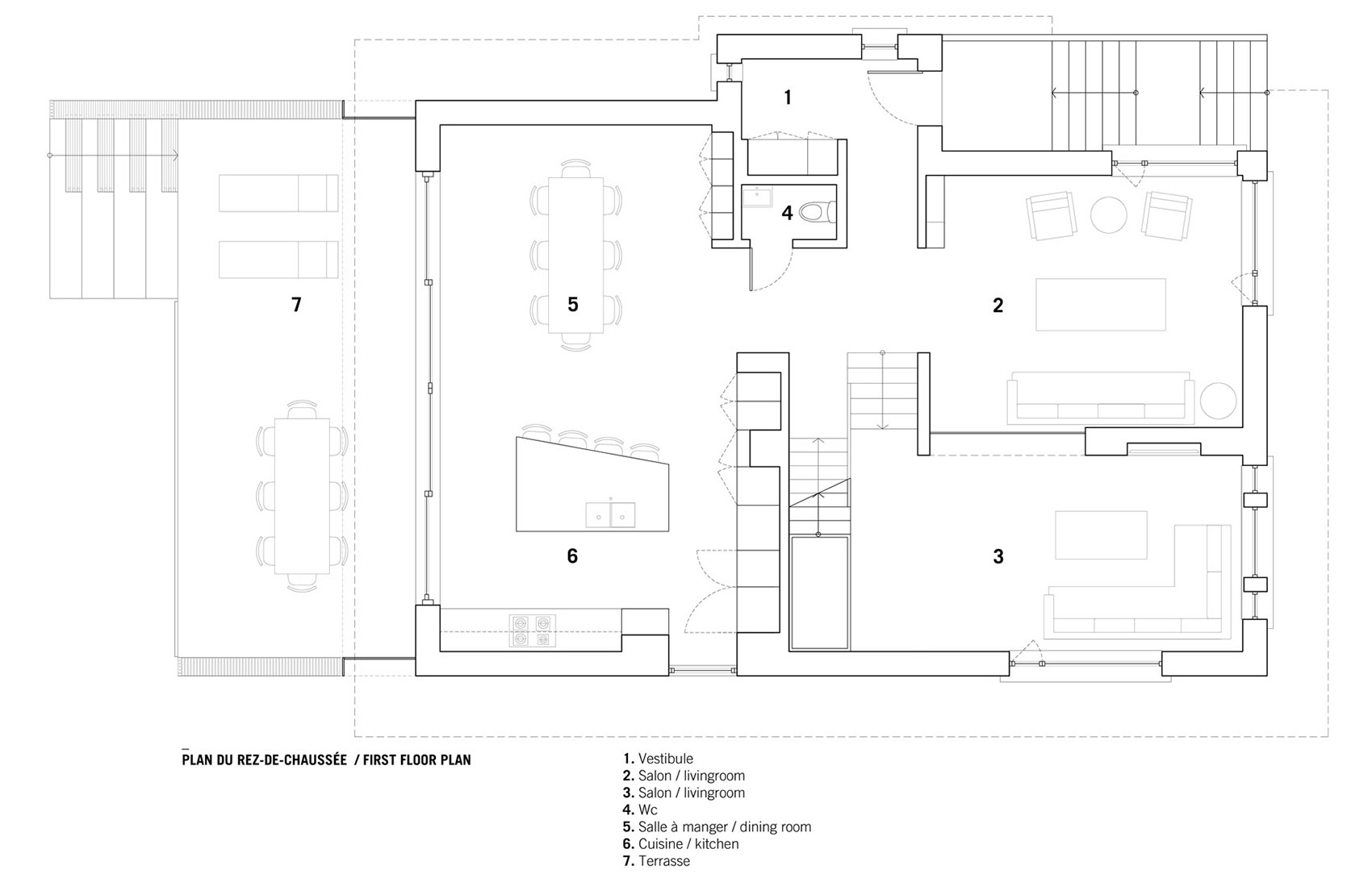
▼一层平面图,the first floor plan
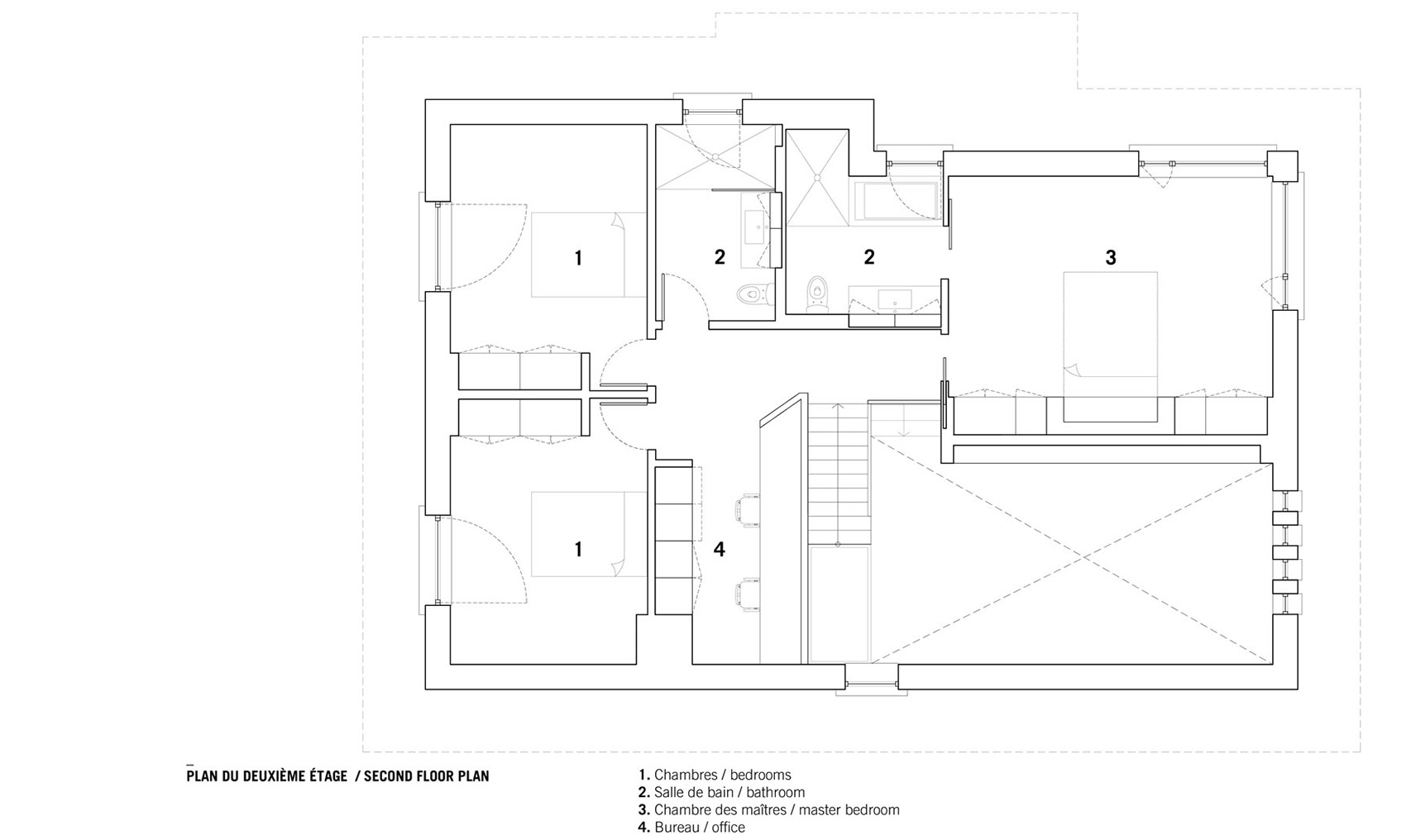
▼二层平面图,the second floor plan
Type: Single Family Home
Intervention: Complete Transformation + Landscape
Location: Outremont (Montreal), Qc
Date: August 2017
Area: 350 m2 brut / 3800 sqft
Photo Credit : Adrien Will¬¬¬iams
Video Credit : David Dworkind
General contractor : Sienna Construction
客服
消息
收藏
下载
最近






















