查看完整案例

收藏

下载
“The Ownerless House nº 01”坐落于巴西圣保罗州Avaré城,是三个相邻建筑之中的第一座。与往常独户住宅不同, 作为一个商业住宅投资项目,业主希望该住宅可以具备充分的空间灵活性,以适应未来不同居住家庭的各种需求。
The Ownerless House nº 01 is the first of three contiguous plots bought by the client with the intent of building investment houses in Avaré, a city in the interior of São Paulo. The single family housing projects usually turns to desires and particularities of the clients but in this case, the client being only an intermediary to the future resident, the program and space should be flexible enough to accommodate the most diverse families dynamics.
▼住宅外貌,exterior view
住宅打破传统,将由外至内的布局打造成一系列开放与闭合的连续空间,光与影配合着季节和天色的变化在空间里呈现出变化的律动之感。从外形上看,住宅如同矗立在场地中的雕琢物,斜面的红墙在平面上创造出透视效果,旅程便从这透视灭点开始。入口花园为公共空间与居住空间营造了良好的过渡,屋顶的镂空三角形照亮了其下的公共空间,一个悠闲长椅也被刻意放置于此,为街道观景提供了种种便利。
The entire project was designed not as an object but as a route back to the interior with alternating open and closed spaces where natural light and reflections change according to the time and the season. Viewed externally, the house presents itself as a sculpted recess into the built mass, where the leaning red wall directs the perspective to the beginning of the journey. The transition between public and private space takes place through a garden illuminated by triangles of natural light and finished off by a bench next to the sidewalk that invites to a practice very common in the cities of the interior: to sit and to observe the street.
▼入口花园为公共空间与居住空间营造了良好的过渡,the transition between public and private space takes place through a garden
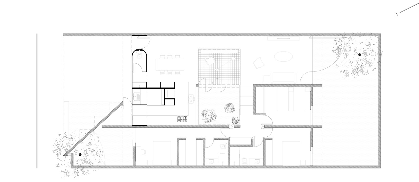
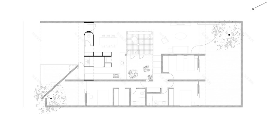
居住平面由一个60厘米长的坡度分为上下两个层面,其一容纳了社交和服务功能空间并与主入口直接相连。另一则容纳私密空间如卧室和卫生间,需经过一条台阶抵达。住宅入口设于立面的混凝土墙壁上。除作为住宅外墙外,该混凝土墙壁与内部隔墙共同围合成居住空间里的厨房,洗手间和其他服务性设施。
The small slope of 60cm on the ground was used to divide the program into two levels: the first one includes the social and service areas, accessed directly by the entrance, while the second are the private areas [bedrooms and bathrooms], accessed by a ladder. The entrance to the house is made by a lower right foot, leveled by the volume of apparent concrete that can be seen from outside. The volume enters the house through a curve and develops to organize the programs of the toilet, kitchen and service area.
▼居住与环境的互动,interaction of the living and the nature
客厅,餐厅和厨房围绕住宅中央的内置庭院展开,围合庭院的玻璃墙壁既限定了各个空间,又在视觉上拉近了各空间之间的距离。中庭及其外围区域于地面层略向下凹陷,并铺以亮丽多彩的液压瓷砖。
The living, dining and kitchen areas are spread out over a courtyard located in the center of the plan which, surrounded by large panels of glass, dilutes the limits by integrating them visually.
▼客厅,餐厅和厨房围绕住宅中央的内置庭院展开,the living, dining and kitchen areas are spread out over a courtyard located in the center of the plan
▼厨房和餐厅,the kitchen and dinging space
一方镂空的藤架顶置于中庭之上,该镂空区域各部分均由预制构件现场拼接而成,以保证其最终形态的同一性。这一建造方法参考了巴西建筑师Rino Levi的手法,他曾在市中心的混凝土居住建筑中使用类似的预制构件,使建筑入口更显轻盈通透之感。
Both the patio and its extension, a lowered floor of hydraulic tiles, are covered by a continuous pergola.These pergola elements were prefabricated individually on the bed and later assembled in order to facilitate assembly and save on shapes and struts.This technique was rescued from studies of the work of the brazilian architect Rino Levi, where the architect uses the prefabricated elements of concrete in residences in the capital to create light entrances in the middle of slab.
▼玻璃墙围合的庭院拉近了自然与人的距离,large panels of glass dilutes the limits by integrating garden and living space visually
▼一方镂空的藤架顶置于中庭之上,both the patio and its extension are covered by a continuous pergola
▼拾级而上到达居住层面,the private space locates steps upper
由于没有城市土地利用的强制性标准,住宅得以充分利用其场地资源。因此,该单层住宅的空间比例更好,外部区域更加紧凑集中,可利用率更高。避免了传统住宅建筑场地中的松散布局,和稀疏的种植环境。
The absence of mandatory setbacks in the urban plot of standard dimensions [10.6 x 20m] allowed the project to occupy its entire width. Thus, instead of a loose object with narrow plant and small lateral recesses, the single-storey house had better spatial proportions and more concentrated and profitable external areas.
▼夜色,night view
▼平面图,plan
▼剖面图,section
▼立面图,elevation
▼藤架细部,detail of the pergola
Ownerless House nº01
Local: Avaré, SP – Brazil
Year: 2016 Site Area: 265 m2
Built area: 180 m2
Photos: Pedro Kok
客服
消息
收藏
下载
最近









































