查看完整案例

收藏

下载
Chapter 1 写好的结局
Chapter 1 The ending that have been completed
一切都在变化,没有东西会消失。一家老上海的理发店转型女子生活体验中心,业主找到我们,他期待能在这里有所突破——创造一个符合当下流行趋势,又不拘泥于既有审美范式的设计。对Mur Mur Lab来说,每一次突破,都是在面对不同人的期盼中,不断探索建筑学与建造、设计与人关系的边界。在原有边界中创造一个完整的空间,这将是一个可以自洽的设计。就好像在房间里盖一个房子。
Everything is changing in each moment, but nothing will be disappeared. This project is about that an old Shanghai style barbershop wants to transform to be a women’s life experience museum. The customer found and told us that he looked forward to meeting a breakthrough here–to create a design which not only conforms to current fashion trend, but also not be limited in an old-school vision. The group members of the Mur Mur Lab always have to find some ways to figure out difficulties after much anticipate, so that they never stop their steps to research the relationship among the architecture, build, design and the humanity. The design which creating a new space in the original boundary will be a self-consistent design, like building a room in a house.
▼外观,exterior view
Chapter 2 空间即表演
Chapter 2 space is performance
场地是一个面向商业广场的三层小楼。立面像一个表情,代表着对周围的态度。而内部的空间,则可以自成一体,怡然自得。沟通是一种快速获得信息的方式,而内省是建立内部秩序体系的途径。空间,就像是在两种途径间建立起联系的空隙,和物体表达的媒介。最终的设计趋近真实的愿景,同时又希望建构一系列场景超乎想象。 我们说,空间像表演。自己就在演一出戏。一层空间像一个浸入式的剧场,水磨石包裹的地面和墙体沉稳厚重,自成一体,让你有种向上仰望的欲望,一片天幕。它像覆盖着舞台的穹顶,微微隆起,轻轻接触,一冷一暖像在对话。
The original site is a three-floors building, facing a commercial square. The building’s appearance likes a face expressing its attitude to the surroundings. And the interior space can become an entirety with a comfortable atmosphere. Communication is the fastest way to gain some information and the introspectiveness is the method to build internal order. Space, the gap be established between the communication and the introspectiveness, is a medium that the object wants to express something. The final design will close to the real dream, at the mean time, it will construct a series of incredible scenes.As Mur Mur Lab said, space just likes performance. The people who active in the space is performing. The space of the first floor just likes an immersion theatre, the ground which is wrapped by terrazzo self-contained with the thick wall. It let you have a desire to look up. It’s like a canopy. It’s slightly uplifted, which is like a dome covering the stage. Touch it lightly and the cold and the warm are like taking.
▼水磨石包裹的地面和墙自成一体,the ground which is wrapped by terrazzo self-contained with the thick wall
▼顶与地,一冷一暖像在对话,a dialogue between the ceiling and the floor
拱的要素既是覆盖,也是限定。在二楼,镂空的拱朝着不同的方向铺开,重重幕幕,空间像被拉开了几个层次;层层叠叠,又好似无尽。纺布是时装的展场。女朋友说,温和的曲率,柔软的包裹配上鲜花甜点,窝在这里美美的喝上一番下午茶的欲望都有了。空间的表情庄重有序,又可爱的一撩,露出两个小角,是一层的橱窗。反射着天光云影,坚硬的玻璃砖呈现出帷幕般的柔软肌理。平静之下,暗藏一段空间拼贴的叙事和戏剧性的冲突。
The arch is not only a cover but also a limit. On the second floor, the arches extend to the space in different direction.With one piece overlapping another piece, it makes the space become several levels.At the mean time, several arches also can cross to each other.It makes the space have no boundary. Under the decorate of the arches, the space seems like a fashion show. My girlfriend told me:” the mild curvature surround the flower and dessert softly, make people wanna stay here and have a tea-time.” The space’s face is not always serious. Sometimes we can find a kind of cute point in here. For example, there have a pair of corners on both sides of building, they are the showcase in the first floor. The shadow of cloud and sky is reflex on the tough glass brick and then soften it. Behind the calm, the conflict between the dramatic and the realistic of the space is concealed.
▼拱的要素既是覆盖也是限定, the arch acts both as the cover and to define the space
Chapter 3 未来商店
Chapter 3 The future shopping mall
未来商店是Mur Mur Lab一直在意的。而在这里,它更像是一种奇幻梦境的拼贴。空间与场地的环境,附近机场起落的轰鸣声与现状,童话和暗黑。一种魔幻非现实的感觉,一个展出梦境的未来商店。灵魂和现实的距离遥远,存在也是真实的。此时,线下可能是平静的,而线上热闹非凡。还有什么,比当下片刻的宁静更重要呢?空间用语言表达时候,总会显得苍白。直接用眼睛看见的颜色、形态,置身空间感受到的气氛、味道,体验的丰富度,在描述之下似乎都会略显不足。我想说,我们只能试图表达。
Mur Mur Lab always focus on the questions about the future shopping mall. In here, the shopping mall more likes a magical collage. The contrast between the space and the environment in the site, the slight noise from the airplane and the peaceful in here or fairy tale and the dark give people an unreal feeling. These contrasts afford a future shopping mall to exhibit people’s dream. The distance between soul and reality is far away. It exists and is true. At the moment, the offline maybe is calm, but the online is lively and extraordinary. What else is more important than the peace of the moment. When space is expressed in words, it always looks pale. The color and the shape which is seen directly with the eye and the richness of the atmosphere, taste, and experience of being in a sense of space seems to be slightly defective under the description.I want to say that i only can have a try to express.
▼空间里的温和曲率,the mild curvature
▼意向图,figure
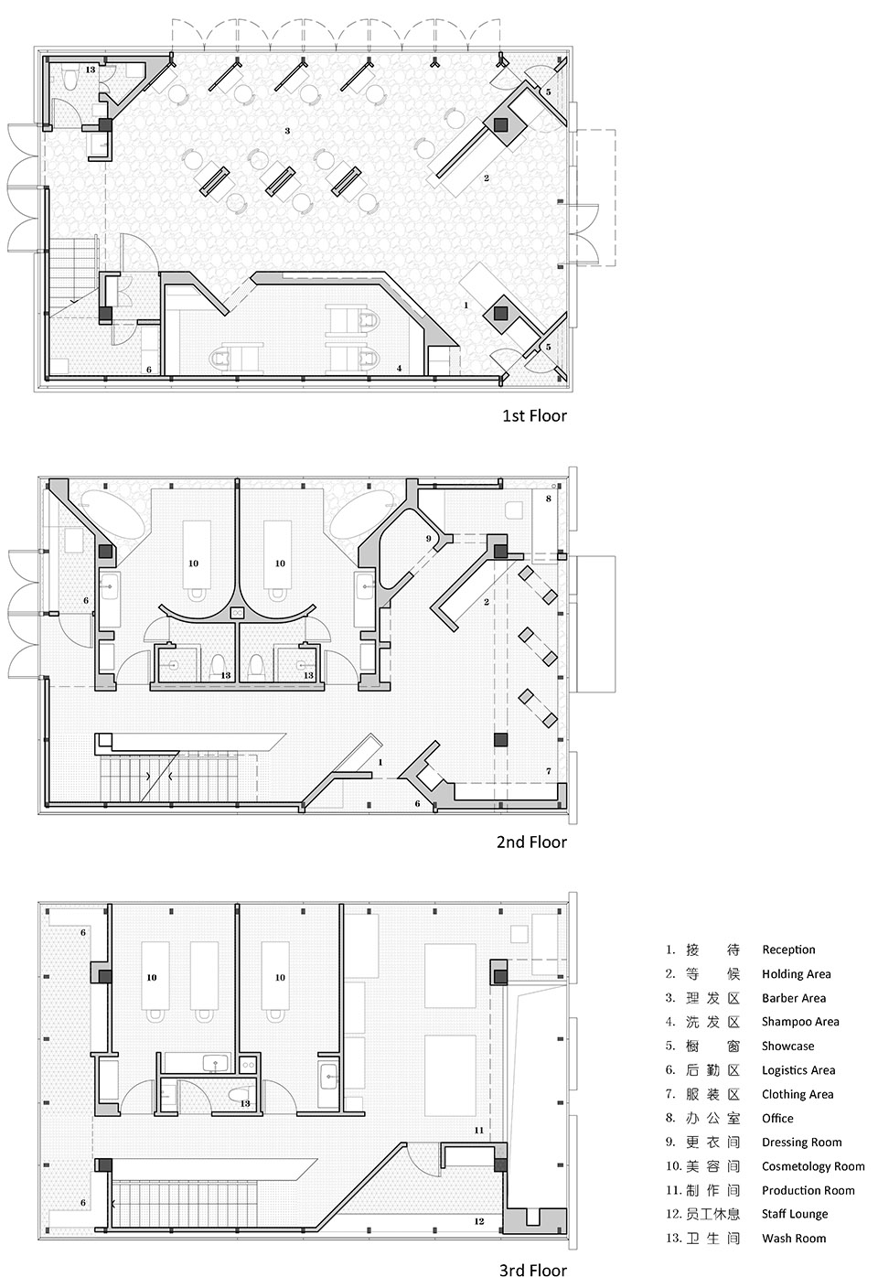
▼平面图,plan
▼剖面图,section
投稿项目介绍及项目信息:
项目名称:七月
设计公司:Mur Mur Lab
主创设计师:夏慕容,张弥,李智
摄影师: Arttteeezy, 四月
建成年份:2018
建筑面积:300㎡
客服
消息
收藏
下载
最近





















