查看完整案例

收藏

下载
故事Story 雁舍—顾名思义—大雁的家。一语双关,也暗指人们的栖息生活的场所。大雁归巢,游子回家。大雁归巢是雁之本能,游子回家是人之本性。这就是“雁舍”名字的由来。也许您并不了解雁舍,只要您来到这里就一定能感受到她的温暖,她的真诚。在设计之初我们就为雁舍确定了清晰的风格定位。
Goose Hut, as the name suggests, is the home of geese. Actually, it also implies the people’s habitat of life. As an old Chinese saying goes, geese fly to their home as people returning home. Returning home, the instinct and nature, shared by both geese and human beings, is contained in the name – ‘Goose Hut Bistro’. Maybe you do not know the Goose Hut Bistro, you will certainly feel her warmth and sincerity as long as you stepping into the restaurant. We set a distinct position for the goose hut bistro at the beginning of our design.
▼餐厅外观,exterior view
作为传统湘菜,雁舍怎么能从厚重的文化中“摆脱出来”?也许摆脱这个词用的并不恰当,但确实有很多传统的东西深陷文化的泥潭而不能自拔。湘菜也同样面临着这个问题,怎样把雁舍的湘菜发扬光大?那就只有创新,环境设计也是皆同一理,雁舍想要在环境上有所突破那就是要摆脱符号化的设计。
As a traditional Hunan cuisine, how can the Goose Hut Bistro get rid of the heavy culture? It might not be appropriate to use the word ‘get rid of’. But in the fact, there are indeed many traditional things stuck in the stereotype of culture and cannot extricate from it. Therefore, Hunan cuisine also face the same problem. In order to carry forward Hunan cuisine, it is a must that making innovations and changing the dining environment. What’s more, getting rid of the symbolic design and making a breakthrough on spatial design is our first goal.
▼空间是完美的矩形场地,the plan of this project is a rectangular site
用空间来表达文化,用空间来改变人的生活方式,这才是设计,这才是我们要解决的问题。本案的平面是一个矩形场地。完美的场地并没有给设计师带来设计灵感,越没有矛盾的空间就越难找到设计的切入点。房子和树是雁舍的视觉语言,即使找不到设计突破口我们也不能用粗暴的视觉手法来解决问题,我们希望能用空间来表达更深远的意义。
What is the interior design? Utilizing the space to express culture and change people’s lifestyles is real design. That is the responsibility the designer should take. The plan of this project is a rectangular site, which is not easy to bring designers inspirations and it is difficult to seek the design breakthrough to some extent. Houses and trees are the two major visual symbol of the restaurant. We could not solve the problems with brutal visual methods. Instead, we hope to make use of the spatial advantage to express a profound sense.
▼房子和树是雁舍的视觉语言,houses and trees are the two major visual symbol of the restaurant
中国人自古以来就有内敛的性格,炎黄子孙向来是一支勤劳善良的民族,所以从秦朝以来我们不断地建设万里长城来防御异族的入侵,那么无论是万里长城,还是故宫紫禁城,乃至四合院,空间上都是一种围合的内向型空间(当然四合院从气候有防止风沙的作用)。雁舍的场地结合功能正好符合四合院的空间特点。吧台的设计代表倒座房,后面的三组圆卡座代表正房,左边的两组长卡座代表着西厢房,右边的厨房和两个包间代表着东厢房。很多的事情都是可遇而不可求,那么雁舍的空间设计就偏偏遇上老北京四合院,那么院子中间的几棵树便成了空间的点睛之笔。
With the hardworking and kind-hearted feature contained in traditional Chinese culture, Yan Huang descendants have constantly constructed the Great Wall for defending against the foreign intruders. Since ancient times, Chinese people have introverted personalities. Speaking of the architecture, from Forbidden City to Beijing courtyard, the enclosed style has been applied to a large sum of buildings, which also plays an important role of preventing sandstorms from climatology. The Kitchen bar is kept as the service room; the three round sofas in the back of the restaurant represent the principal house. The left two groups of long sofas represent Western-wing house. The main kitchen and two compartments are regarded as Eastern-wing house. Fortunately, the spatial design of Goose Hut Bistro encountered Beijing traditional courtyard, then a few trees in the middle of the yard have become the essence of whole restaurant.
▼雁舍的场地结合功能正好符合四合院的空间特点,the spatial design of Goose Hut Bistro encountered Beijing traditional courtyard
▼围合的内向型空间,the enclosed style
▼后面的三组圆卡座代表正房, the three round sofas in the back of the restaurant represent the principal house
▼代表厢房的包间, two compartments are regarded as Eastern-wing house
鸟巢的设计是后加上去的,现在想来有些多余,很多的事情需要点到为止,如果能给人更对想像的空间岂不更为美好。当你来到雁舍的时候就会被她的味道所融化,不是剁椒鱼头,也不是肉汤泡饭,只是因为她能够成为你心灵的栖息之地……雁舍
The goose nests were added later, which seems a bit superfluous. It would be better if the design can leave people more imagination space. When you come to the Goose Hut Bistro, you will be melted by her flavor and design style. Not fish head with chopped pepper, not pork bibimbap but because of her atmosphere which can be your spiritual habitat.
▼树造型的装饰成为空间的点睛之笔,the trees in the middle of the space becomes the essence of whole restaurant
▼装饰细节,detail of the decoration
▼树形装饰细节,detail of the tree decoration
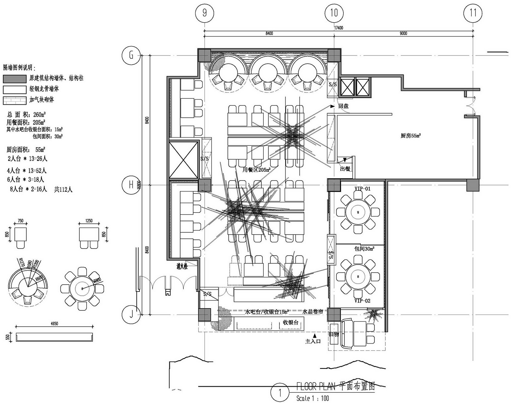
▼平面图,plan
项目名称 : 雁舍 (北京APM店)
Project name: The Goose Hut Bistro (APM Beijing)
设计师(公司) : 古鲁奇公司
Company: Golucci International Design
设计团队 : 利旭恒,赵爽,郑雅楠,马冬洁
Designer Team: LEE Hsuheng , ZHAO Shuang ,ZHENG Yanan ,MA Dongjie
客 户 : 雁舍
Client: The Goose Hut Bistro
项目位置 : 中国北京
Location: Beijing, China
项目面积 : 280平方米
Area: 280㎡
完成时间 : 2018年01月
Completion Date: Jan.2018
摄 影 : 鲁鲁西
Photographer: Luluxi
客服
消息
收藏
下载
最近
































