查看完整案例

收藏

下载
“我激动得说不出话来!这一切超乎了我的想象!梦想实现了…”该项目的委托人Daniela Fortunato在她的就职典礼上热泪盈眶地说道,如今的她既是一名模特,又是一名成功的女商人。项目最大的难点是要在预算极低的情况下(仅有6500欧元)打造一间多品牌的男装店。不仅如此,从初始方案到正式开店,设计师一共只有5个星期的完成时间。因此该项目后来被设计者戏称为“超超低价”。
“Speechless!!! My baby, my dream, surpassed and achieved…”with tears in her eyes, on the inauguration day, these were the words of client and friend Daniela Fortunato, model and now also businesswoman. It is words like these that motivate us and make us proud. The difficulty in creating and constructing an Architectural Work, especially in this case with an extremely low budget: €6,500 (six thousand, five hundred euros) for the design and implementation of a multi-brand men’s clothing store. Yes, just €6,500!! With the added constraint that we only had five weeks from the start of the project to the opening of the store. That’s why we nicknamed this project “LowLowCost”.
▼室内概览,overview
▼室内空间整体成型于雕塑般的单一体块,like a sculpture, the installation completely constructed from a single block of material
▼设计中没有添加任何多余的饰面、保护层或者涂色,there is no unnecessary finish, protection or colouring adopted in the design
设计师需要思考出一个能够给顾客带来惊喜和诱惑,同时便于快速建造的方案。最终,团队提出了“建筑装置”的概念来满足时髦而随性的店铺风格需求:室内空间整体成型于雕塑般的单一体块,不需要任何饰面、保护层或者涂色。建造的速度和即时性的影响成为了项目中首要考虑的因素,物质和材料等则成为次要的因素。为此设计师选用了朴素的定向刨花板(OSB)作为室内的辅助材料。
We had to think of something that would surprise and captivate the customer, and at the same time which would be quick to construct. We opted for the creation of an “Architectonic Installation” that would serve the chic/casual commercial needs. Like a sculpture, completely constructed from a single block of material that did not need a finish, protection or colouring. We intended to create an installation that had an instant impact, whereby its materiality would be a secondary consideration, with the need for something that could be created quickly always in the forefront of our minds. We opted for Oriented Strand Board (OSB) used in the building industry as a plain and auxiliary material.
▼入口区域,entrance area
▼饰品陈列区,accessories display
▼服装展示区,displaying area
片段式的“雕塑”带来一系列不同的空间,包括入口、服装展示区、柜台、饰品陈列区、试衣间和休息区域等。作为室内最末端的区域,休息区内包含一个小小的花园,中间种植着一棵象征生命和成长的橄榄树,为整个空间带来独特的自然气息。在成本和时间都极为有限的情况下,项目最终呈现出了令人惊喜而满意的结果。
The whole design is based on the implementation of a “sculpture” that is fragmented and creates spaces. Entrance, display, counter, accessories display, fitting rooms, and leisure area. This last zone has a differentiated and natural appearance, the sign of life and growth, a small garden at the centre of the installation with a single olive tree. The end product is surprising given the constraints under which the project was created, namely the price/deadline/result.
▼橄榄树为整个空间带来独特的自然气息,the single olive tree brings a differentiated and natural appearance
▼定向刨花板作为室内的辅助材料,the Oriented Strand Board (OSB) was used as a plain and auxiliary material
▼挂钩细部,detail of the clothes hook
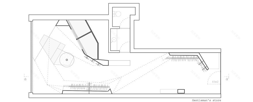
▼平面图,plan
▼剖面图,section
Architecture: Ernesto Pereira Daniela Leitão Tiago Martins
Construction and Coordination:
3r Ernesto Pereira . Arquitetura + (Re)construção
Painting: Marco Silva Joaquim Pinto Paulo Silva
Carpentry and finishes: Helder Moreira Joaquim Santos
Electricity: Bruno Moreira
客服
消息
收藏
下载
最近






















