查看完整案例

收藏

下载
Gateway Theatre是栖息在红山中心的多功能展演剧院,它以观者体验和社会参与为建筑主旨,服务于社会大众。剧院的正立面向Bukit Merah大街开放,穿行在街道上的人们可以在此驻足停留,感受与城市生活的亲密融合。
Nested in the heart of Bukit Merah, Gateway Theatre is a multi-performance venue where user’ experience and social participation are priorities. The front façade of the theatre opens up to the streets of Bukit Merah allowing passers-by and residents to peer into the building, giving it a sense of porosity and openness.
▼建筑外貌,exterior view
除剧院必备的演出场地外,人流导向和交通梳理也是建筑的设计重点。不同于以往的公共空间设计,Gateway Theatre强调了展演空间与社区环境之间的交流。建筑各层独立规划,且布局各自分明,为观众的体验和参与创造了条件。
As the building houses several performance spaces, crowd and traffic control were both important considerations. Breaking away from the traditional procession of formal and informal spaces, emphasis for Gateway Theatre was placed on the composition of spatial relationships between the performance and community spaces. Every floor was made unique and non-repetitive, each individually encoded to provide experiences that encourages interest and participation.
▼演出大厅,the show room
▼交通空间,the circulation space
相互交叠的景观营造由上之下连成一片,缓和了枯燥单调的大体量建筑空间。此外,位于六层的户外花园,将绿色引入建筑,也将建筑与城市景观融为一体。从空间布局来说,该剧院是可以同时容纳多场演出的公共活动空间。从功能上看,配套的景观规划将建筑还原于城市之中,建筑、景观和城市在此处交融。
Pockets of interwoven landscaped sky gardens that cascade down to the ground level help to mitigate the large scale of the block. Gateway Theatre also features a garden on the sixth floor, where greenery further melds and integrates the building with the surrounding urban scape. Composed of varying planes, it is an extension of the performance arena and can house several performances simultaneously. Functionally, the landscaped sections act as seamless ‘breakout’ spaces, catering for moments of community interaction.
▼交叠的户外景观,landscape design
▼位于六层的花园,the garden on the sixth floor
▼夜色景观,in the dark
▼平面图,plan
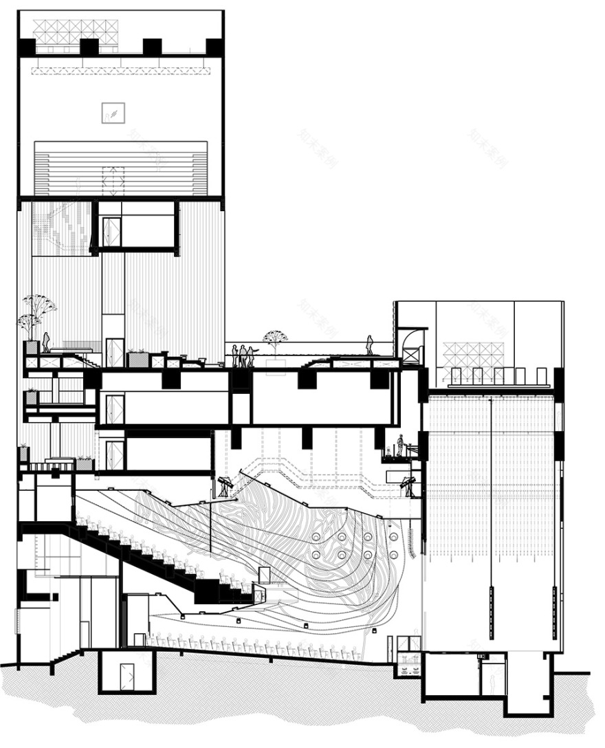
▼剖面图,section
GFA 4995.4m2
Site Area 1513.7m2
Completion 2016
Cost S$45,000,000.00
Architect ONG&ONG
Project Directors Ashvinkumar Kantilal & Andrew Lee
Landscape ONG&ONG
Mechanical & Electrical Engineering Rankine & Hill
客服
消息
收藏
下载
最近



















