查看完整案例

收藏

下载
这栋山上小木屋的设计灵感来自于当地传统建筑和周围的自然环境。应业主要求,住宅需满足温暖舒适的氛围,与自然环境建立良好的连接,保持空气流通,并承载三五好友的闲暇小聚。该住宅以简单和素雅的形式,营造了建筑与环境之间的共生关系。
Inspired by traditional shapes and the surrounding nature, the chalet design is a unique architecture tailor-made for its residents. The owners wanted a warm space, fit to host family and friends, in harmony with the environment, a space that breathes fresh air and replenishment. The GRAND PIC cottage offers, through simplicity and sober physicality, a unique experience of symbiosis between nature and architecture.
▼建立住宅与环境的共生关系,a unique experience of symbiosis between nature and architecture
该木屋采用了当地最优质的木材。早在设计之初,设计师们就体验了当地独特的地理环境并深受启发。独特的地势给予设计师充足的机会去挖掘周围环境的潜力,也给予设计师无限动力。因此,设计过程的每一步都试图最大化其环境优势。在步入场地之前,住宅设计便已经开始。一处空旷的停车场在距离建筑不远的地方安置,来访者可从此处穿越树林步行至住宅。
The design of the cottage results from a sensitive reading of the magnificent woods in which it is located. Before even starting to imagine the project, the objective was to let ourselves be guided and inspired by the terrain’s characteristics. This experience of the terrain, from the very start, allowed us to seize all the potential of the different ambiances that were present. These ambiances directed the APPAREIL architecture team’s work. Each move was influenced by a desire to optimise the space’s intrinsic qualities. Upon arrival at the site, beyond the building, the team considered the exterior spaces. In the periphery, the outfitting of a parking space allows residents to leave the car and give space to a pathway, from which the cottage emerges through the trees.
▼单调沉静的建筑外貌,the simple and black exterior
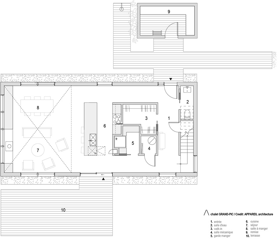
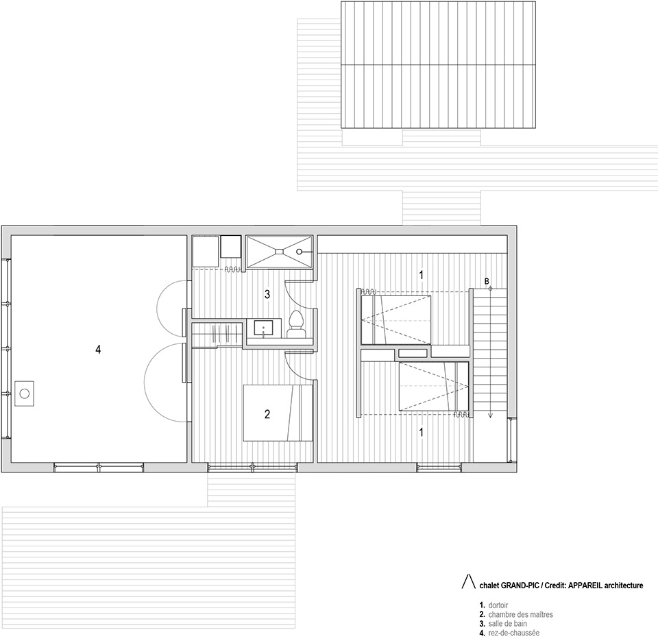
住宅平面环绕中心区布局。底层减少隔墙的使用,维持了空间的最大程度开放。储藏间的设置使得厨房成为住宅的核心区域。步入上层,核心区围绕客房形成。上层窗口给予客房一个良好的俯瞰视角,在此设计下,住宅内部获得了良好的自然光照和视觉联系。
The interior plane is organised around a central technical core. On the ground floor, the partitions were rendered minimally, freeing the living spaces. The kitchen, partially integrated with the core, benefits from a large storage space. On the second floor, the central core prolongs itself, this time into a dormitory zone for guests. Interior openings, overlooking the ground floor spaces, accentuate the influx of light and create a link between the two levels.
▼上层窗口给予客房一个良好的俯瞰视角,interior openings overlooking the ground floor spaces
与单调的黑色外貌相反,空间内部在开窗和材料的协助下呈现明亮而愉悦的氛围。浅色的木料奠定了明亮的空间基调,与户外的绿植遥相呼应。墙面的木质纹理和天花板更强调了当地的传统木屋。墙面木材来自俄罗斯进口。通过一个简单的设计,设计师为使用者创造了沉静而温暖的居住环境。不论是空间布局,细节设计或是内外墙材质, GRAND PIC木屋都回应了强烈的北欧风情。
In contrast to the black monochrome exterior, the interior overflows with light through its openings, and through the brightness of its materials. On the walls, the Russian plywood was highlighted. The omnipresence of light wood tinges the interior light, giving it similar characteristics to the light under the nearby vegetal cover. The wood’s texture on all walls and ceilings of the interior envelope allows the shape of the vernacular-inspired main interior volume to be accentuated. The objective of creating a sober and warm space for the owners was made possible through an architecture steeped in simplicity. As much through its volume and its design as through its exterior and interior coverings, the GRAND PIC cottage offers a timeless construction inspired by Nordic traditions.
▼与单调的黑色外貌相反,空间内部呈现明亮而愉悦的氛围,in contrast to the black monochrome exterior, the interior overflows with light
▼开敞式客厅和厨房,the open layout of the ground floor
▼木材营造温暖的内部氛围, the omnipresence of light wood tinges the interior light
▼交通空间,circulation space
▼底层平面图,the ground floor plan
▼上层平面图,the first floor plan
Collaborators :
Project name : Résidence GRAND-PIC
Location : Austin town, Eastern Townships
In-service date : March 20th 2017
Architect : APPAREIL architecture, Robert Lavoie, Kim Pariseau Contractor : Martin Coley construction
Woodwork : Niconova
Light design : Hamster
Photographer : Félix Michaud
客服
消息
收藏
下载
最近

































