查看完整案例

收藏

下载
“竹似贤,何哉?竹本固,固以树德,君子见其本,则思善建不拔者。”——引自白居易《养竹记》
自古以来,中国文人墨客都对竹情有独钟,多以其喻君子,常引于庭园居所造景,久之沉淀出一种独特的材质文化。无锡阳山田园大讲堂,就是一个以竹为主要建筑材料的设计作品。
“Indeed, bamboo is like a man of virtue. From deep and resolute roots, straight and honorable stems extend toward the sky. When a gentleman contemplates the nature of bamboo, only a feeling of integrity can come to mind.” Excerpt from Planting Bamboos, by Bai Juyi.
Since ancient times, Chinese writers and poets have shown a deep appreciation for bamboo. By praising the beauty of exquisitely crafted gardens, these gentlemen created an extensive cultural history immersed in a unique richness of textures. New Pastoralism’s Lecture Hall sits at Yangshan –a town close to the city of Wuxi– and uses bamboo as the main building element in its design.
项目位置
Project Location
无锡阳山田园东方是中国首个田园综合体项目,位于江苏省南部,太湖之滨的重要城市无锡近郊的中国水蜜桃之乡阳山镇。作为综合体内的标志建筑,田园大讲堂伫立于综合体园区的中心位置,融于田园,在其中持续生长。
New Pastoralism’s Complex at Yangshan, Wuxi, is the first pastoral complex in China. Located in Jiangsu –a province in Southern China–, Yangshan town is famous for growing delicious honey peaches in the suburbs of the renowned city of Wuxi, along the coast of the Taihu Lake. As the landmark of the complex, New Pastoralism’s Lecture Hall stands at the heart of the park, perfectly integrated into the pastoral scenery, almost like growing naturally from within.
▼远眺建筑,view from distance
建筑占地面积1618平米,由室内会场、室外休闲区和延伸绿化景观三部分组成。所在的位置原本是一片竹林,建筑师邹迎晞尊重场域基底,希望透过原生态材料建立讲堂与周边环境的对话,将对这个建筑本身的定义“田园宣言发声地”通过建筑本身表达、深化。
Composed by three distinctive areas, the venue’s indoors, the outdoors recreation area and an extension towards a vast green landscape; the construction covers an area of 1,618 square meters. Given that the location was originally a bamboo forest; the architect Mr. Zou Yingxi respected the foundations of the area, to establish a dialogue between the Lecture Hall and the surrounding environment through the use of ecological materials, expressing and strengthening the meaning behind the “Site of the Pastoralism’s Declaration”, in the features of the building.
▼设计理念,design concept
▼总平面图,master plan
结构
The Structure
建筑整体呈不规则的三角形形状,建筑体在视角上展开,使大讲堂拥有一个室内外融和的灰空间而非成为园区内的视觉阻碍物。与此同时,建筑用地轮廓响应三角形的斜边,上下以竹子连接,形成交叉的双曲面造型,旨在贯通视线,形成一个通透的空间,给人以强烈的场域感。这样,不论从哪个角度看,大讲堂都有其造型特征,但又不会显得喧闹夸张。
The building displays an irregular triangular shape. Observed from a distance, its body integrates the indoor and outdoor sections of the Lecture Hall into a grey structure that sits in the middle of the view to the park. At the same time, the contour of the area occupied by the structure equals the hypotenuse of its triangle. The upper and lower sections are connected with bamboo stems, as crossed elements that form a hyperbolical shape designed to penetrate the line of vision, forming a transparent space with a pulsating atmosphere. In this way, from every angle, the Lecture Hall presents unique and properly balanced modeling characteristics.
▼建筑整体呈不规则三角形,the building displays an irregular triangular shape
▼形成交叉的双曲面造型,a hyperbolical shape
材质
The Materials
“轻”,是大讲堂其中一个鲜明性格——材料轻质,结构轻盈。一方面,建筑以钢结构为骨架,上面的拱元素使屋顶更为通透,与天空实现“通融”。同时加入阳光板,将自然光线引进室内,并利用鱼肚梁结构解决了跨度的问题。另一方面,建筑以竹子作为围护体系,竖向支撑排列既富有一种序列美,又相当于钢索对上方结构产生反向拉力,最终达到一种矛盾抵消的结构平衡。
“Lightness” is one of the distinctive features of the Lecture Hall –light materials, nimble structure. On the one hand, the building is made of a steel structure; the arched elements on the upper level make the roof even more transparent to “give way to” the sky. At the same time, the use of sunlight panels allows natural light to penetrate indoors, while the use of fish beam structures solves the span problem. On the other hand, the building uses bamboo as a protective system. Its vertical support arrangement shows a rich and beautiful sequence, equivalent to a rope structure that creates reverse tension, eventually achieving proper balance of contrary forces to offset the structure.
▼竖向支撑排列富有一种序列美,its vertical support arrangement shows a rich and beautiful sequence
▼通透的屋顶,the transparent roof
选材理念
Materials Selection
整个项目以“通融”为理念,解读景观、人与建筑、人与环境、材料与景观通融的方式与意义。竹子虽然丛生,但并不影响空气流通和光线穿透,而竹子之间的孔隙以及本身的纤细,产生的就是“通”和“融”,从而使被田园风光环绕的开放性空间得以创造。无疑,竹子就是场域周边最佳的对话角色。既带来安全感,又不会约束视觉,同时赋予大讲堂一种独特的气场,使其仿佛是从这片土壤中生长出来,自然而不突兀。
The entire project is based on the concept of “integration”, of interpreting landscapes, people and architecture, people and the environment, as well as materials and landscape. The large number of bamboo elements does not affect air circulation or air penetration, as the holes between the bamboo stems and their thin dimensions produce effects of “permeability” and “integration”, making the pastoral scenery harmonize with the structure, giving the sensation of an open space. Undoubtedly, bamboo magnificently represents dialogue with the surrounding area, delivering a sense of security, without compromising the appreciation of the visual atmosphere, granting the Lecture Hall with a unique aura, almost as if it were growing from the soil itself, as a natural and unobtrusive living being.
▼竹与环境的对话,dialogue with the surrounding area
▼竹木细节,bamboo
可持续/环保
Sustainability / Environmentally friendly
换个角度,竹子贯穿项目始终,本质上这就是一座竹子的生态建筑。竹子空心的特点被巧妙利用,形成空中风铃一样悬挂的竹灯具;竹子与木板组合构成吧台的延展面;竹子与麦秸板结合应用于建筑外立面……建筑师通过转化重译,将竹子这种本地材料转变为可持续建筑的表达语言,搭建田园里的精神堡垒。
From yet another perspective, the fact that bamboo elements are present from beginning to end in the project denotes an ecological nature. The hollow nature of bamboo is cleverly used to hang beautiful bamboo lamps, while bamboo and wood are combined to form an extension of the bar; also, bamboo and strawboards are used to build the façade… The architect transforms bamboo, from a simple local material, into the very definition of an expressive language for sustainability in buildings.
▼夜幕时分,in the dark
事实上,项目中使用的竹子是经过了前期处理,包括烤干取直、刷漆等,很大程度上提高了材料的质量和耐久性,节省了后期维护成本。另外大讲堂地面采用的是回收地砖,建筑师认为可再生就是尊重自然,对未来负责,建筑“随时间推移和周围环境的互动始终能被接受”。
In fact, the bamboo used in the project was treated with specialized processes including straitening by drying, lacquering, etc., to improve the quality and durability of the material, extensively reducing maintenance costs. Additionally, the floor of the Lecture Hall uses recycled floor tiles, showing respect for Nature through the appliance of recycled materials, as one of the principles of the architect is to be responsible for the future, “allowing architecture to interact with its surrounding environment over the course of time.”
▼“通”与“融”,the close connection with nature
“只有在空的地方产生装填的内容才对建筑产生了最终的解释,相当于用自然材料、用空的空间解读实空间,所有的实都是为空服务的。”当设计师有无相生的设计哲学观与田园哲学观碰撞融合,田园大讲堂是空间维度城乡互动的新尝试,也是时间维度可持续建筑的新探索。
“The final interpretation of a building can only be achieved through the provision of definite content into its empty spaces. In this case, this implies the use of natural materials that portray real space on empty spaces, while every notion of reality serves emptiness at the same time.” When the designer harmoniously unifies incompatible design philosophies with the ideology of pastoralism, the result is an amazing example of unification between urban and rural dimensions, generating a new concept of sustainable architecture.
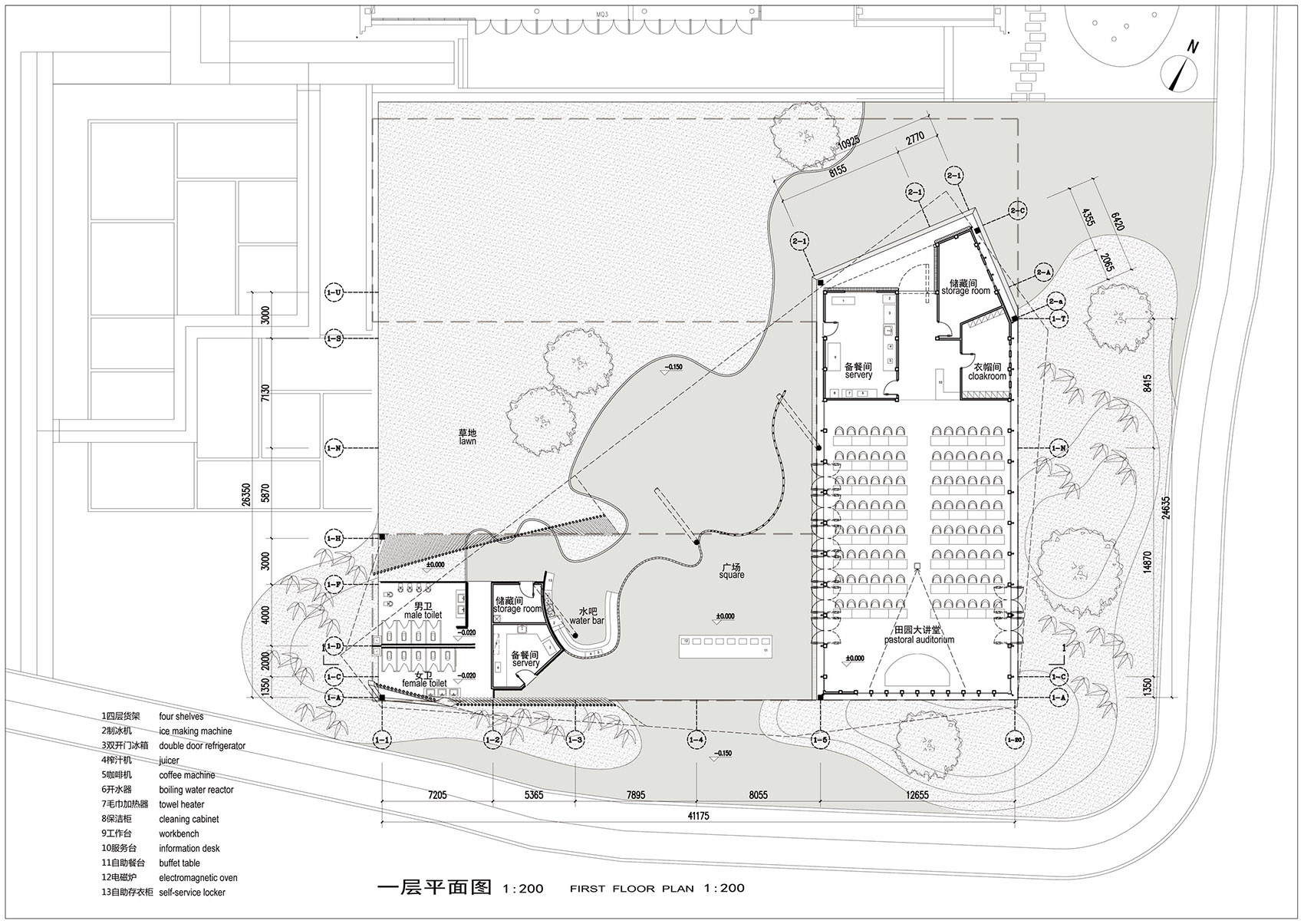
▼一层平面图,the first floor plan
▼屋顶平面图,the roof plan
▼屋顶造型平面,the roof structure
▼立面图,elevation
▼剖面图,section
项目名称:无锡阳山田园大讲堂
主持建筑师:邹迎晞
项目设计:袈蓝建筑设计事务所
设计团队:刘建生、谢阳
委托方:田园东方投资有限公司
项目类型:新型城镇化·田园综合体建筑配套
占地面积:1618㎡
设计时间:2014年9月
项目坐标:江苏/无锡阳山
建筑面积:800㎡
项目状态:2014年12月建成
施工方:华诚博远建筑工程有限公司
摄影师:本末堂/彦铭(BenMo studio / YanMing)
Project name: New Pastoralism Lecture Hall, Yangshan Town, Wuxi, China.
Principal architect: Zou Yingxi.
Project design: SYN architects.
Design team: Liu Jiansheng, Xie Yang.
Commissioned by: New Pastoralism Investment Co., Ltd.
Project type: construction complex based on a new urban and rural harmonized concept – Facilities for a Pastoralism Complex.
Project area: 1,618 square meters.
Date of design: September 2014.
Project location: Yangshan town, Wuxi, Jiangsu Province.
Construction area: 800㎡.
Project status: completed in December 2014.
Construction company: Huacheng Boyuan Construction Engineering Co., Ltd.
Photographer: BenMo Studio / Yan Ming.
Chinese & English text: SYN architects.
客服
消息
收藏
下载
最近
































