查看完整案例

收藏

下载
场地的挑战 | The challenge of site
记得初次踏勘,我们看到几乎一片空白的场地。新的开发区,新的工业园,千篇一律的新建厂房,找不到与城市,场所或是历史的一点联系。这可能也是在中国广大次达地区的建筑实践中常常面临的问题,一片虚无的现状切断了通往永恒的道路。于是,设计的挑战转化为:如何设计一个有内在生命力的独立世界,以抵抗虚无的边界。为此,我们需要重新向聚落和自然学习,这种思考方式在中国有着漫长的传统。
It was almost in a vacuum at the first time we got to the site. There was nothing but brand new industry park and buildings, which had no link to the city, site and history. It’s maybe the most common problem we shall solve in China. The present situation in vacuum cut down the way to the eternity. To create an individual and dynamic world to resist the nihility, we shall learn from settlement and nature. It has a long history in China.
▼轴测图,axon
聚落的格局 | The pattern of settlement
虽然处于物理环境定义下室内区域,我们仍将设计作为一个整体的建筑群进行考虑。这样的方式在开始就天然赋予了它一种城市密度的概念,一个内向空间的自治模式。它延续着我们持续关注的试验方向:在内部重新划分内与外的秩序,并以一种抽象的方式介入。
Despite being indoor area, we’d like to regard it as an entirely arch complex. In the way, the site is endued with the city density and autonomy. The ambiguity with indoor and outdoor space is also the research we discuss consistently.
▼空间概览,overview
▼由拱形组成的内向空间的自治模式,the internal space was designed as an entirely arch complex
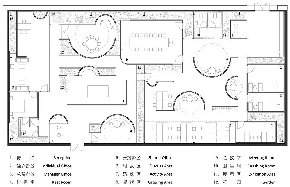
功能被区分为私密和公共。私密指向那些功能明确, 完整围合的独立房间,它们的独立性被不同方向的坡度顶在视觉上强化出来。公共代表那些没有定义的中性区域,它们被模糊的称为前厅,讨论,聚会,展示,休息……它们对空开敞,被墙体划分为尺度各异的“街道”,又放大为一个“广场”,或缩小成一处“巷弄”。以这样的方式,空间获得了一种可贵的城市属性:街道串联起公共节点,房屋沿线分布,绿地间隔其中。
The functions are divided in two parts, Private and Public. Private area refers to some individual rooms in specific functions. Public area represents the space in vacuum, including hall, meeting, exhibition and relaxing. Public area includes several streets, squares and lanes, which are divided by walls in straight lines and curves. In the way, site is reorganized with urban character.
▼开敞的公共区域,the open public space
▼形态各异的墙体将公共区域划分为不同尺度的“城市”空间,the public area is divided by walls in straight lines and curves
借用一些城市术语描述空间并非为了字面的取巧,更多是对行为的判断:步入空间,眼前展现出弯曲的廊道,放大空间,角落,门洞和高塔错落有致,人们不可避免的相遇,聚合和冲突。共享和私密,有序或随机,目的与巧合,适当的密度赋予行为多义的可能。
To describe the space, we use some urban design terms. It’s because the judgment of human’s behaviors. We will meet, gather or conflict in the space. Proper density gives us more possibilities.
▼错落的空间使人们不可避免地相遇、聚合和冲突,the walls present alternately to make people meet, gather or conflict in the space
有趣的联想 | Interesting imagination
这里是一座城市,也是一片花园。新的隔断与外墙之间留出空隙,是办公室的后花园;笔直的绿化沿着片墙,消失在弧线的转折里;圆形的天花散发柔和的光,像是一个个天井。这些关于园林的联想在空间中不断出现,持续的提示着自然。
Here is a city, and also a garden. The gap between old and new is the back yard of the office room. Greens belong the straightly walls, and lighting ceilings are just like courtyards. The imaginations of garden exit in the space, telling a story of nature.
▼设计师为空间赋予了城市的密度和特征,the design provides the space with an urban density and scale
▼偶尔出现的盆栽和绿植为空间带来意趣,the green plants happen to appear, which brings interest and charm to the space
以设计的意图,留白的区域应是室内的景园,布置上盆栽植物,一眼望去,由近及远,层层叠叠。这个想法最终没能实现,业主零散的摆上了几盆琴叶榕,疏疏朗朗,偶尔冒头,也别有意趣。我们最后一次来到场地,它还没有投入使用。那些曲曲绕绕的街道中,那些眼眼相望的景窗里会发生些美好的故事吗?这可能就是一座梦中的花园吧。
The vacuum indoor is purposed to be an green garden, with potted plants. Somehow the idea hasn’t come true. Instead, clients settle a few microcarpa, just like traditional Chinese paintings. It hadn’t been used at the last time we got to the garden. Will the fairy tales come true in the meandering streets? Maybe it is just a dream garden.
▼室内细部,detail of the interior
▼模型,model
▼模型细部,model detail
▼空间体块示意,massing diagram
▼平面图,plan
客服
消息
收藏
下载
最近





















