查看完整案例

收藏

下载
该项目的最初计划是对一个三口之家进行改造,以方便孩子未来的生活。然而,当男主人看到改造图图纸之后,改变了初衷。受住在附近的父母所影响,业主认为如果和父母分开居住会损失很多快乐,因此初为人父的他萌生了给予女儿更多贴心照顾的想法,决定买下相邻的土地,建一个更大的房子让女儿和自己一起居住,直至组建她自己的家庭。
After living with his parents till the time he has his own family, our client moved out to his own house located opposite his parents’. The very first intention of our client was to renovate the existing house to be suitable for his first-born daughter – Meena. However, after the completion of architectural drawing, our client changed his mind. From his experience, it is not pleasing when it comes to living apart from his parents. Being a new parent makes our client become truly thoughtful about his daughter and her future. Therefore, he bought another land opposite his house and next to his parent’s house, with an effort to create a place where he can live with his child Meena till the time when she has her own family.
▼项目概览,overview of this project
传统背景和现代背景
Traditional & Modern Context
在建立曼谷以前,泰国人一直生活在由祖孙三代共同构成的大家庭里(有时候还包括叔叔、阿姨)。这种居住模式也对泰式住宅风格有很大影响。传统的泰式住宅包括一系列独立的小房子,以满足在一起生活的不同家庭。这些房子被杆子架起,以远离地面,不仅可以起到通风降低温度的作用,还可以避免洪水侵害,以及野兽袭击。架空的地面部分,则可以用作停车或储物。而真正的居住生活则是从被架起的第一层开始。这种做法不仅可以提高生活质量也可以增进家庭成员之间的关系,同时,也能够使每户拥有个人的独立空间。然而,泰国当今的发展模式严重影响了人民的传统生活。土地价格飞速上涨迫使家人分开。人们要么搬入了靠近工作地点的小公寓;要么只能负担郊区的半独立别墅。由此现产生出的问题就是:在当代背景下,人们是否还可以享受到传统泰式房子带给家庭的幸福感呢?
Long before Bangkok established, Thai people live in a big family which consists of grandparents, father, mother and children (and sometimes including uncle and aunt). The way of Thai’s life has influenced on the architectural design of Thailand. A traditional Thai house in general is composed of a variety of small detached-houses in which each small family lives, and a patio in a middle of the houses, where connects each family together. The house sits on poles which creates a high open space under the house, allowing good wind flow to pass through and lowering temperature inside. In addition, protecting the dwellers from flood and wild animals. Therefore, this ground floor is mainly for parking and storage. While, the residential area is on the first floor of the house where life starts. The attempt is to enhance living quality as well as family relationship; meanwhile, individuals still have their own private space. Nonetheless, the modern context is full of complexity creating complication in Thai people’s life. Land prices soar in capital forcing people to live apart from their family. Modern people tend to move into micro apartments nearby their workplaces or to small detached-houses outside the city where the land prices are still affordable. The question is whether or not it is possible that we could create a house which brings back the comfort of traditional Thai houses to the modern context.
▼场地鸟瞰,aerial view of the site
▼业主父母家、业主既有房屋和新建房屋之间的布局关系,the relationship between the house of client’s parents, his existing house and new building
家族土地意识和建筑执行能力
Perception of The Family Land & The Architectural Execution
该项目基址位于业主父母家附近的街道旁,也正是业主长大的地方。面积640平方米,秉承现代泰式建筑理念,建筑师对这片土地进行了最大限度地开发。通过L型建筑形式和抬高居住空间的手法将首层架空,用于储物和停车(10个停车位的空间)。并且拆除了新住宅和业主父母家的住宅之间的墙,取而代之的是在原有花园的基础上补植了更多的植物,加强了两所住宅间的联系。
The land is located on the corner of a road, and next to the house of client’s parents where he grew up. With an area of 640 square-meter, the architect embrace the concept of traditional Thai architecture to the planning to maximize this limited area. By creating L-shape building and lifting all residential spaces to the upper floors; leaving ground floor free for storage and parking area of ten cars. The wall between the parents’ house and the new one is eliminated and filled with a big new garden along the existing garden of parents’ house to create consistency of space.
▼建筑空间改造及整合分析,spatial integration and transformation analysis
▼建筑外环境,outside the building
▼建筑入口及车库,entrance and garage
▼内庭院, interior garden
▼内庭院休息室,rest room of interior garden
▼休息室内部,interior of rest room
▼休息室周边景观,the surrounding landscape of rest room in interior garden
▼入口木质推拉门细部处理,the details of wooden door at entrance
▼由一层到二层的过渡空间,transition between ground floor and first floor.
根据业主的设想,建筑师将这栋住宅分为了四层。第二层供业主使用,第三层供他的女儿未来组建的家庭使用。因此,为了能够能满足这个大家庭(包括女儿未来的家庭)。首层成为了焦点。在这层,设计师设计了供休闲娱乐用的房间、大露台以及游泳池作为全家人活动的公共空间。另外,受传统泰式住宅启发,还在游泳池和抬高的种植池之间种了一棵树,使其可以从建筑空隙中生长出来,围绕着游泳池营造出了河岸的效果。同时,阳光也可以通过树木生长的空隙中渗到地平层的种植池中。而站在大露台上,业主可以看到游泳池、抬高的庭院、树梢、父母的庭院和房子。这样的设计手法不仅是为了使业主能感觉到和父母紧密相连,同时能为业主的女儿提供一个大的嬉戏空间。
Regarding client’s wish, the architects divide the floor planning of four-storey house. The second floor is meant for the client’s family, while the third floor is for his daughter’s future family. Hence, in order to gather everyone in the family (and his daughter’s future family) together, the first floor is a focal point. On this floor, there are an entertainment room and a grand patio which become the common area for the client’s family (and also the future family). Furthermore, this floor is inspired from a traditional ground level in which natural elements are closely surrounded. Ranging from the swimming pool on the same floor which reflects a riverside sensation to the elevated yard across the swimming pool. The gap between the swimming pool and the elevated yard allows a tree from the ground floor to grow through. Also, allowing sunlight to stream in a glass pavilion (gardening pavilion) underneath. On the grand patio, users’ eyesight will be led to the swimming pool, the elevated yard, the top of the tree (grew on the ground floor), the existing garden of parents’ house, and to the parents’ house, respectively. The intention is to make our client feel close to their parents. As well as to lay down watching Meena running around on this grand patio, like on a real ground.
▼远观上层居住空间,view the residential area
▼室外的大露台是孩子的活动场地,the grand patio is the kid’s playground
▼二层的游泳池被周围植物环绕,形成河岸的感觉,a swimming pool on the second floor are surrounded by plants,reflect a riverside sensation.
由于场地的东侧是一栋八层的公寓,为了避免窥视,保护业主隐私,设计师在建筑这一侧设置了尽可能少的开窗。回到首层,可以看到位于东侧的木质门入口。位于同一侧的二层是一组木质落地窗,该落地窗打开的时候可以保持通风,关闭的时候可以保护内部隐私。对于材料的选择,该建筑的每一层都有其特殊考虑,包括木质、石质的围墙或仿石制的铺装或贴面。这些精心使用的材料组合不仅使建筑立面具有独特的个性,也使它与周边环境完美地结合起来。
East side of the land is opposite the eight-storey economic apartment. Therefore, the architects conceal the house on this side, in order to block unpleasant view as well as to protect the residents from prying eyes, by providing windows or voids at the minimum number. Back to the ground floor, there is a main entrance on the east side which is made of solid wood. While on the first floor, on the same side, there are floor-to-ceiling wooden-grill window pivots which can be opened to allows ventilation, and can be closed when privacy is in need. In terms of material selection, each floor of the ReGEN House features different materials, such as wood, stone-texture coated wall and stone-like tiles. This material combination creates a uniqueness to the facade which still fits into the surrounding context.
▼东侧公寓与该建筑的关系分析,sight line analysis between the eight-storey economic apartment and this project.
▼打开二层的落地窗,业主可以看到对面父母的房子,open the windows,the clint could see his parents on the opposite of the street.
▼关上落地窗,营造内部私密空间,close the windows,to produce a private space.
▼在三层环顾四周,look around on the second floor
▼建筑的空隙为植物生长提供了空间,并且营造了通透的采光效果,the interspace of building provide space for plants growing and let sunshine come into interior building.
▼环顾四层周边景观,look around on the top floor
▼多样的建筑材料,diverse materials
▼二层起居室,living room on the first floor
▼浴室及洗手间,bath and washroom
▼楼梯间,staircase
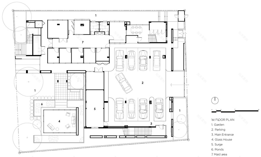
▼一层平面,first floor plan
▼二层平面,second floor plan
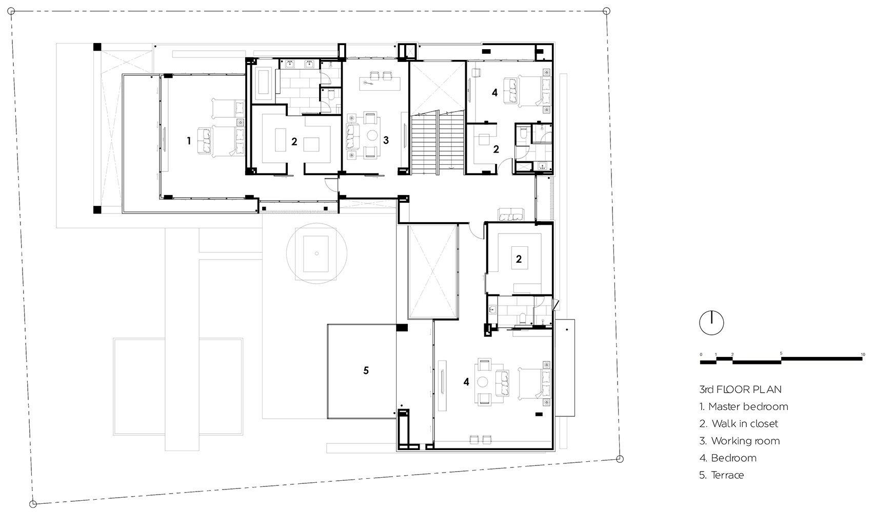
▼三层平面,third floor plan
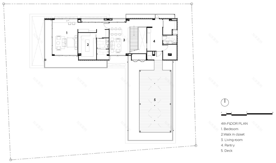
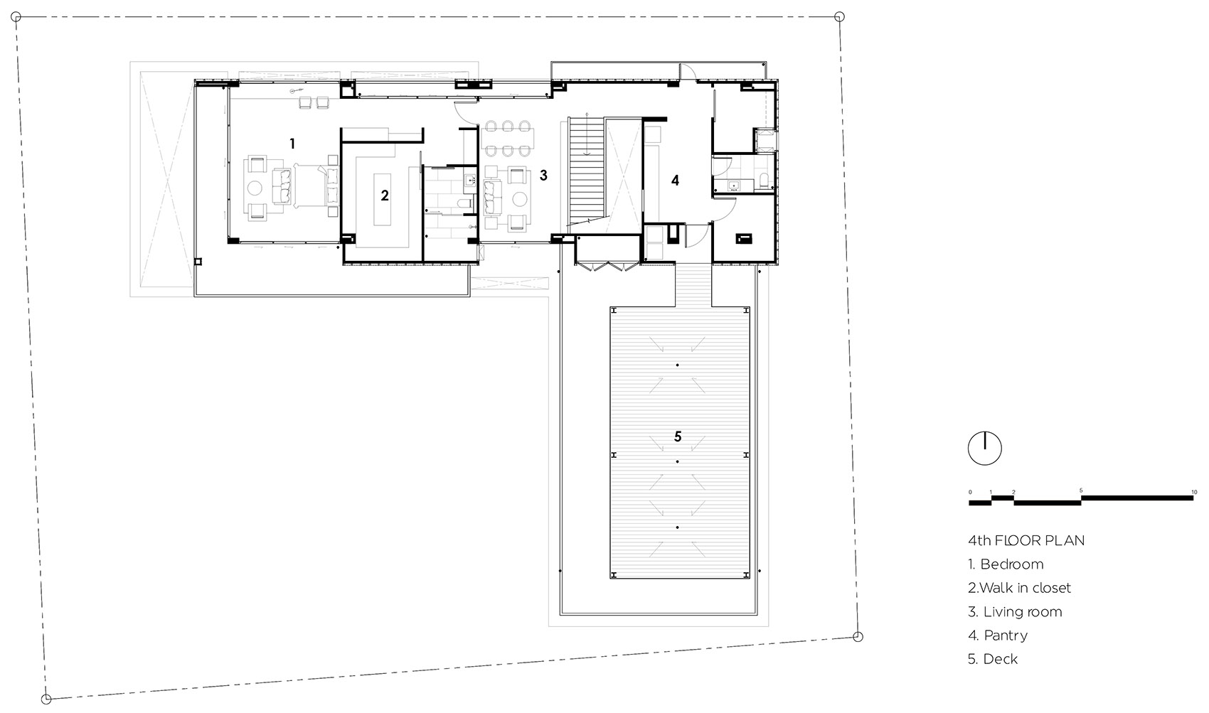
▼四层平面,third floor plan
▼屋顶平面,roof plan
▼立面一,elevation 1
▼立面二,elevation 2
▼立面三,elevation 3
▼立面四,elevation 4
▼剖面A,section A
▼剖面B,section B
Building Type: Residence
Area: 1,726 sq.m.
Land Area: 1,064 sq.m.
Owner: Pankwan Hudthagosol
Location: Jaransanitwong 75 road, Bangplat, Bangkok, 10700 Thailand
Duration: 2013-2017
Architect: EKAR
Interior Architect : Define Studio
Landscape Architect : Groundsplay Studio
Structural Engineer: Sommuek Apiraksa
Photographer: Chalermwat Wongchompoo
客服
消息
收藏
下载
最近















































































