查看完整案例

收藏

下载
@Batubata是印度尼西亚的一所建筑及室内设计公司的办公空间。这间工作室是建筑师团队继一座小型住宅后设计的第二栋建筑。既有的建筑坐落在一片混乱无序的环境当中。
@Batubata is an office for architecture and interior firm based in Indonesia. This studio is the second building, which the first one was previously tend to be smaller and located among residential area. This current main office is located in a scattered and uniquely disorganized surroundings.
▼数座体量环绕着一块空闲的场地,building masses are spread out on the sole of the land and sparing an empty space in the middle
▼不同功能被划分到不同的体块之中,the functions are divided into several building mass
▼细部,detail
在设计用于日常办公的工作室时,建筑师将地理位置和周边环境作为项目的重点。附近的房屋有着适宜的尺度并向外扩展,工作室所在的建筑也按照同样的尺度分布在群楼之间。建筑师没有将空间全部集中于一栋楼内,而是将不同功能划分到几座体块之中。这几座体块分散在地面,并在中间形成一块空闲的场地,承担中央庭院的功能,使人想起办公室既有的绿色空间和有趣氛围。
In designing a new studio for our daily workplace, the location and surrounding situation become the main concept. The typology of the neighborhood buildings are spread out and moderate in size. Along with the order of the surrounding buildings, this office also explains aspread in moderate-scale building. Compared to making all rooms into one building, the functions are divided into several building mass. Building masses are spread out on the sole of the land and sparing an empty space in the middle. This spare space in the middle function as in inner court that reminds us the green and amusing ambiance of the previous office.
▼从室内望向庭院,courtyard seen from the internal space
▼立面上的窗口被尽可能地减少,minimal openings are intentionally formed in the façade of this building
▼室内空间,interior
▼走廊,corridor
▼天井引入阳光,atrium brings the sunlight in
▼交通空间,circulation
砖材作为建筑中最重要的材料,带来了一系列良好的特质:取自当地,维护成本低,环境友好且与周围环境融为一体,在突显自身的同时给人留下好的印象。根据业主之前的经验,在视野不佳的环境下工作会更有效率,因而建筑师尽可能减少了立面上的窗口。如果职员在房间内感到倦怠和无聊,他们可以自由地走到室外,让心情变得焕然一新。
The use of bricks as the main important materials of the building gives a various good characters. Bricks is a local material which typically low maintenance and environmentally friendly since it blends well with the surroundings. It gives a good impression towards its emphasis and blending in at the same time. According to their previous experiences, working without view is much more effective, therefore minimal openings are intentionally formed in the façade of this building. If the employees feel a little too unexcited or boring inside the rooms, they are free to work outside of the rooms to freshen up their mood.
▼砖砌立面与周围环境融为一体,the brick facade blends well with the surroundings
▼水池,pool
在整座建筑中,最有趣的一个部分是光线的反射带来的阴影。每一天、每个小时的光影都有所不同,从而为每个人带来不一样的心情和体验。
From all of the parts of the building, the most interesting part is the reflection of the light that creates shadows through the building. The light and shadow reflection are different every hour everyday, thus it gives different experience and mood everyday.
▼光影成为建筑中最有趣的部分,the most interesting part is the reflection of the light that creates shadows through the building
▼每一天、每个小时的光影都有所不同,the light and shadow reflection are different every hour everyday
▼光影细部,detail
▼夜景,night view
▼体块示意,massing
▼体块成型示意,massing development
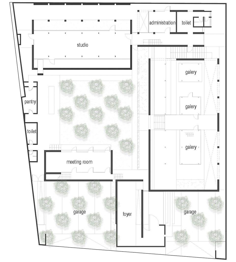
▼首层平面图,ground floor plan
▼二层平面图,upper floor plan
▼地下室平面图,basement floor plan
▼剖面图,sections
客服
消息
收藏
下载
最近





















































