查看完整案例

收藏

下载
Doge是一座为年轻创业者们设计的办公大楼,这座5100平方米的建筑位于法国里尔杜勒河上游的联合开发区,地处欧洲科技中心的核心地带。在2011年的项目竞赛中,委托方给出了严格的条件限制,要求在建筑中使用与周围建筑相同且符合当地历史的赤陶土材料。2017年,由Atelier Tarabusi设计的大楼终于亮相,为我们展示了一个别具匠心又切合主题的设计方案。
The Doge, a 5,100 square meter office building, intended to welcome young startups, is situated in
the joint development zone of Rives de la Haute Deûle in Lille, in the heart of EuraTechnologies. The architectural competition in 2011 imposted a strict limitation, requiring the use of terracotta, historic materials from
the immediate surroundings and the region. The structure designed by Atelier Tarabusi, and handed over in 2017, proposes
a unexpected, inventive and pertinent architectural approach.
▼建筑外观,exterior view
▼主立面,street facade
建筑场地位于Le Blan-Lafont工厂的对面,其周围是一些大尺度的工业建筑,大都经历过修复,或者正在改造当中;另外还有一些小规模的工人住宅。最近,基于联合开发区的城市规划,场地附近又新建了一批中等规模的建筑。除了个别一些地方,整座建筑只使用了赤陶土一种材料,使不同的体量和功能在多元化的城市语境中实现了联系和统一。不同于以砌砖作为饰面的混凝土建筑,建筑师别出心裁,利用“整块的”类似于单层巨型空心砖的赤陶土材料(常用于农场建筑和单体住宅),打造出一系列新的建筑结构。
Just across from the old Le Blan-Lafont factory, the environment is characterized
by the presence of large industrial buildings, which are either rehabilitated, or undergoing transformation; and by the small scale
strips of workers housing. More recently, urban planning linked to the Haute Deûle joint development zone has introduced
a rich array of intermediate-size structures to the area. With a few exceptions, only one material, terracotta, available in various forms,
unifies and connects the different volumes, programs and periods, within this urban diversity.
Eager to offer something other than
a brick-clad concrete building, Paolo Tarabusi’s unique design choice was to
make use of a line of building elements from “monolithic” terracotta, sorts of onestory high, giant hollow bricks, typically used
for farm buildings and individual houses.
▼入口,entrance
▼整座建筑几乎只使用了赤陶土一种材料,with a few exceptions, only one material, terracotta,
unifies and connects the different volumes, programs and periods
▼断续排布的玻璃窗为立面赋予节奏感,the bricks evenly separated by
glass panes give the facade its rhythm,glass panes give the facade its rhythm
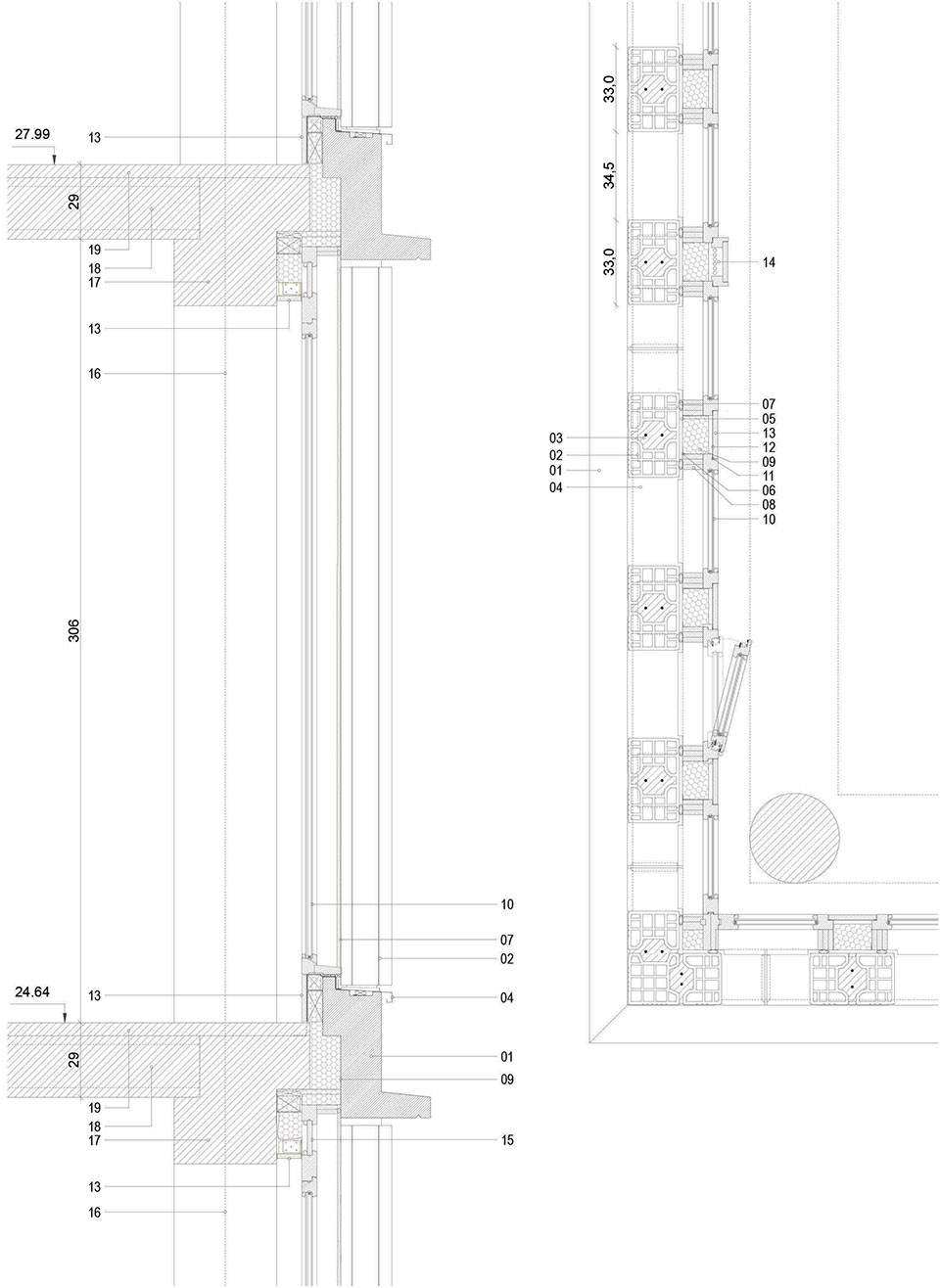
通过与制造商的协作以及生产过程中的一些细微调整,建筑师为该项目专门打造出了一种尺寸为33x20x280cm的砖材。建筑中一共使用了1500块自承重的砖料,结合断续排布的玻璃窗,形成了富有节奏感的、气势宏伟且具有渗透性的立面。先进的装配系统使砖块能够在不需要水泥和支撑骨架的情况下进行干燥安装,并且使成本完全控制在预算之内。
In collaboration with the manufacturer,
and through some minimal adjustments
in the production chain, a 33 by 20 by 280-centimeter bricks were designed and produced for this project. 1,500 self-supporting, bricks, evenly separated by
as many glass panes, give the facade its rhythm, its porous appearance, and its both massive and perforated look. An ingenious assembly system allowed to quickly install the dry bricks, with neither mortar nor supporting framework, all in keeping within the project’s economic boundaries.
▼建筑中使用了1500块自承重的赤陶土砖,1,500 self-supporting bricks are used in construction
▼尺寸为33x20x280cm的砖材是为该项目特别打造,the 33x20x280cm bricks were designed and produced for this project
▼立面细部,facade detail
▼每层楼板的边沿置入了白色的预制混凝土条带,the facade design is completed by a strip of white prefabricated concrete
▼自行车棚,bicycle park
以办公区域的层高为基准,建筑师在每层楼板的边沿置入了白色的预制混凝土条带,与当地传统建筑中使用的石材形成了呼应。砖块之间的间隔在立面上形成阴影,使建筑在夏季不至于过热。混凝土楼板的热惰性和内墙的木制嵌板同样有助于打造全年适宜的温度和环境。这些“形似工厂”的办公室中既没有空调系统,也没有任何吊顶和活动地板。该项目于2016年1月启动,两座建筑分别建成于2017年的1月和6月。尽管受到种种既定条件的限制,建筑师依然成功地在建筑和场地历史之间建立了连接,同时还为建筑赋予了当代内涵。
Corresponding to the floor-to-floor height
of the office area, the facade design is completed by a strip of white prefabricated concrete, at each floor slab edge, evoking the stone integrated into the brickwork in the local traditional architecture. Due to their spacing, the bricks produce shadows upon the facade, which keep the buildings from overheating in the summer. The thermic inertia of the concrete floors and the wooden paneling of the inner walls also contribute to user comfort throughout the year, of these “industrial-looking” offices, which are without air conditioning, suspended ceilings, or raised floors. Construction began in January 2016.
The first building was handed over in January 2017, the second in June 2017.
By transforming the use of a building material, in a place where everything seems to have already been said and done, Paolo Tarabusi establishes a link between the building and the history of the site, while still affirming the building’s contemporaneity.
▼办公空间内部,working space
▼办公室中既没有安装空调或吊顶,the offices are without air conditioning or suspended ceilings
▼内墙的木制嵌板同样有助于打造全年适宜的温度和环境,the wooden paneling of the inner walls also contribute to user comfort throughout the year
▼洗手间,rest room
▼交通空间,circulation
▼夜景,night view
▼场地平面图,site plan
▼首层平面图,ground floor plan
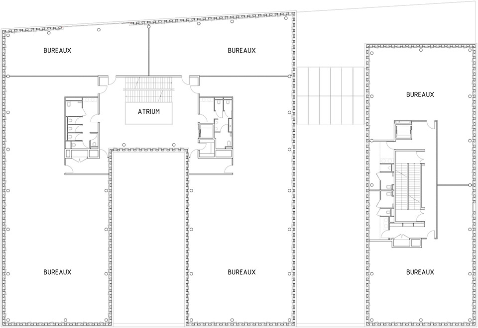
▼标准层平面图,typical plan
▼立面图,facades
▼立面结构细部,facade construction detail
客服
消息
收藏
下载
最近
































