查看完整案例

收藏

下载
白鹭郡西安岚作品
从文化中生长出来的精神领地
白鹭郡西四期的目标,不止是完成杭州大宅的尺度复兴,更要引领一次审美迭代。
万科请来了李玮珉、吴滨、JTL景观、青墨设计、WED中熙设计等大师团队,联袂“打造一件艺术品”。
白鹭郡西四期的大师团队
白鹭郡西·万科云台
高端城市山地别墅
光之墅
山、建筑、城市三者中间的共鸣
无间设计.吴滨
W.DESIGN无间设计
由顶尖室内设计师吴滨先生创立,拥有一批高素质的国际化室内设计团队,开创“摩登东方”设计语言,秉持国际专业视野,在业界享有盛名。
W.DESIGN无间设计
光之墅
东方在现代空间的诗意运用以宁静的方式改变豪宅思维
万科云台四期 光之墅
一层平面图
二层平面图
三层平面图
地下层平面图
玄关/ 私密性与透气感并存
透过一方窗口可以看到镂空的楼梯,天井的自然光也能通过这一方窗口引入玄关,进一步提升玄关的空间体验。
1F入口玄关
根植于安系哲学,设计尽可能的拉近人与自然的关系,视线透过玄关的玻璃窗,直接入眼的是自然起伏的山景,感受到的是放松的、自由的、隐逸的生活方式。
设计师还借助传统的文化工艺元素,提取富阳特色“竹纸”。运用在室内并引伸结合纸与屏,纸与窗的概念:“屏风,屏其风也,虚实相掩,隔而不离,隐约之间,见虚影,留空白。”以纸屏风营造出一个朦胧不清又韵味十足的东方空间。
可开合门的厨房和通透的背景墙设计,延伸了整个开间的尺度感。
楼梯前自上至下垂立的纸屏风提升空间的整体气韵。
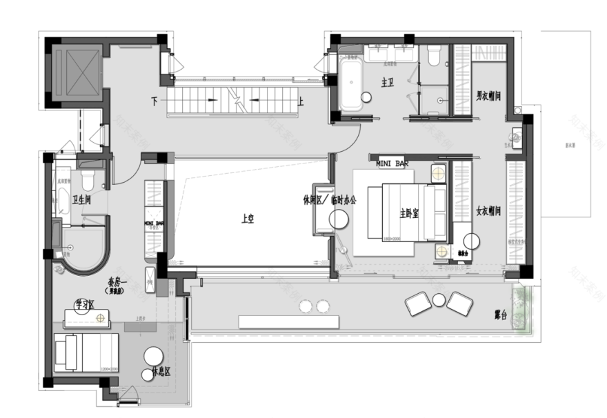
二层是主卧空间,并通过色彩、材质间有比例的组合变化:质朴的棉麻,云纹地毯,脱胎于东方气质的艺术品,营造空间层次与韵律,蕴含平衡、沉寂之美。
2F主卧效果图
主卧,还原尊贵而私密的氛围。材质上,运用了瓦楞的皮革背景,麻布,营造出温馨而精致的居家环境。
2F主卧卫生间
效果图
2F男孩空间 效果图
地下室/自由精神和艺术生活方式
地下一层,集合了会客厅、茶室、书房、艺廊、儿童区等的广阔空间。
会客厅
背景是一面通高的毛石背景延伸到天井上方,天井的自然采光洒落在毛石上,形成了深浅不一的阴影,是自然与时光的影子。
茶室
空间通过两扇半透的移门与会客厅相连接,营造一种避世感,不但表现出东方“禅”的哲学,也透露出文人慵懒,儒雅的一面。
客服
消息
收藏
下载
最近





























