查看完整案例


收藏

下载
Casas, Capão da Canoa, Brasil
面积:420 m²
年份:2019
建造商:Portobello, Bolum esquadrias, Esquadrias Moschetta, Indusparquet
负责建筑师:Marcelo Seferin
设计团队:Gustavo Seferin, Eduardo Abreu
工程:Vanguarda Engenharia, Eletrons
Design De 内饰:HB interiores
Construtora:Pioner
设计师描述 | Designer description:
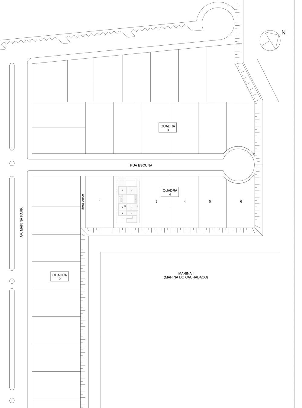
O projeto foi desenvolvido para uma familia de avós, pais, filhos e netos. A casa anterior estava em um grande terreno com uma paisagem linda de lagos e montanhas, onde a preença da natureza era o aspecto mais importante da residência. Porem a cidade em que estav faltava segurança e tinha poucas alternativas de lazer e entretenimento. A escolha por um lote em um condominio se deu por tratar se de um local seguro e com diversas possibilidade para todos, mas principalmente para as crianças. O terreno escolhido foi com fundos para um lago navegavel, onde o proprietario pode atracar sua lancha e acessar diretamente o terreno.
Estrategias. Como o condominio tem lotes lado a lado e a distancia minima entre as edificações vizinha é de no minimo 3m, precisavamos criar uma estretegia para que as diferenças da proporção de terreno e presença da natureza da casa anterior não fossem tão sentidas pelos usuarios. Desta forma foi criado um jardim aberto no centro do terreno, criando mais uma alternativa de abertura para os espaços do terreo. Com a abertura do ambiente social para os fundos com a vista do lago, essa nova abertura do jardim possibilitou trabalharmos com uma ventlação cruzada nos ambientes, deixando a casa sempre arejada e com uma temperatura agradavel mesmo nos dias mais quentes do ano.
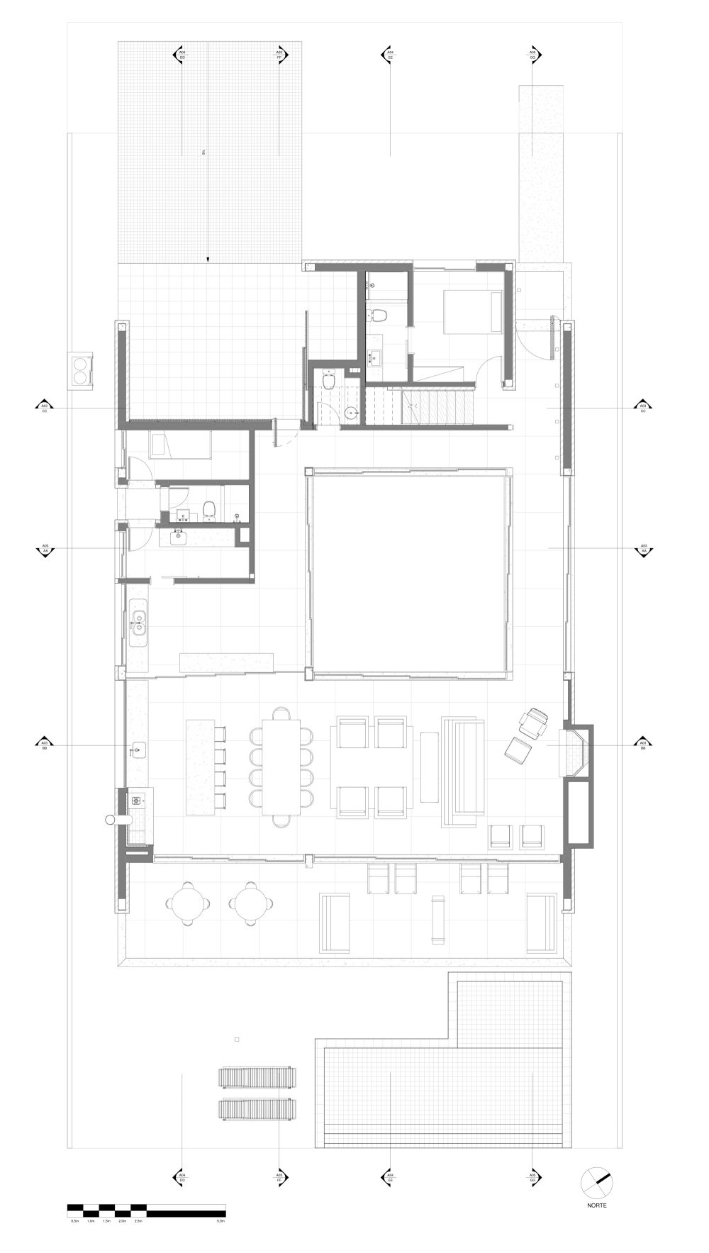
Desta forma tornando minima a necessidade de uso de ar condicionado nesses ambientes. A criação e dimensionamento deste jardim passa por outras estrategias tambem. Como a area social esta voltada para os fundos ficamos com sol apenas na parte da manha devida a orientação leste, sendo assim as aberturas altas do pe direito duplo das salas de estar permitem o sol entrar nos ambientes em outros horarios do dia. A area social foi projetada toda integrada juntamente com a cozinha devido a forma de interação e os habitos da familia. Todos esses ambientes tem visual do lago e do jardim central sendo possível acessar essa segunda area tambem pela cozinha. Quando as esquadrias estão todas abertas as duas salas de estar do ambiente social ficam ilhadas entre o jardim dos fundos e o jardim central, passando a sensação de ser uma grande varanda coberta. Além de especies nativas, como bananeiras, o jardim central recebeu duas oliveiras e se tranformou no espaço predileto da familia para tomar o cafe da manha e servir de momentos de maior isolamento.
Contiguo ao ambiente social foi projetado na mesma extensão uma varanda que conta com ambiente de estar e jantar ao lado do espaço gourmet interno onde os churrascos, uma tradição da região, são frequentes. A frente da varanda conta com uma piscina com borda infinita e um gramado com duas arvores nativas (jabuticabeira e pitangueira) fazem o caminho até o deck de madeira suspenso sobre o declive do terreno, que se estende sobre o visual do lago. Além da entrada principal ao lado da suite de hospedes e da escada para o segundo piso, o terreo ainda conta com um grande despensa que se dá apartir de um acesso secundário pela garagem. Area de serviço, dormitorio de funcionarios e area de serviço contam com um acesso exclusivo pela lateral do terreno.
A escada revestida de madeira cumaru recebeu também uma divisória vazada de cubos da mesma madeira. O segundo pavimento possui uma suite master voltada para a frente da casa com vista para a grande lagoa e para o por do sol que é uma das atrações do condominio. Nesta suite foi projetado um terraço exclusivo para usufruirem deste momento. Neste dormitorio foi criado um closet e um banheiro com acessos individuais pelas duas cabeceiras da cama. A circualçaõ entre a suite master e os demais dormitorios acontecem ao longo do jardim central e as esquadrias piso-teto mostram as copas das arvores e ceu aberto deste espaço. Uma suite para as crianças no centro e mais duas suites nos fundos com vista para o lago fecham a area deste pavimento.
Materialidade. A escolha de materiais seguiu uma linha natural com as pedras que revestem as paredes do terreo e a madeira nos fechamentos e paineis do segundo piso. Para potencializar esses materiais usamos uma textura de cor branca nas demais paredes. Os elementos externos se repetem no lado interno da casa e dão continuidade e unidade a todos ambientes para que as areas externas e internas se misturem e os limites fiquem imperceptiveis. Para o piso do terreo foi utilizado porcelanato devido sua praticidade, mesma estrategia utilizada para todos banheiros. No segundo pavimento, na area intima, foi escolhido um piso de madeira de demolição devido ao conforto termico e sensação de aconchego que ele traz.
A residência se resume em um grande volume branco no segundo pavimento apoiado sobre as paredes de pedra do primerio piso em cada uma das laterais. No volume superior existe uma grande subtração para deixar o jardm central aberto e mais duas subtrações na frente e nos fundos, para o terraço frontal e para o pe direito duplo. A residência conta com placas solares e um reservatorio termico para aquecer toda agua de consumo da casa e placas solares para aquecimento da piscina. O pavimento terreo possui uma central de automação para iluminação, audio, video e climatização.
项目完工照片 | Finished Photos
分类:Casas
语言:葡萄牙语
阅读原文
客服
消息
收藏
下载
最近







































