查看完整案例

收藏

下载
“嵯峨馆”所呈现的,是建筑师捏造的幻境。我们并未脱离这座聒噪的城市,甚至没有超越这座四合院厢房的空间边界。但我们如我们的祖先一样,尝试在这方局促的空间中,寻找重新解释它的方法。—— 神奇建筑研究室
What Tsuo is presented, is a wonderland fabricated by architects. In reality, we are far yet to break away from this crowded city, not even transcend spacial boundary of the villa. Nevertheless, like all our ancestors did, we are seeking to explore a new means of explanation in this confined space. ——Wonder Architects
▼邻居看到这幕场景时,也许会怀疑他过往的旧城生活经验,the neighbours might have doubts about their past living experience in the old city when they see this
不得不说,北京是座建筑类型匮乏的城市,从现在的行列式住宅到被认为代表传统特色的四合院,都在用有限的建筑类型描绘庞大的城市空间。因此,北京居民想出了许多拓展建筑空间体验的方法,比如在院子里营造庭园,在空地搭建罩棚,或用木装修细密地分隔房间。即使这些都没法实现,也要在墙上张贴表现室外场景的绘画,希冀摆脱既有环境的单调。
Beijing is a city that lacks architectural variety. From modern apartment buildings to traditional villas, architects decorate this huge void city with limited building types. As a result, People living in Beijing developed numerous methods to expand their spatial experience by constructing gardens in their courtyards, building forts at vacant spaces, and also using wood panels to separate spaces. To the least, people hang drawings of natural sceneries on their walls to create complexity to their living environment.
▼紫禁城皇帝居所养心殿复杂的室内空间,将一座620㎡工字殿的空间可能性推向极致,the complexity of interior in the Forbidden City is carrying the spacial possibilities of traditional Chinese palaces into extreme.
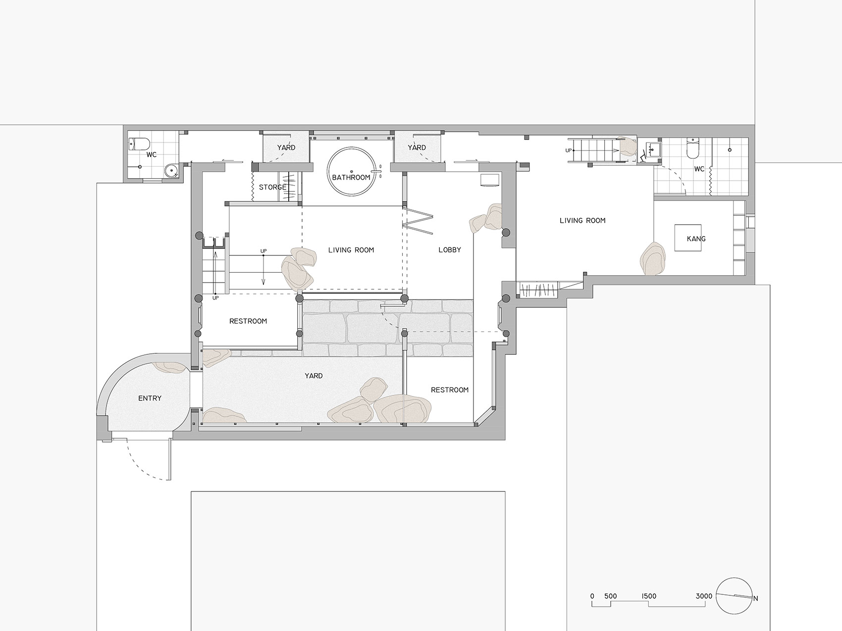
在普通建筑中,虚构一个非常规场景,是北京人爱玩的空间把戏。我们的基地是一座普通四合院的西厢房,这样的建筑在北京有几万座,因为产权的关系,它被一组矮墙包围起来,成了院中之院。
Beijingners. The site of the project is in the west suite of a traditional villa, while there are thousands of those in Beijing! The suite is surrounded by walls, making it a garden within gardens.
▼场地图,site map
▼建筑原貌,original structures
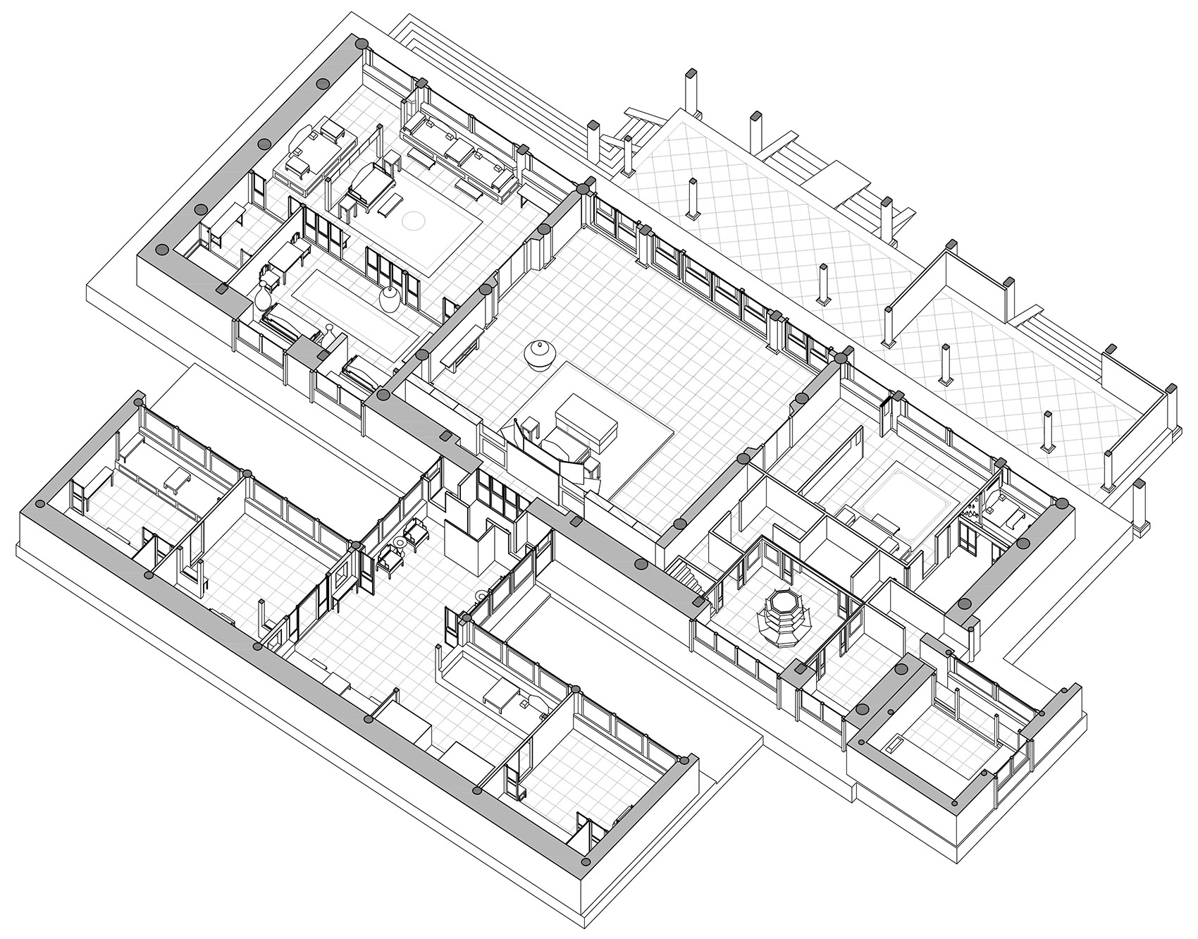
面对这座格局老派的旧房,我们把旧屋空间重新界定为不同单元,针对每个单元,重构它和它的外部空间,比如将院落用建筑填实;或将户内空间退还给院落;比如将较高的空间进行竖向划分;或扭转空间与景观的对位关系。我们尝试拓展空间变化的可能性边界。
We redesigned the spatial layout of the suite into different units. For every unit, each interior and exterior space is reconstructed. For example, filling courtyard with buildings or enlarging garden by giving it more interior space. By dividing one vertical space into multiples or twisting the counterpoint relationship between space and landscape, we are trying to explore the boundary possibility with space variation.
▼被重构的西厢房,the west suite after reconstruction
▼改造后的建筑剖面,section of the reconstruction
当完成逐个空间的调整后,再把它们组合,编排为新的叙事关系。新体系与原建筑的空间语言差异明显。它使进入者忘记自己处在一座昏暗厢房中,陷入一段故弄玄虚的空间冒险。
After the reconstruction of each space, we recombined them to form a new set of spatial narrative experiences. The new construction creates such extreme contrast to the original one that leads the visitors into a spatial adventure, forgetting they are situated in the dim west suite.
▼嵯峨馆入口,entrance
▼山石与建筑结合,改变着人们对院落物理边界的认识,the combination of mountain rocks and architecture, changed our perspective regarding to physical boundaries
▼希望有限的山石带来对更大自然物的想象,using rocks to bring more sense of nature
▼建筑内院,interior courtyards
在有限的尺度下,我们希望表现出使用空间对风景 “收集”倾向,刻意为日常场景营造非日常的画面北京。我们觉得这座建筑中,风景与空间应当是互相追逐的,你几乎躲避不开风景的尾随。
Under limited dimensions, we wanted to demonstrate the tendency of using functional space to ‘collect’ views and deliberately creating unconventional views of Beijing in our daily scenes. It is considered that the views and spaces are correspondent in this building and it is inevitable to savor the views.
▼新的界面重新划分了旧有空间,new division of space
▼空间与风景的“追逐”关系,the views corresponding with the space
▼空间对风景的“收集”, ‘Collecting’ views
▼被重构的室内空间,the reconstructed interior area
▼旧有木质屋架恰好界定出相对私密的卧房区,the original wooden beams create a rather private bedroom space
在重构这间厢房的过程中,我们尝试保留这座建筑演变的痕迹。从早期粗率的重建,后期随意的修补,到某次反悔的空间修改,我们以每块石头和砖的维度,保留时间在这座建筑内的轨迹。新置入部分只留下白色背景,我们用它们标记自己对这座建筑的影响,也准备有人将这一切再次夺走。我们有意对抗室内外界线,比如用北京西郊出产的房山石,在建筑内外摆布出独立于建筑空间的山石群落,创造与自然物不期而遇的机会。那些嵌入墙体的山石,似乎暗示着这座建筑修造于一座幽静的谷底,山峦难以掩藏的局部直接探入人们的生活场景。
During the process of renovation, we tried to keep the layers of progression within the building. From the rough reconstruction done in the early periods, to the random fixtures that took place later, all the reversions were kept, leaving the trace of the time delicately captured in this building. By using white dry walls and white reconstructions, we marked our influences to this building and we are ready for someone else to do the same all over again. It is intentional to blur the line between the interior and the exterior. For example, we placed groups of rocks all over the courtyard, creating coincidental collisions between architecture and nature. The rocks resembled mountains and canyons, like the building was built at the bottom of a quiet, peaceful valley.
▼不同时期建造的痕迹被“陈列”在一起,marks of progressions over time
▼侵入生活场景的山石,interaction between the rocks and our living space
▼植入部分形成了新的室内流线和隐私梯度,the renovation gives new energy and flow to the interior, as well as a sense of privacy
▼重新组织的自然光改变了场所的属性和使用状态,redesigned natural lights changed the properties and functions of the old space
▼空间对风景的“收集”, ‘Collecting’ views
▼空间与风景的“追逐”关系,the views corresponding with the space
虽然掌握一些看似有力的技术,但当我们尝试把一块3吨重的山石运进四合院时,我们能想到的办法,并不比18世纪的建筑师高明多少。
Even with the help of modern day technology, it was not much easier for us to transport a piece of rock that weighted three tons than in 18th century.
▼首层平面图,the first floor plan
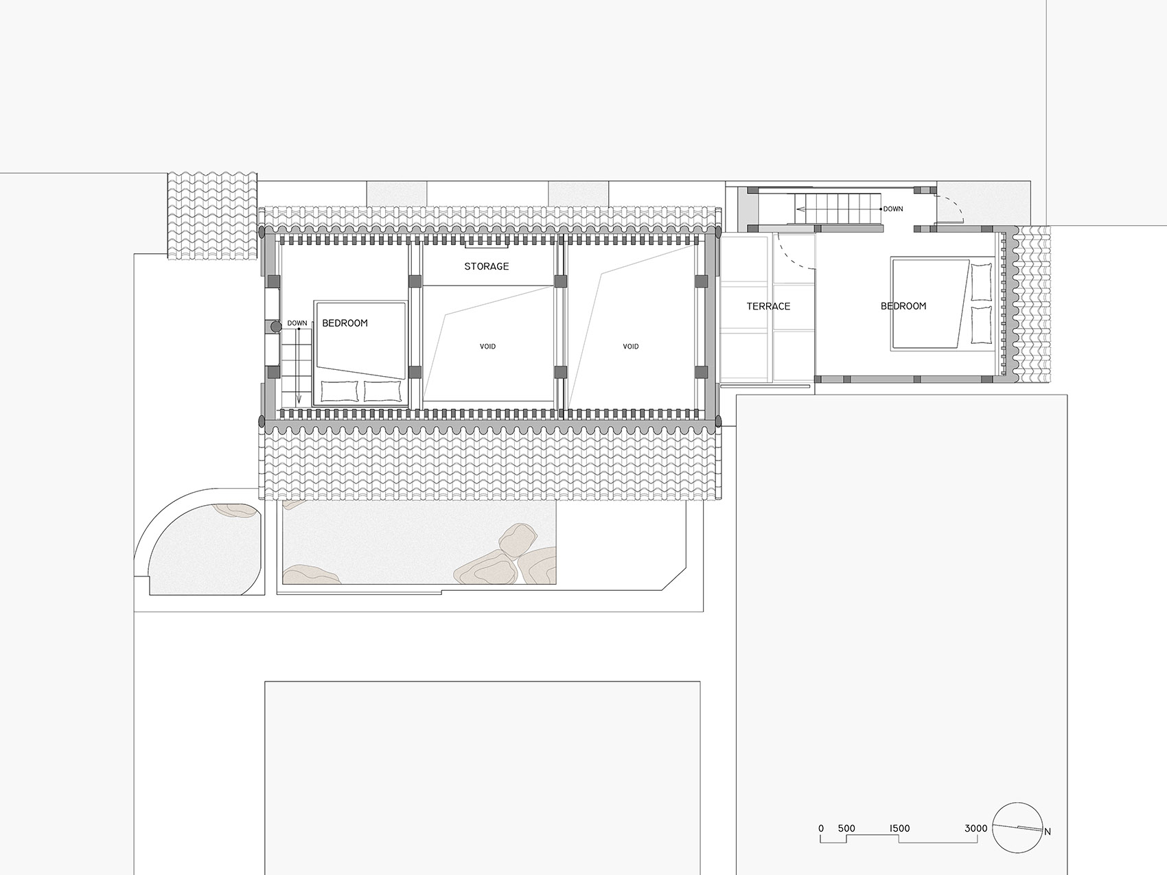
▼二层平面图,the second floor plan
客服
消息
收藏
下载
最近






































