查看完整案例

收藏

下载
桐庐先锋云夕图书馆位于浙江桐庐县莪山乡戴家山村,是先锋书店开设的第十一家书店。项目凭借“先锋和书店”的文化传播理念,以及独特的“畲族”山村的地域自然人文景观背景,成为当地村民和“异乡读者”的公共生活纽带,成为地方文化创意产业的一个聚焦点。图书馆的主体是村庄主街一侧闲置的一个院落,包括两栋黄泥土坯房屋和一个突出于坡地的平台。建筑设计保持了房屋和院落的建筑结构和空间秩序,将衰败现状修整还原到健康的状态,新与旧的关系强化了“时间性”,土坯墙、瓦屋顶、老屋架这些时间和记忆的载体成为空间的主导,连同功能再生的公共性,共同营造文脉延续的当代乡土美学。
Located in Daijiashan Village,Eshan She Nationality Township of Tonglu, Zhejiang Province, the Avant-Garde Ruralation Library is the 11th Bookstore run by the Librairie Avant-Garde. With the culture-spreading idea ——Avant-Garde and Library, as well as the unique regional natural and human landscape of the ‘Shes’ village, this project has become the public life bond among local villagers and alien readers, and also become a a focal point of local cultural and creative industries. The main body of the library was an idle yard lying at one side of the village’s main street, including two yellow mud adobe houses and a platform projecting from a slope. While maintaining the structural and spatial sequence of the buildings and courtyards, the architectural design restores the current declined status to a healthy state. The relationship between the new and the old strengthens the ‘timing’. The carriers of time and memory – the adobe walls, tile roofs and roof trusses have become the spatial dominance, and have jointly created context-continuing contemporary local aesthetics, together with the publicity of function regeneration.
▼建筑外观,external view of the building
中国几千年来的传统根基在农业文明。真正属于我们自己的建筑文化传统在于“没有建筑师的建筑”为主体的乡土聚落,有机整体的城乡关系,以及持续数千年的延续发展模式,一种处于“文化自觉”的地域性。在最近的一轮城市大发展、也是彻底清除之后,在整体结构性方面中国的城市已经再难看到确凿的物质环境载体,去传承历史和传统的文脉。所幸这个过程还未完全发生于广大的乡村。中国真正的地域性在乡村,城乡关系的思考促发了包含“先锋云夕图书馆”在内的“莪山实践”。对于一系列乡村建设实践,我们的思考集中于“时间”这个基本方面。任何地区打动人心的建成环境特征,都是时间沉积的力量。相对于无法抗拒的时间,建筑师所精心构造的“空间”设计,往往更加个人化,而无法面对生活的考验。回到客观的立场和学习的姿态,向“没有建筑师的建筑”学习,向生活学习,“反设计”的设计。在这个过程中,我们试图逐渐放弃个人化的“空间设计”,去延续地域的时间性,延续有关生活的温暖文脉场所。
The Chinese thousands-of-year tradition roots in agricultural civilization. The authentic Chinese architectural tradition lies in the rural settlement, the organic and integral urban-rural relations, as well as the continuing development model lasting for thousands of years, which is a sort of territoriality based on ‘cultural consciousness’. Our thinking focuses on the fundamental aspect ‘time’. The touching built environment characteristics in any area are the strength of time depositing. Comparing with the irresistible ‘time’, the ‘space’ design meticulously constructed by architects tends to be more personalized, and cannot face the challenge of life.
▼建筑融入村庄之中,the building merges into the village
在先锋云夕图书馆老建筑更新项目中,建筑设计的空间创造被严格的限制,并努力使之成为一种不易察觉的时间“休止符”。从庭院连廊、到室内设施,新的要素本身被单纯的形式弱化;同样重要的是,这些不易察觉的形式要素,同时也是工业化的、产品化的附加部分,对于图书馆的当代用途又是至关重要的。“新”为“旧”建筑所重新建立的空间边界,将过去的时间重新引向现实。从建造过程开始,到融入乡村生活的文化经营,“新”与“旧”共同构造了生活场景的舞台,而非抽象纯化的空间限定。
In the Avant-Garde Ruralation Library renewal project, the creation of architectural space i.s strictly constrained, and carefully made as an imperceptible time ‘rest’. The new elements including courtyard corridors and interior facilities are attenuated by their pure form. Equally important, these subtle formal elements – which also are the industrialized and productized addition, is crucial relating to the contemporary function of libraries. The re-established spatial boundaries of the ‘old’ building created by the ‘new’ elements re-direct the past time to reality. From the construction process to the cultural management integrating into the rural life, the ‘new’ and the ‘old’ together contribute to a stage of life scenarios, rather than an abstract purified spatial definition.
▼连廊连接图书馆和咖啡厅,与旧建筑相和谐。Corridor connecting the library and cafe, being harmony with the old buildings
适应图书馆新的功能注入,最为关键的设计操作是屋顶抬升策略。支撑屋顶的建筑内部梁柱框架整体加高了约60厘米,利用这个高度形成了高窗的构造,光、气流以及优美的竹林景观被自然的引入室内阅读空间。屋架抬升实现主要依赖地方工匠娴熟的传统技艺,用巧妙的榫卯技术加长局部的柱子。与此同步进行的还有小青瓦屋顶的翻新,在望板之上附设的保温构造,大大提高了老屋的热工舒适性。在建筑外部,原封未动的土坯墙和青瓦屋顶由于侧面高窗的存在,显示出封闭而开放、厚重而轻盈的戏剧化效果,在修整的室外景观和照明设计衬托下,形成村落温和的景观焦点。
To adapt to the new function of the library, the most critical design strategy is to lift up the roof. The internal beam-column frame which supports the roof has been heightened by 60cm as a whole. Taking the advantage of the increased height, the high windows can be constructed; thus light, air and the beautiful bamboo forest landscape are naturally introduced into the interior reading space. The realization of the roof uplifting mainly relies on the local craftsmen’s traditional skills – extending partial columns by the means of crafty tenon skill. Parallely the renovation of the grey-tile roof is undertaken; the thermal insulation construction attached to the sheathing has greatly improved the thermal performance of the old building. Outside the building, due to the high windows the original adobe walls and grey-tile roof take on a dramatic performance — closed and open, heavy and light, forming a gentle landscape focus of the village against the background of the trimmed outdoor landscape and lighting design.
▼屋顶抬高形成高窗,high windows created by lifted roof
▼分解轴测图,exploded axon
连接主屋和偏屋的透空木格栅连廊,除了强化改造后图书馆和咖啡厅的功能联系,同时重新界定了室外空间细腻的体验序列。街道、台阶到连廊之间,是紧凑而友善的前院;穿过曲折的连廊,或者从建筑内部来到室外,则是建筑、连廊和弧形轮廓的平台,共同限定的室外阅读、观景场所。在建筑内部,空间的公共性来自有机组织的楼梯井、局部平台空间,和透空书架隔断的空间划分,而经过翻修的屋顶木结构借助灯光的强化处理,形成明亮而有力的空间氛围。
The permeable wooden grille corridor linking the main room and the partial room is able to strengthen the functional connection between the renewed library and the café, and also to redefine the sensitive experiencing sequence of the outdoor space. In between the streets, the stairs and the corridor, a compact and friendly front yard is situated; passing through the tortuous corridor, or coming out from the inside of the building, the building, the corridor and the arc-profiled platform come into sight, which together define the outdoor reading space. Inside the building, the well-organized stairwell, partial platform, and permeable bookshelf partition contribute to spatial publicity; the renovated wooden roof structure forms a bright and powerful space atmosphere by means of intensifying the lighting.
▼图书馆,楼梯和书架划分空间。Library with stairs and shelves to defines space
▼图书馆二层,局部柱子加长,高窗带来充足的采光。Second floor of the library with sufficient sunlight through high windows
东侧偏屋内部加建的咖啡厅门厅,以及西侧主屋新建的楼梯、卫生间,采用了最为普通的砖混结构,并且有独立的基础处理,对原先老屋的主体结构具有一定的加强作用。新建的室内墙体、楼板、楼梯,陈设等设施,尽量以弱化的工业产品形式,为传统建筑划定时间的边界,并形成当代新功能的调节机构,从而使空间具有了延续和发展的当代地域生活体验。
The most common brick masonry structure is applied to the café foyer added within the partial room on the east side, the stairs and the toilets constructed in the main room on the west side. Its independent foundation treatment has a reinforcing effect on the main structure of the original building. With the highly-attenuated form of industrial products, the newly-built interior walls, floors, stairs, furnishings and other facilities define the time boundaries of the traditional building, and form the regulating mechanism of the contemporary new function; thereby the space is enabled to accommodate continuing and developing contemporary regional life experience.
▼咖啡厅,楼梯和砖混墙面加强老建筑主体结构。Cafe, the staircase and brick masonry walls enhance the structure of the old building
▼咖啡厅二层,高窗和新的地板界定旧墙面,改善室内环境。Second floor of the cafe where old walls are defined by high windows and new flooring, improving the interior quality
▼村民在图书馆中的活动。Activities of the local people in the library
▼夜景,建筑融入村庄之中。Night view, the building merges into the village.
▼区位图,location
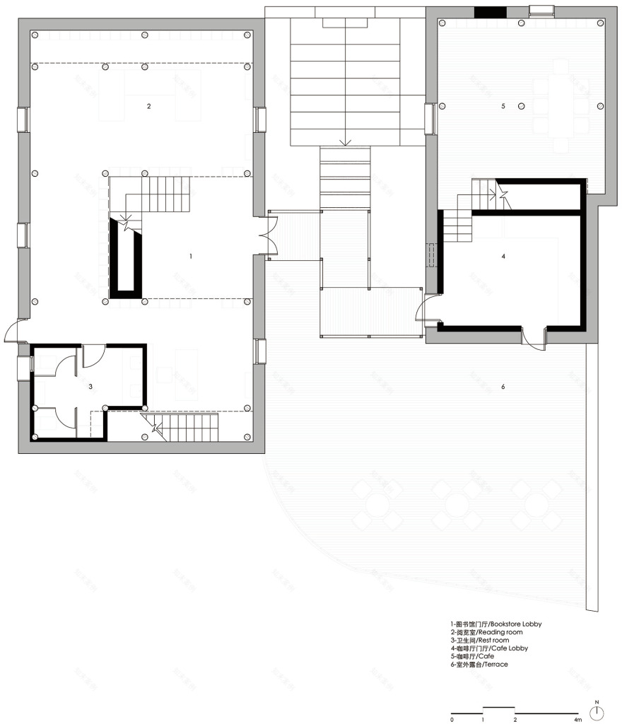
▼一层平面图,first floor plan
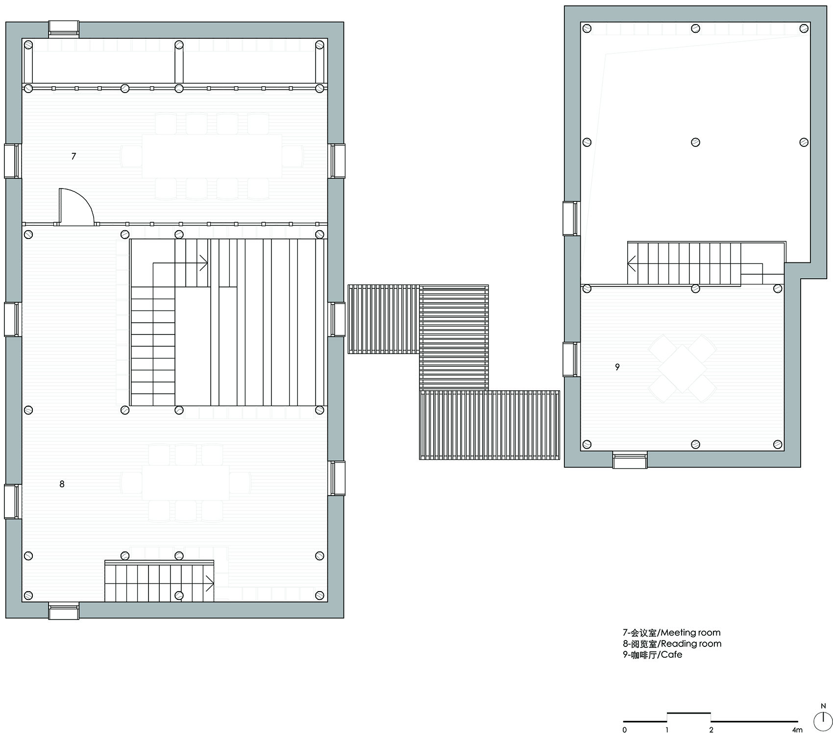
▼二层平面图,second floor plan
▼北立面图,north elevation
▼南立面图,south elevation
▼图书馆西立面,west elevation of the library
▼图书馆东立面,east elevation of the library
▼咖啡厅西立面,west elevation of the cafe
▼咖啡厅东立面,east elevation of the cafe
▼剖面图,section
名称: 桐庐莪山畲族乡先锋云夕图书馆
地点: 浙江桐庐
项目功能:文化
建筑规模(面积):260平方米
设计/建成时间:2014/2015.10
设计单位:张雷联合建筑事务所
合作单位:南京大学建筑规划设计研究院有限公司
项目建筑师:张雷
设计团队:张雷,刘玮,马海依,陈隽隽,张其琳,邵璇
Project: Tonglu Librairie Avant-Garde, Ruralisation Library
Location: Tonglu,Zhejiang Province
Function:Culture
Total floor area:260 sqm
Design/Completion:2014/2015.10
Design Organization:AZL Architects
Cooperative Organization:Institute of Architecture Design and Planning Co., Ltd. of Nanjing University
Architect:Zhang Lei
Design team: Zhang Lei,Liu Wei, Ma Haiyi,Chen Junjun, Zhang Qilin, Shao Xuan
客服
消息
收藏
下载
最近



























