查看完整案例

收藏

下载
该项目位于墨西哥城的一个住宅开发区。由于住宅之间的距离较近,使室内的视野和朝向受到限制,因而设计师为之打造了一个连贯的布局,利用宽阔的天井来提升室内空间的质量,同时使室内外空间产生对话,在引入光线的同时,为住宅带来优美而恒温的室内环境。
This project is located in a housing development in Mexico City. This is a consecutive housing project in which the restrictions, with a reduced separation between the houses, affects the views and how the orientations are leveraged. In response, the decision was made to create a large patio that develops the home’s spaces, and generates a dialog between indoor and outdoor contexts that allows light to enter while providing the structure with visual and thermostatic self-sufficiency.
▼住宅外观,external view
▼入口,entrance
▼玄关走廊,entryway
建筑的独立性还体现在原材料的使用上。基于场地的形状和规则的限制,建筑师对土地进行了挖掘与迁移,将场地中最重要的资源——土壤,压制成砖块(CEB)并加以利用。这不仅为项目提供了实际的解决方案,更减少了对环境的破坏,因而,建筑的配色并非由建筑师决定,而是取决于场地本身,这为住宅赋予了一种强烈的归属感。
Its independence is also visible in the raw materials used to build the structure. The shape of the footprint and the regulated limits led us to a solution involving soil excavation and removal, resulting in a collaboration with the environment to leverage the property’s most important resource, which was the soil itself. We used it to produce compressed earth blocks (CEB) at the site; these, in addition to providing a real solution that reduce its environmental footprint, provide it with a rooted sense of belonging in which the color scheme is defined by the site itself, and not by the architect.
▼宽阔的天井解决了场地的限制, a large patio deals with the restriction of the site
▼连贯、通透的室内外空间,a consecutive housing project based on an open floor plan
▼厨房,kitchen
从外观上看,住宅仿佛由一组密闭而厚重的体块构成,而基于开放性平面的室内空间和结构则带来开敞和轻盈的感觉。在该项目中,土壤成为了贯穿始终的统一元素。
From the exterior, the project appears to be a grouping of extruded blocks that allude to the impenetrability and the massiveness of the material, while the interior highlights the openness and lightness of these elements in an open floor plan. Throughout the project, the earth functions as the project’s unifying element.
▼首层大厅,main hall
▼宽敞的楼梯通向二层,a large staircase leads to the first floor
▼二层起居空间,living area on the first floor
▼洗手间,bathroom
▼夜景,night view
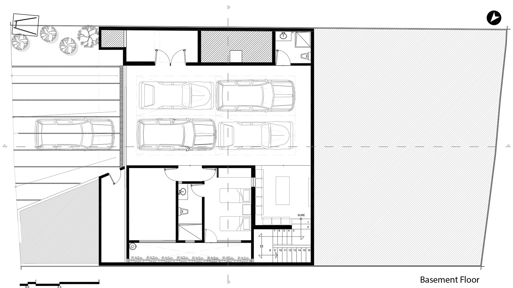
▼地下室平面图,basement plan
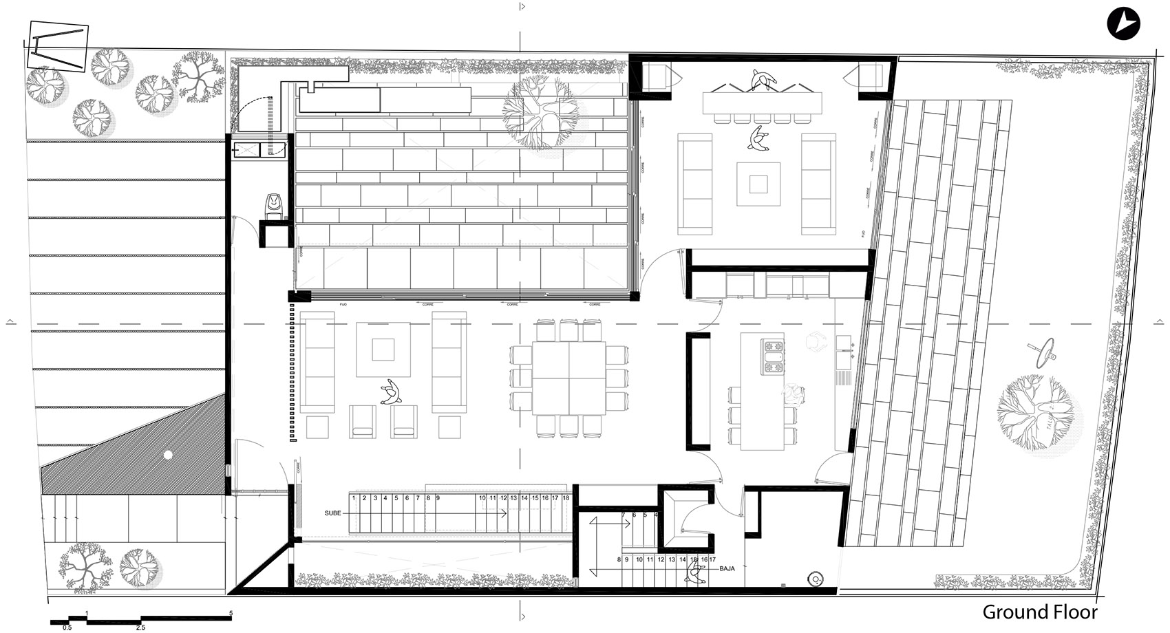
▼首层平面图,ground floor plan
▼二层平面图,first floor plan
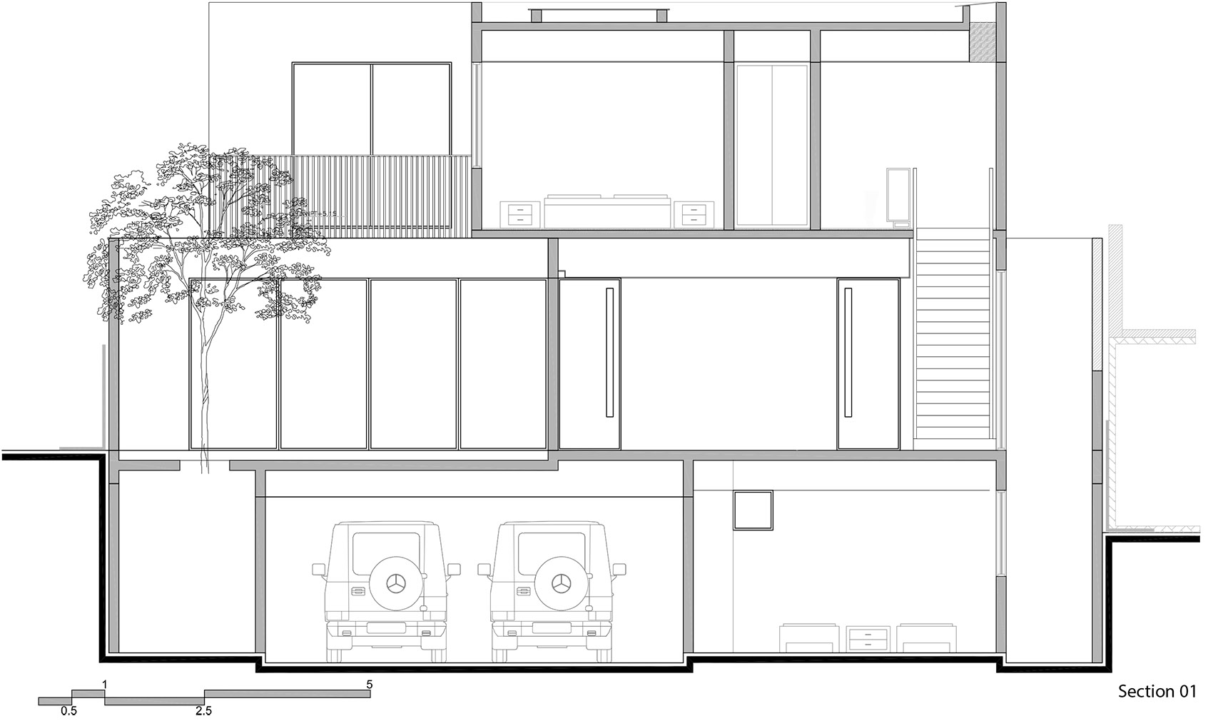
▼剖面图01,section 01
▼剖面图02,section 02
Project: Cumbres House
Location: Cumbres de Santa Fe, Álvaro Obregón, Cuidad de México.
Client: Privado
Area: 517 m2
Year: 2016.
Architects: ASP Arquitectura Sergio Portillo
Architect in Charge: Sergio Portillo Alarcón
Collaborators: Rafael Ovalle, Francisco Machuca.
Construction: LINEAL Construcción y Desarrollo Arquitectónico.
Engineering: Grupo R (Jaime Rangel)
Lighting Design: ASP Arquitectura Sergio Portillo
Landscape design: ASP Arquitectura Sergio Portillo – David Villanueva
Photography: Rafael Gamo
客服
消息
收藏
下载
最近





































