查看完整案例

收藏

下载
1956年,美国的一家运输公司发明了集装箱。如今,集装箱承载了80%的货物运输(按价值),并且每年约有160万个集装箱被生产出来。2010年,全世界用于运输的集装箱总量已经超过1800万个。集装箱同样为这座当代音乐中心带来了灵活性的布局:表演空间可以根据具体的活动和环境需要来进行调整,还可以额外增加新的空间,作为排练和预演的场所。
In 1956, an american road haulage operator invented the container. Today, containers transport 80% of goods (by value), and around 1.6 million of them are constructed each year. In 2010, there were over 18 million containers in use worldwide for transport. A container gives great flexibility in the arrangement of the contemporary music centre. The performance space can be organised according to the activities taking place there and the different types of required. Extra rooms can be added, supplementing the rehearsal rooms required by the project specifications.
▼建筑由集装箱构成,the building is built up with containers
▼夜景,night view
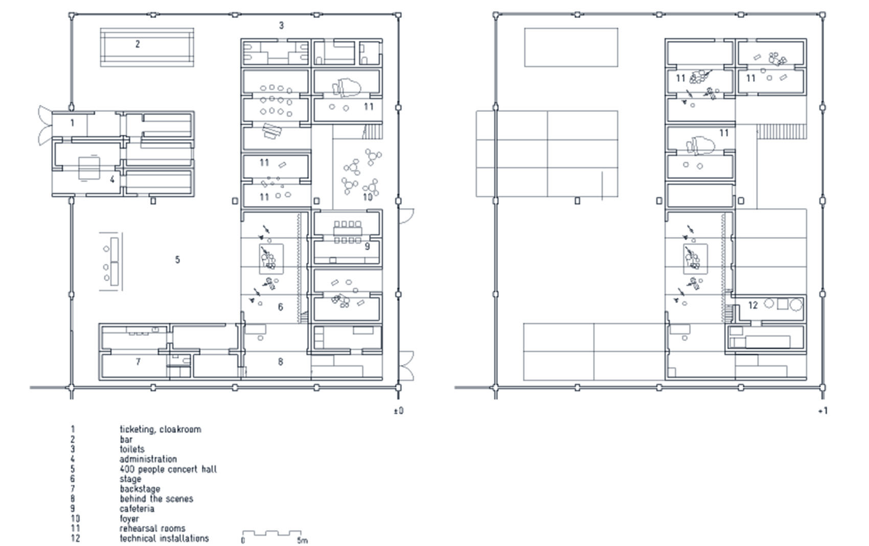
全新的西昂当代音乐中心位于城市的南边,原本是一间工业厂房。“le port-franc”音乐厅所处的位置十分有利于举办夜间活动:选择工业场地完美地解决了噪音的问题。该建筑包含两种不同且互补的功能空间:其一是能够容纳400人的音乐厅,其二则是为本土乐队准备的排练场地。模块化的系统能够为平面布局带来极高的灵活度,并且可以迅速装配。集装箱本身的材料能够有效地防止人为破坏,同时带来集约化的使用方式。这些可回收利用的模块凭借着其鲜明的视觉特征,为这一全新的文化中心赋予了一种稳定而有力的形象。
The new contemporary music centre of Sion is south of the city, in a former industrial hall. The concert hall called “le port-franc” enjoys a particularly favourable situation to its nocturnal activities: the industrial area chosen is ideal for the noise problem. The building contains two different and complementary programs: a 400 people concert hall and rehearsal spaces for local bands. The use of second-hand shipping containers allows an economy of means. The modularity of the system provides great flexibility in the organization and enabled a rapid execution. The resistance of container materials offers an ideal protection against vandalism and intensive use of the premises. Finally, the recycling of these modules with marked visual identity creates a strong and consistent image for this new and alternative pole of culture.
▼模块化的室内系统,an modular interior system
▼厨房/吧台,kitchen and bar
▼休息区,seating area
▼交通空间,circulation
▼灵活的场地可适应各种演出需要, the performance space can be organised according to the activities taking place there and the different types of required
▼场地平面图,site plan
▼平面图,plan
▼热量和噪音分析,themical and acoustic diagram
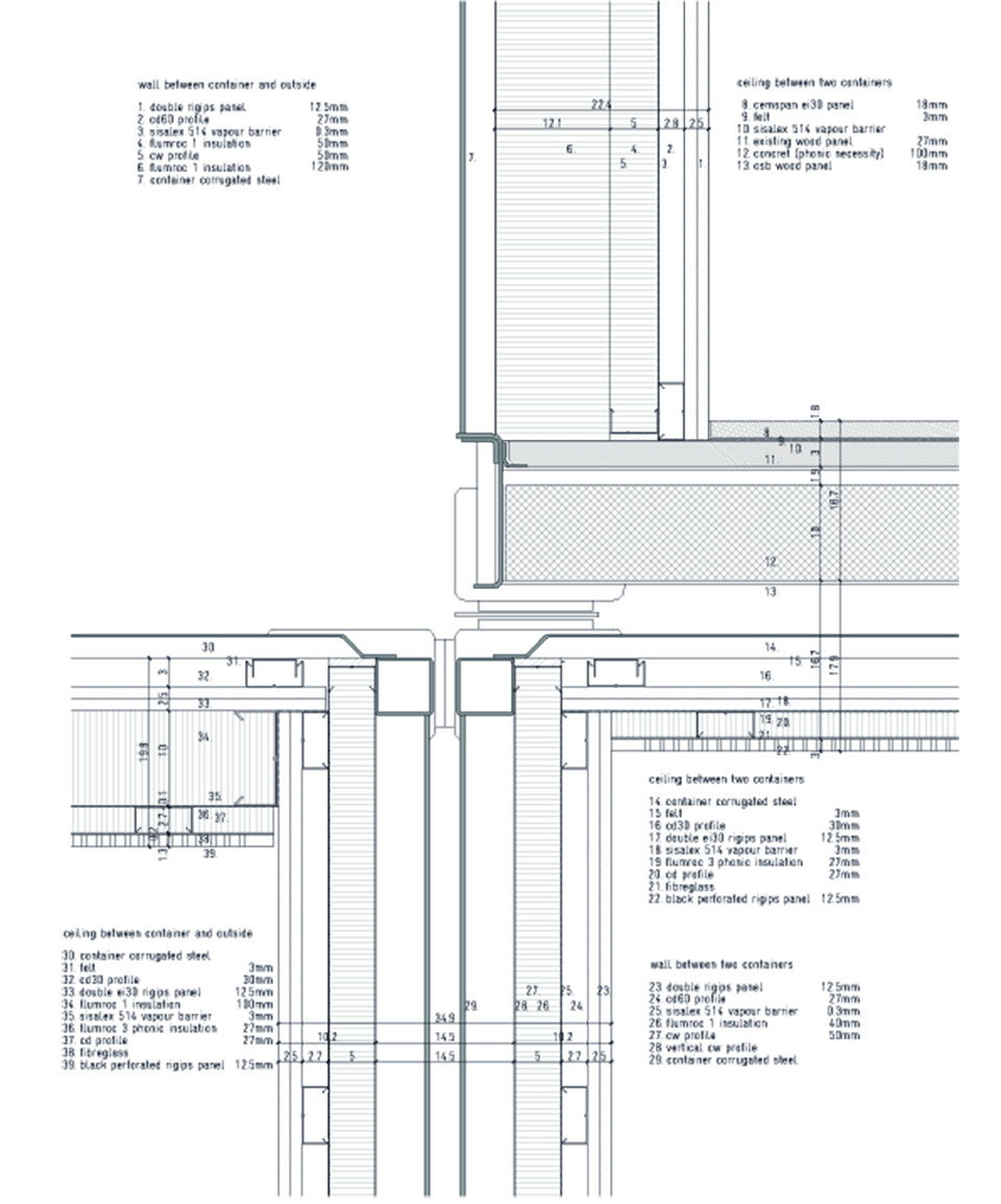
▼结构细部平面,detail plan
▼结构细部剖面,detail section
Client: City of Sion
Program :1 concert hall, repetition rooms, loge, ticket desk, bar
Dates : competition decembrer 2011, execution 2014-2015
Volume : 5’175 m3
Civil engineer : Alpatec SA, Martigny
HVAC engineer : technitherm, Yannick Rossier, Sion
Eletrical engineer : Domotech systems, Sion
Acoustician engineer : bs Bruno Schroeter, Saxon
Photographer : Thomas Jantscher
客服
消息
收藏
下载
最近




















