查看完整案例

收藏

下载
中国的办公空间面临着巨大的变革。无法预测的团队的组织与大小,新的工作类型,科技的巨大影响,都将强烈地冲击与改变21世纪的办公形式。对于车辆加工巨头敏实集团来说,对于集团总部的设计,超越工作室做了一个激进的新办公室类型设计。从“中国制造”到“中国设计” 的转变强迫着企业们重新思考未来工作的内容与方式。办公方式的协作与互动极大地促进了创新,这也将是21世纪办公的核心价值所在。同时,办公媒介也从办公桌变为笔记本电脑,甚至在移动设备上就可完成工作。所有的这些都要求办公环境可以更好地适应不断变更的需求,并在此基础上衍生出新的机会。
2009年,中国超过了美国,占有了全球最大的汽车市场。敏实集团作为行业的重要推动者,是外部汽车零部件的领先供应商,在中国的市场份额中占第一位。集团的全球化程度也日益提高。敏实集团在嘉兴需要一个能容纳800名员工的新集团总部。总部大楼所处的环境在十年前还是一片绿地,在短短的十年中,这里实现了从无科技到高科技的转变。1992年成立以来,从生产汽车配件到设计与生产出自己的电动汽车,敏实集团以闪电般的速度高速发展着。如何在这样一个充满活力又难以预测的环境中完成集团总部的设计?
The Chinese office is facing dramatic changes. Unpredictable organizations, new types of work and the impact of technology alter the 21st century office in a major way. For the headquarters of car company MINTH, MORE designed a radical new office typology. The transition from ‘made in China’ to ‘designed in China’, forces companies to rethink their activities and work methods. Collaboration and interaction foster innovation, and should be at the core of 21st century office work. Simultaneously, work has changed from desktop, to laptop to mobile. All this requires – for an office environment – to absorb these changes and turn them into opportunities.
In 2009, China overtook the U.S. as the world’s biggest auto market. MINTH Group is a key player in this expanding industry – the company is a leading supplier of exterior auto parts with a growing impact globally. The Jiaxing-based company built a new office to house their 800 staff headquarters, in an area that was a farm field only 10 years ago– from no tech to high tech in a decade. MINTH has experienced a similar lightning speed in its development since its start in 1992 – from the production of car parts to the design and production of electric vehicles. How to design a headquarters in such a dynamic yet unpredictable environment?
▼办公室新貌,view of the office
▼报告厅,conference room
超越工作室提出了激进的设计策略,没有从功能出发,而是尽可能地包容未来可能的变化,将重点放在环境变化的不可预测性和办公空间的适应能力上。设计将固定元素(储物柜,食品贮存,打印机,屏幕等)和灵活元素(人)的对比做到最大,通过一系列的储物墙形成清晰的概念:条形码系统。项目中条形码是固定的,而条码之间的空隙可以随着时间的推移和公司对功能需求的改变而变化。在传统的单元状的办公空间和办公景观类型之间相互借鉴融合。储物柜具有封闭的不锈钢侧面 – 用于输入和存储 – 以及开放的半透明面 – 用于信息共享。而储物柜之间的空间可以随着时间的推移和公司对功能需求的改变而变化。 交错布置的储物柜可以允许不同部门之间有视线上的交流,也可以跨部门沟通讨论项目。通过将储物柜置于南北方向,也实现了建筑空间采光的最大化。
MORE proposed a radical design strategy, not based on program, but embracing change. The key driver is the unpredictability of the environment and the ability of the office to adapt. The design maximizes the contrast between the fixed items (storage, pantries, printers, screens etc) and the flexible ones (people) through a system of walls: the barcode. The ‘bars’ in this scheme are fixed; the space in between can densify over time – depending on the development of the activities of the company, creating a crossover between the traditional cell office and the office landscape typologies. Having a closed aluminum side for storage and an open translucent side for sharing information, the bars create a diverse setting; an aggregation of ‘rooms’ that can change and alter over time. The shifted bars allow for views and communication between project teams and departments. By placing the bars in a north-south direction, sunlight enters deep into the building.
▼轴测图,axon
▼空间流线组织,organization of routing
▼空间功能组织,organization of functions
▼储物柜空间,placing the bars
▼条形码空间,the barcode space
建筑围绕着中央大堂展开。这里是建筑的核心。将公共大厅与二楼的培训中心连接起来的平缓的大楼梯可用于公共活动,聚会和非正式会议等各种集体活动。
The project is organized around the central lobby, which can be understood as the very heart of the building. A gentle stairs, which connect the lobby with the training center on the second floor, can be used for public events, gatherings and informal meetings – various sorts of collectivity.
▼中央大堂,the central lobby
方案包含了几个“特别元素”。 圆形演讲室可让演讲者站在听众的中间,听众也可以看到彼此。二楼的贵宾室则完全由木材制成 – 与建筑物其余部分的工业材料形成鲜明对比。所谓“战斗室”允许使用者们在“詹姆斯·邦德式”的环境中开展保密会议。
The project contains several ‘specials’ to stimulate collectivity. The circular lecture room allows a speaker to stand in the middle of his audience, and the listeners to see each other. The VIP rooms on the second floor are entirely made out of wood – contrasting the industrial materials in the rest of the building. The green lobby creates a lush environment with plants where workers can unwind. The so-called ‘war rooms’ create confidential brainstorms in a ‘James Bond-like’ environment. Informal areas with dedicated designed furniture create space for spontaneous meetings.
▼VIP室,VIP room
▼密保会议室,meeting room
整栋建筑的天花板由白色钢板制成。工业化的材料如钢,玻璃,铝,以及它们之间无缝的衔接方式都回应了MINTH的工业化背景。它们清晰的定义了这件公司的精神和其在高科技公司中的领导地位。
The ceiling in the whole building is made of white steel mesh panels with all installations – HVAC, sprinkler, smoke detectors, baffles, lighting etc – integrated above them. On every floor, the orientation of the LED lights differs, to generate a unique identity per floor. The industrial materials – steel, glass, aluminum – and the flawless, grid-like organization, are a clear reference to MINTH’s industrial background. Yet, they clearly define this firm’s spirit in being a leading high tech company.
▼楼梯间,staircase
▼其他内部空间,interior working space
▼空间采用金属板材质, the steel mesh panel
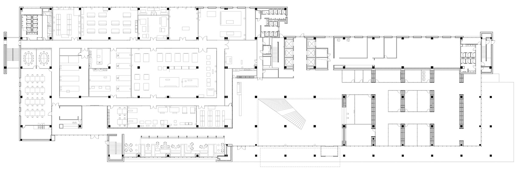
▼一层平面图,the first floor plan
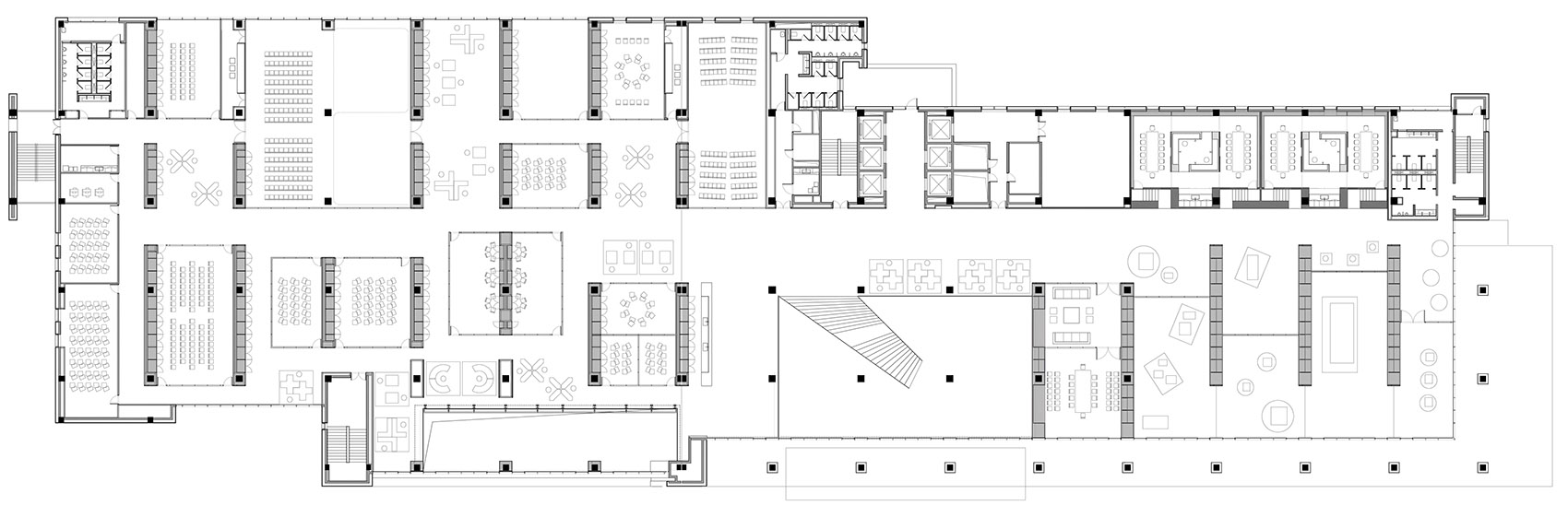
▼二层平面图,the second floor plan
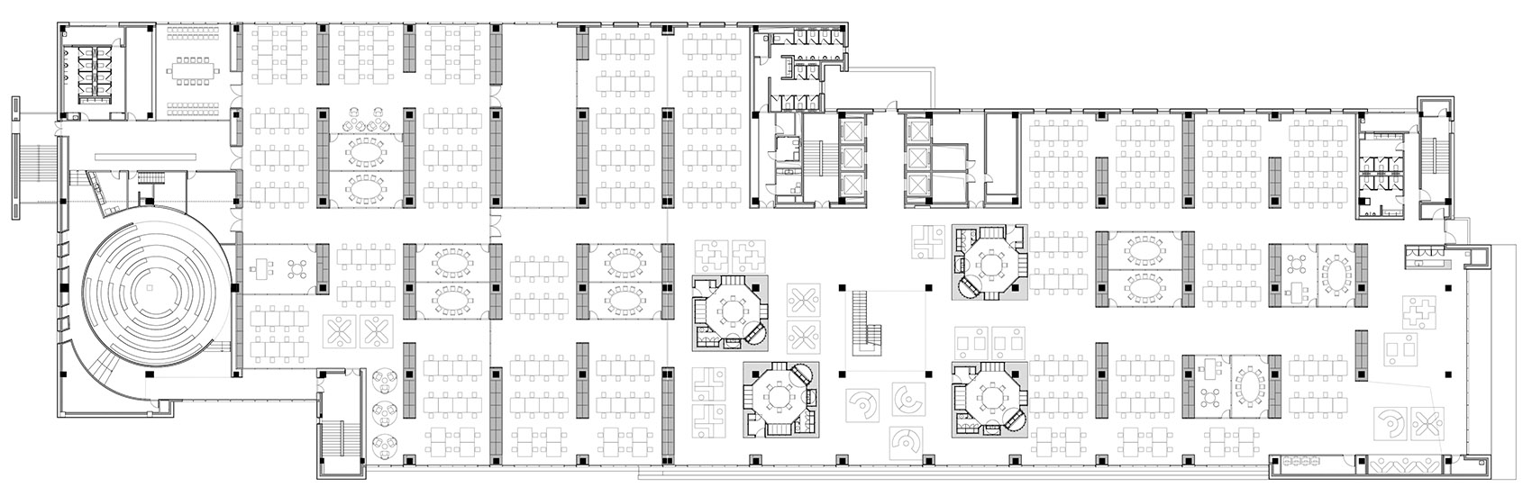
▼三层平面图,the third floor plan
▼四层平面图,the forth floor plan
Headquarters, MINTH Group, Jiaxing, CN
20,000 sqm
Interior Design, Furniture design
Design: 2014-2015
Construction: 2015 – 2016
Team:
Daan Roggeveen, Robert Chen with
Concept: Jaime Fernandez Rosa, Francesca Gatti
SD: Jaime Fernandez Rosa, Francesca Gatti, Sabine van der Heijden, Edbert, Veronica Lopez Santamaria
DD: Sander Marino, Jaime Fernandez Rosa, Xin Dogterom, Wang Bizhou, Andrea Pisanu, Mandy Han, Lai Zheheng, Sun Furui, Phoebe Yin
CD: Sander Marino, Chuang Jui-Heng, Jaime Fernandez Rosa, Jasmer Ma
Construction: Chuang Jui-Heng, Xue Guangjie
Photography: WassinkLundgren
客服
消息
收藏
下载
最近








































