查看完整案例

收藏

下载
“图书馆是无限的,周而复始的。假如一个永恒旅人从任何方向穿过去,几个世纪后他将发现同样的书籍会以同样的无序进行重复。有了那个美好的希望,我的孤寂得到了一点安慰。”在博尔赫斯眼里,图书馆是一个迷宫,一个“小径分岔的花园”,一个深邃的宇宙。“肉体终将消失,而心灵的产物——图书馆却会永存。”他又将世界本质归结为一本圆形循环的书——包罗万象,无始无终。“时间永远分岔,通向无数将来。”博尔赫斯用他最真挚的感情和最深刻的认知触摸到了时间的本质、宇宙的秩序以及人类心灵中那个真正的图书馆。
“The library is a place with no boundary and an endless loop. If an eternal traveler goes through it from any direction, he will find the same books reappear without any particular order several centuries later. This beautiful hope has been a small consolation to my solitary heart.” In his eyes, the library is a labyrinth, a garden of forking paths, a profound universe. “The human body will diminish eventually, whereas the fruits of the heart – library – will live forever.” He concluded that the world is not unlike a book of circular loop that encompasses everything and has no beginning or ending. “The time itself forks to limitless futures.” Borges touches the essence of time, the order of the universe and the real library residing in human beings’ hearts with his sincerest feelings and profoundest perception.
▼如迷宫般的读书区,the reading area
图书馆,象征的是人类精神寻求的至高点。用知识构筑起来的“图书馆”就像一道墙,它保护着我们,同时又束缚着我们,它既开启我们的心灵,同时又遮蔽我们的心智。知识和智慧作为认知真理、道路和生命的手段,因着人类自身的狭隘和虚妄,那浩繁的图书卷册带给人的只有紊乱和遮蔽,让人迷失在灵魂的旷野中,正如博尔赫斯所形容的迷失在这茫茫书海的迷宫中了。
The library represents the zenith of human beings’ spiritual pursuit. The library built with knowledge is like a wall, protecting us while confining us, opening up our mind while blinding our inner self. Knowledge and wisdom, though intended as a means for understanding the eternal truth, path and life, are written in the enormous volumes of books, which, as it turns out, bring chaos and confusion to human beings which are narrow-minded and vainglorious. This is like the blind leading the blind, and the result is the souls lost in the vast wilderness, like those lost in the labyrinth of books as described by Borges.
▼洽谈区:由书本环绕的休闲体验,rest area is surrounded by books
这风的源头如同万籁俱静时人们心灵虚空处隐约传来的微声,启示你与这源头建立血脉连接的灵魂归处才是天堂所在。万物都因这源头的思想、智慧而存在。人类的生命也只有在与这源头重新建立起血脉联系后,智慧思维下的一切创造才有了真正意义上的标杆,也才具备了在这茫茫书海中找寻到那条通往永恒真理的道路的可能性,从而认清生命被造之初所命定的永恒意义。愿这源头的光能透过风合睦晨设计的这个不起眼的小小社区图书馆照亮里面读者的心,引领他们可以在这书海中找寻和感受到那真正的智慧。
The call of the God is like a faint sound that surfaces from the emptiness of the heart when the world is quite and you are enlightened to connect with God from the depth of your soul. That’s where the heaven is. The God, the almighty creator, is the source for thoughts and wisdom. All the living things of his creation exist for reason of his thoughts and wisdom. Thus, King Solomon wrote in the Proverbs, “The fear of lord is the beginning of wisdom.” Only when a blood bond is re-established between human beings’ lives and their Creator can any creations, the fruits of wisdom and thoughts, be properly benchmarked, and can there exists a possibility for finding out the path towards eternal truth and thus figuring out the eternal meaning given to any life at its creation. Fenghemuchen hopes to pay tribute to the immortal God through this work. May his light pierce through this humble community library and enlighten the hearts of the readers, leading them to trace the real source of wisdom in the sea of books.
▼书本构建成图书馆内部的墙壁,the book shelves act as walls
▼穿梭在图书馆中,inside the library
▼不同形式的阅读体验,different kinds of reading experiences
▼水吧区,bar
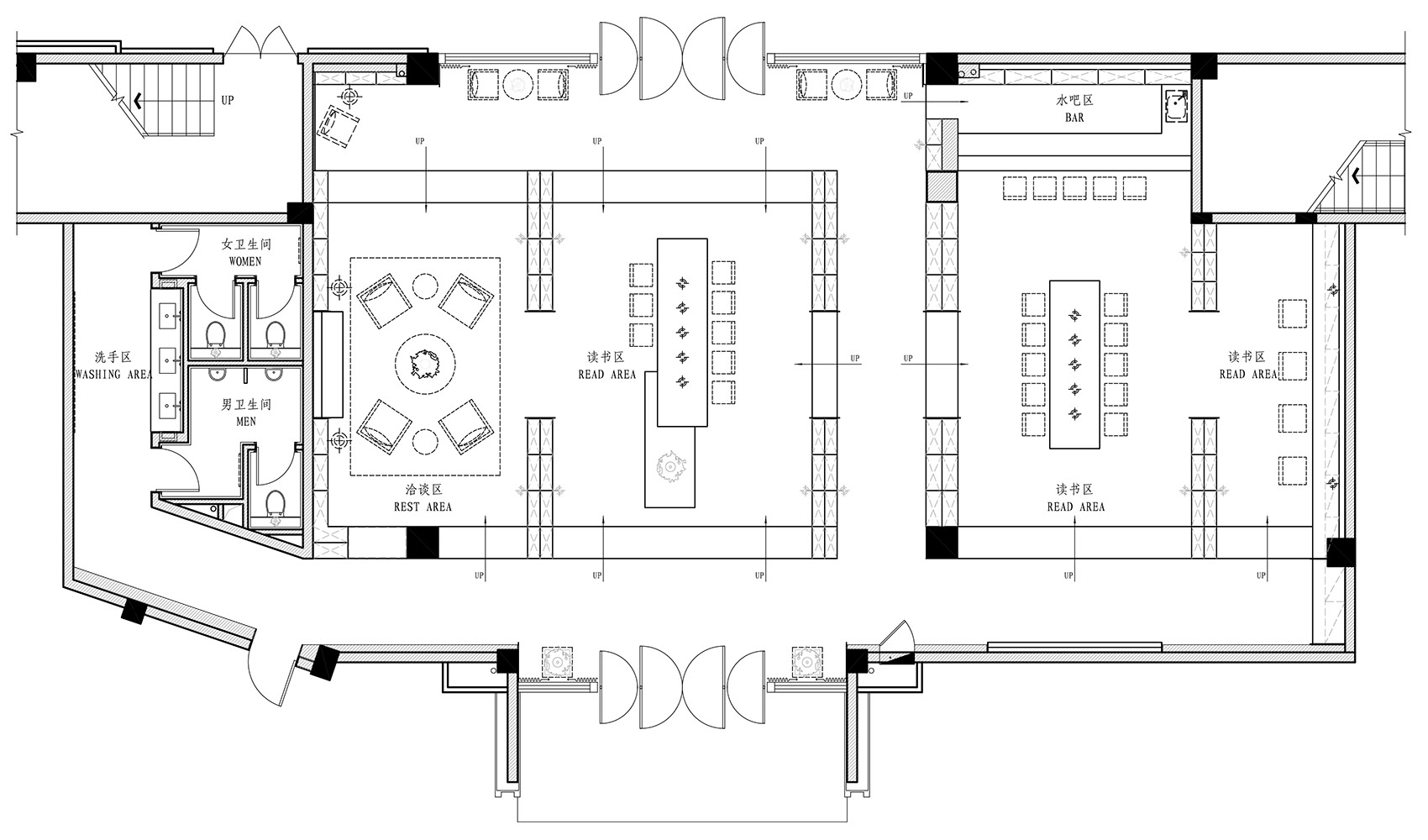
▼平面图,plan
项目名称:南京句容市图书馆金科分馆
设计公司:风合睦晨空间设计
设计师:陈贻 张睦晨
项目地址:南京句容市
建筑面积:300㎡
设计完成时间:2017年05月
摄影师:孙翔宇
撰文:陈贻
主要材料:
地面:实木地板、水泥地坪漆
立面:木饰面、软木
天花:木地板、乳胶漆
中英文由设计师方提供,选文有改动
客服
消息
收藏
下载
最近



















