查看完整案例

收藏

下载
基于对各种公司及组织的空间利用和工作方式的研究,设计师发现,有趣的设计往往能够使特定的空间发挥出更大的作用。因而设计师决定从城市空间中汲取灵感,并将最前沿的城市设计理念应用于办公室中的不同区域。
Based on our own research of space usage and work style in various organization we noticed that function strengthened with interesting design increase usage of particular spaces according to their destiny. We decided to use the best developed patterns and inspiration from urban space and look at urban planning analogies for the different areas of work in the office.
▼带有大屏幕的办公室入口,entrance with a media wall
▼入口区域,entrance space
以华沙作为范本是一个必然的选择。作为MediaCom在全球公司中的一份子,华沙总部办公室希望彰显其自身的独特性。设计的初衷在于为员工提供简洁且易于辨认的空间,同时能够顺畅地行使各种功能。设计师从波兰的众多城市景点中选取了19个,以作为功能层面的参照,其与众不同的特质和辨识度成为了直接的灵感来源。借此,设计师打造了以下空间—— Zbawiciela广场:宽敞而开放的、带有厨房的网络空间;Warsaw Centralna(中央车站):用于接见客人的会议室;Kopernik科学中心:创造空间;华沙大学图书馆:安静办公空间及会议室;国家体育馆:礼堂,为创意工作和集体讨论特别定制的空间等等。
▼中央楼梯,internal staircase
Choosing Warsaw as a place to refer to turned up to be obvious. MediaCom Warsaw – media house that is a part of global holding wanted to highlight it local character. The reference to individual Warsaw motives from the very first day simplified the recognition of spaces by employees and naturally communicated their functions. From several dozen of Poland capital spots we chosen nineteen that due to their function. Unique character and recognition became direct inspirations. This way we created: Zbawiciela Square – wide, open networking zone with kitchen;Warsaw Centralna (Central railway station) – conference spaces dedicated to guests;Kopernik Science Centre – creative zone;University of Warsaw Library – work in silent/focus zones and meeting places;National Stadium – auditorium space, perfectly tailored to creative workshop activities, brainstorms etc.
▼集会空间 – “桥”,meeting space – “bridge”
▼集会空间 – “机场”,meeting space – “airpiort”
▼集会空间 – “公交车站”,meeting space – “bus stop”
▼创意空间,creative zone
▼集体讨论空间,network space
▼会议室,meeting rooms
办公室中的所有空间及其组成部分自然而然地为建筑工人指明了名称和方向,使项目得以迅速而准确地完成。新的MediaCom办公室占地3000平方米,目前共有300名员工,灵活的设计使其最多可以容纳400人。办公室的设计以员工活动为依据,为办公赋予了必要的功能和各种可能性。在这样的环境中,办公桌与员工并非一一对应,所有的空间皆为员工所共享。频繁的人事结构调整以及不断变化的工作任务为公司带来极大的灵活性。
All zones in the office and their components have naturally gave the construction workers the names and orientation in the office. They were quickly assimilated and functioned as the official names, which strengthened us in the accuracy of our assumptions.The new MediaCom office is located on 3000 square meters and now employ 300 workers, flexible design allow to increase it up to 400 people. Office is designed accordingly to the concept of work based on the activity of employees (Activity Based Workplace), providing a wide range of possibilities due to job activities, and expected features. In such an environment, individual work desk is not assigned to the employee, and all the office spaces are shared by people employed in the company. The company is gaining a lot of flexibility due to frequent changes in the structure of employment and specific tasks.
▼咖啡站,coffee point
The new MediaCom headquarter along with surprising aesthetic is mainly characterized by it functionality. Communication routes are separated from zones of individual and team work by support zones like meeting rooms, telephone booths or places for ad-hoc meetings. This helps to reduce visual and acoustic distractions generated by people moving around the office, and at the same time maintain the character of space that is wide open. The natural consequence of our strategy of working space was the introduction of “clean desk policy”.
▼平面设计,space branding
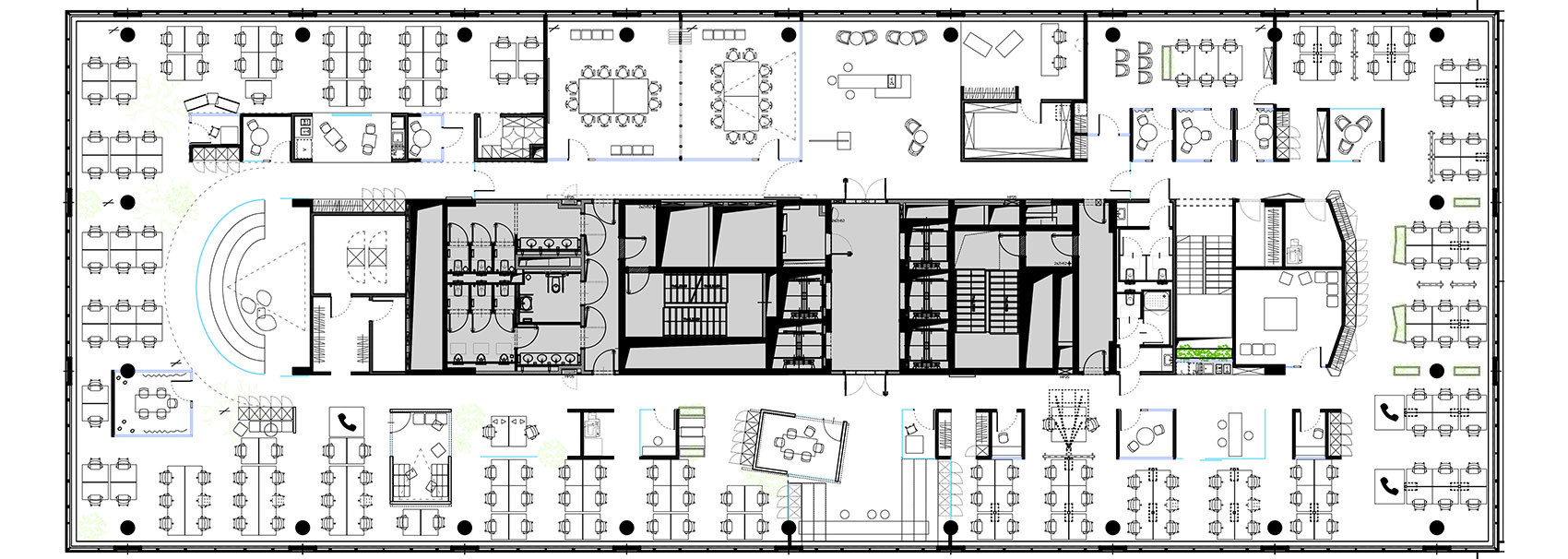
▼平面图,floor plans
▼楼梯平面及剖面图,staircase plan and section
▼工作空间平面及剖面图,plans and sections of work places
Project Name: MediaCom Warsaw
Location: Warsaw, Poland, Europe
Site Area: 3000 m2
Completion Date: November 2016
Architect: Workplace (Bogusz Parzyszek, Dominika Zielińska)
Photographer: A.Grzesik
Client: MediaCom Warsaw
客服
消息
收藏
下载
最近

























