查看完整案例

收藏

下载
项目概况
科技创新港位于上海西北郊的上海国际汽车城的核心区域,是一个定位于面向汽车产业未来智能化转型升级的研发集聚园区和产业示范基地,总建筑面积逾20万平方米。
整个园区呈现为由南北景观中轴串联、20个小街坊(约50mX50m)均布的低层高密度空间规划模式,并由国内五家建筑师事务所(维思平、致正、大舍、标准营造和刘宇扬)以集群设计的方式负责落地实施。
整体方案几经演化,最后确定为由十字双轴(南北向的景观绿化轴和东西向的公共服务轴)串联四组研发组团,每组研发组团包含四个小街坊。
Auto Innovation Park is located in the core area of Shanghai International Automobile City (northwest suburb, Shanghai), which is the research and development hub and industrial model base for automotive industry’s future intelligent transformation and upgrade, with overall floorage of more than 200,000 m2.
The whole Park is presented as a low-rise high-density spatial planning with north-south landscape axis series and 20 small blocks (about 50mX50m). It will be in the form of group design composed by five Chinese architect offices (WSP, Atelier Z +, Deshaus, Standard Architecture and ALYA) for landing implementation.
Upon the several evolutions, the overall project was finally determined by the four R&D groups which defined by cross biaxial series (landscape green axis in north-south and the public service axis in east-west), and each group includes four small blocks.
©胡义杰 HU Yijie
致正建筑工作室所承担设计的C地块位于整个园区的东北角。项目面临的难题是无法对将来的入驻研发机构的空间需求做出清晰的界定,而是希望不同的建筑师团队根据初步的设想通过对空间设计的探讨来形成多样而又富有弹性的空间模式。
设计之初C地块能够确定的设计要求是:其中有一个街坊是十二套小型研发单元的集合(每单元300-500平米);另三个街坊都是八套中型研发单元的集合(每单元800-1200平米)。
The Plot C designed by Atelier Z+ is located in the northeast corner of the entire park. The challenge faced by the project is: there isn’t a clear definition on space requirements from the R&D institutions to be settled, but rather that different architect groups are hoped to create a diverse and flexible spatial model based on their preliminary spatial design.
Design requirements of Plot C which are able to be determined in the early days are: one block of twelve small R&D units (each measuring 300-500 m2); and other three blocks each containing eight medium-sized R&D units (each measuring 800-1200 m2).
▼区位图,site map
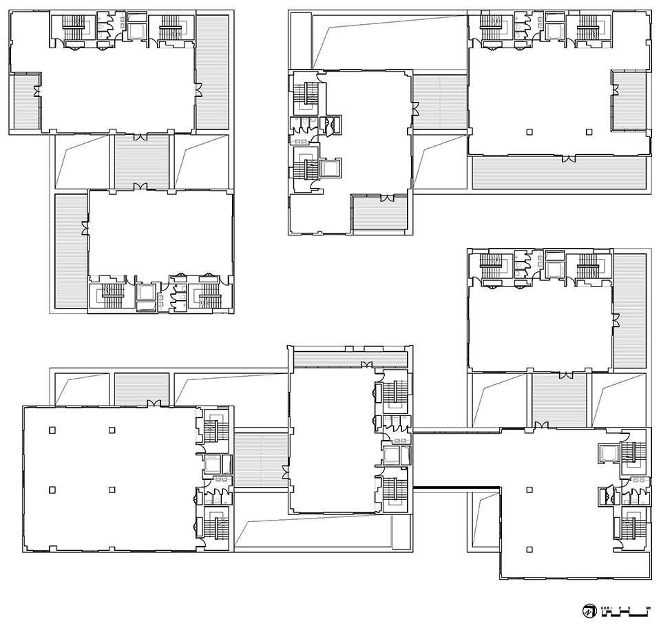
▼组团场地分布,clusters and distributions
设计策略
Design Strategies
面对新兴产业空间的适应性要求和规划确定的高密度开发模式,以及无特征性场地上的地域空间文化传承语境,我们希望创造出有空间归属感和文化认同感的积极的办公环境。
我们的基本策略是引入不同的研发空间组合模式,并与多层次的立体庭院组织相耦合,为每一个作为研发集合体的街坊营造专属于它的半公共空间的独特氛围,进而以多样的方式来促进未来使用中的交流与共享。
从虚实相生、步移景异的江南传统宅园文化中获得启发,以庭院为核心组织空间,以提高空间的灵活性和积极性,并在高密度的咫尺天地中营造出江南园林文化所寄托的山水意趣,赋予产业创新空间以地域文化精神。
由此形成的三种具有空间原型特征的街坊模式分别是针对小型研发单元组合的“层峰隐阁”,以及针对中型研发单元组合的“空中连院”和“双联围院”。
Facing adaptability requirements of emerging industry space and high-density development model determined by the plan, as well as the context of the regional spatial cultural heritage on the non-characteristic sites, we hope to create a positive office environment with a spatial sense of belonging and cultural identity.
Our basic strategy is to introduce a different R&D space combination model and be coupled with a multi-level three-dimensional courtyard organization to create a unique semi-public space for every entity settled in the block and then to promote exchange and sharing for future use in a variety of ways.
Getting inspiration from the traditional garden culture of virtual-real complementation and varying sceneries with changing view-points, we regard the courtyard as the core organization space to improve the spatial flexibility and enthusiasm, and to create the landscape charm of garden culture on Yangtze Delta in such high density place, providing the industrial innovation space with spirit of regional culture.
The three kinds of blocks with spatial prototyping are the “Wrinkled Peaks and Hidden Attics” for small R&D units, the “Elevated Courtyards” and the “Enclosure Courtyards with Duplex Units” for medium R&D units.
▼设计策略,design strategies
层峰隐阁(C2)
C2街坊探讨密集的小尺度研发单元在获得各自独立性的同时,如何鼓励未来更有创意的使用方式,并始终将研发空间的开放性、交融性和景观化作为基本述求。
这一街坊包含12套小型研发办公单元,我们希望用层叠的方式来组合,但要保证每套在底层有独立的入口门厅。建筑整体被分为一、二层带有庭院的基座和上部悬挑在不同核心筒上的五个透明盒子两部分,其间的三层是全部架空、上下共享的屋顶花园。
屋顶花园上设置了一系列凸起不同高度的小花园,它们成为上部悬浮单元和三层花园之间的景观和游走过度。由于一、二层有较大面积的内部退台庭院,这样整个基座就成为了一座抽象意义上的可观可游的山,外部边界整齐,内部层峦叠嶂、峰回路转;而上部的漂浮单元则成为群山之巅若隐若现的错落楼阁。
我们特意把三层上凸起的五个山峰般的小花园设想为一系列超大尺度的树石山水盆景,以此来反转建筑与山水意向之间的尺度差异。这一富有山水自然意境的研发集合体,除了作为12个独立的研发单元来使用,也可以或者在水平方向上组合扩大单元使用,或者在垂直方向上分层扩大单元使用,甚至也鼓励作为一个5000平米的研发整体来使用。
上述的最大使用灵活性始终可以和我们营造的那个“咫尺山林”般的建筑中的花园相互动。
For block C2, we tried to explore the small R&D units in their own independence, discussed on how to encourage a more creative future use and always regard the openness, integration and landscaping as a basic requirement.
This block contains 12 small R&D office units, so we decided to combine them in cascading way and ensure that there is a independent entrance on each ground floor. The whole building is divided into two parts, a perforated pedestal with courtyards on first and second floor and five transparent boxes suspended on different core tubes in the upper fourth floor, in which the third floor are all overhead, up and down sharing roof garden.
The roof garden is provided with a series of small gardens with different heights, they become the landscape and path transition between the upper suspension unit and the garden on the third floor. As the first and second floor have a large area of the internal setback courtyards, the entire pedestal has become a mountain in the abstract sense, in which we can view and also we can stroll. It’s outer boundary is neat and the inside peaks is rising one after another with winding paths, while the upper part of the floating unit has become the looming scattered pavilion at the top of the peaks.
We deliberately conceive the five-peak-like small gardens which are raised on the third floor as a series of large-scale potted tree-stone landscape, in order to reverse the discrepancy in scale between architectural and scenic images. These R&D combinations with artistic conception of natural scenery can be used as 12 independent R&D units as well as the expansion unit in the horizontal or vertical direction. They are even encouraged to be used as a whole R&D zone of 5,000 m2.
The above-mentioned maximum flexibility can always be used to interact with our garden created in this “very small scale mountain”.
▼单元配置,the unit
▼写实轴侧/分层立体庭院分析,axon/layerd courtyard
▼建筑外貌,view of the building
©陈颢 CHEN Hao
▼空中花园,roof garden
©陈颢 CHEN Hao
▼空间内部,interior
©陈颢 CHEN Hao
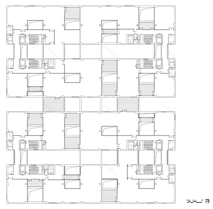
▼一层平面图/二层平面图,the first floor plan/the second floor plan
▼三层平面图/四层平面图,the third floor plan/the forth floor plan
▼剖透视,perspective section
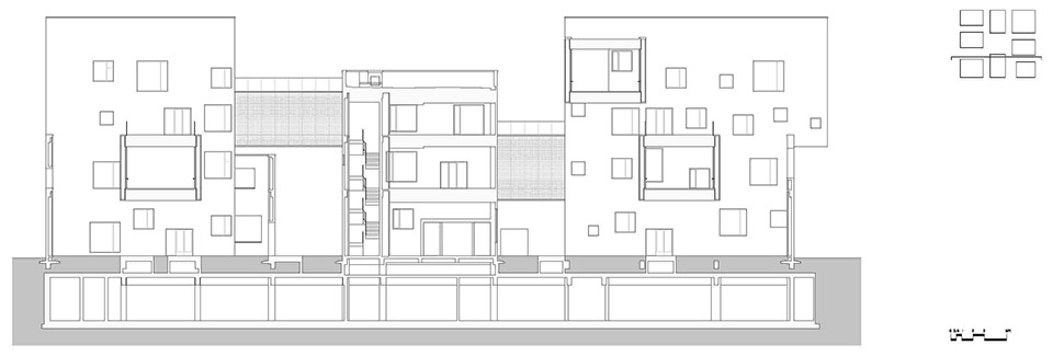
▼剖面图,section
▼东立面/西立面,east elevation/west elevation
▼南立面/北立面,south elevation/north elevation
空中连院(C1、C4) Elevated Courtyards(C1、C4)
C1、C4这两个街坊的设计述求一方面是希望在底层提供无柱的大跨高敞试制车间,另一方面是为上部的研发办公空间提供一种可灵活组合的小尺度空间模式。我们的基本思路是先把体量分为密集均布的四条,每条的底层都是两端开门的长条试制车间。条状体量之间的空隙是可穿行的绿化巷道,并为上部的研发空间提供采光与通风。上部的研发空间借鉴江南传统院宅的布局模式,在四路四进的格局中形成横向和纵向可以灵活组合的庭院办公环境。这种组合方式在今后可以应对不同规模的使用要求,并维持庭院式的空间特质。
The design of block C1 and C4 is aim to provide large-span and high-open trial workshop without column on the ground floor and to provide a small-scale space model with flexible combination for the upper part of the R&D office space.
Our basic idea is to divide the volume into four densely distributed strips, each of which is the long strip trial workshop with doors at both sides. The gap between the strips is the green roadway where people can walk through, and they provide lighting and ventilation for the upper R&D space.
The upper R&D space refers to the traditional on Yangtze Delta courtyard house layout, forming the courtyard office space which can be flexibly combined both in transverse and longitudinal direction. This kind of combination is well prepared for multiple future use and maintaining the courtyard-style space particularity.
▼单元配置,the unit
▼写实轴侧/分层立体庭院分析,axon/layerd courtyard
▼建筑外貌,view of the buildings ©胡义杰 HU Yijie
▼巷道,lane ©胡义杰 HU Yijie
▼内部空间,interior ©胡义杰 HU Yijie
▼一层平面图,the first floor plan
▼二层平面图/三层平面图,the second floor plan/the third floor plan
▼四层平面图/屋顶平面图,the forth floor plan/the roof plan
▼剖透视,perspective section
▼剖面图,section
▼东立面/西立面,the east elevation/the west elevation
▼南立面/北立面,the south elevation/the north elevation
双联围院(C3)
Enclosure Courtyards with Duplex Units (C3)
C3街坊的设计述求是在确立每个研发单元的独立性的同时,为将来使用中的再组合提供多样的灵活性,并保持室内外空间的充分互动。每个单元底层的试制车间鼓励展示、交流等使用的兼容性。
街坊由四组双联研发楼呈风车状围合而成,中间是一个街坊共享的可穿行公共庭院。每组双联研发楼底层都有每个单元的试制车间各自专属的庭院空间,上部的研发办公部分每层都有错落的露台或双层大开口的阳台空间,而且可以两两单元在不同楼层、不同方向连成一体。
The block C3 is designed to establish the independence of each R&D unit, providing a variety of flexibility on re-combination in future use, and maintaining sufficient indoor and outdoor spatial interaction.
Functional activities like display, communication are encouraged in each trial workshop on ground floor.
The windmill shaped block is made up of four groups of duplex R&D buildings, in the middle of which there is a public courtyard where people can walk through.
On the ground floor of each duplex building, each trial workshop enjoys an exclusive courtyard, while the upper R&D offices have scattered terraces or balconies with double-storey height large opening.
Every two units can be connected on the different floors and in different directions.
▼单元配置,the unit
▼轴测图/分层立体庭院,axon/layerd courtyard
▼建筑外貌,view of the buildings ©胡义杰 HU Yijie
▼庭院,garden ©胡义杰 HU Yijie
▼一层平面图,the first floor plan
▼二层平面图/三层平面图,the second floor plan/the third floor plan
▼四层平面图/屋顶平面图,the forth floor plan/the roof plan
▼剖透视,perspective section
▼剖面图,section
▼东立面/西立面,east elevation/west elevation
▼南立面/北立面,south elevation/north elevation
构造系统
Architectonic System
在建筑外观上所有研发组团都选择了灰白色涂料作为整体背景,以保持差异中足够的一致性。C地块不同街坊的差异也很大,我们选择在白色涂料的高低错落、凹凸呼应的体量背景上以大小不等、自由分布的窗洞来统一不同街坊的形态差异,在高密度的环境中形成一种轻松愉悦的外部氛围。
不同街坊都有分布的大尺度阳台在立面上提供了有进深的、甚至是穿透体量的开口,加强了建筑内外的勾连体验,并在不同高度创造了有公共氛围的活动空间。不同体量之间的空中连接体采用玻璃幕墙外加穿孔铝板的双层构造形成半透明的体量。
C2街坊的一系列悬浮玻璃盒子营造了顶端的轻盈与开放,强化了建筑与景观的互动,透明表面背后隐约透出桁架杆件既参与了空间与形式的建构,又保持了大尺度悬挑结构的可读性。
All R&D groups have chosen grey white painting as a whole background color to keep enough consistency of architectural appearance. Since the blocks of Plot C are very different from each other, we unify morphological difference by setting different size and freely distributed windows in this scattered and organized concave-convex white volume background.
We create relaxed and pleasant external atmosphere in such a high-density environment. The large-scale balconies in each block have provided the facade with deep, even volume-penetrating opening. The indoor and outdoor connecting experience is strengthened and public activity realm is created at different heights.
The air connectors between different building volumes are constructed with glass curtain wall and double-layer perforated aluminum plate, which makes the volume translucent and fuzzy. In block C2, a light graceful and opening top is created by a series of suspended glass boxes. So the interaction between the building and landscape is intensified.
The hidden trusses behind the transparent surface are not only involved in spatial and form construction, but also have maintained the legibility of large-scale cantilever structure.
▼灰白色涂料作为整体背景,chosen grey white painting as a whole background color ©胡义杰 HU Yijie
▼高低错落,indifferent heights
©胡义杰 HU Yijie
本项目从设计到建成所跨越的这六、七年正是中国汽车产业完成传统制造规模的高峰期、面对新能源、智能、网联、体验等产业转型挑战的关键时期。
可喜的是,随着越来越多的代表性研发企业的入驻,园区的空间与环境契合了这些研发企业的需求,街区式的开放结构和景观化的公共空间开始营造出园区的社区认同感,差异化、有弹性的研发单元组合促进了创造性的空间使用,让创新港有能力承载未来汽车产业进一步升级与转型。
The six or seven years elapsed from the design to the completion of this project happened to be the peak time and crucial period of China’s automobile industry, which is turning to complete its traditional production scale, face the challenges brought by new energy industry, artificial intelligence, mobile internet and customer experience.
It is gratifying that as the number of representative R&D enterprises are settled, the park space and environment have fitted their needs. The block open structure and the landscaping public space began to create a park community identity; different and flexible R&D unit combinations have facilitated creative spatial use; Auto Innovation Park is able to survive the future automobile industry upgrade and transformation.
▼模型图,model
▼总平面图,master plan
项目档案
项目名称:上海国际汽车城科技创新港C地块
建筑师:周 蔚 + 张 斌 / 致正建筑工作室
主持建筑师:周 蔚、张 斌
项目建筑师:金燕琳(方案设计、扩初设计、施工图设计)、苏炯(方案设计)、李沁(施工图设计)
设计团队:王佳琦、李佳、霍丽、杨敏、李姿娜、李晔、仇畅、夏彧、陆磊、黄伟立
合作设计:上海建筑设计研究院有限公司
建设地点:上海市嘉定区安亭镇安研路、安拓路
建设单位:上海国际汽车城发展有限公司
施工单位:上海舜杰建设(集团)有限公司
设计时间:2010.01-2013.03
建造时间:2013.07-2016.06
基地面积:24941m2
占地面积:10772m2
建筑面积:36839m2(地上),10332m2(地下)
结构形式:混凝土框架结构、局部钢结构
建筑层数:地上4层、地下1层
主要用途:研发、办公
主要用材:涂料,铝镁锰板,平板玻璃,铝型材,烤漆铝板,穿孔铝板,型钢,预涂装水泥纤维板,防腐木地板
摄 影 师:陈颢 、胡义杰
Credits and Data
Project Name: Plot C, Auto Innovation Park, Shanghai International Automobile City, Jiading, Shanghai
Architects: ZHOU Wei + ZHANG Bin / Atelier Z+
Partner in Charge: ZHOU Wei, ZHANG Bin
Project Architect: JIN Yanlin (Schematic Design, Development Design, Constructional Drawing Design), SU Jiong (Schematic Design), LI Qin (Constructional Drawing Design)
Project Team: WANG Jiaqi, LI Jia, HUO Li, YANG Min, LI Zina, LI Ye, CHOU Chang, XIA Yu, LU Lei, HUANG Weili
Design Cooperation: Institute of Shanghai Architectural Design and Research Co., Ltd.
Location: Anyan Road, Antuo Road, Anting, Jiading, Shanghai
Client: Shanghai International Automobile City Development Co., Ltd.
General Contractor: Shanghai Shunjie Construction (Group) Co., Ltd.
Design Period: Jun.2010-Mar.2013
Construction Period: Jul.2013-Jun.2016
Site Area: 24941 m2
Building Area: 10772m2
Gross Floor Area: 36839m2 (Above-ground Buildings), 10332 m2 (Basement)
Structure: Reinforced Concrete Frame; Partly Steel Frame; 4 Stories,1 Basement
Principal Use: Research, Office
Primary Materials: Painting, Al-Mg-Mn Alloy Sheeting, Slab Glass, Pre-coated Aluminum Sheeting and Profile, Pre-coated Perforated Aluminum Sheeting, Steel Profile, Pre-coated Cement Panel, Timber Pavement
Photography: CHEN Hao、HU Yijie
客服
消息
收藏
下载
最近






















































































































































































