查看完整案例

收藏

下载
本项目位于成都天府新区,西南航空港经济开发区内,距离双流国际机场约14公里,属于成都市新能源产业功能区规划的一部分。项目用地东邻成雅高速,西侧为川齿路南延长线。项目所在地块仍然保留着成都平原所特有的林盘肌理——以耕地及鱼塘为主,小型聚落和林地散布其中。因此,设计的重点集中在如何平衡厂区内部由于工艺需要对场地平整以及道路标高的要求,和对成都平原特有的地景风貌的保留利用。
在场地内部用地的分期及功能划分时,我们根据不同的使用功能来选择处理场地的策略:办公、展示及接待交流区域以保留原始地形为主,利用原有的景观元素进行场地设计。场地内原有的鱼塘在改造后作为中心水景,原始的植物群落在不影响建设及使用的情况下也尽量保留,结合地形肌理形成变化丰富的梯田式景观;厂房及研发区则主要考虑工艺需求,场地较为平整,景观设计以功能性较强的硬质景观为主,选择速生植物为主要的景观绿植,并控制生长高度,以不遮挡视线为宜,保证高效、便捷的交通联系。
▼建筑适应场地环境将朝内立面开放,the elevation that face to the inside is open to the landscape ©何震环
The project locates in Tianfu New Area, Chengdu, inside the Southwest Airport Economic Development Zone. Being 14 km away from Shuangliu International Airport, it is part of the New Chengdu Energy Industry District Planning.
The project is east to Chengya Highway and west to South Chuanchi Road, extension area. The site still remains the forestry texture which is unique to Chengdu Plain. The forestry texture is formed mostly by agricultural lands and fish ponds with small settlements and forests scattering in-between. Due to that, our design focuses on how to meet the restricted sloping and elevation requirement inside the project. We also try to preserve most of the unique landform and topography from Chengdu Plain.
When planning the programs and phasing of the site, we choose different topographic manipulation strategies based on their various functions:
For office, exhibition and reception area, we maintain the original topography, using the existing landscape elements to design these areas. The existing fish pond becomes the central water feature after the design. We also maintain most of the original planting without interfering the construction. The strategy is to transfer them into series of various terrace landscape merging into the topography.
For warehouses and R&D areas, considering the craftsmanship requirement and smooth topography, we decide to use hardscape to serve the purpose of fully function, using rank vegetation as main landscape planting. We also control the height of the vegetation to not block the view and maintain the efficiency of transportation.
▼现状分析及场地设计,situation map
综合楼位于场地西北角,以完整简练的管状出挑外壳沿川齿路南延线展开,在控制西侧阳光的同时,作为该项目的主要形象展示面;
北侧布置专家接待功能,在方便连接城市道路的同时,与综合楼也有便捷的交通联系;
这一区域的土地开发强度相对较低,以保留原始地形和景观为主。
场地东北角地势较为平坦,在该区域设置实验研发中心和生产车间,其余厂房建筑布置于场地南侧的二期建设用地内。
The complex building locates in the north-western corner of the site, extending itself along the South Chuanchi road in a holistic, clean style with tube shaped cantilever structure. We choose the west side of the project as main iconic showing area, meanwhile controlling its sunshine angle.
The north side of the project is used as expert reception area. It has convenient traffic access to the complex building and connects itself to the urban main vehicular road. This area has low impact from construction development, where maintains the original topography and landscape.
The north-eastern corner of the site is relatively flat, which is used as R&D center and factory warehouses. The rest of the warehouses are located in the south of the site which is in the phase two construction.
▼布局图,the overall layout
综合楼主要承担对外的办公、交流及展示功能,建筑造型亦有形象展示的要求。钢桁架结构形成的管状体量在西侧向城市道路逐渐挑出,奠定了轻盈而具有动感的整体基调。
建筑内部东侧为主要的办公空间,西侧则利用倾斜的空间布置开放式展厅、大会议室等公共空间。同时,西立面的格栅处理也对阳光和景观视线起到筛选、过滤的作用。
The complex building undertakes most of the office, information sharing and display. The needs for image displaying also impact its architecture design. Steel truss structure forms a tube-shaped space cantilevered in the west side of the side, facing the main urban avenue. It lays down a basic design style of light and dynamic.
Inside the east side of the building is the main office area while the west side becomes the meeting room, open space and exhibition hall using the triangle space. At the same time, the panel system in the west side also filters both the sunlight and view.
▼沿街立面,along the street ©何震环
▼入口的浅水池和倒影,entrance pool ©何震环
▼综合楼近景,close view ©何震环
▼入口细部,detail of the entrance ©何震环
▼室内,interior ©何震环
▼三角形空间中的钢爬梯,the steel stairs in the triangle space ©何震环
▼入口水池细部,detail of the entrance pool ©何震环
▼综合楼细部,detail of the architecture ©何震环
▼一层平面图,the first floor plan
▼二层平面图,the second floor plan
▼三层平面图,the third floor plan
▼四层平面图,the forth floor plan
▼剖面图,section
▼立面图,section
▼综合楼功能布局,layout of functions
川西会所 Chuanxi Club
该区域分为两部分:以接待、会议为主的集中会所和以休闲、招待为主的院落区。会所有单独的对外出入口,集中会所作为前台接待的同时,还具有连接办公和招待区域的功能,形象上呈现出集中布置的完整体块。
This area is divided into two parts: the first part is the gathering area with reception and meeting rooms, and the other part is the courtyard area with recreation and entertainment. This area has its own independent entrance and exit. Besides the front reception, the gathering area also serves as a connection to the office and reception area. It is interpreted into a collective and holistic image.
▼接待中心,the gathering space ©何震环
▼接待中心爆炸图,the exploded map
▼立面细部,facade detail
▼平面图,plan
▼立面及剖面,elevation and section
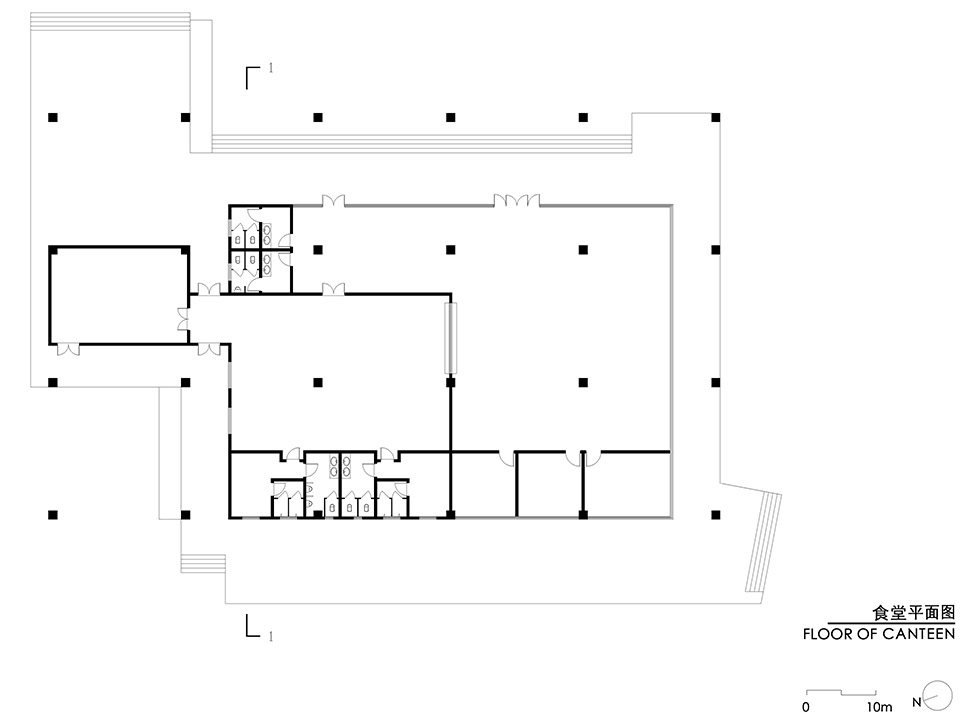
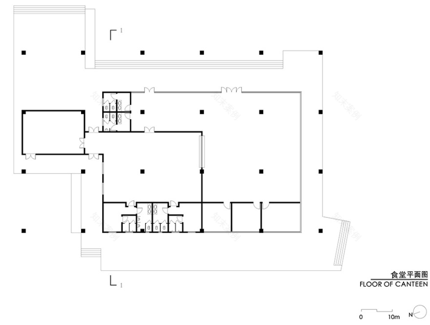
员工食堂靠近一二期分界线,主入口朝向厂区,其外轮廓亦反映出分界线的转折和走向。在具体的位置布局上,利用场地现有的凹地,形成局部半地下的建筑布局,同时将原有的水体经改造后向下引入建筑,作为入口处的水景,并通过景观绿化的布置形成林中餐厅的氛围。
The staff canteen locates near the demarcation of phase one and two with its main entrance facing the factory area. Its red line reacts to the orientation and angles of the phasing demarcation.
In terms of the layout, we use the existing depression to form a semi-underground space. At the same time, water is introduced to the interior space after manipulation. As the main entrance water feature, it forms an atmosphere of forestry canteen through different landscape elements.
▼员工食堂,the canteen ©何震环
▼利用场地现有的凹地形成局部半地下的建筑布局,using the existing depression to form a semi-underground space ©何震环
▼平面图,plan
▼立面图,elevation
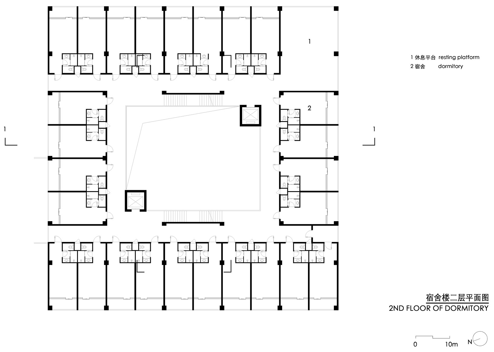
员工宿舍
Staff Dormitory
员工宿舍利用内庭院景观及走廊连接场地高差,遵从内部功能,呈现简洁、现代的立面形象。
The staff dormitory uses its internal courtyard, landscape and corridor to connect different site levels. Following its program, it represents a simple yet modernism façade design.
▼员工宿舍,the dormitry ©何震环
▼宿舍入口,entrance
©何震环
▼结合地形的宿舍内庭,the courtyard reflects to the topography ©何震环
▼二层平面图,the second floor plan
▼剖面图,section
▼立面图,elevation
项目名称:成都航宇(CAST)
建筑设计:深圳汤桦建筑设计事务所有限公司,新疆建筑科学研究院有限责任公司
室内设计:深圳汤桦建筑设计事务所有限公司,深圳市图人设计有限公司
景观设计:草晖(新加坡)设计顾问公司
设计时间:2013.10-2015.01
建成时间:2017.02
建筑面积:291253㎡
项目地点:西航港大道南延线2999号,双流区,成都,四川,中国
主创建筑师:汤桦
设计团队:刘欣、邵鹏、邵帅、刘柳、杨宁、麻世金、王思聪、邓芳、汪田浩、王泽民 等
委托机构:成都航宇超合金技术有限公司
建筑摄影:存在建筑-建筑摄影
Project Name: CAST Project
Architects: TANGHUA ARCHITECT&ASSOCIATES, Xinjiang Academy of Building Research Co., Ltd.
Interior Design: TANGHUA ARCHITECT&ASSOCIATES, Turen Design
Landscape Design: Caohui ((Singapore) Design Consultants
Design: 2013.10-2015.01
Project Year: 2017
Area: 291253㎡
Location: Chengdu, Sichuan, China
Photographer: Arch-exist
Architects in Charge: Tang Hua
Design Team: Liu Xin, Shao Peng, Shao Shuai, Liu Liu, Yang Ning, Ma Shijiin, Wang Sicong, Deng Fang, Wang Tianhao, Wang Zemin etc.
Client: Chengdu Aerospace Superalloy Technology Co., Ltd
客服
消息
收藏
下载
最近












































