查看完整案例


收藏

下载
Casas, Interiroes De Casas, Ibiúna, Brasil
面积:1158 m²
年份:2020
摄影:Manuel Sá
负责建筑师:Giancarlo Rocco
设计团队:Giancarlo Rocco, Luciano Ciampolini Rocco, Ana Lucia Pasquali Rocco, Adriana Gomes Garcia
工程:Construtora Ciampolini Rocco
景观设计:Mercado Verde
设计师描述 | Designer description:
O terreno está localizado às margens da represa de Itupararanga e a casa foi implantada de forma a explorar, ao máximo, a bela vista da represa. O extenso programa foi acomodado em 2 volumes principais:um para a área íntima e o outro para as áreas sociais e de serviços. No eixo desses dois volumes está a entrada principal da residência. A transparência das duas fachadas alinhadas permite a visualização da represa desde a chegada e, ao fundo, o espelho d´água reflete a luz solar e contribui para o controle da temperatura e da umidade.
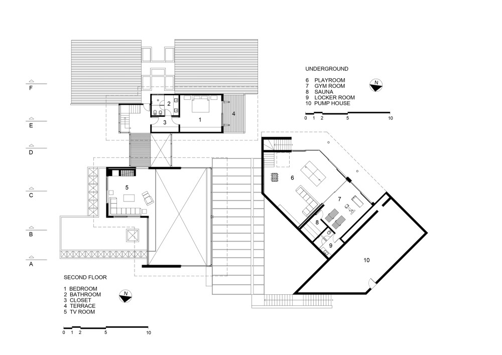
No bloco da área íntima, cinco suítes ocupam o piso térreo sendo que três delas abrem-se para um generoso terraço voltado para a represa. No pavimento superior situa-se, de um lado a suíte principal com terraço privativo e do outro uma sala íntima. Uma única escada atende os dois blocos e a ligação entre eles é feita por uma passarela que atravessa o Hall central. As salas de estar e jantar possuem pé direito duplo e separam-se da varanda por um conjunto de portas de correr que se abre completamente e permite a integração total entre os ambientes.
A varanda coberta com vidro é o ponto central da residência fazendo a ligação entre o interior e o exterior. A piscina foi rebaixada 50 cm em relação ao pavimento térreo para permitir melhor visualização da represa. O recurso da “borda infinita” em 3 lados ajuda a inseri-la melhor na paisagem.
Uma área de lazer, com salão de jogos, sauna e sala de ginástica ocupa a parte mais baixa do terreno e completa o programa. O jogo de telhados das coberturas contribuiu para dar mais leveza ao conjunto, fazendo com que ele pareça menos “sólido” e compacto. Sobre as áreas de serviços, uma laje ajardinada.
项目完工照片 | Finished Photos
分类:Casas
语言:葡萄牙语
阅读原文
客服
消息
收藏
下载
最近











































