查看完整案例

收藏

下载
城市环境 | URBAN CONTEXT
Max Weber大楼位于楠泰尔大学宽阔的校园内,这里包含众多以混凝土和金属为材料的建筑,共同见证了法国学院建筑自1960年代以来的历史。该项目的场地位于校园的西侧,与大学的入口相邻。楠泰尔大学要求将一系列社会与人文科学研究室置于同一座建筑当中。以这种类似于办公大楼的功能为基准,委托人期望建造一栋有威望的建筑,以增进学校科学研究室的形象和地位,同时鼓励研究者之间的相互交流,为学生和外来学者留下深刻且优秀的印象,最终为楠泰尔大学的西校区带来全新的面貌。这些要求最终在一座具有高度创新性的、前所未见的建筑中得以充分实现,这要得益于委托人的胆识以及无条件的支持,以及建筑师、委托人以及学校负责人之间持续且积极的沟通。
The Max Weber building stands inside the vast Université de Paris Nanterre campus with lots various concrete and metal buildings comprising a collection testifying to the history of French university architecture built since the 1960s. Located along the path running along the west side of the University campus, the site is adjacent to its entrance. The program required by the Université de Paris Nanterre grouping the various Social and Humane Sciences research laboratories in the same building.
Based on this architectural program, which is quite similar to one for an office building, the client insisted on a prestigious building capable of enhancing the standing and the image of sciences laboratories, and to encourage exchanges between researchers, to give research a powerful identity and attractiveness in the eyes of students and foreign researchers and finally to reconfigure the west side of the campus of the Université de Nanterre. The answer to these requirements, the success of the this highly innovative, first time ever project, were possible thanks to the audacity of the client, its unfailing support and on continuous and very positive dialog among the three partners, i.e., the architect (Atelier Pascal Gontier), the Client (the University) and the university’s managing agent (Icade Promotion).
▼大楼位于楠泰尔大学校园内,the Max Weber building stands inside the Université de Paris Nanterre campus
建筑 | ARCHITECTURAL PROJECT
Max Weber大楼的设计从最初便以颇富雄心的环境目标为基准,通过深入探寻办公室的本质,致力于为研究人员提供一个全新且高效的工作环境。办公建筑往往是在立面和装饰上皆缺乏形式特征的标准化产物。得益于一开始就非常明确的环境目标,以及为研究人员提供宽泛使用价值的要旨,这一问题在Max Weber大楼中得以避免。这是一座不合常理的、完全以木材打造的办公建筑,并且完全通过被动的通风系统来实现空气的自然流通。建筑的材料皆以其最原始的形式被运用在了最恰当的位置,以最真实的面貌组合在一起。
The design of the Max Weber building benefitted from
the start from ambitious environmental goals and an in-depth questioning of the very nature of the offices that would be provided here to researchers and with the aim of proposing new architectural avenues of exploration. Office buildings are in fact too often standardized products lacking an identity they try to make up for through competitive formalism on façades and in decoration. The Max Weber building was designed to avoid this, thanks to ambitious environmental goals, and the widespread use of working spaces designed for researchers. It is in fact an atypical office building entirely built in wood, passive, and equipped with a natural ventilation system
in both winter and summer. The materials implemented are utilized in those areas to which they are the best adapted and appear as they are, manifested in their true assemblages.
▼入口立面,entrance facade
▼口袋空间,pocket space
为了实现这一点,吊顶、空调设备以及机械通风系统皆从办公室中移除。与平常不同的是,建筑结构并未使用混凝土等材料,而是完全由木材构成,从而为室内空间赋予了强烈而明显的特征,以及独特而温暖的质感。走廊同样没有受到任何遮挡,外部视野为其带来充分的自然光照。宽阔的办公室窗户包含两个开口,使用者可以任意调节自己办公室的环境。未经处理的混凝土地面覆盖着油毡,使没有空调系统的办公室在夏天也显得宁静而舒适。为了达到最终效果,建筑师在有关于声学和设备线路的问题上使用了另外一种逻辑,这对于建筑竞赛和建筑本身的结构和空间组织而言都是一次完全“逆向”的尝试。
To achieve this, drop ceilings and the air-conditioning have been banished from the offices along with mechanically controlled ventilation. Unlike common uses nowadays, the structure is not made of concrete but rather entirely of wood, which, being visible, strongly marks the interior spaces endowing them with a singular and warm character. Corridors are naturally lighted rather than blind, benefiting from views of the outside. The three wooden stairwells are bathed in natural light as well and also enjoy broad views of the outside. The big office windows are composed of two openings, which allows occupants to manage their own office ambiance. The raw concrete floors, covered with linoleum, contribute to the feeling of inertia and comfort in the summer in offices that do not need air-conditioning systems. To achieve this result, the issues related to acoustics
and the integration of networks were imagined using another logic, far upstream, at the time of the architecture competition, at the same time as the project’s structure and spatial organization.
▼空调设备以及机械通风系统完全从办公空间中移除,air-conditioning is banished from the offices along with mechanically controlled ventilation
建筑风格一经确立便与既有的建筑实现了完美融合,并通过其简洁的形式脱颖而出。边角之处的小规模切割创造出露台和以立柱支撑的室外空间。以排列规律的窗户为基准,包裹在外立面的铝层暗示着内部空间强烈的木质特征,屋顶上高耸的烟囱则标志着单一的通风系统。建筑的整体风格通过其外部光滑闪耀的铝制表皮和内部温暖而有机的哑光木质环境共同展现出来。
Once selected, the architectural style blends harmoniously with the existing buildings, and is distinguished by the simplicity of its volume, slightly cut away at the angles creating terraces as well as outdoor spaces on columns. The aluminum cladding from the outside, thanks to
the large regularly spaced windows, hints at the strong presence of wood in the interior spaces, while the high chimneys on the roof signal a singular ventilation system. Here, the architectural expression is marked by the contrast between the shiny and smooth exterior aluminum skin and the mat, warm and organic character of wood utilized in the interior spaces.
▼屋顶上高耸的烟囱则标志着单一的通风系统,the high chimneys on the roof signal a singular ventilation system
异乎寻常的被动式全木结构办公楼,高适应性及自然通风 | AN OFFICE PROJECT ATYPICAL,
ENTIRELY IN WOOD, ADAPTABLE, PASSIVE AND NATURALLY VENTILATED
建筑分为五层,建筑面积共5000平方米,其结构完全由木材建成,包括电梯井和楼梯间在内。木材的选择是针对生态问题得出的解决方案。事实上,木材本身属于生物能源,是可再生和循环利用的材料,并且能够在生命周期中吸收二氧化碳,同时将其储存在结构之内。先进的预制技术使项目完成得更加精确且迅速,并最终使温暖而异于寻常的室内气氛得以实现。立柱和木板的设计更增强了空间的灵活度,使建筑的适应能力最大化。
The building – 5000 m2 on five levels – has a structure entirely built in wood, including the elevator shafts and stairwells.The choice of wood is a solution to ecological challenges. In fact, wood is a bio-source material, is renewable, and recyclable, and absorbs carbon over the course of its lifecycle which is then stored in the construction. Thanks to advance prefabrication techniques, it is also used to complete construction projects faster and with more precision. Finally, it contributes to the warm and atypical atmosphere of the interior spaces. The design, with columns and at slabs, allows for enhanced flexibility and maximum adaptability.
▼建筑结构完全由木材建成,包括电梯井和楼梯间,the building has a structure entirely built in wood, including the elevator shafts and stairwells
因此即使经过长期使用,建筑也能够在不改变原有建筑形态、不耗费大量工程的情况下实现改造或功能重置。遵循这一逻辑,办公室被分别设置于一个16平方米的交通框架中,使其能够根据需求在16平方米、32平方米或48平方米之间进行转换,而这种灵活性并不会造成多余而中庸的空间。在这里,建筑的持久度和装饰的暂时性得以共同存在。以研究为目的的工作空间的建筑性也体现在这种永久性和发展性的相互关系之中。在特殊的空间结构中集成不同的设备线路是一个重要的任务。为了实现这一点,木制天花板被每隔3.5米被打断一次,从而为各种电器和照明线路留出大概30厘米的存放空间。
Thus, this building is able to adapt to transformations
and also lends itself, over the longer term, to an eventual repurposing, without it being necessary to undertake
heavy works that would degrade its architectural identity. Following this logic, the offices are organized from one end to the other of circulations according to a framework of 16 m2, which makes it possible to create 16m2, 32 m2, or 48 m2 offices, depending on requirements.
However, this flexibility does not engender neutral characterless spaces. Here, the durable does not disappear behind an ephemeral décor. To the contrary, the two blend together in the same space. Thus, the architectural definition of working spaces designed for researchers resides in this relationship between the permanent and the evolving. Here, the integration of networks is the subject of a specific spatial organization of the structure in relation to these different networks. To achieve this, the solid wood ceilings are interrupted every 3.5 meters, to create a cavity with a width of some thirty centimeters designed to house the various utility networks and lighting.
▼木制天花板为设备线路留出空间,the solid wood ceilings create a cavity designed to house the various utility networks and lighting
建筑拥有一个被动式的外墙结构,墙壁和窗户具有高度隔热性,热桥效应被降至最低。但其通风系统并不属于被动模式,创新性的自然辅助及控制系统(VNAC)避免了普通被动式建筑中机械式对流的能源消耗。总体来说,大楼的基础能源消耗表现至少等同或优于一般的被动式建筑。这一通风系统的实现依赖于极其深入的研究和分析,同时也是首次应用在法国的办公建筑之中——通过楼顶的25座3.6米高的铝制烟囱可以直观地体现出来。这些烟囱为建筑乃至校园赋予了鲜明的特征。
The building has a passive type envelope (German Passivhaus standard), highly insulated solid partition walls and windows and thermal bridges reduced by a maximum. However the building diverges from the passive model owing to its ventilation system. The project is in fact designed to incorporate an innovative natural assisted and controlled ventilation system (VNAC) and thereby to avoid the consumption of mechanical double flows functioning in passive buildings. In general, such a level of primary energy consumption is equivalent, or even superior to heating consumption of a passive building. This ventilation system has been benefited from very in-depth research and analysis, and is a first for an office building in France. It is visible on the roof through the twenty-five 3.6-meter high sculptural aluminum chimneys, providing both an identity to the building and a powerful signal on the campus.
▼通风系统示意图,ventilation diagram
▼总平面图,site plan
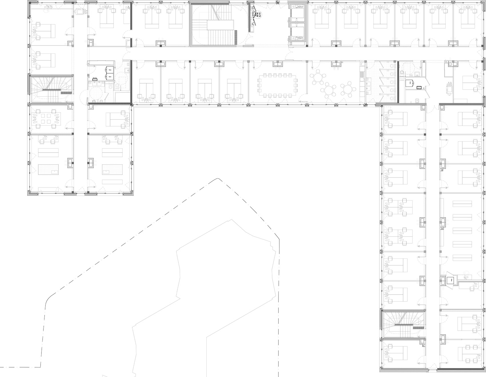
▼首层平面图,ground floor plan
▼二层平面图,first floor plan
▼结构细部,construction detail
Client : Université Paris Nanterre
Agent of the contracting authority: Icade Promotion
HQE consultant to contracting authority : SLH ingénierie
Contractor : Atelier Pascal Gontier, architecte
Engineers : Inex Utilities engineering rm, Batiserf Structural engineering, Cabinet MIT, economist, J.P. Lamoureux acoustician, Paule Green landscape architect
Entreprises : SNRB general construction rm (sub-contractor: HOUOT (wood structure), SISAP development, CEGELEC, SPIE Ile-de-France Nord Ouest, OTIS France, EUROVIA Surface : 4 904 m2 floor area, 5339 m2 DFA
Construction cost: 11 743 757 € excluding VAT
Program : Social and Human Sciences Laboratories
124 offices, 2 large meeting rooms on the ground floor, 1 auditorium,
4 gathering rooms, 25 parking spaces
Calendar : Competition: 2012, APS-APD-DCE: August 2012- July
2013, Company consultations: November 2013-February 2014
Project : 16 months (may 2014 – february 2016)
Materials : CLT wood panels, Kerto Ripa frame, insulation en wood wool, linoleum and ash parquet floors, CLT staircase and oak parquet, wood/aluminum exterior carpentry, Roof, intensive greenery
Photographs : Hervé Abbadie and Schnepp Renou
客服
消息
收藏
下载
最近
























