查看完整案例

收藏

下载
泰国创意设计中心(TCDC)是一个政府机构,其任务是激发社会的创造性思维,并推动国家创意产业的发展。该中心提供广泛的资源和服务,包括设计库,材料库和协同工作空间。其他功能包括制作空间,展览空间和工作室。新的TCDC位于历史悠久的邮政大楼的侧翼及后翼,空间设计创造了新旧建筑之间的对话,同时呼应了TCDC作为国家级创意孵化器的使命。
Thailand Creative and Design Center (TCDC) is a government agency with a mission to inspire creative thinking in the society and to propel the country’s creative economy. It provides a broad range of resources and services. The main components are a design library, a material library, and a co-working space. Other components include a makerspace, exhibition spaces, and workshops. TCDC is now moved to its new place in the side and back wing of the historical Grand Postal Building. The design of the space is intended for the new intervention to have a dialogue with the old building and at the same time to answer to TCDC’s mission to be the country’s creative incubator.
▼建筑外观,the exterior view
单从外观来看,创意空间的设计并没有太“创意”的地方。但它是一个激励创作的场所:它创造了一个可以让人们沟通、讨论和共同合作的空间。这是一个人们可以相互分享彼此的工作,从而增进合作与交流的地方;这也是一个允许新事件和未知事件发生的地方,一个可以重新组织功能的地方;不仅如此,这里还是有着鼓舞人心的资源和知识、书籍和数字媒体,以及遍布整个空间的流动展览。
A creative space is not ‘creative’ because of how it looks but it is a place that inspires. It is about creating a space where people can connect, discuss, and work together. It is a place where people can see and be seen on the activities they do to inspire one another. It is a place that would allow for the new and the unknown events to happen, a reprogrammable space. It is a place that surrounds us with inspiring resources and knowledge, with books and digital media, and rotating exhibition spreading throughout.
▼入口大堂,arrival hall
▼一层的创意品商店提供了可以展示和售卖的场所,the creative shop near the lobby offering a place to show and sell
资源中心不是传统的安静图书馆。与此相反,它鼓励人们相互交流。咖啡厅和共同工作空间分布于整个建筑内,与其他空间相结合,实现了一个随时随地可以开展工作和讨论的场所。开放的空间使得人们聚集在一起交谈和互动。畅通的垂直交通鼓励人们前往不同楼层探索,从别人的工作中受到启发。大多数空间都是灵活的,通过可移动的家具和可调整的分隔系统可以灵活的组织空间,举办不同类型的创意活动。展览功能被集成到所有空间中:搁架系统、墙壁系统、走廊空间、角落空间、中央空间等地方都可以陈放展品。新鲜的想法和层出不穷的灵感触手可及,让人们可以更好的创作。
The resource center is not planned as traditional silence libraries. Instead, a large portion of space is designed to encourage conversations in a setting more like a cafe or a co-working space. These work spaces are spread throughout the building mixing with other programs where work and discussion can happen everywhere. The openness of the space brings people together and allows for them to start to interact with a spontaneous conversation. The main circulation cut through the section of the building bringing people to flow pass different facilities to be inspired by what others are doing. Most of the spaces are flexible with movable furniture and adjustable systems to allow for flexible situation and various creative activities to happen. Exhibition nodes are integrated into all spaces – with shelving systems, wall systems, spaces along corridors, corner spaces, central spaces. Fresh ideas are always presented within reach and always surround us for inspiration.
▼位于二层的材料图书馆,material library on the second floor
▼材料储藏室,material storage
▼楼梯,the stairs
▼位于顶层的设计图书馆有着挑高的大空间,design library with double floor height
▼半透明隔断营造柔和室内光线,the translucent partition wall introducing soft light into the space
▼ 仰望格栅所形成的网格空间,upward view of the grid system
▼ 合作办公空间鼓励创意人之间的相互交流,coworking space encouraging sharing and communication
▼休息空间提供了更加随意的交流场所,the lounge provide a more casual place to talk
▼会议室,meeting room
▼顶层露台可以享受城市美景,the roof terrace with spectacular view
在历史建筑内,新的空间被作为一个插入对象,位于原有立面内部,并有一定的偏移,以与30年代的老建筑清晰的区分开来。现代材料的光泽、半透明、模糊和发光的特质与历史外壳之间的对话营造了新老建筑之间的有趣对比。
这个半透明的建筑系统包裹并渗透进整个建筑,这体现了TCDC的精髓——灵感和知识。它旨在为人们提供书籍,杂志,材料样品,数字媒体,迷你展览,头脑风暴板,公告等丰富内容。从而让灵感贯穿并包含所有创意空间。
▼半透明玻璃墙后隐约可见白色扶梯的影子,the elevator casting shadow on the translucent wall
▼现代材料的光泽、半透明、模糊和发光的特质,the present-day material in its light, translucent, blurring, and glowing quality
Within the historical building, the new is inserted as an object, placing within and offsetting from the existing envelope, clearly revealing architectural features from the 30’s. The present-day material in its light, translucent, blurring, and glowing quality is having a dialogue with the massive character of the historical shell. The new and the old are interestingly contrasting, enhancing and complementing one another.
This translucent architectural system wrapping around and inserting throughout the facility is holding the essence of what TCDC provides – inspiration and knowledge. It is designed to contain everything from books, magazines, material samples, digital media, mini exhibition, brainstorm boards, announcement, etc. The inspiration runs through and encompasses all the creative spaces.
▼新旧体块相互穿插,new and old block interlocking with each other
▼新老建筑之间形成了对话,the dialogue between the old and new
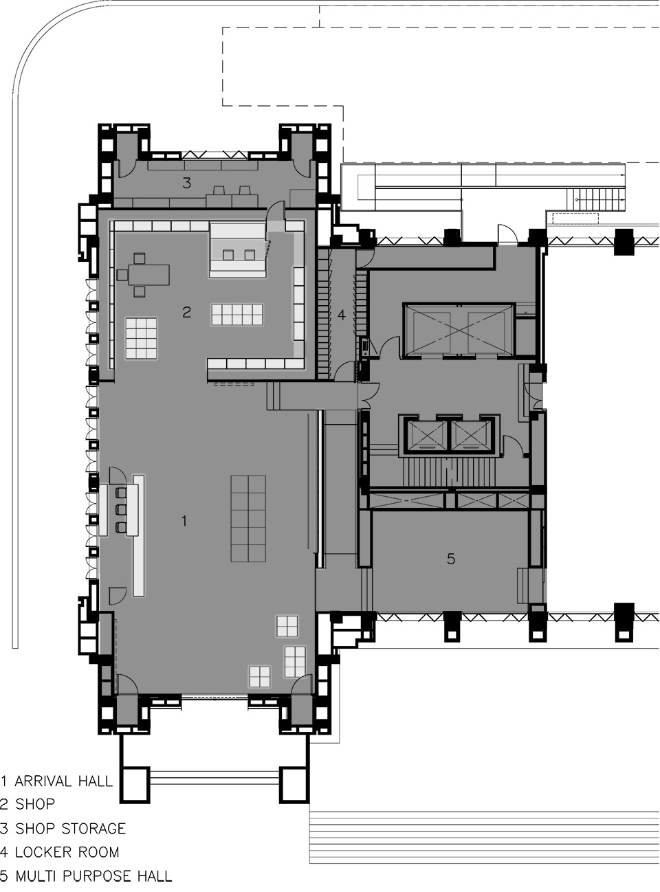
▼轴测图及一层平面图,Axonometric projection and first floor plan
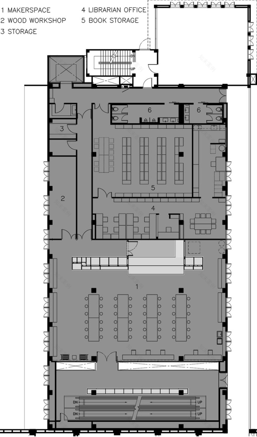
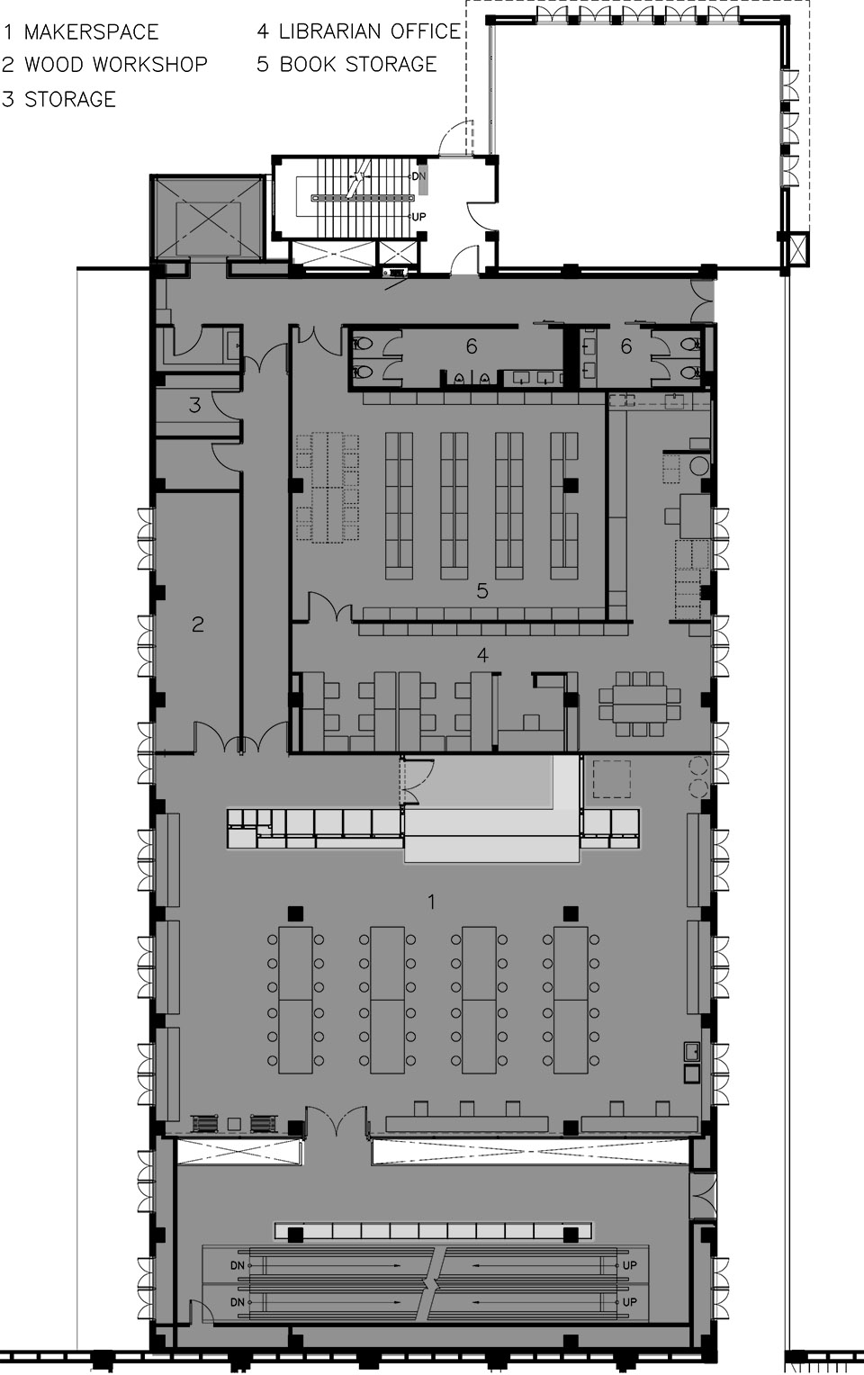
▼二层及三层平面图,second and third plan
▼四层及五层平面图,fourth and fifth floor plan
▼ 剖面图,section
客服
消息
收藏
下载
最近














































