查看完整案例

收藏

下载
这间公寓被改造成了富有活力的旅行客房,可供人们短暂停留。首先,两间纯白的双人房各自拥有一套取材于旧房门的整体衣柜和台面,床头的书桌则源于对原有中央砖墙的拆解。
This flat was reformed with the idea of using it as a tourist apartment for short but vibrant stays. First two double bedrooms, white and calm, have their own built-in wardrobe-desks made partly from the flat’s original doors and unfolding the middle brick wall creating the headboard-desk.
▼纯白的双人房,two double bedrooms, white and calm
▼嵌入式的家具取材于原先的旧门板,the built-in wardrobe-desks made partly from the flat’s original doors
浴室设施相互分离,厕所被置于一个单独的空间;淋浴房及洗手池位于厨房旁边,通过覆盖着显露和管道的深紫红色地板相连接,同时又被一面镜墙隔开,镜墙则打断于被荧光绿色包围着的两个舒适的小门廊。
As second course the bathroom fixtures are separate, with a toilet in one space and the shower and the washbasin next to the kitchen, both joined by a burgundy technical floor encasing the wiring and pipes, but at the same time separated by a mirrored wall broken by two cosy doorways with a soft GREEN FLUORESCENT ambient.
▼带有绿色小门廊的镜墙将浴室和厨房隔开,the shower/washbasin and the kitchen are seperated by a mirrored wall broken by two green doorways
▼荧光绿色十分显眼,a galring green fluorescent ambient
厨房是整个公寓的中心,环绕在其周围的吧台提供了闲聊和吃东西的诱人场所。宽阔的镜墙带来各种在多重反射中玩乐的机会。
And for dessert, the kitchen is center of this apartment wrapped with a bar which provides an inviting place to chat and have something to eat. The large mirrored wall offers many opportunities for playing with the multiple reflections.
▼公寓以厨房为中心,the kitchen is center of this apartment
▼镜墙带来多重反射的乐趣,the large mirrored wall offers many opportunities for playing with the multiple reflections
自然光先被镜子反射至漆成白色的砖墙,随后涌入厨房,比起奶奶日常的烹饪角,它看上去更像是DJ的控制台。
The natural light reflects from the mirrors to the white painted brick walls and floods into the kitchen, which seems more like a raised DJ booth than Grandma’s cosy cooking corner.
▼阳光充裕的厨房,natural light floods into the kitchen
一系列凹进的空间使这一社交场地变得更加凝聚和丰富,Alvaro Catalán de Ocón设计的多彩塑料灯为房间提供了照明。
The resultant concave space brings together and multiplies this social temple illuminated by the colored PET Lamps of our inspiring friend Alvaro Catalán de Ocón.
▼凹进空间与镜面的有趣结合,the interesting combinition of concave spaces and mirrors
▼客厅一角,a view of the living room
▼轴侧示意图,diagram
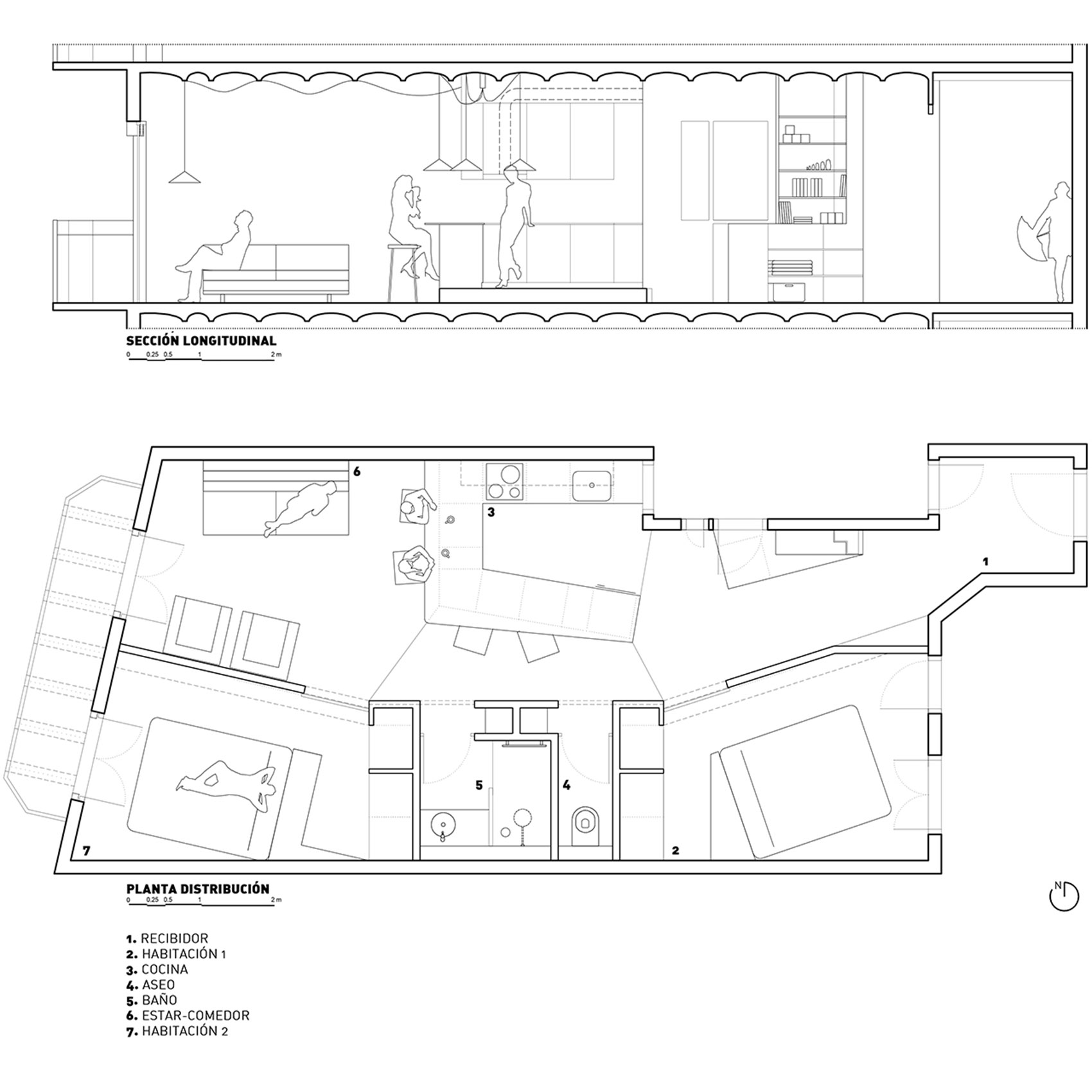
▼平面及立面图,plan and section
name: PISO PEREIV44
type: INTERIOR REFURBISHMENT
size: 60 m2
time: 2015-2016
location: BARCELONA
architects: MIEL ARQUITECTOS
photography: ASIER RUA
builder: GRUPBCN SL
客服
消息
收藏
下载
最近


















