查看完整案例

收藏

下载
自艺术史学家Ragnar Josephson于80年前开始收集记录创作过程的档案资料以来,Skissernas博物馆,即创作过程及公众艺术博物馆,已成长为一个拥有众多建筑的整体,除了拥有全世界最大的手稿藏品系列以外,它在对博物馆身份和品质的传承方面也有着重要地位。本次扩建是博物馆历史上首次仅针对门厅、餐厅、商店和多功能厅等公共交互功能的扩建。
Since Art Historian Ragnar Josephson started to gather an archive documenting the artistic process, about 80 years ago, Skissernas Museum, Museum of Artistic Process and Public Art, has gradually grown to a large cluster of buildings that, apart from housing the world’s largest collection of sketches, is an important carrier of the identity of the Museum. This is the first extension in the museum’s history that solely addresses its interface, with foyer, restaurant, shop and a multi-purpose hall.
▼博物馆外观,the external view of the museum
新增的略带弯曲的体量伸入既有的雕塑公园,稍稍脱离于街道的网格,以倾斜的角度穿过公园。这里是建筑师Hans Westman在1959年的大规模扩建中所设计的入口轴线所在。新门厅空间的高度足以将现有的具有木板外观的混凝土体量以及公园中的树木容纳进来。为了充分尊重建筑师Johan Celsing在2005年才进行过的一次扩建,新餐厅的高度没有增加,以避免对先前面向公园的宽阔玻璃产生干扰。建造于1959年的入口部分则与商店和接待处结合得更加妥当。
The new addition of slightly bent volumes is projecting itself into the existing sculpture park, releasing it’s grip of the street grid and instead latching on to the diagonal approach through the park. This is the axis of entrance that the large extension by architect Hans Westman dated 1959 was designed for. The new foyer space is very tall to take in both this existing board formed concrete volume and the grown trees of the park, but also to be able to stand up next to the rather massive existing museum volumes. The new restaurant, however, is due to respect for a more recent addition by architect Johan Celsing, dated 2005, kept low to not intervene with the previous extension’s large window facing the park. The original entrance volume from 1959 becomes integrated as a volume fitting shop and reception.
▼新增的略带弯曲的体量,new addition of slightly bent volumes
▼博物馆入口,entrance of the museum
自发明以来便备受雕塑家青睐的耐候钢,将附近历史悠久的红砖建筑和现有混凝土体量的粗糙质感有效地结合在一起,同时凭借金属板材与生俱来的具有锋利感的细节特征与它们形成对比。自由立面的处理谨慎地考量了从增建建筑中望向各处的具体视角,从而在不使用巨大玻璃表面的情况下也能实现足够的透明度。
The cor-ten steel, favored by sculptors ever since the material was invented, handles the adjacent historic red brick architecture as well as the rough materiality of the existing concrete volume, yet contrasts to these with the potential of sharp detailing inherent of a panel material. The free arrangement of the facades is composed carefully to get particular views from, into, and through the added building volumes – to reach a transparency without an actual large surface of glass.
▼不同的材料形成对比,the combinition of materials makes a contrast
▼窗户的位置经过了谨慎的考量,the free arrangement of the facades is composed carefully
▼在不使用巨大玻璃表面的情况下也能实现足够的透明度,transparency can be reached without an actual large surface of glass
多功能厅位于博物馆既有的内部庭院,考虑到其四周的建筑高度参差不齐,加上底层结构的承重问题,以及出于不干扰庭院周围现有建筑立面的决心,建筑师为该方案设计了一个依托于四根立柱、环布天窗的高耸屋顶。屋顶的跨度为27米,天花板是一面悬浮的镜面铝板,其目的在于实现一种不甚清晰的室内空间体验,同时留住内部开放庭院所具有的一些特征。
For the multi-function hall in the existing inner courtyard of the museum, a great variation in height of the surrounding buildings and a problem to carry loads in the underlying structure, as well as an ambition not to disturb the existing facades around the courtyard, urged for a solution with a roof soaring high, resting on four columns, and surrounded by clerestorial light. The roof is spanning 27 meters and its ceiling is a hovering plate of mirroring aluminum, all purposed to achieve a spatial experience which is not clearly indoor, but is keeping some of the character of an open inner courtyard.
▼多功能厅,the multi-function hall
▼展厅内部,interior of the exhibition area
餐厅、门厅和商店内的家具皆由Elding Oscarson设计,有意传达出手稿和模型所具有的那种未完成的特质。总而言之,本次扩建的最终目的在于为公园增添有价值的建筑体验,随着交互的愈发先进,博物馆也将成为更具功能性的参观地点。
The furniture of the restaurant, foyer, and shop are all designed by Elding Oscarson, and are deliberately transmitting the unfinished character of a sketch, or prototype. As a total, the intention is for the new addition is to add a valuable experience of architecture within the park, as the Museum gets an updated interface, becoming a more functional place for people to meet.
▼餐厅外部,external view of the restaurant
▼餐厅内部,internal view of the restaurant
▼商店内部, interior of the shop
▼商店内的家具有意传达出未完成的特质,the furniture of the shop are deliberately transmitting an unfinished character
▼博物馆外观,the external view of the museum
▼设计草图,a sketch of design
▼总平面图,site plan
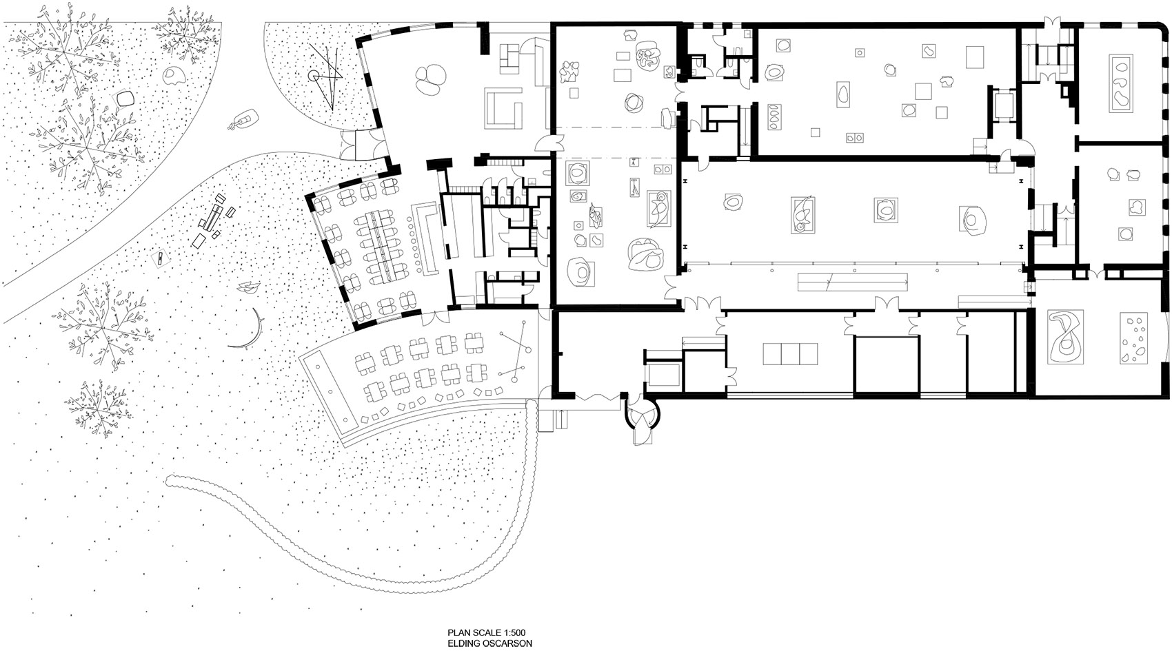
▼平面图,plan
▼立面图,elevations
▼剖面图,sections
▼墙体细部剖面,wall sections
Project Name: Skissernas Museum
Address: Finngatan 2, Lund
Architect: Elding Oscarson
Team: Jonas Elding (Partner in Charge),
Johan Oscarson (Partner in Charge),
Tristan Zelic (Project Architect),
Matthias Salaets, Paolo Migliori, Yuko Maki,
Gustaf Karlsson, Lovisa Lindström,
Mattias Wingård, Jérome Malpel, Jennifer Heinfeld
Furniture design: Elding Oscarson
Structural Engineer: Tyrens
Mechanical Engineer: Hagö Konsult
Electrical Engineer: Ramböll
Landscape: Nivå
Acoustical Engineer: Åkerlöf Hallin
Client: Statens Fastighetsverk
Custom furniture maker: Källemo, Amorim, Xcen
General Contractor: NCC
Gross Area: 760 sqm
Construction Cost: Euro 3 Million
Year of Completion: 2017
Photographer: Åke E:son Lindman
客服
消息
收藏
下载
最近







































