查看完整案例

收藏

下载
M3事务所最近新完成了城市模块项目,该项目旨在为古老的欧洲城市开发新的设施,其第一个实验地是乌克兰城市敖德萨。这种模块化结构要求设计师按照每个建筑的用途及功能需求进行定制,并尽量减小项目在设计周期内的修改。该项目由M3事务所与敖德萨当地开发商一同完成。
Recently, M3 Architects team completed working on the project of the CITY MODULE. They developed a modern facility for an old European city, the first is to be located in Odessa, Ukraine. The project was conceptualized together with a team of developers also from Odessa. The modular construction of this design allows each building to be customized made for the functional zoning requirements of a variety of uses with minimal changes over all design period.
▼概念设计立面,the conceptual facade
这些不同用途的模块包括餐厅,办公室,店面,公寓。这种模块化的模型需要设计师充分发挥想象力,并通过开窗及设置隔墙来实现。高雅的现代化建筑可以吸引更多的人才及游客。受欧洲其他项目经验启发,设计师认为,用现代化建筑作为城市革新的重要举措,可以使古老的城市文化更加鲜明。同时他们认为,当一座城市既保留了对历史的尊重,又满足了现代化城市生活的需求,那么这座城市将更加迷人。同时,城市环境的革新反映了这座城市的经济及社会增长状况。“
A few examples of these varied uses include a restaurant, an office, a storefront or an apartment building, but the only limit is imagination. This is achieved through flexible window and wall placement among other innovations employed by the development team. Tasteful modern architecture can attract young professionals and become a new point of attraction for tourists. Inspired by our European colleagues’ experience we think that there is a viable method to renovate the city center with new modern buildings, while emphasizing the charm of a historical part of the old city.M3 Architects: “We think that modern architecture becomes more attractive when it includes high technology and a respect for the historical environment, as well as requirements of the future.The building should be historically identifiable. The evolution of the urban environment defines the vista of the economic and mental growth of the society.”
▼入口,entrance
▼地面层装饰细节,detail on the ground floor
这种方式要求设计师注重施工方法,建造材料及该地区域特征等各个细节及灵活性,以免与周边环境发生冲突。该建筑可以轻松适应在另一个具有相似环境的欧洲城市中。设计师重视每一个创意的新点子和新的材料运用。除了与当地环境相统一之外,经济适用及可行性高同样重要。
This style includes attention to detail and flexibility in method of construction, building materials as well as regional character and proportions, so as not to clash with existing buildings or the overall feel of the city. This building could be easily adapted for construction in another European city with similar influences. Architects pay attention to the emergence of new ideas and contemporary materials, as even historic buildings used the latest methods and materials of the time. Equally as important as fitting in with the local aesthetic, is a project that is feasible and economically viable.
▼餐厅,restaurant
▼餐厅概念设计细节,detail of the conceptual restaurant
由于敖德萨建筑缺少露台 ,所以屋顶餐厅,咖啡及公共场所在城市生活中有所缺失。该项目将屋顶露台引入建筑,既维持了现有的审美又创造了全新的娱乐空间。该建筑与相邻建筑的连接创造了和谐的城市天际线,为居住生活带来了美好的体验。
In Odessa there is a lack of rooftop restaurants, cafes and public spaces, because of the lack of terraces in existing architecture. The model has an option for a functional rooftop terrace which maintains the existing aesthetic, while creating an enjoyable space to gather. Rooftop shape and how each individual building joins the next creates a city’s skyline, beauty for its inhabitants and an undeniable image to the outside world.
▼后院露台,terrance at the backyard
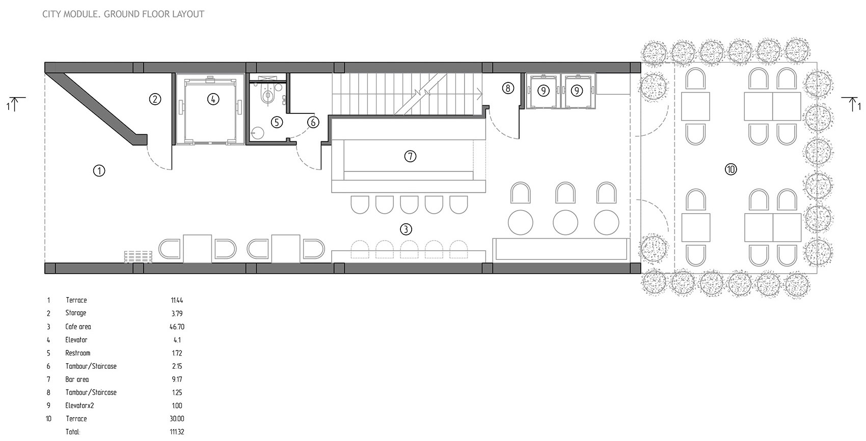
▼底层平面图,the ground floor plan
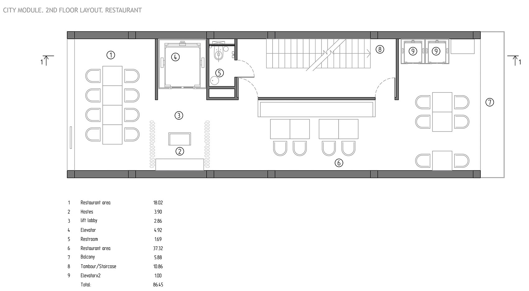
▼二层平面图/三层平面图,the first floor plan/the second floor plan
▼四层平面图/五层平面图,the third floor plan/the forth floor plan
▼结构剖析,structure
▼立面图/剖面图,elevation/section
Year: 2016
Stage: Concept Design
Location: Odessa, Ukraine
Structure: Iron-concrete frame with foam block wall filling.
Materials: Perforated metal mesh, micro concrete, stone, wood, gunmetal finish
Lightning: Delta Light, Vibia, custom-made pendant lamps
Furniture: Custom-made furniture
客服
消息
收藏
下载
最近
























