查看完整案例

收藏

下载
“重返小城” 的浪潮给许多年轻人带来新的创业机遇,此项目正是在贵州黔南州一隅发生的故事。几位志趣相投的创业者在独山县城发现了建于50年代的活字印刷厂,通过和当地管理者的沟通,他们决定将此处厂房保留在原有街区,同时邀请FON STUDIO,通过设计的介入,激活这个在高速拆迁中保留下的“老建筑”,改造为餐饮、阅读、公共活动等丰富的空间业态,为本地居民以及远行至此的朋友提供优质服务。原有厂区共大小建筑6座,计划分期改造。首期开工的 A 库与B库位于核心区域,作为接待,餐饮、阅读及绘本空间。
▼设计区域,design area
The tide of “Reentering to Little Town” ——a story about a project taking place in a corner of Qi-annan Autonomous Prefecture in Guizhou Province——has brought opportunities of venture to the young people. Several entrepreneurs who were congenial to each other have found a Movable-type Printing plant which was built in the 1950s in Dushan County. After the communication and negotiation with local governors, they decided to keep these plant buildings in the original street blocks. Meanwhile, they invited FON STUDIO, by the introduction of design, to activate the surviving “old buildings” from the process of high-speed housing removal movement, and to remodel those buildings into a diverse forms of space——including dining space, reading space, public ac-tivity space, all of which helps provide high-quality service for the local people and those who come from afar. There are 6 buildings around the original plant area, which are planned to be recon-structed by different stages. Depot A and Depot B to be reconstructed in the first phase are lo-cated in the core areas, which serve as spaces for reception, dining, reading as well as painting.
▼A库综合服务空间,depot A: Comprehensive Service Space
▼B库大自然绘本馆,depot B: Picture Gallery of Nature
A库:综合服务空间 Depot A: Comprehensive Service Space
人们进入厂区的第一个视觉焦点——A库的主门呈现为延伸的矩形洞口,引导游客进入其中。主空间在设计伊始,就决定在保留原有砖木结构肌理的前提下,将空间及功能进行有序的交错组织,而对于各个业态之间的联系及分隔,试图营造一种开放的通透感,人们在空间内能享受良好的采光,观看室外静谧的草木,来此旅居的游客与这座老厂房的故事就此展开。
As the first visual focus caught people’s eyes in the process of entering into Depot A, the main door which present an elongated rectangular structural opening would lead visitors into the interior space. At first, on the premise of keeping its original brick-wood structure texture the main space was intended to be designed in an orderly interweaving way considering both space and function. As for the integration and separation among different space forms, the designer attempted to create an open sense of ventilation and light penetration so that visitors could enjoy the refined light-ing condition indoors and see the tranquil scenery outdoors. The story between these old buildings and the people begins as they sojourn here.
▼A库的矩形洞口,the main door of depot A
▼入口,entrance
▼营造通透的室内环境,create an open sense of ventilation
旧砖、木纹、水泥、黑钢在悠长的厂房内交相呼应,沿着白盒子一并融合在巨大的木结构屋顶下。局部夹层延伸着首层的功能形态,同时也打开了纵向的空间秩序。书吧区域的木质台阶配合可移动展架,满足不同情境下自由组合。
Old bricks, wood texture, cement, and black steel are dancing together in the flowing space, along the “white box”, merging together under the immense wood structural roof. Partial interlayer ex-tends functions of the ground floor , and simultaneously unfolds the longitudinal space order. The wooden steps in “book bar” area, along with the movable display racks, can be combined and ar-ranged freely and ideally to satisfy different functions.
▼旧砖、木纹、水水泥、黑钢在厂房内交相呼应,old bricks, wood texture, cement, and black steel are dancing together in the flowing space
▼书吧,”book bar”
▼临时通道和用餐区,temporary entryway and dining area
▼餐饮区,dining space
▼楼梯,stairs
▼夹层空间,interlayer space
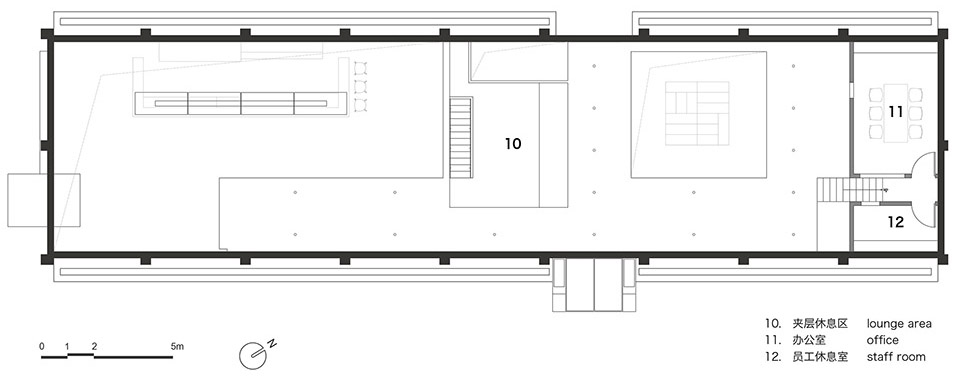
▼A库底层平面图,ground floor plan of depot A
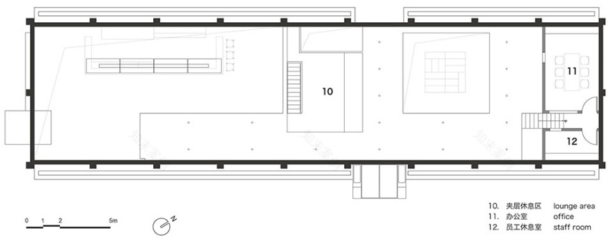
▼A库夹层平面图,second floor plan depot A
▼A库剖面,section of depot A
▼A库轴侧图,axon of depot A
B库:大自然绘本馆 Depot B: Picture Gallery of Nature
轻盈的圆弧及层叠的洞口穿插在B库厂房,构筑起一个放松阅读、图画的儿童活动空间,步入馆内,此起彼落的体块与大小拱门并置,俨然一座明亮的城堡。小朋友穿梭其间,流动的交通流线给使用体验增添诸多的趣味性。空间内部材质以木纹和纯白两种色彩配合使用,呈现亲和明亮的环境体验,与周遭街区纷乱的环境形成对比,让来此的人们悠然驻留。
The flexibility of inner penetration of light structural arc and cascaded structural opening in Depot B establishes a children’s activity space mainly for reading and painting. Entering into the space, visi-tors will see a bright castle into which blocks rising one after another juxtapose with arches of vari-ous sizes. The fluid traffic flow in the space which presents an image of innocent children runs back and forth, adding various interests of using experience. The color of interior texture is wood grain combined with pure white, offering a bright and hospitable experiencing environment which is sharply different from the crude neighborhood so that people can stay here leisurely and enjoyably.
▼B库入口,entrance of depot B
▼绘画阅读区,painting &reading area
▼教室B与开敞空间,classroom B & open space
▼亲子活动处,parent-child activities
▼绘本书架区,painting books area
排布在流动曲线两侧的半开放空间围合与留白的开敞空间都提供了小朋友交流、玩乐的平台。珍贵的好奇心、天方夜谭的语言在这小小场所碰撞,埋下种子。绘本的世界不断输出想象力和万千印象,我们希望此空间改造能让小朋友和大朋友都能融入其中,体验更多的可能。
The enclosure of semi-open space and the reservation of open space on both sides of the “flow curve” provide a platform for children to communicate and play. Children’s precious curiosity and innocent words are colliding over the little and lovely place, sowing the seeds of ideas and thoughts. The pictures offers a world which can deliver and spread myriad imaginations and im-pressions, and the design team hopes that after reconstruction of the space, all the adults and children can get into the space, experiencing more possibilities.
▼半开放空间为小朋友提供完了平台,the reservation of open space provide a platform for children to communicate and play
▼临时办公空间,temporary office
▼空间中的弧形墙面细节,detail of Cambered wall
▼可移动前台/楼梯细节,movable reception desk/stairways detail
▼B库平面图,plan of depot B
▼B库剖面,section of depot B
▼B库轴测图 ,axon of depot B
项目名称:“小城故事”:两座旧厂房的新生
项目地址: 贵州省黔南州独山县
设计单位: 未来以北工作室
设计团队: 金波安 李泓臻 罗霜华
完工时间: 2017-06
项目面积: 480平米
摄 影: 未来以北工作室
Project Name: “Town Folktales”: The Newborn of Two Old Factory Buildings
Location: Dushan County ,Guizhou Province, China
Design Firm: FON STUDIO
Project Team: Jin Boan Li Hongzhen Luo Shuanghua
Date: 2017-06
Project Area: 480 ㎡
Photography: FON STUDIO
客服
消息
收藏
下载
最近

































































