查看完整案例

收藏

下载
本案位于内蒙古自治区.赤峰市.林西县境内的一座郊外工业园区内。初识林西是一个比较陌生的地名,位于赤峰北部一个安静的县城。周边地貌开阔,山岩硬朗。林西有着悠久的历史,四周被内蒙其他盟旗包裹,当地由汉民族移民至此作为连接其他内蒙盟旗的纽带,素有塞北重镇之称。虽说还没有摆脱贫困县的帽子但是这里的人民上到政府下到平民及企业家都保持着一种开拓进取的豪放移民精神,渴望吸纳外来的新鲜营养。
The project is located in Inner Mongolia Autonomous Region. Chifeng City. Linxi is a relatively unknown place, located in the northern part of Chifeng, which is a quiet county.. The surrounding landscape is open and the rocks are rugged. Lin Xi has a long history, surrounded by other Inner Mongolia areas, the local immigrants from the Han nationality as a link to other Inner Mongolia League flag, known as the city of Saibei. The county is not rich enough,but the people here from the government down to civilians and entrepreneurs have maintained a pioneering spirit of immigration, eager to absorb fresh power.
▼建筑外貌,full view
我们想要使建筑在秩序的语素中获得变化并不破坏功能,形成一个立体的艺塑性建筑既与周边的旧貌对望又与特有的无垠山貌相互吸引,似一块切片岩体生成于广袤的大地之上。
We want to make the building in the manner of the order to change that does not destroy the function, a three-dimensional artistic architecture with the surrounding old view and wide mountains to attract each other, like a piece of sliced rock generated on the earth.
▼建筑与周边的对视与吸纳,building and surrounding scenery
项目的业主本身也是当地一名优秀的室内设计师兼房产企业家,有着很高的艺术品味及标准。项目任务实质上就是需要一栋为厂房服务的普通办公楼,初期的计划就是简单造个房子就可以了,那我想既然要建造,想简单可以但新生的建筑精神与魂魄不能丢,相信这个想法每个业主都会真切认同,很快和业主达成共识,在尽量不增加造价的条件下,建造一栋经济的,具有特质的,具有功能延性,会主动吸纳外体的特色建筑,面对这样的挑战会想到“鱼和熊掌不可兼得”。好吧,美好的企盼与压力总是共存的,我赞同利用设计技术来转换价值,好的东西不一定全都要通过金钱来解决。那我们就展开了一场“鱼和熊掌都要兼得”的建造实践。
The owner of the project itself is also a local interior designer and real estate entrepreneur, with a high artistic taste and standards. Project task is essentially a general office building for workshop services, the initial plan was to simply build a house on it, then I would like to build simply but the new architectural spirit and soul can not be lost, I believe the idea of each owner will really agree, and the owners will quickly reach a consensus, as far as possible without increasing the cost of the project, the construction of an economic extensional attractive building, The challenge will think of “fish and bear’s paw and can not have both.” Well, good ideas and pressure always coexist, I agree with the use of design techniques to optimize value, good things are not necessarily solved by money. Then we started a “fish and bear’s paw should have both” construction practice.
那我们要解决好四个视觉立面的效果,我们首先要尊重功能,就把L体量做我们的母体,其从平面功能和视觉体块都比较丰满好用。我们需要在母体上做些手术来提升我们建筑的艺视效果,这些局部做的每一笔动作都要经济有效,能够更大提升建筑的品质。
Then we have to solve the four visual facade choices, we must first respect the function, put the L volume to do our standard, the plane function and visual effect are relatively full and reasonable to use. We need to do some design on it to enhance the artistic effect of our building, every action should be cost-effective, and can greatly enhance the quality of the building.
▼L型的建筑形态,the L shape architecture
体块的确定我们还要找到一个秩序性元素作为我们的图底,在图底的秩序上来做画,那么切片元素,既每个个体的变化能做出硬朗的雕塑效果,也与周边层岩的山峦相应,作为我们的表皮容易建造发挥,在内部空间采光通透性上都比较实用。
We have to find an order element as our chart, in order to do the design, then the slice elements, can make tough sculpture effect, the surrounding rock mountains to attract each other, our surface wall is easy to build, the interior is bright and transparent.
▼外墙切片元素,surface wall slicing elements
接下我们在母体上做了四处手术分别集中在:
1. 一层入口及平台外展:根据功能要求在一层形成外扩室内空间。同时其二层作为景观平台可眺望远处的山脉及民居。形成一个对比及吸纳的情趣感。
2. 三层在基地入口对视点转角部进行局部切角,赋予雕塑感。
3. 一层东沿街立面局部切削;
4. 女儿墙拔高做围合高低切削,并为以后提供拓展空间。
We do four changes on the building, as follow:
1. The entrance and terrace: we design an extensional space on the first floor.While its second floor as a terrace can overlook the distant mountains and old houses.Forming contradiction and coordination coexist.
2.We design the chamfer on the corner of the third floor, giving a sense of sculpture.
3. The building chamfer is on the east of the street.
4.The parapets wall is overridden to do the high and low cutting, to provide room for expansion in the future.
▼体块进化 The formation of volume
▼雕塑感的切片外衣,the surface wall is an art sculpture
▼二层室外露台,terrance on the second floor
后三点变化在施工处理上需要采用混凝土造型浇筑,我们尽量进行局部控制降低造价,我们综合分析这几点的变化给建筑带来的溢价还是值得的。至于外墙的质感那我们就赋予它纯净的白色就好了。纯净白色将阴影与光折射投应在基体上随着天气及四季的变化而变,即是最丰富的材质。
After three changes in the construction process, in which we used poured concrete molding, we engaged local control to reduce the cost, we comprehensively analyzed these changes to the building to show that the building and cost are worthwhile.As for the texture of the surface walls we feel that pure white is fine.Shadow and light are projected on the white wall,with weather and four seasons make changes, that is the most abundant material.
▼纯净的外墙颜色,the pure white of the exterior wall
项目建成后业主还有意与一个健身会所拓展其内部空间的可能性,通过这个案例我在思考在一个项目任务基本要求下设计要主动承担责任,在允许的框架规则内利用思维来开阔它的外延性不确定的扩展增值性,给业主一个“鱼和熊掌兼得”的可能,这是一种态度也是对设计价值的一种挖掘。最后也要感谢业主刘亚辉先生的信任与努力,期间项目走走停停,没有不懈的坚持及一丝不苟的管控一切希望永远是个泡沫。希望能以它的存在为初始的坐标来衍生无限的周边未来可能。
After the completion of the project, the owner intends to explore the possibility of a space with a fitness club. Through this case I am thinking about designing the initiative to take responsibility under the basic requirements of a project task and use the thinking to broaden its extension in the follow the rules. The uncertainty of the expansion of value-added, to the owners of a “fish and bear’s paw” both, this is an attitude and is also a design value of a mining concept. Finally, thanks to the owners of Mr. Liu Yahui’s trust and efforts, during which the project stops and starts, there is no relentless adherence and meticulous control of all efforts is always a bubble.Hoping to be able to use its existence as the initial coordinates to derive infinite peripheral future possibilities.
▼一层平面图,first floor plan
▼二层平面图,second floor plan
▼三层平面图,third floor plan
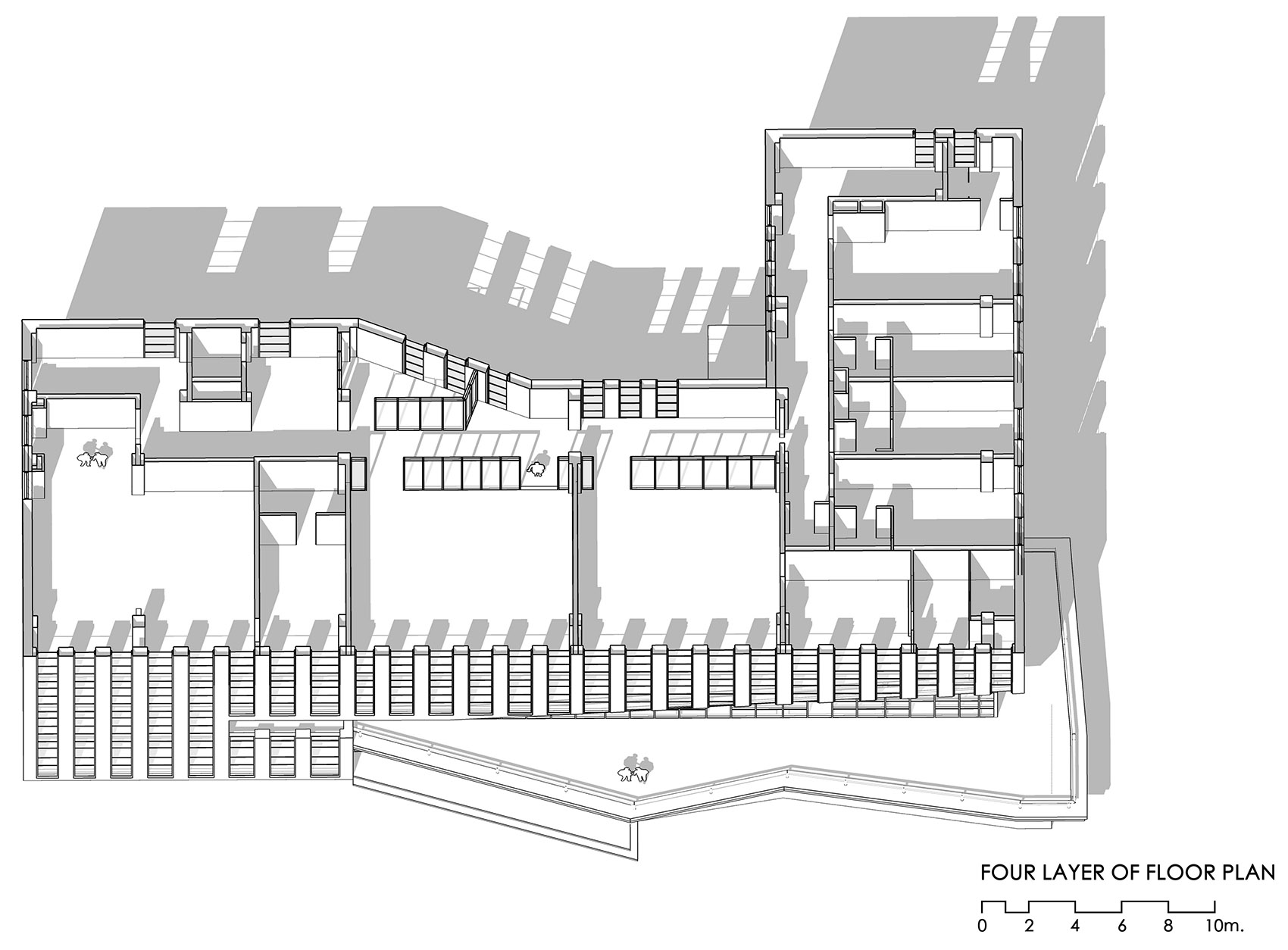
▼四层平面图,forth floor plan
▼设备层,machine room floor plan
▼立面图,elevation
业主:赤峰市地杰房地产开发有限责任公司
设计单位:大连松岩建筑设计院有限公司
方案设计主持:丁建
设计团队:曹灿、邹祥、王昕蕾、王颖、李畅、李兴贺
摄影:丁建、殷海燕
美编:仲昱凯、王瑞暄、越瑞
翻译:王子梦
施工图设计:徐林、国宏程
结构设计:孙嘉蔚
给排水设计:郝滢
机电设计:石娜
暖通:赵阳
建材幕墙设计:赤峰市至尊全集建材制造有限责任公司
建筑面积:2800㎡
设计时间:2014-2015
建成时间:2016
建筑材料:混凝土、空心砖、白色涂料、玻璃幕墙 Owner: Chifeng Dijie Real Estate Development Company
客服
消息
收藏
下载
最近




































