查看完整案例

收藏

下载
项目位于海拔 870 米 Tauferer Ahrntal 山谷入口处,建筑通体金黄色,是 Sand in Taufers 市的新地标建筑。建筑的主要特点就是它简洁外形彰显出的独特而直观的功能性。为了能够最大化空间的连续性,方便消防员的工作,建筑尽可能地创造了短距离的连接。空间紧凑而实用,设计避免了多余的装饰性。为了避免气氛过于压抑、乏味,建筑在形态、颜色和材料使用了更俏皮的手法。首先是亮眼的金黄色石膏外表皮,具有令人惊喜的视觉效果。
At the entrance of the Tauferer Ahrntal, at 870 meter above sea level, is located the new golden landmark of the municipality of Sand in Taufers. The main characteristic of this building is his unique and straight functionality, which is reflected in a clear and simple shape. Short ways have received the highest due to their crucial influence during the efficient procedures of an operation. Further the compact and functional building, there’s also a valuable appearance, where redundant ornaments were deliberately omitted. Therefore it was possible to advanced more proposals about shape, materials and colors: above all, the evident golden yellow plaster, rough-squirted on the facade, a playful and surprising attribute, which makes up the appeal of the new fire station.
▼亮眼的建筑外观,the evident appearance
▼建筑坐落在山谷之中,the building sits in a mountainscape
建筑材料
Construction and Materials
建筑是统一、紧凑的。建筑是钢筋混凝土的框架结构,室内空间由干式墙体分割,所以空间具有极大的灵活性。Sand in Taufers 推出了许多保护环境和气候的可持续性政策,成为了著名的节能城市。所以消防局的建设也必须以同样的标准进行。建筑立面被装饰之前与环境完全隔离,避免对环境造成破坏,入口大门、窗子都用了彩色的金属板覆盖。
The aspect is uniform and compact. The bearing structure is made of reinforced concrete and the interior finishes are made of drywall installation, so the building is very flexible for different uses. Sand in Taufers is known as an energy saving municipality and for this reason spends a lot on sustainable politics for environment and climate. Therefore also the fire station has to be an high level energy building; that’s why the facades are isolated before being covered with a gritty plaster. The entrance gates, the doors and windows are disguised with colored sheet metal.
▼建筑立面,facade of the fire station
▼建筑中的细节,detial of the building
▼消防车和建筑的颜色对比强烈,the poweful contrast between building and the vehicle
区位与结构
Urban Settlement and Structure
建筑的位置满足了消防局应具备的所有功能:大厅前部有一个开敞的训练空间,提供足够多的车位,并且为将来建筑的扩建提供可能。
The building position in the site fulfills all the needs which a fire station should have: a big training space in front of the hall, enough parking and the possibility of an future extension of the building.
▼建筑前部的开敞空间,the big training space in front of the hall
一层的操作区地板具有良好的抓地、防冲击性,并且易于清洗,而二楼休息区的地面是温馨的木制材料。
The floors of the operating area are grippy, impact-proof and washable, while the floors of the lounge area in the second floor are wooden.
▼一层操作区,the operating area
▼便于训练和清洗的地板,the floors of the operating area are grippy, impact-proof and washable
▼辅助性空间,accompanying space
项目紧凑型的设计和体量与北部住宅区和南部工业区的规模相联系。通过对建筑的分割,设计师定义了行人用的受保护空间,并把它们和车辆出入口分离开。
The compact design is related in size and proportion to the small and fractional residential area in the north and to the large halls of the southern industrial area. Through cuts in the volume of the building, are defined protected areas, separated from the vehicle entrance area.
▼区位,situation plan
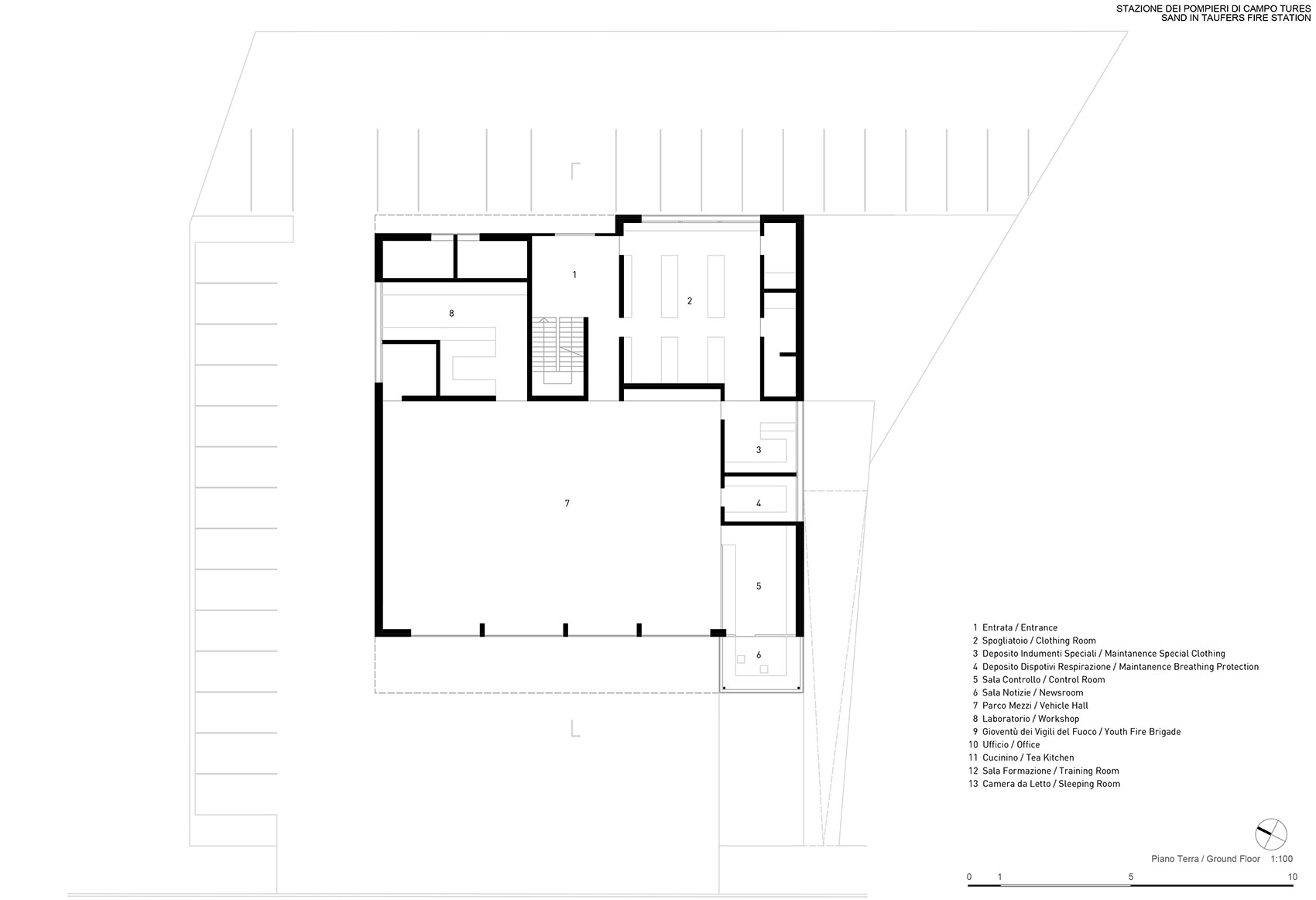
▼底层平面,ground floor plan
▼立面,elevation
Client: Municipality Sand in Taufers
Location: Sand in Taufers/South Tirol
Cubature: 8.800 m³
Building costs: 2,6 millions
Project and realization: 2007-2016
Pictures: Gustav Willeit
客服
消息
收藏
下载
最近




















