查看完整案例

收藏

下载
项目是为失物招领家具店在北京国子监街門店的改造。此次改造希望突破传统店铺的空间模式,引入“家”的概念——现代都市中 越来越多的人选择独居生活,家的概念逐渐从每个家庭剥离出来,向城市的公共空间中蔓延。在这种背景下,城市的商业空间正逐渐成为城市居民的另一个家。此次改造希望在胡同中为人们营造 一个公共的“家”,唤醒人们对家最初的记忆和对未来生活的憧 憬,连接人与人,人与胡同的周遭共生。
This project is a store renovation for the furniture brand “Lost and Found” located in Guozijian Street, a historic district in Beijing. As nowadays, more and more people tends to live alone, the concept of a tradi0onal family gradually disintegrated, and the city’s public space is becoming another “home” for people. Under such contexts, the renova0on intends to bring the sense of “home” into the store, and to introduce a new vision for the future commercial space that connects people with urban public space.
▼店面外观,external view of the store
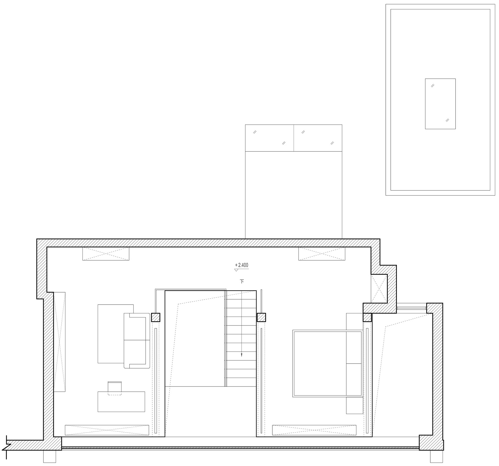
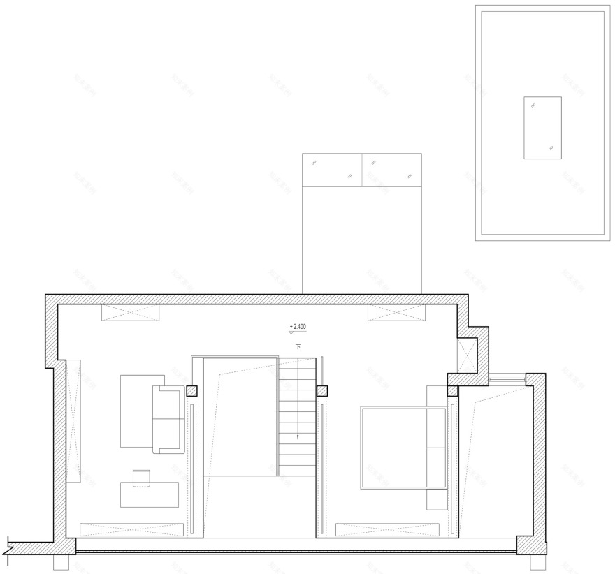
改造基本保留了传统北京胡同建筑的木结构梁柱,并做了阁楼的加建。入口的室内庭院作为整个空间布局的中心,其他功能区围 绕着庭院分布,被划分成餐厅,客厅,书房,卧室等不同的家的基本空间,形成回字形布局,与传统四合院布局方式相同。
By adding an aIc, the tradi0onal single-storey siheyuan building is transformed to a loK while most of the original wooden structure were retained. The indoor garden in the centre of the building divides the whole space into four independent areas – living room, dining room, bedroom and a study. Since all the rooms open up to the indoor courtyard, each space benefits from the sunlight that coming through the large skylight above and gets a view of the indoor garden.
▼入口,传统木结构梁柱被保留,entrance, the traditional wooden structure is remained
▼入口室内庭院为整个建筑的中心,the indoor garden at the entrance is the center of the building
▼客厅,living room
▼传统书房,traditional study room
在材质选择上,地板,墙壁,天花,家具等都使用了朴素的自然材质,忠实于材料天然的真实的质感,最大程度的减少人工的修饰加工,带给人一种粗粝又温暖的感受。家的样貌在胡同中原本呈现出来,也呼应着失物招领倡导的回归原点回归生活的品牌精神。
Natural materials are used in all areas such as terrazzo floor, diatom mud wall paint, and wooden furnitures. The rough texture and the plain look bring a warm and friendly feeling to people, waking up people’s ini0al memories and senses of home and family.
▼通往二层的木制楼梯,wooden stair to the second floor
▼二层客厅,living room on the second floor
▼二层书房,可以看到传统的木制梁架,study room on the second floor where traditional wooden structure could be seen
▼二层卧室,可以看到传统的木制梁架,bedroom on the second floor where traditional wooden structure could be seen
▼一层茶室设置单独的入口,separated entrance for the tea room on the first floor
▼宁静的传统茶室,traditional tea room in a tranquil atmosphere
▼摆件细部,典雅而自然,detail of the display goods in a sense of elegance and nature
▼一层平面图,first floor plan
▼二层平面图,second floor plan
▼立面图,elevation
项目名称:失物招领国子监一店改造
项目所在地:北京市西城区国子监街
项目类型:店铺
建筑师:青山周平,藤井洋子,唐静静,刘凌子 / B.L.U.E.建筑设计事务所
规模:二层
总建筑面积:120平米
设计周期:11.2015 – 02.2016
施工周期:02.2016 – 07.2016
摄影师:星野裕也
Project Name: Store Renovation for Lost and Found in Beijing
Project Location: Guozijian, Beijing, China
Element: Store
Architect/s: Shuhei Aoyama,Yoko Fujii, Jingjing Tang, Lingzi Liu / B.L.U.E. Architecture Studio
Size: 2-Story
Building Area: 120 m²
Construction Period: 7.2016
Photography Credit: Yuya Hoshino
客服
消息
收藏
下载
最近





















