查看完整案例

收藏

下载
设计概念 Concept
项目位于日本厚木基地附近,原为一间电路板工厂。设计师将一层的车间改造成为展厅和服务当地社区的多功能空间,同时具备多样性和开放性。考虑到未来对现有厂房建筑的再建,设计还做了一个多功能加建区域,可以根据使用者的活动改变空间设置。该建筑为框架结构,可以适应不同的条件和需求,而其中的装置及硬件更为灵活可变,与空间功能相协调。各种元素并置在一起,在维持各自特征的同时,赋予了建筑空间独特的个性。
This is an extension to an existing circuit board factory located near Atsugi base. The first floor area, which had originally been planned as a workshop, was changed to be used as a showroom and a multi-purpose space for local community, and therefore versatility and openness were required. Furthermore, since future reconstruction of the currently used factory building was under consideration, we tried to design an extension allowing for multiple uses, while providing adjustable spaces and programs in accordance with the active involvement of users. This building is constructed of a frame structure model designed to accommodate various conditions and requirements, as well as fitting and hardware elements allowing fine tuning by improving their adjustability and renewability. Those spaces in the building are characterized by the composition juxtaposing those elements without losing their original characteristics.
▼建筑全貌,external view of the building
基地属于半工业区,工厂和居住功能并存。工厂属于城市环境中封闭的空间,大多为钢架结构,覆有由工业材料制成的外墙;住宅为了保护隐私,也倾向于与外界相隔绝。因此,这两种封闭的功能几乎不可能以积极的方式混合在一起。基地旁边的住宅内,家庭成员会在户外进行晾衣服和遛狗等日常活动。如何让工厂和邻里的生活场景相和谐成为了设计师和业主共同思考的课题。最终,设计师决定使用“开放的木制工厂”来调和工厂和住宅之间的关系。设计希望创造一个被当地社区接受的集会空间,随着活动参与者的不同呈现出丰富的样貌。
The site is categorized as semi-industrial zone, where factories and residential houses coexist. A factory is a closed program in a city environment, mostly constructed of steel frame structure covered by exterior walls made of industrial materials; a house also has tendency to be closed in order to maintaining its privacy. As a result, those two programs have little chance to get mingled with each other—in a positive sense. The house adjacent to the site has a daily life in which family members sundry the laundry or walk a dog. Then, together with the client, we thought about how a factory should be standing next to such everyday scenery of the neighborhood. As a result, we came up with an image of an “open wooden-structure factory” that mediates the relationship between a factory and a house. We expect that this place will be accepted by the local community as a place where people gather, while changing day by day with the active involvement of various people.
▼建筑外观面,采用开放的木制结构,external view of the building, using open wooden structure
设计过程 Process
在确定了“开放的木制工厂”这一概念后,如何在不牺牲生活环境舒适性的条件下,从结构和构造上将建筑实现成为了设计新的挑战。设计师列出了需要考虑的各种元素,根据不同情况将它们进行调整,创造了一个“适应性模型”,通过改变参数,生成了多种可能的形态,再从构造和美学方面筛选出最终的结果。生活层由可移动元素构成,保证了空间的多样性以适应不同条件。与之相对,由于环境层不是一个轻易可达的区域,因此在设计上更多考虑美学因素,在空间上受到结构的制约。尽管设计师没有制作实体模型,但是他们采用参数模型来管理信息,实现了在更高的精度下同时研究空间环境、结构以及美学要求。在这个项目中,利用通用3D电脑辅助设计和编程来实现对录入数据的自由把控尤为重要,BIM等预先设置好数据的应用软件难以满足这种设计需求。只要运用适当的技术,就算是小型事务所也可以研究和比较大量模型,加强建筑设计的深度的精度。在这个过程中,建筑和美学的评判标准起到了更为重要的作用,它们不能简单地量化或用语言表达出来,而这正是小型设计事务所创作的强项。
▼参数建模,parameter model
Once we came up with the image of the “open wooden-structure factory”, the next challenge was to practically realize the building in terms of structural and constructional integrity, without sacrificing the living environment and its comfort level. Then, we set up a program for various elements to be determined by adaptively modifying them according to the conditions—that was named as the “adaptive model”. We made final decisions for the output variations in terms of constructional and aesthetic aspects; there are numbers of possible forms in parallel existence, with freedom of going back and force within the process by altering parameters. The living layer is configured with movable elements to ensure possibilities of various conditions of the space. On the other hand, the environmental layer was given certain restrictions derived from structural evidences considering various possibilities, because it is the area not easily accessible by the users and then supposedly valid final decision was made based on an aesthetic point of view. While we did not conduct a physical model study, we applied a method of parameter modeling allowing a free handling of information; this enabled us to simultaneously study the conditions of the space in terms of aesthetic and structural point of views in higher precision. In this project, it was important to allow free establishing of input format by using general-purpose 3D CAD and programing, rather than utilizing an application such as BIM software with predefined input format for our design process. It is possible even for a small design office to increase the depth and density of architectural design by utilizing certain technology, with objective comparisons and studies of a vast number of variations. During this process, architectural and aesthetic criteria would achieve more significant meanings, and this is where the authorship of small design offices remains, which is the last stronghold that cannot be explained objectively nor verbally.
▼建筑结构,structure and detail
遮阳板设计 About screen design
为了控制沿街面的视线以及建筑东侧的日照,设计师在建筑东立面设置了穿孔率30%的垂直遮阳百叶。百叶由三种不同的构件组成,分别为宽42mm/60°倾斜,宽80mm/70°倾斜和120mm/70°倾斜,在立面上形成了三种图案。东立面和北立面上的百叶朝向不同,分别对应解决了视线控制和日照控制的问题。部分铝制窗框可以调节,满足使用的需要。
In order to control visibility from the road side and screen the daylight from the east side face of the building, exterior fittings are designed with the numerical aperture of 30% on the east side face against the morning sun, with 3 patterns of vertical grills by combining 3 different components, in 42mm wide/ 60゜ angle, 80mm wide/ 70゜, and 120mm wide/ 70゜. The orientation of each vertical grill is different on the east face and north face, responding to both issues of visibility control against the site conditions and daylight control against the environment conditions. The aluminum sash of transoms above the canopy is partially operable.
▼建筑立面采用垂直百叶进行遮阳和视线控制,sunlight and visibility control by using vertical grills on the facade
▼可以移动的百叶满足不同的私密度和遮阳需求,movable grills meeting different levels of privacy and sunshade
▼百叶关闭后遮蔽外界视线,grills control the visibility from the roads when closed
▼百叶改变室内外空间之间的关系,grills change the relationship between the interior and exterior
内部环境设计 About environmental design
该建筑采用自由平面设计,空间桁架下的空间全部连接在一起,可以利用可变的垂直构件分割出不同尺度的功能空间。由于层高较高,室内的空气量十分大,需要专门改进屋顶出风空调系统以满足使用需求。设计将空调区域划分为生活层和环境层。生活层的进风口和出风口被安装在地面上,实现了单独网格内的清洁空气流通,提高了能源使用效率,在运行成本不变的情况下,大大提升了生活的舒适度。
This building is an open-plan space where the entire space above the space trusses is connected together, while the dimension of the space can be largely altered by its fittings. Since the air volume is large because of the high ceiling condition, typical air-conditioning planning with ceiling blowout method would require higher specification for air-conditioning equipment. Thus, we divided air-conditioning zones into the living layer and the environmental layer, and only the living layer was designed to be air-conditioned by installing air inlets and outlets on the floor surface to circulate conditioned air within a single grid. Due to this air-conditioning plan, a high comfort level was achieved using a highly cost effective method without increasing the initial running cost.
▼一层为生活集会区,采用自由平面,可移动隔板根据需求分割出不同尺度的空间,the first floor is designed in open-plan for public activities, using movable partitions to define various dimensional spaces
▼隐藏的收纳功能,the hidden storage
▼二层为工作空间,同样为自由平面,the second floor is for workplace, also designed in open-plan
▼二层采用木制可移动隔断,围合后私密感更为强烈,wooden partitions are used on the second floor, creating more isolated spaces
▼木制空间桁架,管道覆有保温层,减少能量损耗,wooden space truss, the insulated ducts reduce loss of energy
▼滑轨细部,detail of the sliding rails
▼建筑于夜色中透出灯光,architecture in the dark with gentle light
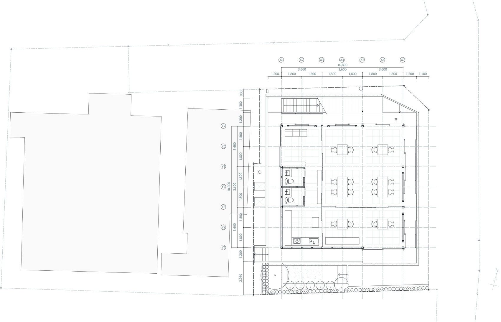
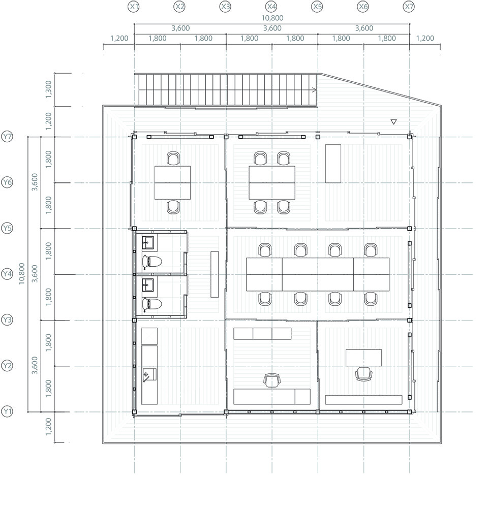
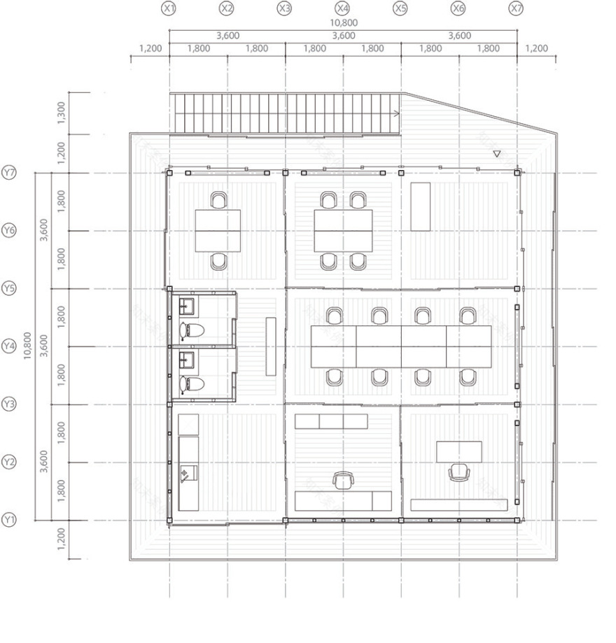
▼一层平面图,the first floor plan
▼二层平面图,the second floor plan
title: Substrate Factory Ayase
location: Kanagawa, Japan
date: 2017
program: Multi-purpose space, Office
site area: 278.25 m2
building area: 182.4 m2
total floor area: 290.88 m2
Project credits
Client: Y.K.ELECTRONICS CORPORATION
Architect: Aki Hamada Architects (Aki Hamada, Ryo Saito)
Structure: Konishi Structural Engineers (Yasutaka Konishi, Noboru Enshu)
Lighting: SIRIUS LIGHTING OFFICE (Hirohito Totsune, Ami Tohya)
Landscape: SfG Landscape Architects (Akihiko Ono)
Environment: DE.lab
Photo: Kenta Hasegawa
客服
消息
收藏
下载
最近











































































