查看完整案例

收藏

下载
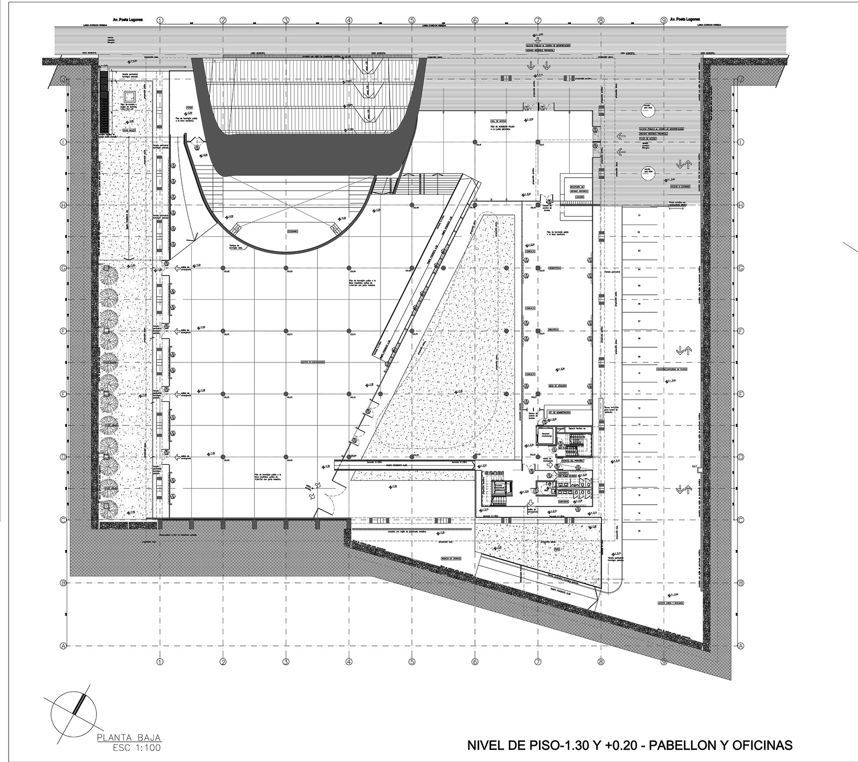
将建筑变为城市景观是当下的流行趋势,也指导了这个文化中心项目的落成。科尔多瓦文化中心是阿根廷共和国二百周年纪念建筑,此项目面临的最大挑战是在不更改原建筑性质的前提下,融入政府历史档案馆与人民礼堂。项目旨在设计一栋永久性当代建筑作为城市的标志,同时需具备各种公共职能。将建筑以景观而非纪念碑形式建造是一个新的尝试,这个新的城市空间需包含三个主要设计元素:多层建筑(展馆部分),地标性建筑(远景透视效果),林荫道(连接辅路和步行路网)。此建筑并非一栋传统意义上的纪念建筑,而是满足多样需求的集会议会中心,也是一处新的城市景观。
Making a landscape from a building was the ruling concept that guided this project search on the demand presented by the licitation for the building of a “Córdoba Province Interpretation Centre” to commemorate the Argentine Republic Bicentennial. The main challenge was to incorporate The Province Historical File and an the Auditorium without modifying the project essence. The project searched for a long lasting contemporary building as a sign of present time and its new demand for clarity, sustenance, communicative capacity and resource economy. It was an attempt to build a landscape over the idea of building a monument. This urban space is articulated over three basic elements: Stairs Building (pavilion), Pharos (long distance perspective icon) and avenue (with bifurcations and paths network). A landscape that would allow diverse public collective meetings above the idea of a traditional allegoric narrative monument, a meeting area landscape over the idea of a monument-building construction.
▼鸟瞰建筑,bird view
▼建筑全貌,full view
建筑与外部人行道路同期规划,融合了道路的多种组合形式,形成密集的步行路网。景观规划不一定要展现其层次结构,建筑与周围环境的整体设计表现了几何多样性和公共空间的社会流动性。由于项目坐落于萨米恩托公园,它被认为是连接了城市景观与自然景观。这栋建筑以一种更加和谐的方式重构周围环境,它既没有某个时代的特殊符号,也不会因其某种独特的建筑风格而被轻易辨别。这个独特的设计手法融合了科尔多瓦陡峭的地形记忆及严峻的自然景观,而仅有的标志性外貌便是其102米高的灯塔型外貌。
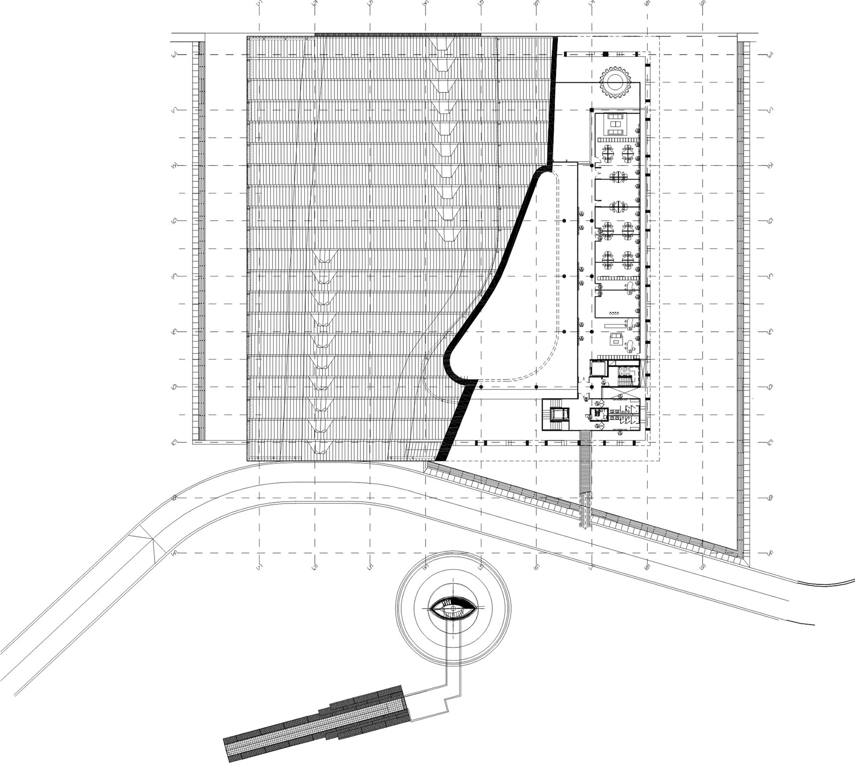
项目选址在科尔多瓦省的萨米恩托公园中心,位于公园一角面向西班牙广场(设计师Miguel Ángel Roca project)的MEC- Emilio Caraffa当代艺术美术馆(设计师GGMPU + Mzarch)以及省域自然科学博物馆之间。新加部分位于Poeta Lugones大街入口和萨米恩托公园最高立面标高之下6.50米。地形的限制使得一个63米X67米,形状波动的加筋混凝土建筑得以实现,并以一种柔美的姿态倾倒在周围景观之中。它如同被冻结了的波浪,涌动着冲向天空,将古老的公园引荐给这座城市。萨米恩托公园由设计师Carlos Thays设计。即便在几公里之外的地方也能轻易看到这座二百周年纪念塔,它代表着科尔多瓦的文化中心,一个螺旋的混凝土柱式建筑以90米的高度直入天际,顶部的桅杆最终将建筑总高度抬高至102米。文化中心博览会房间,礼堂和科尔多瓦历史档案馆与技术设备一同安排在广场下方。
The area devoted to the new building is part of Córdoba Province in the center of the Sarmiento Park between two city museums: MEC- Emilio Caraffa Contemporary Art Museum (Architects GGMPU + Mzarch) settled on the corner of this park, opening itself towards España Square (Architect Miguel Ángel Roca project) and the Province Natural Science Museum. The land referred to shows a 6,50 m depression between Poeta Lugones Street access and the highest Sarmiento Park elevation level.This situation allowed conceiving a 63 m by 67 m wavy reinforced concrete layer on a petrified liquid gesture. it shows the movement of a rocky sea which freezes its impulse in the air to introduce the meeting between the city and its oldest park, Sarmiento Park, designed by Architect Carlos Thays. The “Bicentennial Pharos” can be seen from several kilometers away. It points at the Córdoba Cultural Centre. It is an helical concrete column that rotates on its axe up to almost 90 m height. There is a mast on its top that takes the pharos to a total height of 102 m. The Cultural Center expositions room, the Auditorium and the Córdoba Province Historic File are under the square together with technical and service areas.
▼波动的水泥天花板平面,wavy reinforced concrete layer
建筑所有内部功能都规划在地下,如此,广场(即建筑的屋顶)和纪念建筑便成为地表仅存的可视景观。地平面的一个开口使建筑内部庭院与外部视觉互通。其他三个围合的院落均有充分的自然采光,可用作停车场,娱乐和服务空间,梯状墙壁倚靠在坡面上,与建筑天地融合,自成一体。
All the operation consisted in replacing a piece of land from the natural ground by the planned building. In this way, the square (building roof) and the Pharos are the only tectonic devises seen as urban pieces and landscape. The transitable layer has a hole that visually communicates the public surface with the building in yard. There are other yards on the three project perimeters. These yards allow natural light and are used as parking, entertainment and service areas with stepped walls that enclose and keep together in slope the previously digged ground.
▼建筑围合的庭院,yard in the architecture
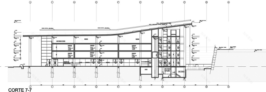
所有的植被规划在9X9米或加减倍数的模式中。如此给隐藏在纪念建筑之下的另外两个功能区,即历史档案馆和文化中心更多的灵活性。屋顶依靠V型柱子,通过水平抗压力和牵引力相互作用支撑,混凝土承重墙将礼堂从展示厅中分离出来。
All the plant is organized in structural modules with 9 x 9 meters or its multiples. This gives the necessary flexibility for the coexistence of the two programs sheltered by the building: The Historic File and the Córdoba Cultural Centre. The structure is completed with perimetral lines of leaning “V” shaped columns that can bear horizontal seismic efforts and gravitatory charges. There is also a concrete charge wall that defines and divides the half buried Auditorium from the CCC Showroom.
▼V型支撑结构,the V shaped columns
档案馆保护在混凝土结构玻璃墙壁中,此空间宽9米,长41米,高6.45米,其入口上方额外延伸2.6米。档案馆隐藏在如波浪般的广场设计之下,与其他空间分离,其隔热材料的运用也对内部档案起到良好的保护作用。
The File area is protected by a concrete prisma. This prisma is 9 m wide, 41 m long and 6.45 m high. It has a coffin shape that extends 2,60 m above the access level. Its upper part is also sheltered by the waving cover of the square that preserves it without touching it. The File insulation is extreme to protect its endurance and preservation.
▼入口大厅,the entrance
▼档案馆为混凝土结构,the File area is protected by a concrete prisma
▼礼堂,the Auditorium
项目因地制宜,并积极鼓励市民来此开展各种社会活动。如山洞般的内部,安置了科尔多瓦省的各种公共机构功能。如此,这栋建筑不仅避免了与相邻建筑之间的竞争关系,反而成为与城市相连的公共空间。它既充当了萨米恩托公园的接待大厅,也成功塑造为二百周年的标志性符号。
The project resumes in a topographic device that encourages massive social gathering in this public area. Inside it, as in a cavern, the institutional programs, demanded by Córdoba Province, rest. In this way, there is no competition between the new construction and the two neighbouring buildings. An urban connective system of public spaces is produced. These spaces are the Sarmiento Park anteroom emerging as the only landmark of the Bicentennial Pharos whole.
▼夜色中的建筑,architecture in dark
▼总平面图,master plan
▼剖面图,section
Location: Sarmiento Park, Córdoba city, Córdoba Province, Argentina.
Provincial Public Contest, Córdoba Province Architects College: March 2014
Situation: Closed, October 2014
General Architectural and Landscape Project: Architects Ivan Castaneda, Alejandro Cohen, Cristian Nanzer, Inés Saal, Juan Salassa and Santiago Tissot.
Structural Design Assessment: Architects Rosendo Dantas and Maria Edel Ruata
Landscape assessment: Architect Virginia Pinero.
Accoustic and technical lightening assessment: Architects Carlos Zoppi and CIAL (Technical lightening and Accoustic FAUD Investigation Center- UNC)
Project development collaborator: Architect Veronica Niedfeld.
Work accomplishment:
Building Enterprise: AMG- REGAM
Technical Representative: Architect Daniel Gerard
Architects encharged or work: Sebastián Rollino, Facundo Cazorla and Juan Ignacio Rimondi.
Structure Calculation: Engineer Carlos Larsson
Landscaping: Architects Ana Sala and Fabia Yazbek
Client: Córdoba Province Government
Architecture Director: Architect Andrés Caparroz
Surface involved: 15000 m2
Surface built CCC: 6170 m2
Work Cost: $ 41.000.000
客服
消息
收藏
下载
最近

































































































