查看完整案例

收藏

下载
本案是对现代工业建筑南京日报原印刷车间(1990年建)的再利用。设计的核心是对原有的单一高大室内空间重新划分,以满足创意办公的需要。设计策略围绕着空间认知而展开。
This project is reutilization of the former printing workshop of Nanjing Daily, a modern industrial architecture (built in 1990). The core of the design is re-dividing the originally single high and broad interior space, to meet the requirements of creative offices. The design strategy is based on space cognition.
▼建筑外观,appearance
▼鸟瞰,bird view
▼别具特色的砖结构外墙,the unique brick-texture facade
▼入口大厅,entrance hall
创意产业的精华在于差异性的凸显,这就要求各租户空间彼此相对的独立,又能够便捷地获得信息的交流。独立性与连续性约束着空间的生成,楼层内设计了回廊,回廊端部设置了休闲空间,楼层间植入了采光中庭,有效改善了原有建筑采光通风的不足,并进一步拓展了空间的水平流动与垂直连续。
The essence of a creative industry lies in its highlighted difference, which not only requires relative independence of the space of each tenant, but also a convenient exchange of information. Independence and continuity constrain the formation of space. A winding corridor, with leisure space set at the ends of the corridor. Lighting atrium is introduced between floors to effectively improve the lighting and ventilation of the architecture and further expand the horizontal mobility and vertical continuity of space.
▼建筑中的中庭,glazed atrium
▼良好的采光通风,atrium improves lighting and ventilation
▼拱形门洞创造了多变的空间体验,the arched doorway creates various spatial experience
空间体验起始于其边界(界面),改造设计从建构传统与透明性理念入手,并依据材料的自然性与建造的清晰性,探索了空间界面的生成。自承重的清水砖墙与主承重的钢桁架并置,清晰地传达出了各自的传力方式,并因这些自然力的表达而衬托出结构对于空间的介入,结构感知与建造逻辑转换为空间认知的重要部分。漏空花砖与实体花砖交替层叠,诠释了不同的材料透明性(物理层面),并重塑了空间的内外关系(现象层面),一系列的空间感知呈现出模糊与清晰交替转换的戏剧效果。
The space experience starts from its boundary (interface). The reconstruction design starts from the concept of tectonic traditions and transparency and explores the formation of space interface based on the naturalness of materials and clarity of construction. The self-bearing plain brick wall and the main bearing steel truss are put together to clearly convey their respective mode of force transferring, which sets off the intervention of structure to the space through expression of these natural forces, and converts the structural perception and building logic into an important component of the space cognition. The alternate stacking of hollow tiles and solid tiles interprets the transparency of different materials (at the physical level), and recreates the relationship between internal and external space (at the phenomenon level). A series of space perceptions will present a dramatic effect of the alternation of vagueness and clarity.
▼空间内的材质,interior texture
▼材质模糊与清晰交替创造出戏剧效果,alternative stacking of hollow tiles and solid tiles interprets the transparency
▼洗手间,toilet
▼楼梯间,stairwell
▼走廊,corridor
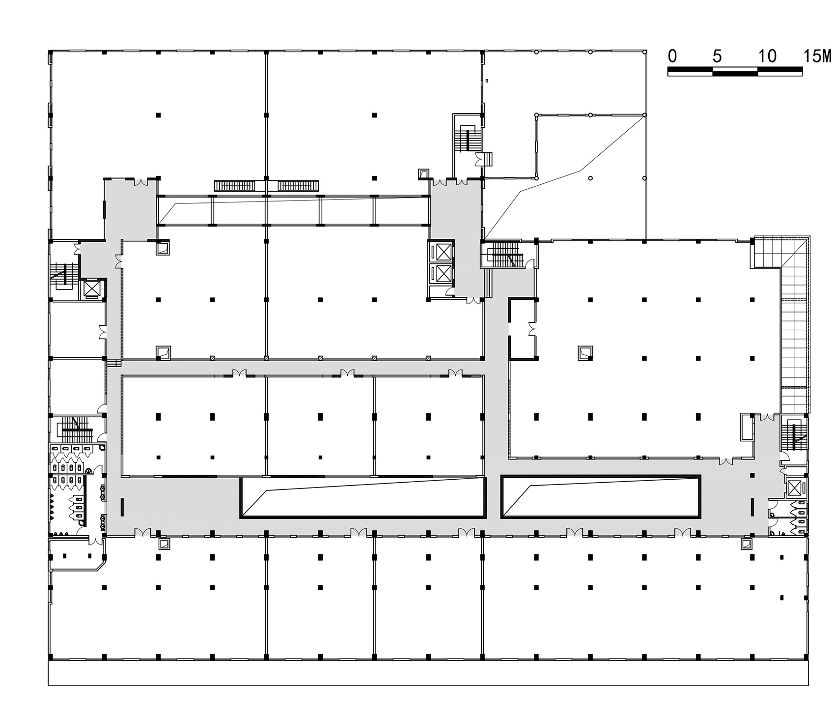
▼一层平面,first floor plan
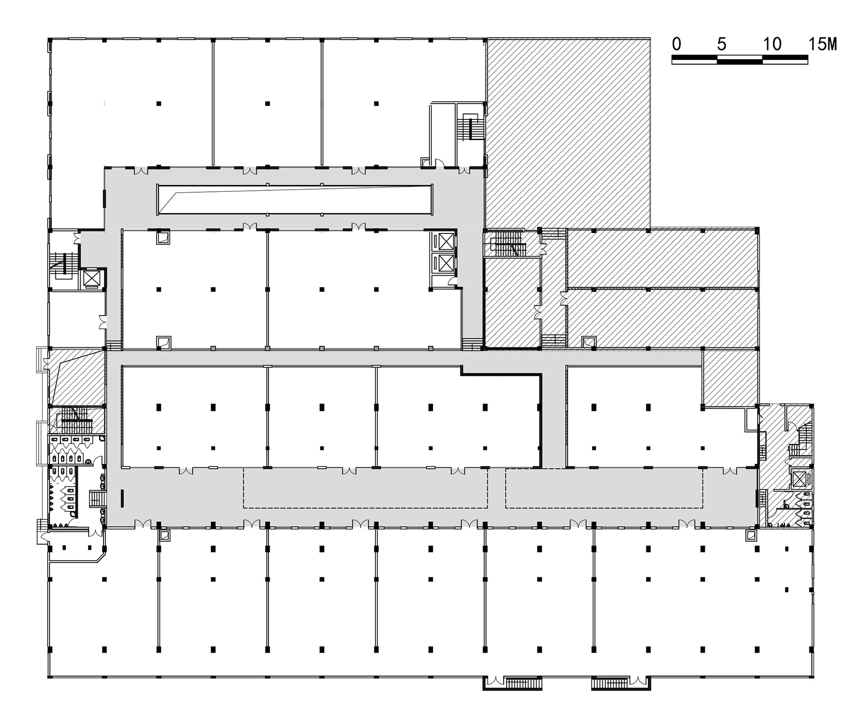
▼二层平面,second floor plan
▼三层平面,third floor plan
▼立面,elevation
▼剖面,section
项目名称:X 魔方——南京报业文创园改造
项目地点:南京市光华路海福巷
施工时间:06/2014 -12/2016
建筑面积:23000㎡
建筑用途:创意办公/工作室
设计单位:张冰土木方建筑工作室
主持建筑师:张冰
设计团队:王倩、潘俊宇、徐成、乔梁、崔旭峰、倪钰翔、苏凯强、陈保建、杨洋
业主:南京报业文化发展有限公司
砖类型:承重砖(结构)
摄影:侯博文,张冰
Project: X Magic Cube – Rebuilding and Revitalization of Nanjing Newspaper Culture Creative Park
Location: Guanghua Road Haifu Lane, Nanjing
Construction Period: 06/2014 -12/2015
Total Area:23000㎡
Building Purpose: Creative Community & Workshop
Design Firm: Zhang Bing &Atelier Groundwork Architecture
Principal- in-Charge: Zhang Bing
Design Team:Wang Qian, Pan Junyu, Xu Cheng, Qiao Liang, Cui Xufeng, Ni Yuxiang, Su Kaiqiang, Chen Baojian,Yang Yang
Client: Nanjing newspaper Culture Development Co., Ltd.
Building Purpose: Creative Community & Workshop
Brick type: Handmade Clay Blocks (Structural)
Photography: Hou Bowen
客服
消息
收藏
下载
最近








































