查看完整案例

收藏

下载
“一对夫妇,一栋Empordà传统住宅,和一个梦想,住宅应该按照使用者的要求而改变。”有一对夫妇决定在他们的度假屋中度过漫长的岁月。这栋位于桑特莫里乡村度假屋,环绕在树林和田野中,展现了Empordà独特的小镇风光。项目的目标是充分利用坡地景观,恢复小型扩建项目中遗失的风景。设计师希望将环境恢复到曾经的华美,并以一种内外部协调的方式,创造一种具有舒适感的居住方式。
A couple, a traditional house in the Empordà and one dream. Houses should evolve along with its users. Ana María and Manuel made the decision of spending as much time as possible in their summerhouse in Sant Mori, a rural village located between Figueres and Girona. Among forests and fields, this particular place offers their inhabitants the typical landscape of the Empordà. The objective was to recuperate the views lost in the small enlargement project and the old swimming pool area, taking profit of the stepped zone in the land slope. We had the opportunity to revitalize the noblest part of the area, and to give this place a different way of living with new exterior and interior limits and comfort parameters for this new period.
▼传统住宅外貌,traditional house in the Empordà
住宅最早被用作度假屋,现如今,由于空间尺度和其他一些不可行性,这栋住宅不能被人长期居住。建筑本身所具有的高品质及鲜明的个性被保留和加强,此次改造并没有与之前的形式对抗,反而使其原有的特性更加明显。
The house had been designed to be used and enjoyed by one family during summer months and holidays. Up to now it was too big and impractical to live in during the whole year. The already special qualities of the building with its enormous personality have been maintained and strengthened. We could say that the new reform does not compete but improves its original identity.
▼建筑入口,the entrance
▼室内外良好互通,good relationship with the environment
设计师的意见是将住宅平面与花园连接,并将一个停止使用的老旧厨房改造成这栋住宅的核心部位。一栋坐落在桑特莫里中世纪历史旧区的住宅,是否应该在底层有一个大厨房,餐厅或者起居室,然而底层厨房空间的高效利用方式,尤其在冰冷的季节中,可以给建筑以新生。因此,项目进行了厨房的复原规划,将其完全开放向邻近的平台并且覆盖了餐厅和小型起居室。
Can Blasco-Nicolau, located in the historic old quarter of the medieval village of Sant Mori, had a large kitchen/dining room/living room area on the ground floor, which was used in the holiday period. Nevertheless, the existence of an old kitchen in this floor was the perfect opportunity in order to provide a more efficient use of this area and a new life to the building, in particular during cold winter months. The Project planned a complete rehabilitation of the kitchen with a total opening to the contiguous terrace and an additional covered opened area which was going to be used as daily dining room and small living room.MESURA’s proposal was to adapt the floor with access to the garden and restore an old and forgotten kitchen (as there was a bigger kitchen integrated in the noble floor), with the idea to transform it in the new heart of the building.
▼将入口门厅改造成起居室,transform the entrance hall into living room
▼起居室与室外花园相连通,the dining/living room connects to the garden
设计师在第一次实地考察中发现,除了极小的开窗,厨房与外部环境联系紧密,加泰罗尼亚拱顶十分精美。因此,改造决定延续厨房的拱顶,并将其扩建开放至各个房间,同时保留传统的建筑构造。
In our first visit we discovered that the kitchen was closed to the exterior area (except for a small window) and covered by an excellent Catalan vault that rested on walls. Therefore, it was clear the need to open the kitchen with a new expansion that profited the vault and linked both rooms maintaining the typical structure of the house.
▼厨房精美的拱顶被保留,an excellent Catalan vault is preserved
▼厨房的改建增加了底层空间的利用率,the kitchen in this floor provide a more efficient use of this area
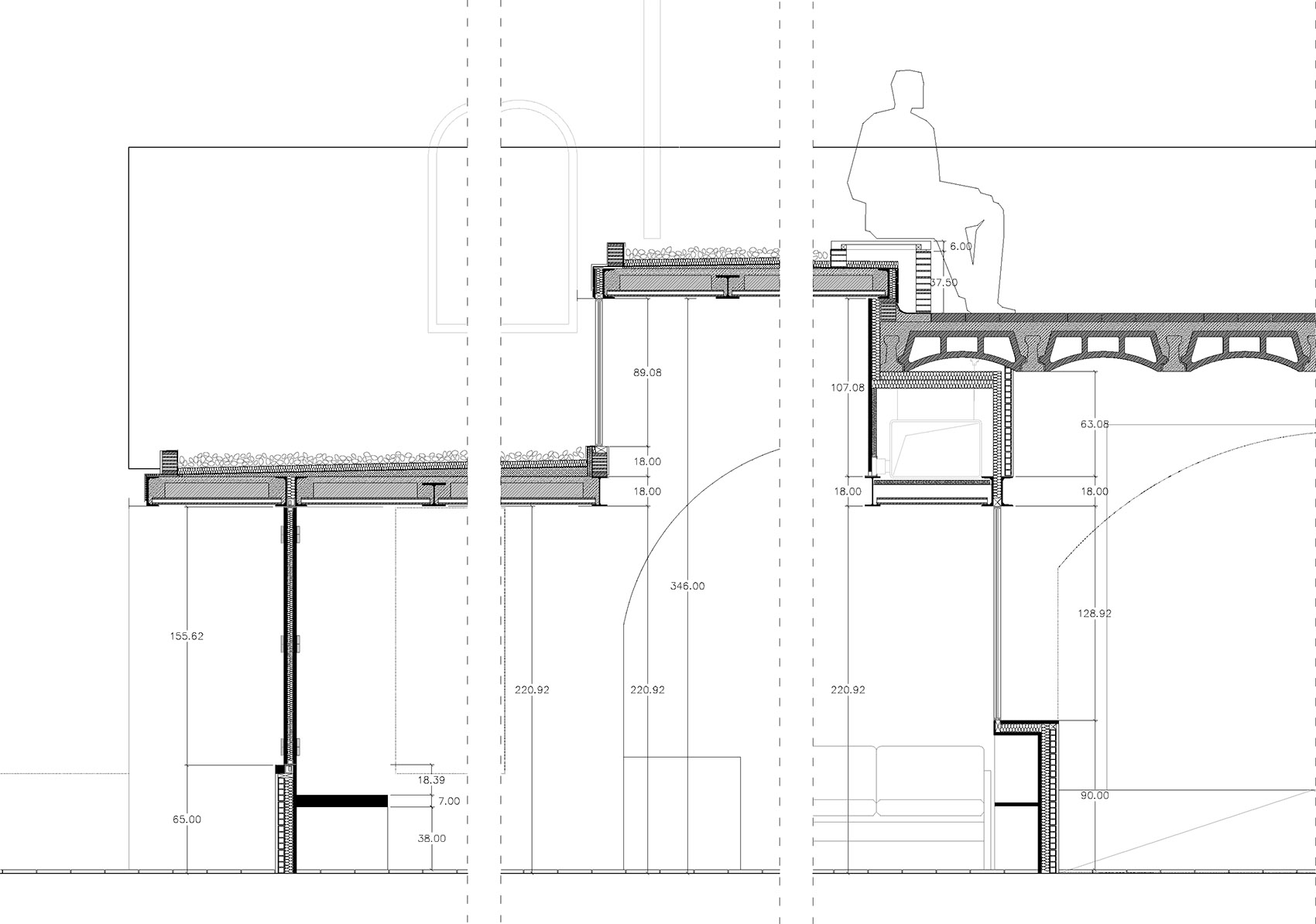
1999年,住宅曾被加盖一个小小的门廊,这个门廊沿结构立面单项延伸,成为房主在炎炎夏日中最长休憩的地方。设计师深刻意识到这一区域的重要性,并以此为依据建造一个新的起居室或餐厅与门廊连通,同时与花园保持一致。从结构和经济的角度,以及环境和视觉角度来说,这种小型的介入方式是最佳的解决办法,因为这样既没有加入新的空间,而仅仅是重修和完善了建筑本身的不规则和不延续的立面。考虑到现存地下层的问题,为节省基础,沿立面的老式壁柱仅有1.4米高。因此,建筑可以建造一个不需要柱子支撑的单向结构屋顶,依靠现存壁柱和混凝土冲模来达到最小高度要求。
Some years ago, in 1999, a small porch had been built. It had an unidirectional structure along the façade and it had been one of the most lived areas by the client in the hottest summer afternoons. This fact was relevant to us. It was important to strengthen this small area in order to build a new dining/living room interconnected with the porch and at the same time homogeneous to the garden.From a structural and economic point of view, as well as from the environmental and visual impact (it is a protected house according to POUM in 2009, documented by the architect Amador Ferrer), this small intervention was an excellent solution because it didn’t incur in added volume but only redrew and completed its own irregular and fractured facade.Following the line of the facade would let us profit an old pilaster (although its height was insufficient, 1,40m) and save on foundations considering the problems with the existing basement floor. In this way it was possible to build a roof without the need to place a pillar in a unidirectional structure (formed by one HEB-200), supported on the existing pilaster, and built with a concrete die to reach the minimum required height.
▼餐厅作为改造空间的一部分与外部空间充分连通,dining room as a part of the transformation
▼改建空间与室外环境充分接触,the renovated space have a close relationship with the surroundings
▼洗手间,bathroom
这种单向性让屋顶壁砖通过两个不同的水平线上曾展现灵活性。第一层2.2米,将入口处缩小,给餐厅增加些人性化的尺度。第二层3.5米,将空间开敞到最大,并打造天窗与外界连通。如此,基于建筑本身的结构和美感,项目最终落成。住宅项目以保持最佳的环境质量为基础,将空间功能和结构最小化,通过对大尺度内部空间的开放和利用,来改善人与环境的关系,让人感受桑特莫里自然环境的变化。
▼平面图,plan
▼立面图,elevation
客服
消息
收藏
下载
最近

































