查看完整案例

收藏

下载
著名建筑设计公司联创 UDG 的老板邀请我们将一个健身房改建成尖叫实验室。尖叫 wowdsgn 是一个家居电商品牌,而这个实验室就是尖叫的线下体验店。为什么一个有着成百上千建筑师雇员的建筑师去找一个非典型建筑师来设计他精心培育的跨界新品牌?按照薄院长的讲法,俞挺和 Wutopia Lab 一向所追求的公共性和生活性,是尖叫实验室这个生活品牌所需要的。
Owner of the famous architectural design company, UDG, invited us to rebuild a gym into a WoW lab. WoW is a household E-commerce brand, and this laboratory is WoW’s offline experience center. Why an architect with hundreds of architect employees wants to find an atypical architect to design his carefully cultivated cross-border brand? According to director Bo, Yu Ting and Wutopia Lab’s pursuit of publicity and life feature is what the lifestyle brand-WoW Lab needs.
▼ 注重体验的空间,the laboratory is an experience center
▼ 项目鸟瞰,bird’s eye view of the site
任何室内设计都要去刺激城市公共空间
Interior design should stimulate the city public space
健身房现状就是一个玻璃盒子。透明玻璃制造了一个开放的幻觉,但其实是牢笼,我们希望打破它。我们把尖叫实验室看成一个可以成长的复杂系统,它需要突破自己边界。我首先在南侧设置了一个标志性的入口,直接将南侧主路人流截留进入实验室。
The gym’s current situation is a glass box. Transparent glass creates an open illusion, but is actually a cell which we want to break. We see WoW Lab as a complex system that grows, it needs to break through its own boundaries. We first set up a distinct entrance on the south side, directly lead the south main road traffic into the laboratory.
▼ 南侧主入口,the main entrance on the south side
在我的绘画学习中,中国元代山水的笔墨和德国表现主义情绪化的色彩是两个重要的范本。长期的现代主义建筑学教育,让我慢慢将色彩隔离在建筑设计之外。尖叫实验室LOGO的基色是黑和明黄,于是我就这两种颜色去塑造室内的基本背景。最后在房子的背面有个多余的小角落,呼应室外鲜艳的绿色,我决定用对比色红色。
According to YU Ting, ‘In my painting study, the Chinese Yuan Dynasty landscape ink and German expressionist emotional color is two important models. During the long-term modernist architecture education, I slowly isolated colors outside the architectural design. WoW Lab LOGO’s base color is black and bright yellow, so I used these two colors to shape the basic background of the interior. In the back of the house there is a redundant small corner, echoing the bright green outside, I decided to use its contrast color red.’
▼ 设计使用了鲜亮的颜色,the vivid colour creates a vibrant experience
其次保留北侧的入口,再次在利用固定家具分隔开展厅和办公区后保留两者之间的联系过道。在东侧我用一个悬挑的透明玻璃空间打破建筑界面去接近东侧树林。最后我审视了建筑的屋顶,决定设计一个微型的中庭,在里面安放一个升降梯,就可以突破天花占据屋顶,俯瞰控江路。
followed by retaining the north side entrance, once again used fixed furniture to separate the exhibition hall and the office area to keep the aisle in between. On the east side we used a cantilevered transparent glass space to break the building interface to reach the east side woods. Finally, we studied the roof of the building, decided to design a miniature atrium with a lift inside. People could break through the ceiling to occupy the roof and overlook KongJiang road.
▼ 东侧悬挑的玻璃空间,a cantilevered transparent glass space on the east side
▼ 北侧入口旁具有引导性的颜色,the bright red indicates the position of the north entry
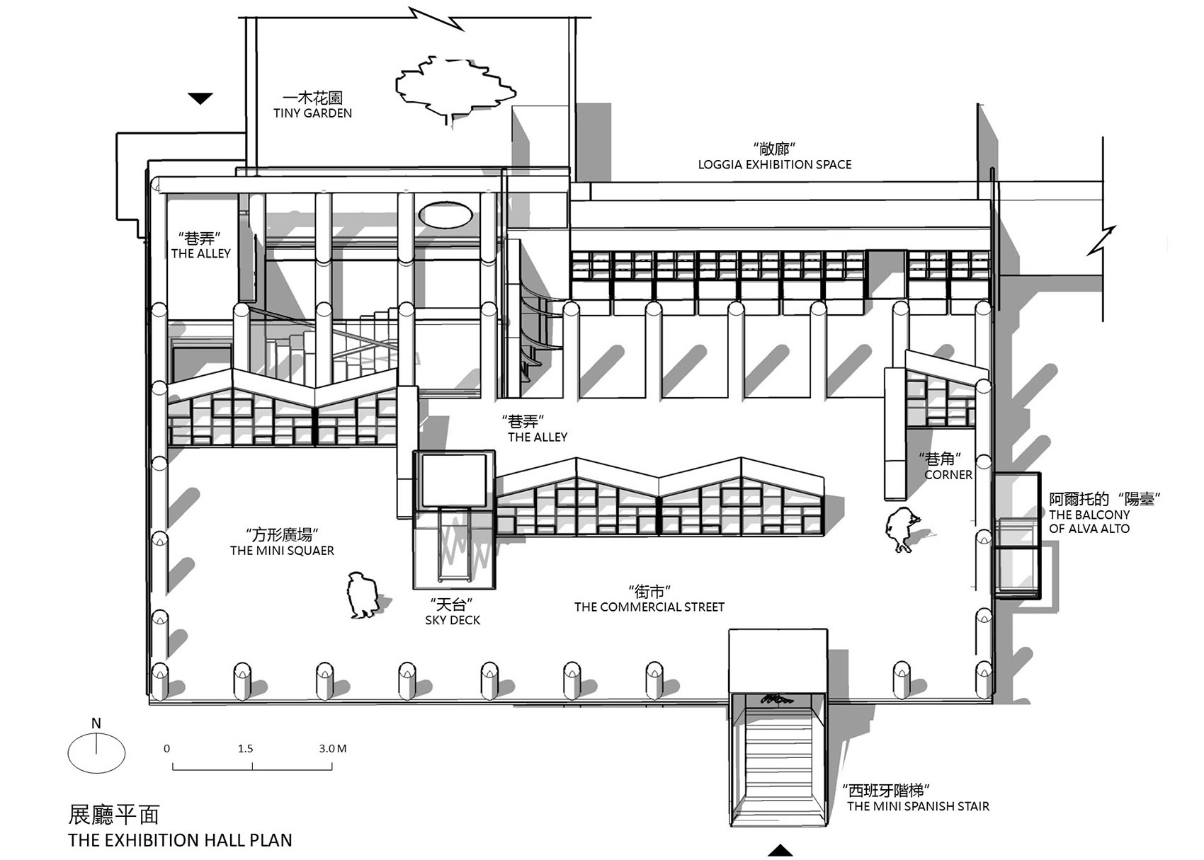
一个室内可以是一个微型城市
An interior can be a miniature city
尖叫实验室究其本质首先就是个家具展厅,建筑师决定用家具去创造一个微型城市。这个城市由广场,商业街,露台,电梯,大台阶,街道立面,天际线以及一些边缘空间组成。建筑师试图用家具的设计和组合来实验《建筑的模式语言》的某些结论。
WoW Lab’s essence is firstly a furniture exhibition hall, the architect decided to use furniture to create a miniature city. The city should consist squares, commercial streets, terraces, elevators, large steps, street facades, skyline and some edge spaces. The architect tried to experiment some conclusions of the book “A Pattern Language ” with the design and combination of furniture.
▼ 建筑内部的空间组成,the organisation of the internal space
建筑师设计了三组固定家具,第一组是用半透明亚克力作为背板的柜子来表达街道连续立面和城市天际线。建筑师在最近一系列作品中持续在界面试验半透明上,他注意到借助光线可以使得界面可以封闭,也可以因为影子消解质感而半开放,这样的界面具有多义性,建筑师其实希望城市界面也能如此。
The architect designed three sets of fixed furniture, the first set is the cabinets which used translucent acrylic backboards to express the street continuous facade and urban skyline. In recent series of works, the architect continued to test translucent on the interface. He noticed that the interface could be closed by luminous beams, or it can be semi-open due to the dissolve of shadow. This kind of interface possesses multiple meanings. The architect wants the city interface to be so.
▼ 由北侧入口进入室内,get into the building through the northern entry
▼ 正对南侧入口的空间,the space facing to the south entrance
▼ 家具象征着不同的城市界面,furniture symbolizes the city’s interface
我们把亚克力柜子设计成一个有三角形顶部的单元,这些单元通过组合可以按需分隔成不同的区域,就如传统中国空间里的屏风,这就是家具重新定义场所。第二组固定家具是展厅和办公的隔墙,家具的翻板和暗柜收拢时,它就是常见的兼做隔墙的壁柜,当暗柜移出,翻板打开,这就是一个展示区。
We designed the acrylic cabinet as a unit with a triangular top. These units can be separated into different areas by needs. As the traditional Chinese screens, this is which furniture redefines spaces. The second set of fixed furniture is partition the of exhibition hall and office area. When the furniture’s leafs and concealed cabinets are closed, it is a common wall closet used as partition. When the concealed cabinets and the leafs are open, this is a display area.
▼ 家居中隐藏的暗柜,the concealed cabinets and the leafs
第三组家具和第一组第二组家具限定后形成的所谓商业街的尽端,它是个展架也是个休息座更是立面。然而这是不够的。薄曦在全透明的悬空玻璃房上放了一把阿尔瓦阿尔托送给木匠的原型椅,这把被木匠自作主张刷上红漆的椅子就把玻璃房重新定义成和室外绿树几乎伸手可得的一个人发呆和思考的场所。让这个空间可以脱离主体空间而完整独立地存在。
The third set and the first and second sets of furniture defined the so-called terminal of the commercial street, it is not only a display but also a seat and a facade. But that is still not enough. Bo Xi put a prototyped chair which Alva Alto gave the carpenter on top of the transparent glass house. The chair – which was brushed into red by the carpenter’s own idea – redefined the glass house into a space for people to daze and think next to the outdoor branches. So that this space can be separated from the main space and exist independently.
▼ 半透明展柜围合的休息空间,translucent acrylic backboards creates a comfort resting space
▼ 半透明的休息空间,a prototyped chair of Alva Alto is puted on top of the transparent glass house
升降机上放一个椅子和茶几。这样的交通空间可以被定义成移动的休憩空间。当平台缓慢升出屋顶,玻璃天花仿佛水面映射着自己,这是一个可以短暂失神的时刻,我想,这如果可以是一个人的下午茶,那该是多么孤独啊。
A chair and a coffee table are placed on the lift, thus the traffic space can be defined as a movable rest space. When the platform slowly gets out of the roof, glass ceilings reflect the person’s own body as the lake surface, this is a moment of absence. I think, if this could be just one person’s afternoon tea, then how lonely it is.
▼ 舒适的阅览空间,comfortable reading space
城市微空间复兴的一个诘问:工人新村如何复苏
A question of city micro-space revival: how to revive the workers new village
UDV联创上海设计谷是以前的新凤城迎宾馆改建而成。而其所在的凤城新村则是由解放后上海市政府为解决工人居住问题而推行的“两万户”计划中的三号基地逐渐发展壮大而成的著名工人新村。在近20年,凤城新村似乎并没有赶上上海发展的脚步。
UDV LianChuang Shanghai Design Valley is converted from the former new Fengcheng Hotel. And its location Fengcheng new village was a famous workers new village which derived from Shanghai municipal government’s “twenty thousand” plan to solve the problem of workers ‘s dwelling problems after liberation. In the past 20 years, Fengcheng new village does not seem to catch up with the pace of Shanghai.
▼ 旧场地的更新过程,metabolism of the old place
杨浦的街道大多以东北城市命名,结果杨浦似乎成了上海的东北,有过极其辉煌的历史,当下尽管努力但显然落后了。商业中心和高级住宅楼掩盖不了杨浦的失落,却又如同遮眼布挡住了杨浦值得保留的工业文脉的光辉。尖叫实验室在城市上的意义是,设计作为一种工业的武器可以借用建筑和空间改造来重新定义工人新村和工业遗产,孤独的下午茶并不是所谓的情怀,而是一种可能性针灸,在大家习以为常的场所中创造一个自豪的希望。
Streets in Yangpu distinct are mostly named after the Northeast cities. And the result of Yangpu seems to become the northeast of Shanghai – which had a very brilliant history but lags behind nowadays. Commercial centers and high-rise residential buildings can not cover the decline of Yangpu, but act as a blindfold to conceal the glory of Yangpu’s worthy preservation industrial context. WoW Lab’s city meaning is that design, as an industrial weapon, can borrow architectural and spatial transformation to redefine the workers’ new village and the industrial heritage. The lonely afternoon tea is not the so-called romanticism, but a possibility of acupuncture, to create a proud hope in places which people are accustomed to.
▼ 更新前的原貌,the original space before renovation
▼ 图纸,drawings
主持建筑师:俞挺
项目建筑师:鲍勃胡
地点:上海市杨浦区控江路1500弄UDV联创上海设计谷8号楼
面积:180平米
时间:2016/11-2017/4
材料:欧松板,亚克力,硅酸钙板,碳化木地板
设计公司:Wutopia Lab
摄影:CreatAR Images 清筑影像(艾清,史凯程),陈默默
Chief architect: YU Ting
Project architect: Bob HU
Location: Shanghai Design Valley
Area: 180 square meters
Project year: 2016-2017
Material: OSB board, acrylic, calcium silicate board, carbonized wood flooring
Design company: Wutopia Lab
Photography: CreatAR Images (AI Qing, SHI Kai Cheng), CHEN momo
客服
消息
收藏
下载
最近




































