查看完整案例

收藏

下载
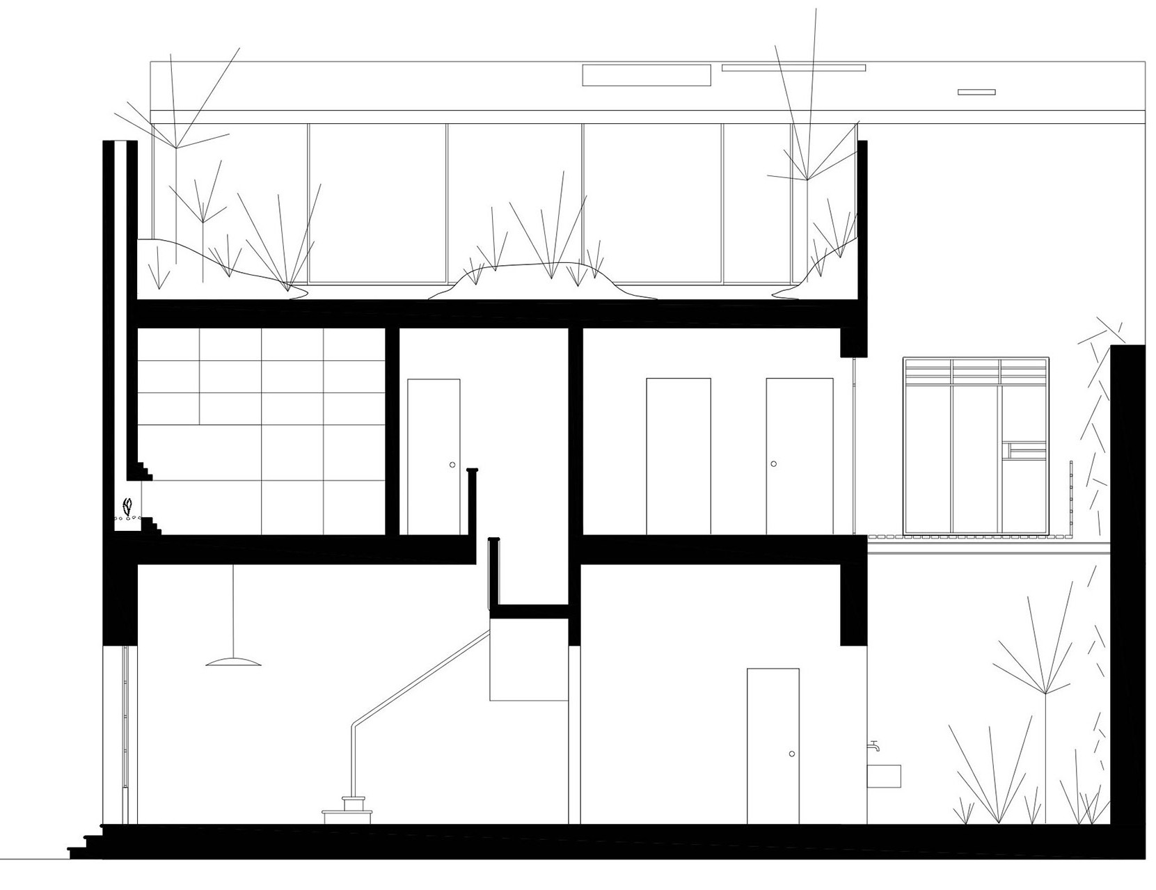
该项目位于墨西哥城中心一个安静内向的环境中,前身是一个20世纪30年代的联排别墅。建筑后来被改造成为一个三层的家庭住房,每层都有独具特色:底层的功能性服务空间,上层的家庭生活空间,以及屋顶花园的隐私空间。
A townhouse from the 1930s, situated in a quiet setting inside a shared courtyard right in the centre of Mexico City, is transformed into a family home. The house is vertically organised along three levels, each with a distinct character: functional service spaces on the ground level, family life on the upper level, and retreat to privacy on the roof garden level.
▼ 屋顶花园鸟瞰,the private garden in the centre of Mexico City ©Juan Carlos Garza
▼ 喧闹城市中一片安静的绿洲,a secluded oasis within the buzzing city centre ©Juan Carlos Garza
▼ 屋顶花园的天井为下层空间带去自然的元素,part of the space is cut into the building to create a natural atmostphere ©Juan Carlos Garza
▼ 天井使得下层具有更充沛的自然光,the opening lit the lower level ©Omar Muñoz
▼ 与屋顶花园相连的主卧,master bedroom is located at the end of the garden ©Omar Muñoz
被废弃使用的建筑拆除了内部过多的墙壁,营造出大量的生活空间。屋顶庭院切入建筑内部,创造了很多天井,使日光进入下层。通过引入由白色混凝土制成的大型悬挑式屋顶,设计师在现有建筑的顶部添加了一个楼层,屋顶同时为室内空间提供荫蔽,使室内获得较为柔和的日光。顶层的设计最小化了室内空间,以增加屋顶花园的比例。整个顶层的全高度滑动玻璃窗展示了丰富的绿色植物。喧嚣的市中心一片幽静的绿洲令人印象深刻。
A derelict existing structure was freed from excessive internal walls to create generous living spaces. Patios and openings for roof lights were cut into the building to maximize daylight in the previously dimly lit lower levels. A new floor was added to the top of the existing building by introducing a large overhang roof made of white concrete, providing shadow for the fully glazed interior spaces that benefit from softly moderated daylight. The new rooms are designed with minimal features to enhance the presence of the green roof garden. Full height sliding glass screens all across the top floor open up panoramic views into the rich greenery giving the impression of a secluded oasis within the buzzing city centre.
▼ 主卧室的景色,the view in the master bedroom ©Omar Muñoz
▼ 主卧附属的洗手间,the main bathroom ©Omar Muñoz
▼ 位于顶层楼梯,the staircase ©Omar Muñoz
白色大理石混凝土内饰创造了具有鲜明性格的现代主义外观。除了新的屋顶,整个地板都是由卵圆形大理石制成,将象征着墨西哥城曾经的河床和湖泊,这些元素用于室内的设计。此外,现场制作的混凝土桌子和圈形长椅被安置在花园内的一个角落。一个新建的螺旋楼梯将下层的起居室与现代的顶层花园相连接。同时,楼梯上方的屋顶引入了阳光。设计师对现有结构的空间进行了优化:新增了打开的天井,木地板,壁炉,以及为该场地专门设计的家具和黄铜灯饰。
All new additions are realized in white marble concrete to achieve a contemporary environment with a fresh character. Besides the new roof the entire flooring is realized from cut marble pebbles in direct reference to Mexico City’s lost river beds and lakes that used to form the landscape before the city was established. Furthermore an in-situ concrete bench and table were cast into a niche within the garden. A new spiral stair connects the art deco lower floors with the contemporary garden level letting daylight pass down from roof lights above the stairs. Spaces within the existing structure were joined and revamped with new window openings, wooden flooring, a new fire place, built-in furniture and brass lamps specifically designed for the project.
▼ 连接顶层和一层的楼梯,the stairs connect the first and second floor ©Omar Muñoz
▼ 走下楼梯进入一层,the stairs lead to the first floor ©Omar Muñoz
▼ 一层室内,the interior of the first floor ©Omar Muñoz
▼ 一层引入户外的环境,the first floor are connected to the natural environment by the openings ©Omar Muñoz
▼ 玄关,the entryway ©Omar Muñoz
▼ 平面,plan
▼ 剖面,section
客服
消息
收藏
下载
最近





































