查看完整案例

收藏

下载
曾经作为工业区和军营的Løren社区,近几年已经摆脱旧模式并逐渐发展成为受欢迎的居住社区空间。为配合未来的发展计划,此社区已经计划建造了新的地铁站。
The neighbourhood of Løren, a former industrial area and military camp, has in recent years emerged as a new, attractive residential district. As a further development of the area a new metro station was planned.
▼地铁入口处,the main entrance
地铁站位于地下27米,有两个入口,可以步行台阶或乘坐扶手梯,升降梯到达站台。
The station is located 27 meters underground and accessed by stairs, escalators or lifts from the two entrances.
▼乘坐扶手电梯进入地下入口,the entrance to downstairs
▼地下的自然采光,the natural skylight
门厅由混凝土包围的设备部分和钢结构及玻璃组成的公共空间构成。巨大的钢梁横跨天花板展现了足够开放的空间,天窗的开设合理的控制了白天光线变化。通往站台的三种不同自动扶梯将相互连接的通道穿插着营造了一系列多变化空间。车站大厅的扇形隧道与中间平台相互依存成自然的拱顶形状。
The main vestibule comprises a closed, technical part made in concrete, and a public part made in steel and glass. Large steel girders in the ceiling make the room open and column-free, and the many skylights open up for changing light conditions through the day. Three different escalators with interconnected passages provide for a varied spatial sequence on the way down to the platform. The station hall is a mountain tunnel with a middle platform and a natural vaulted shape.
▼拱形的地下通道,the vaulted passage
▼地下空间的开窗,natural light in the underground space
▼地下中间层入口,underground middle layer entrance
▼钢结构梁,steel beam
▼通往站台的扶梯展现多样空间,the escalator to the platform shows a variety of space
技术部件被大范围暴露在建筑构造中,这种不做刻意隐藏的处理方式给地铁站一种粗野的工业化氛围;运行在巨大的混凝土和钢筑的机械设备中,人在地下铁中穿梭着。
The extensive technical installations have been a contributing factor to the architectonical concept, exposing it rather than attempting to hide it. This gives the station a robust and a industrial atmosphere; A giant machine in steel and concrete bringing people up and down into the metro system.
▼暴露在外的建筑构造,exposed building structure
▼站台,the platform
▼裸露的设备管道,exposed technical ducts
▼区位图,situation map
▼主入口,main entrance
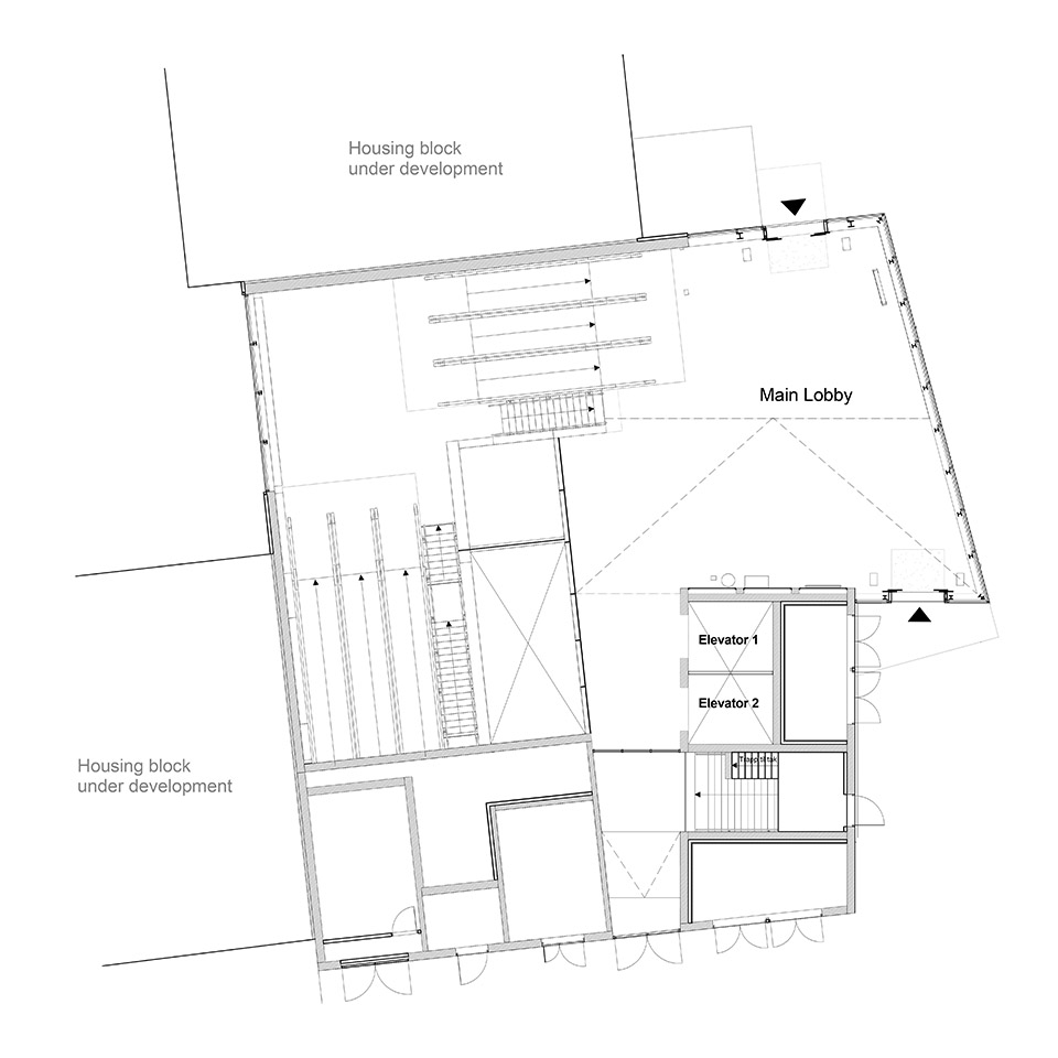
▼平面图,platform plan
▼剖面图,section map
Team: Arne Henriksen, Helge Lunder, Dagfinn Sagen, Line Gudbrandsen, Magnar Westby, Christin Johannessen, Minna Riska
Project location: Oslo, Norway
Completion Year: 2016
Gross Built Area: 5800 m2
Photo credits: All photos Ivan Brodey except: Photo 15 by Jimmy Linus.
Client: Sporveien Oslo AS
Landscape: Grindaker Landskapsarkitekter
Consultant team: Aas Jacobsen AS, Ingenia AS, Electronova AS
客服
消息
收藏
下载
最近






















