查看完整案例

收藏

下载
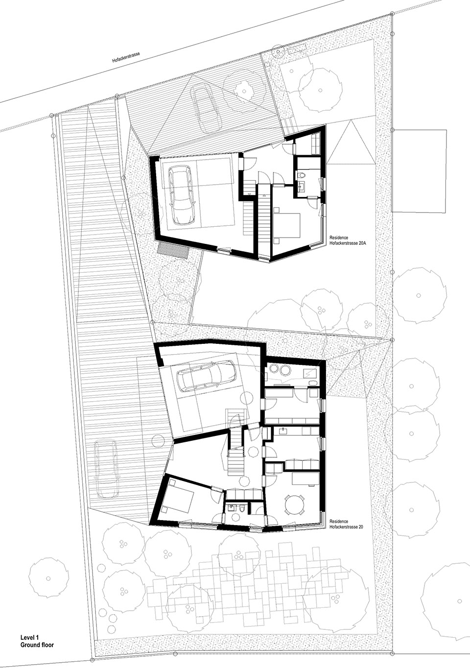
遵照业主与居住者的要求,建筑场地被一分为二,两座可完全独立运行,自给自足的建筑各占一隅,将场地利用到了极致。但看似互不相关的两座建筑实则在体量、材料、色彩与空间形态上皆一一呼应。比邻而立的空间体量最大化了建筑大胆而又自信的姿态,让其成为了这片传统居住区中极为独特的存在。而拥有独立而同等地位地址的两座建筑皆为其居住者提供了宽敞舒适的生活空间与足够的私密性。
The building site at the given address is divided up into two differently sized parcels according to the wishes and requirements of the later owners and inhabitants, and designed to receive two self-contained houses. Both units join together to occupy the available space, each showing it’s distinct features as far as volume and neighbourly relations are concerned. The result of the fact that the two volumes are set one against the other in a bold and self-confident manner is twofold. Firstly, there are two different but equally representative addresses, and secondly, they both offer generous space and the necessary amount of privacy.
▼ 独立却又遥相呼应的两座建筑,The neighborly relations of the two distinct houses are concerned
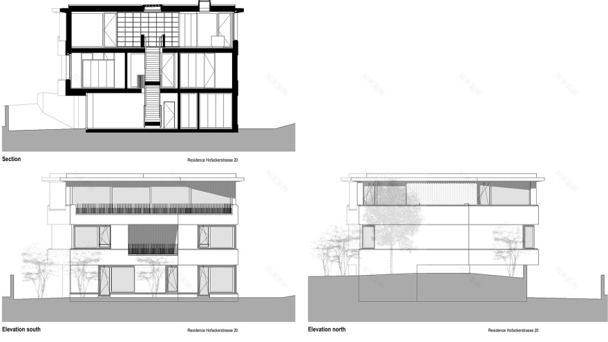
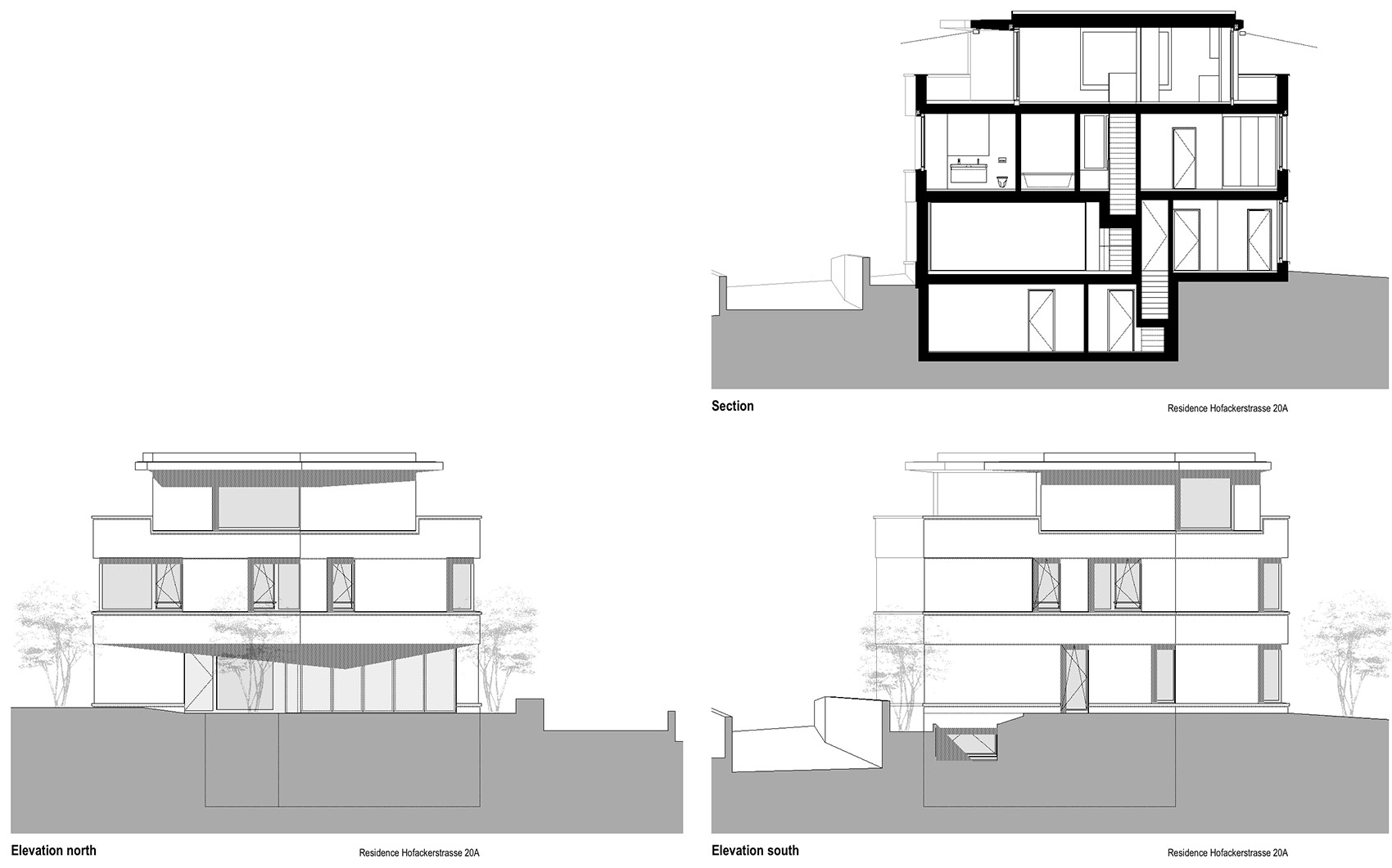
从外侧看去,建筑立面虚实交错,但沿着水平线条延展的墙面与窗格并没有打破其整体性,同等重要、比例恰当的虚与实让建筑如同一条缠绕的缎带,有着凹凸起伏的自然肌理。清水混凝土、灰泥抹面与金属、木质窗框的结合让建筑看起来素雅而低调。
The outer shell of the buildings is broken up by generous openings without losing the intended unity of window and wall. „Open“ and „closed“ are equal features of the front giving it the look of a ribbon and a structure shaped naturally and with a professional sense of proportions. The materials used are fair-faced concrete in combination with plaster-surfaces and metall- and wood combined windows.
▼ 虚实交错的建筑立面,The outer shell of the buildings is broken up by generous openings
两座建筑在内部空间设计中沿用了一致的概念。位于建筑中部的楼梯在划分功能的同时,连接起各层空间。在顶层,开敞的露台空间让建筑成为了居住区中独特的存在,而交错的空间格局与通透的落地玻璃窗让周边Uetliberg山脉起伏的天际线一览无遗。
The interior concepts of both houses are similar. A central staircase arrangement both separates and links the three floors. Characteristic in both houses is the panorama view that can be enjoyed on the top floor with it’s floating room pattern and lofty window-fronts opening the scene of the near mountain ridge called „Uetliberg“.
▼ 前侧建筑的顶层空间,Top floor of the front building
内部房间绕着中部楼梯,沿建筑外围而立,并通过不同的门或辅助功能空间彼此相连。位于角落的巨大窗户则带来了更为充沛的阳光与开阔的视野。
Individually, the rooms are in peripheric line-up, and purposely so, and they are linked among eachother through different kinds of doors. Angular light exposure in these rooms stands for optimal lighting and range of view.
▼ 位于建筑中部的楼梯空间, The central staircase arrangement
▼ 内部房间绕着中部楼梯,沿建筑外围而立,The rooms are in peripheric line-up
▼ 后侧建筑的顶层空间,Top floor of the rear building
而外围花园空间、行车道与停车空间的设计则由景观设计师完成。
The outer space with garden, driveways and parking lots is the work of an independant landscape architect.
▼ 从后侧居住区回看建筑,View from the rear of the houses
▼ 总平面图,Master Plan
▼ 平面图,Plan
▼ 剖面与立面,Section and Elevation
Firm: Spoerri Thommen Architekten AG, 8045 Zurich, Switzerland
Type: Residential, two detached private homes
Status: Built
Year: 2015 – 2016
Size: ca. 7’000 sqf (both houses)
Photos: Roger Frei Architekturfotografie, 8032 Zurich, Switzerland
Collaborating engineering firms
Civil engineer: Born Partner AG, 8802 Kilchberg, Switzerland
Engineering electrical equipment: Gutknecht Elektroplanung AG, 8004 Au Zurich, Switzerland
Engineering building and sanitary equipment: Planungsbüro Roman Böni GmbH, 5036 Oberentfelden, Switzerland
Engineering building physics: Küster + Partner AG, 8853 Lachen, Switzerland
Landscape architect: Balliana Schubert Landschaftsarchitekten AG, 8045 Zurich, Switzerland
客服
消息
收藏
下载
最近





























