查看完整案例

收藏

下载
专注于源自亚洲简餐的小型餐饮企业Cook Caravan面对愈发供不应求的订单,终于决定迎来他们的第一间实体餐厅。几位业主找到建筑师David Dworkind,希望他能够将他们脑海中那间别具一格的印度餐厅付诸于现实,成为城中独树一帜的餐饮空间。
The owners of Cook Caravan, a small food business focused on catering tiffin packed recipes originating from all over Asia, had outgrown their small production kitchen and were ready to open a brick and mortar. They approached the architect with the idea of opening a “cool Indian restaurant” that would differentiate itself from the others in the city.
▼ 设计概念,Concept
方案的灵感来自于印度闻名于世的卧铺火车车间。恍如古老木门般的蓝色木板作为墙裙与柜体,环绕出整个用餐空间,而墙面的上部则粉刷上了亮丽的蓝。点缀其中的钢制构件则采用了卧铺中常见的另一个颜色 – 黄色。内嵌的路边推车摊位略略低于吧台,划分出点单区域。而在其上,以铁链悬挂的置物架仿佛是卧铺车间中层叠的床铺。古老的摇头扇沿着绘有极富印度气息的手绘图画的墙壁向外延伸。用不锈钢饭盒打造而成的吊灯悬挂在空中,投下明灭的光影。而窗边的绿色霓虹灯被弯折成店铺的商标,吸引着来往的路人。
The design was largely inspired by the sleeper trains of India. Textured blue wood reminiscent of old wooden doors wraps around the base of the restaurant, while the walls above contrast in light blue. Steel elements around the restaurant take on the yellow accent colour completing the Indian train colour palette. A street food cart inserted into the bar creates a lower counter, acting as the point of sale. Above, a shelving rack suspended by chains recalls the beds of the sleeper cars, while old fans and hand painted Indian signs adorn the walls. The restaurant is lit with suspended tiffins that have been hollowed out to create lamp shades and a green neon with the restaurants logo acts as a beacon by the window.
▼ 蓝色木板环绕出整个用餐空间,Textured blue wood wraps around the base of the restaurant
▼ 内嵌的路边推车摊位略略低于吧台,划分出点单区域,A street food cart inserted into the bar creates a lower counter, acting as the point of sale
▼ 低矮的手推车点单区域,The street food cart / 以铁链悬挂的置物架,The shelving rack suspended by chains
▼ 风扇、灯具与墙上绘制的图画,The old fan, lighting features and the hand painted Indian signs
▼ 绿色霓虹灯被弯折成店铺的商标,A green neon with the restaurants logo / 灯具用印度常见的餐具 – 不锈钢饭盒制作而成,The lighting features are made with the tiffin storages which are common in India
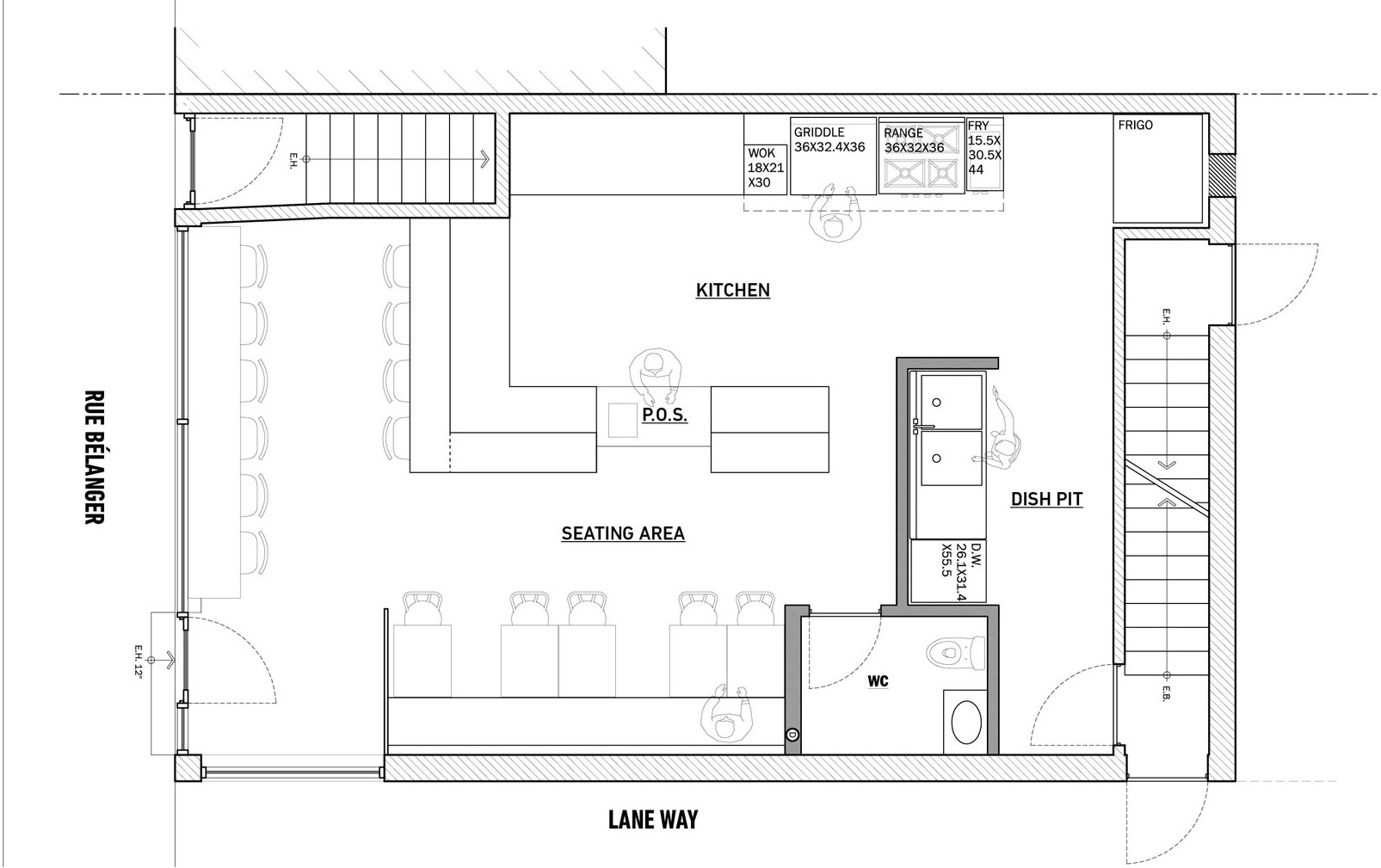
▼ 平面图,Plan
ARCHITECT: David Dworkind
LOCATION: 1211 rue Bélanger, Montreal, Canada
DATE: August 2016
PHOTOGRAPHS: David Dworkind
客服
消息
收藏
下载
最近




























