查看完整案例

收藏

下载
历史 History
哥伦比亚国立大学护理学院大楼历经20年的规划与设计终于完工。从1995年Rogelio Salmona建筑事务所的初次设计,2003年的公开竞赛,到2008年学校规则化与管理计划政策实施时方案的再次调整。直至2013年,大楼的建造终于正式启动。
The Project Nursing Faculty of the National University of Colombia was planned for over 20 years. In 1995 the architect Rogelio Salmona developed a preliminary project. In 2003 a competition for a design was made and in 2008 under the policy of the Regularization and Management Plan (PRM) of the university the project was reborn and finally in 2013 the construction started.
▼ 建筑外观,External view
历史遗产与场地 Heritage and Site
建筑坐落于国立大学校园之中,顺应着Leopoldo Rother所确立的校园总体规划格局。而在其周围错落地散布着法律与政治科学学院大楼、社会科学学院大楼以及兽医医药学院建筑组团等极具历史价值的受保护古老建筑。
The Project is located in the National University Campus following the line of the master plan of Leopoldo Rother, surrounded by a building of historic value, that are on a high level of preservation: The Faculty of Law and Political Science building, the Faculty of Social Science building and the assembly of construction of the veterinary medicine.
▼ 区域平面与总平面图,Location and Master Plan
建筑垂直于法律与政治科学学院建筑的核心区域,其外部空间的边界与组织呼应着周边的建筑格局,以保持相互间视觉的连通性。建筑的长边平行于校园内一条连接起波哥大两条主干道与校园中心区域的主要步行道。
The building is placed perpendicular to the core block of the Faculty of Law and Political Science building, organizing and defining the exterior areas draw by the nearest buildings maintaining the visual relation between one and other, while the longest facing is parallel to the main walk that connects two principal highways of Bogotá, the El dorado avenue and N.Q.S. avenue, with the center of the university campus.
▼ 设计草图,Sketch
▼ 建筑外部空间,Building and Its Surrounding Area
漫步于景观之中 Landscape and Roam
通过少量支撑结构,建筑师以一层空间的大面积架空实现了建筑与其周边环境最大化的视觉联系,将城市与校园开放空间联系在一起。而向着边缘微微上扬的二层楼板则避免了建筑间的互相遮挡,进一步强化了这种联系,让位于其后的法律与政治科学学院建筑在Leopoldo Rother所设计的步行道上依然清晰可见。
The decision of lifting the building from the ground surface and arrange the least number of structural elements enabling the maximum of visual relations and attending the urban connections among the open spaces of campus. This condition is enhanced with the second-floor slabs inclination, avoiding the visual superposition with the Faculty of Law and Political Science building when roaming through the walks designed by Leopoldo Rother.
▼ 架空的一层平面与上扬的二层楼板强化了建筑与环境的联系,The elevated ground floor and tilt second-floor slabs enable the maximum of visual relations
向着建筑前行,楼板缓缓下沉,空间在入口处被压缩到极致,而向两侧上扬的楼板引导着视线看向远处的景观。随着狭窄而延绵的楼梯拾阶而上,视线也渐渐从近处被拉向远方。在建筑的顶层,环绕城市群山起伏的天际线为三个开放露台带来了一丝静谧与肃穆。
穿行在建筑之中,光线或明或暗,变化不定,各层并不统一的立面设计却营造出同样丰富的空间体验。光线映照在赭石色的混凝土之上,让严肃的教学空间显得温暖而坚定。
When approaching, the tilt plane the space compresses near the entrance and opens the sight towards the landscape, upon ascending with the stairway begins a lengthwise roam tensing the visuals to the near and far landscape. In the terrace roof the three open patios instructs an austere and passive atmosphere encouraged by the oriental hills of the city.
The experience of roaming through the project is emphasized by the luminous condition in each floor, which various along the floor and allows transitions between dark and bright spaces. The reflection of light on the ocher concrete creates an environment that transmits warmth and stability in an academic building.
▼ 空间在入口处被压缩到极致,The space is compressed near the entrance
▼ 向两侧上扬的楼板引导着视线看向远处的景观,The tilt plane opens the sight towards the landscape
▼ 一层入口大厅,Entrance Hall
▼ 狭窄而延绵的楼梯营造出丰富的空间体验,The narrow stairway creates a various roaming experience
▼ 顶层开放露台,The patios in the terrace roof
建造技术 Corporeity and Technique
建筑师在课室内设计了一套恒定通风系统,利用中央墙体处的垂直管道以被动方式控制空气流动,使新鲜空气源源不断地进入课室,同时热空气通过管道从屋顶排出。办公空间的通风系统也遵循了同样的原理,空气通过中央大厅从环绕其而建的外墙排出。
The disposition of a constant ventilation system in the classrooms allows a passive way of controlling the air flows with the use of a vertical duct in the central wall, that permits the air renewal in the classrooms and drive out the hot air on the top of the building. This same solution was raised for the office spaces where the central hall is the extraction system that is regulated by the façade ventilation.
▼ 课室空间,The Classroom
▼ 地下阶梯教室,The underground lecture hall
混凝土的浇灌模板在赭石色的墙面与天花上留下了木头的纹理,以生动的传统建造技术打造出一座高品质而又耐久的新建筑。
The shuttering of the concrete forms leave a wooden texture on the ochre concrete of walls and ceilings maintaining vivid the traditional techniques of construction, and also making a quality and durable building.
▼ 高品质而又耐久的新建筑,A quality and durable building
▼ 一层,First Floor
▼ 负一层,Basement
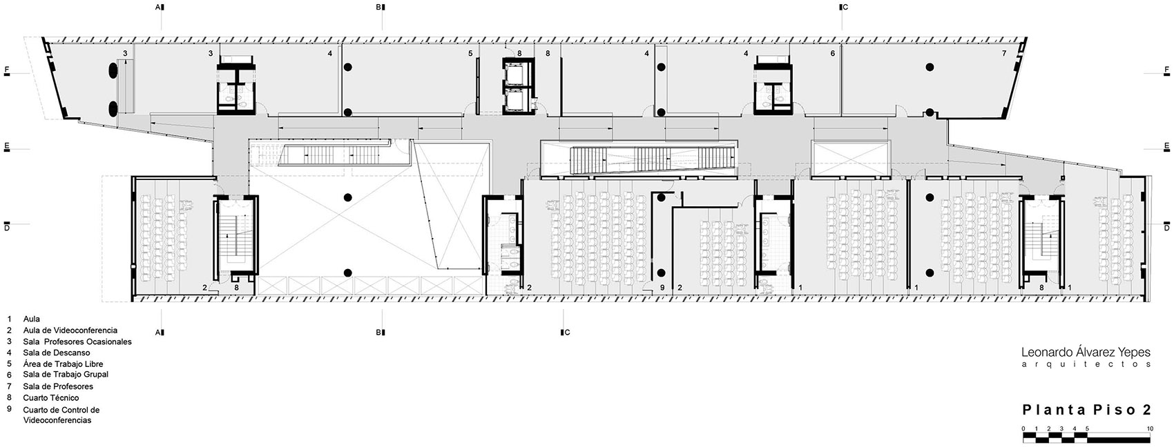
▼ 二层, Second Floor
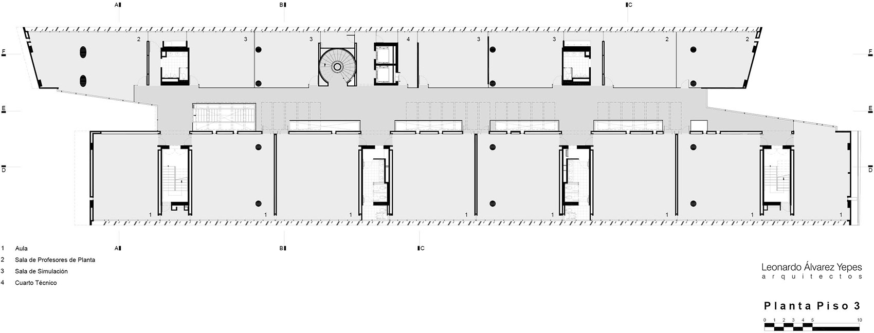
▼ 三层,Third Floor / 四层,Fourth Floor
▼ 立面,Elevation
▼ 剖面,Section
All photos by Rodrigo Dávila
客服
消息
收藏
下载
最近














































