查看完整案例

收藏

下载
在城市更新项目的框架下,内缪尔市希望在圣马丁山附近的空地上建造一个社会文化活动中心。公共空间位于上层,十分醒目,店铺设在四周。这样的空间组织旨在激发不同活动以加强社会的凝聚力。中心建筑位置清晰明确,强调了其作为公共设施的功能。
Under the framework of the urban renewal program, the city of Nemours wished to build a social center and a cultural space on the grand esplanade of the Mont Saint-Martin neighborhood. The grouping of a facility of this importance with shops around a reorganized and upgraded public space aims to revitalize activity and strengthen social cohesion. Its central and exposed position help to underscore the building’s function as a public facility.
▼建筑外观醒目,上层公共空间立面采用木色百叶,external view of the architecture, the facade of the upgraded public space is composed of wooden colored blades
项目连接Chérelles大道,两条边道以及未来文化中心将建成的散步道,人们从任何方向都可以看到它。
Visible from all sides, the project connects the rue de Chérelles, the two side streets and the future esplanade of the cultural center.
▼建筑外观,从各个角度看去建筑体块均清晰可见,external view, the building is visible from all sides
此外,建筑还将上层的步道和下层停车区域联系在了一起。两个叠合在一起的功能区块遵循共同的建筑原则,即大厅面向公共空间、内部花园以及露台边的关键位置设玻璃墙,使空间具有双重透明性。
The building also functions as a link between the upper level of the esplanade and the one below of the parking area. The two superimposed programs follow the same architectural principles: lobbies with double exposure and transparency toward the public space and the interior garden and organization of central points around the patio.
▼剖面图,建筑连接上下两层空间,大厅两侧通透,section, the building connects the upper level and the lower space, the lobbies have double transparency
▼低层入口,entrance from the lower level
▼上层大厅,透过玻璃可以看到中央庭院和低层大厅,lobby of the upper level, through glass the central courtyard and the lower level lobby could be seen
露台和室外空间视线相通,强调了项目的轴线组织,并且在两个功能区块之间建立起了视觉联系。露台作为外立面的补充,为建筑建筑创造了一个舒适的内部空间,阳光可以照射进来,而人们能够在这里享受项目各个空间的景观。
The transparency from the patio toward the outside underscores the axial organization of the project and visually links the two programs. The patio creates an interior space in the building, allowing light to penetrate and opening views between all the spaces in the program, as a complement to the exterior façades.
▼露台,可以看到另一侧的功能区块,patio, the two programs are connected visually
透过文化中心和社会中心的大厅玻璃,人们可以从街道上看到此公共设施内部的花园。在主要由石头构建的环境中,这座花园创造了宝贵的自然空间,带给人清新的感受。
Designed for the users of this public facility, the garden feature can be seen from the street and through the lobbies of the cultural center and the social center. It is a precious and refreshing space in the midst of an environment essentially composed of stone.
▼花园,透过大厅可以看到外侧街道,the garden, the street could be seen through the lobby
▼舞蹈房,dancing room / 室内走道,interior corridor
▼总平面图,site plan
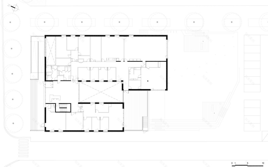
▼底层平面图,ground floor plan
▼二层平面图,first floor plan
Contracting authority/Client: City of Nemours
Prime contractor: Atelier Téqui, architect; Yves Saouas, economist; AIA Ingénierie, Structural engineering firm; Amoes, Utilities engineering firm
Program: Construction of a social center and a cultural space
Surface area: 1,733 m² SHON (adjusted gross floor area) – 1,607 m² SU (Usable surface area)
Cost: €2.8m excluding VAT
Calendar: Competition in 2011, delivered in 2016
Photo credits: Sergio Grazia
客服
消息
收藏
下载
最近
















