查看完整案例

收藏

下载
揭工,是建筑师的一个朋友,之前在北京从事手工模型的工作,近年来建筑行业的不景气影响到了自己的工作,揭工准备用这些年攒的一些钱回老家盖一个自己的宅子。
Jie, a friend of the architect, previously engaged in the production of hand modeling. In recent years, the construction industry downturn affected his work,so Jie intended to build a house in his hometown with the money saved over the years.
▼ 建筑外观,External view
揭工的老家在湖北咸宁市边上的一个村子。名字叫做港下揭村,顾名思义,村子是单姓村,所有的人都姓揭,小村到现在也几百年了,单姓村在南方很常见,村口有灶神,村中心有祠堂。这种农耕文明下古老的乡土社会体系一直存留到现在。
老揭不愿意搬家到邻近的小城去住楼房。他喜欢从小长大的这个地方,在乡下可以养鸡养鸭,猫猫狗狗;亲朋好友之间的走动也就三五分钟。这是一个普通的不能再普通的小村,几十户人家,几十亩农田,没有什么历史遗迹,没有什么自然风景,就是简单地村子。由于外出务工的回流,新一代的村民喜欢将原有的老宅拆除掉,盖上城市才有的小洋楼;气派,光鲜。就连村子的祠堂家庙,也被拆除后简陋的盖上水泥房,一个颜色鲜艳的仿古式门脸。但是老村形态的肌理都还在,弯弯曲曲的小路,大小不一的房子,可以见证过去时代中土地产权的一次次的变更;更可以看出家族种姓关系的一次次发展与变化:谁家的后代有出息,谁家的土地上欧式的楼房就更气派。
Jie’s hometown is a village on the edge of Xianning, Hubei. Gang xia Jie Cun, as the name suggests, is s single surname village. Village has hundred-year-old history, where all of people surnamed Jie. Single surname is common in the south village. Kitchen God is seated in the entrance to a village. Ancestral hall is in the center of the villige. The ancient rural social system of this farming civilization has been preserved till now.
Jie refused to move to the neighboring town to live in the building. He love the place where he grew up. It is convenient to raise chickens, ducks, cats and dogs. It is only a few minutes Between neighbors. This is a very average village with dozens of families and acres of farmland historical sites. It is just a simply village without historical site and natural scenery. The old village form texture are still. The crooked path and varying size houses witness the change of property rights in times. The development and change of caste family relationship can be seen: The descendants have better prospects, their European style buildings are grander.
▼ 总平面图,位于村落中心的新宅,Master Plan, a new building in the village center
▼ 洁白的新建筑与村落,The white new building and the village
老揭家的位置是紧邻祠堂的后面那块地,南面穿过一条不宽的小路,就到了村里祠堂的入口处;北面挨着村里的一条主路;东面挨着邻居,西面则是祠堂后面的一块空地。老揭的大女儿需要在家里复习高考,小儿子也要每晚回来住宿,加上老揭夫妇的返乡,原有的一层平房已经不能满足需求而被拆除。
家宅的建筑形式和复杂的邻里关系有直接的联系:新建体量和祠堂的退让,和道路的协调,和本家大哥二哥的房子的视线交流,通风,采光等等。出现了不同方向的退台和斜切。
The house is closely behind the ancestral hall. The ancestral hall can be reached through a south path. The north of the site is the main road. His neighborhood is next to the east. The west is a space behind the temple. The eldest daughter need to review for the College Entrance Examination at home while the youngest son go come at night. The couple will return home. The original single-storey house has been unable to meet the needs for that.
There is a connection between the architectural form of the house and complex neighborhood relations: thw concede between the new volume and the ancestral hall, concert with road, and sight communication with his brothers’ house, ventilation, lighting and so on. which lead to setbacks and chamfers in different directions.
▼ 建筑与环境关系,Diagram of the building with its surrounding
▼ 最终设计出现了不同方向的退台和斜切,The final design with setbacks and chamfers in different directions
港下揭宅,是为老揭一家四口量身定做的:老揭生性豪爽好客,一层大门经常是不关的,顶部开了高窗,亮堂。来往的邻居路过进来坐一下,打牌,聊天,充当公共客厅的角色。
Jie House is tailor made for Jie’s family of four. The main door is always open because of the enthusiasm of the master.
▼ 经常不关的大门欢迎来往的邻居做客,The main door is always open because of the enthusiasm of the master
自家的私密起居室在二层,连带着三层的书房,被有天窗的大屋顶统一组织起来,阳光洒落在每一个角落。二层的卧室,可以看得到大哥家的房子,三层的阳台,可以看得到二哥家的房子。打开窗户,登上露台,说话的嗓门稍微大一点,就可以和邻居聊聊天,说说话。
The hall acts as a living room on which a window was made to allow in the sunlight. Passing neighbors can drop in for a chat or cards. The second-floor private living room and the third-floor study are integrated by a big roof with skylights, which makes sunshine in every corner. The eldest brother’s house can be seen in the second-floor bedroom while the second elder brother’s in the balcony. The owner is able to talk with neighbors in a little harder voice whenever he open the windows on the balcony.
▼ 建筑二层的高敞空间,The tall public space at the second floor
▼ 与二层相连的三层书房空间,The study at the third floor connecting to the second floor
▼ 楼梯空间,The staircase
▼ 大屋顶上的天窗让阳光洒落在每一个角落,The sunlight shine through the skylight and light up the room
当地的普通房子,由于天气多雨,地面与屋顶墙面的角落多潮湿,港下揭宅的设计基于当地的施工质量与整体预算,安排简单合理的防水防潮构造措施。使得从城市回归的老揭可以享受新的生活。
Because of the rainy weather, the floors and walls of local houses are damp. Base on the quality of local construction and the overall budget, simple and rational waterproof and moisture-proof structure was designed for Lao Jie to enjoy a new life.
▼ 细部设计,Detail design
港下揭宅,希望用一种理性的几何形态去回应当下乡村城镇化的大拆大建;希望用一种明确的空间组织去重建乡村的血缘社交性。
The design of Jie House is expected to respose current urbanization demolition through a rational geometry shape. A clear space organization is made to rebuild the ties of blood in the country.
▼ 夜景,Evening view
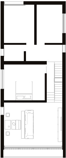
▼ 一层平面,First floor
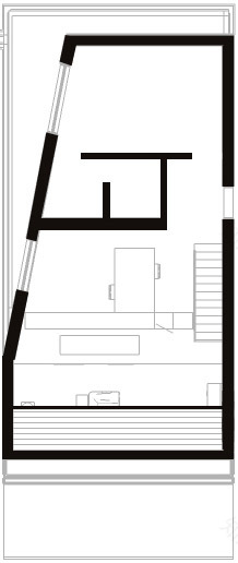
▽ 二层平面,Second floor / 三层平面,Third floor
项目信息
客户:老揭夫妇
地点:湖北 崇阳县
完成时间:2016年12月
建设规模:270平米
主持设计: 谢凯
设计团队: 刘新刚 文亮 苏冲 李鸿瑞 杨松霖(结构)
摄影: 阿多
Project information
Customer: the couple of Lao Jie
Site: Hu , Chongyang County
Finish Time: December,2016
Construction scale: 270 sqm
Chair design: Xie Kai
Team: Liu Xingang, Wen Liang, Su Cong
Photo: A Duo
客服
消息
收藏
下载
最近
































